









TABLE OF CONTENTS
ACADEMIC WORK:
FALL 2022
PROFESSIONAL WORK:
![]()










FALL 2022
PROFESSIONAL WORK:
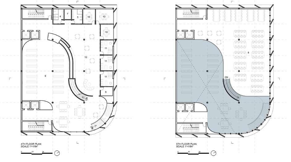
This project is a mixed use apartment complex located in the Los Feliz district in Los Angeles, California. The development contains 55 units ranging from low income micro units to luxury townhouses and the commercial area consists of a coffee shop, small boutique, bike shop, a fitness center, and bakery. The target occupancy group is college students, college graduates, and small families. The main design concept comes from the use of a circle to define the areas of interaction between the residence. This concept was used to create both indoor
social areas as well as double height study areas for the target occupancy group. A semi circle was used to create
a curved re cessed window in the units as a place to relax and on the exterior to emphasize an entrance and exit.






DESIGN CONCEPT
This project is a ADU that is connected to the Glen Luken’s residence in Los Angeles on the corner on 6th street and 27th street. The design of the ADU started with a the offsetting two squares to overlap creating the interior spaces of the residence. The space poche became the exterior spaces on both first and second level. The facade of the residence used glass, stucco, and black mullions as well as framing in ordered to create a visual connection to the Luken’s residence which uses similar materials. The design intention of the adu is to create an additional rentable space for a single family residence as a way to address the high housing need in Los Angeles.















This project is located in downtown Los Angeles on the corner of Hollywood Boulevard and Cosmo street. The objective of the project was to preserve some of the historic facade while creating a new narrative for the hotel. The first step in the redesign process was to analyze the original design and apply this process to the lot of the existing building. The portional analysis was used to subtract from the building as well as adding onto it. The curves began to create a centralized garden that can be accessed on Hollywood entrance inviting the public into the building without intruding into the hotel guests’ experience. The curves also created garden spaces throughout the hotel as a way to invite nature back into the hotel. The facade takes a new approach along the curvature of the building. The new facade system is composed of reflective glass, translucent blue glass, and precast concrete paneling. The new









The DPR facility is located east of the Headworks east reservoir and south of the Los Angeles river, and its design has been a first step in being a component to improve the Los Angeles water crisis as well as rewrite the narrative on recycled water to the Los Angeles residents. In taking first steps in designing the facilities components was to create a promenade both throughout the site as well as throughout the building. Final our design focus was to use the promenade as an attempt to create areas of education to help refocus the image of recycled water.
The first step of designing was the creation of site analysis through the form a grid that was used to design a promenade and the facility.Moreover the structure system that was used was a concrete member with arms that branch out upwards and connect to a metal trust system with secondary steel members both vertically and horizontally throughout the roof. This system creates a residential roof top illusion that is repeated throughout the building. Similarly to our creation of the structure we chose materials such as steel, concrete, and glass as our central materials moving forward as our case studies
focused heavily and three primarily materials to create cohesive building. The uses of large amounts of glazing in the project allowed for the project to display a transparency with the community that contributes to our goals of reshaping the narrative of recycled water in Los Angeles. The next step in the design phase was the decision to combine the program required for the facility and use the promenade in our building to create a certain level of private to public space ratio. This strategy was used as a way to bring the public into the building without infringing on the privacy of the water treatment areas.
Throughout the promenade in the building we created courtyard areas that process the individual throughout the building. In addition to the courtyards we introduced reflective pools that was used as homage to the Los Angeles River.The courtyards serve as both a precession as well as a social interaction between the different areas of program.







DESIGN CONCEPT
This project is community wellness drive building that is intended to provide inviting spaces that allow individuals of the Westlake community to both maintain and grow the mental, physical, and emotional wellness. The location of this project is along Alvarado Street and Wilshire Boulevard, it is also directly across the street from Macarthur Park which is now a known gang territory of MS-13. The site itself also serves as a hub for local vendors to sell a variety of things. Over the years the crime rate in The Westlake community has risen and has had an adverse effect on bringing in business to stay within the community. Furthermore this project is intended to provide a series of hierarchy driven spaces that embrace and uplift the communities resources while also providing additional resources. The programed spaces would include fitness, psychiatric care, medical care, library, tutor center, community garden,vendor space, open work spaces, and additional informational resource. The compiling of these spaces are intended to provide a safe space for the community to grow their mental, physical, and emotional wellness that previous infrastructure has been unable to provide for the Westlake community.






LEGEND: 1. LOBBY 2.CAFE
3.ELEVATOR MACHINE RM.
4.WOMEN’S RR
5.MEN’S RR 6.STORAGE RM. 7.JANITOR’S RM.

LOUNGE AREA





























Figure 8j: Sections A and B














