MINTTU KOTKA
RAKENNUSARKKITEHTI
044 020 1901
minttu.kotka@gmail.com
MINUSTA
Olen Minttu, 24 -vuotias rakennusarkkitehti Oulusta. Iloinen, oma-aloitteinen ja sinnikäs persoona valmiina uusiin haasteisiin.
Arkkitehtuurissa omaa silmääni miellyttävät erityisesti selkeät linjat, valoisat tilat ja aidot, luonnonläheiset materiaalit. Opinnäytetyössäni olen perehtynyt esteettömään asunto ja pihasuunnitteluun ja näitä taitoja haluankin päästä hyödyntämään tulevissa projekteissani.
Vapaa-aikaani vietän urheillen ja minulle tärkeiden ihmisten seurassa elämästä nauttien. Urheilun lisäksi lähellä sydäntäni on luonnossa liikkuminen, valokuvaaminen ja matkustelu.
Tässä portfoliossa esittelen opiskeluaikana tekemiäni töitä.

TYÖKOKEMUS
ALLTIME KIINTEISTÖPALVELUT OY
Ulkoalue - ja vihertyöntekijä
Pihan hoitosuunnitelman laadinta
13.5. - 18.8.2024
22.5. - 31.8.2023
16.5. - 31.7.2022
10.5. - 31.7.2021
18.5. - 31.7.2020
3.6. - 17.7.2019
SIJAISHALTIJA
Kodinhoidolliset työtehtävät
11.6. - 29.6.2018
12.6. - 30.6.2017
25.5. - 15.7.2016
KORTIT
Työturvallisuuskortti
Sähkötyöturvallisuuskortti
Ajokortti B, T
KIELITAITO
Suomi
Englanti
Ruotsi
Äidinkieli
Tyydyttävä
Alkeet
RAKENNUSARKKITEHDIN TUTKINTO-OHJELMA
Oulun ammattikorkeakoulu
2021 - 2024
YLIOPPILASTUTKINTO Laanilan lukio
2017 - 2020
IT - TAIDOT KOULUTUS
GRAPHISOFT ARCHICAD
AUTODESK REVIT
AUTODESK AUTOCAD
TWINMOTION
VERTEX
POWERPOINT WORD
ADOBE PHOTOSHOP
S
I S Ä L L Y S L U E T T E L O
PIENTALO VARPULA
6 - 7
ASUINKERROSTALO VAAKUNAKYLÄN HELMI
8 - 11
PÄIVÄKOTI LINTUKOTO
12 - 15
KORJAUSRAKENTAMISKOHDE SANIAISTIE
16 - 19
ESTEETÖN MINITALO IKÄÄNTYNEELLE
20 - 23
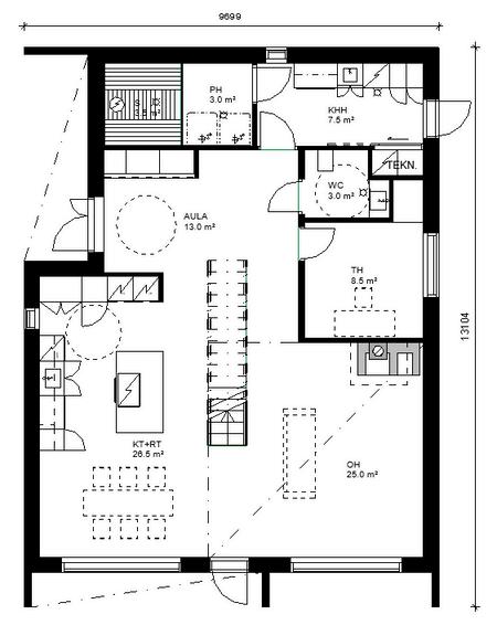
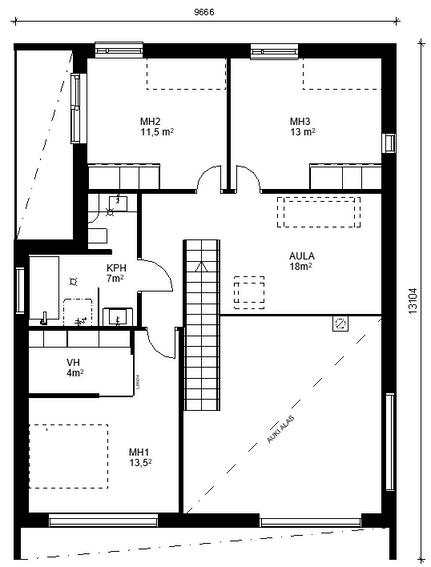
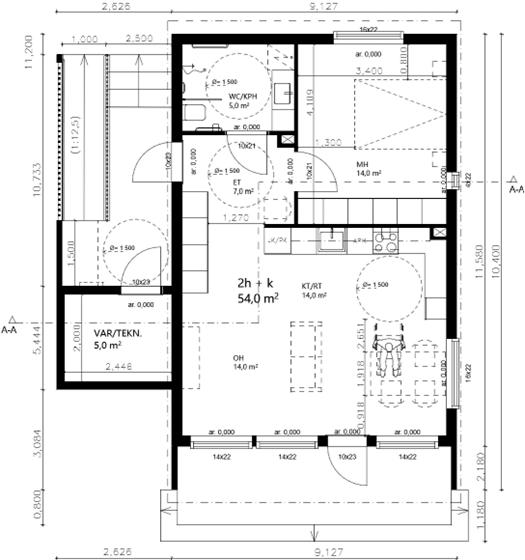
PIENTALO VARPULA
Ensimmäisen vuoden projektityönä suunnittelin puurakenteisen pientalon Varpukankaan asuinalueelle Oulun Ritaharjuun. Pientalo suunniteltiin opiskelijoista koostuvan rakennuttajaperheen toiveiden mukaisesti, alueen kaavaa ja määräyksiä noudattaen.
Tavoitteenani oli alusta alkaen luoda kokonaisuudesta selkeälinjainen, toimiva ja tehokas.
Ohjelmat: Revit, Twinmotion, AutoCAD
Ajankohta: Kevät 2022, 1. vuosi




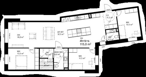
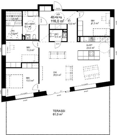
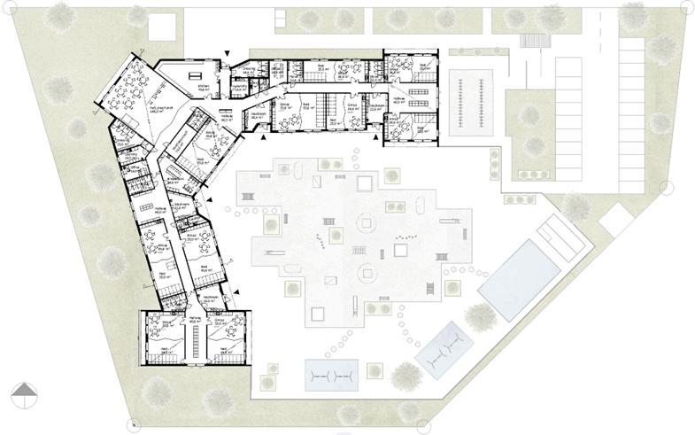
ASUINKERROSTALO VAAKUNAKYLÄN HELMI
Toisen lukuvuoden projektityönä suunnittelin asuinkerrostalon asuntomessualueelle Vaakunäkylän rantaan, Oulun hietasaareen. Asuinkerrostalo toteutettiin terassitalona ja pysäköinti maanpäällisenä kansipysäköintinä.
Erityistä huomiota projektityön arvioinnissa kiinnitettiin tilasuunnitteluun, tontinkäyttöön sekä rakennuksen yleisilmeeseen.
Suunnitteluprosessissa haasteena oli rakennuksen terassoituminen, jonka takia asuntopohjia ei voinut kopioida suoraan alhaalta ylös. Projektin aikana tutkin erityisen paljon pohjaratkaisuja.
Ohjelmat: ArchiCAD, Twinmotion, Adobe Photoshop Ajankohta: Kevät 2023, 2. vuosi

Pohjaratkaisuissa pyrin tehokkuuteen, säilyttäen tilojen avoimuuden. Halusin luoda tiloihin arvokkuutta ja ylellisyyden tunnetta pienillä elementeillä, kuten vinoilla seinillä. Suurimmat asunnot ovat pääosin sijoitettu rakennuksen terassoituihin päätyihin.
Asukkaiden yhteinen piha sijaitsee pihakannella, jonka alla on tilat pysäköinnille. Katutasokerrokseen on sijoitettu liiketilaa, varastot, jätehuone sekä asukkaiden yhteiskäyttöön tarkoitettu kuntosali.

4h+k+s

4h+k+s, etelään suuntautuva terassi



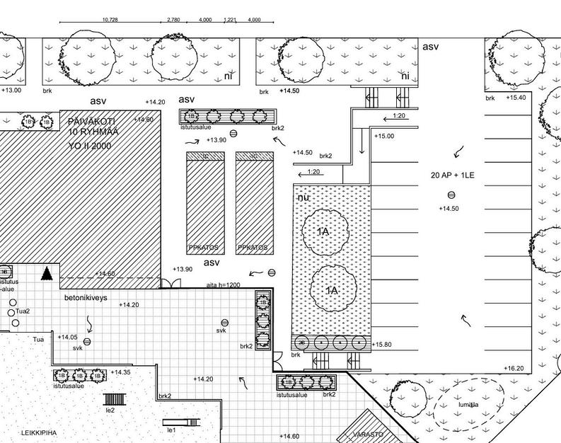
PÄIVÄKOTI LINTUKOTO
Kolmannen lukuvuoden syksyn projektityönä julkisen rakentamisen kurssilla suunnittelin päiväkodin kymmenelle ryhmälle Oulun Lintulaan.
Halusin luoda yksikerroksisen, CLTrakenteisen, harjakattoisen kokonaisuuden, joka sopii alueen arkkitehtuuriin lisäksi metsäiseen ympäristöön.




Rakennus nivoutuu yhteen kolmen harjakattoisen osan kautta, joissa on korkeat huoneet ryhmien käyttöön.
Parhaalla paikalla, tontin luoteiskulmassa on yhteinen ruokailu – ja liikuntasali, josta on näkymät Sorsatien ja Lintulammentien risteykseen.
Suunnittelun haasteena oli saada sijoitettua tilat kapeaan, yksikerroksiseen runkoon niin, että kaikki tilat ovat toimivia, esteettömiä ja valoisia.
Ohjelmat: ArchiCAD, Twinmotion, Adobe Photoshop Ajankohta: Syksy 2023, 3. vuosi






KORJAUSRAKENTAMISKOHDE - SANIAISTIE HELSINKI
Neljännen vuoden korjausrakentamisen projektityö toteutettiin parityönä. Projektissa suunnittelimme Helsingissä sijaitsevaan asuinkerrostaloon kaksi lisäkerrosta, joiden lisäksi julkisivuja uudistettiin.
Osuuteni projektissa oli lisäkerrospohjien suunnittelu, julkisivusuunnittelu sekä visualisointikuvien tekeminen.
Tavoitteenamme oli uudistaa rakennusta kunnioittaen vanhaa julkisivua, sovittaen se samalla punatiilialueelle.
Suunnitteluprosessissa tärkeässä roolissa oli rakennuksen vanhan julkisivun kunnioittaminen, tuoden samalla esiin teollista ja nykyaikaista tyyliä. Asuntopohjia suunniteltaessa haasteena oli alkuperäisten kerrosten läpivientien huomioiminen.


Uudistettu julkisivu

Alkuperäinen julkisivu

lisäkerros1.

2. lisäkerros

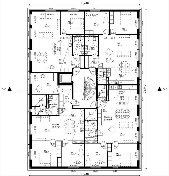
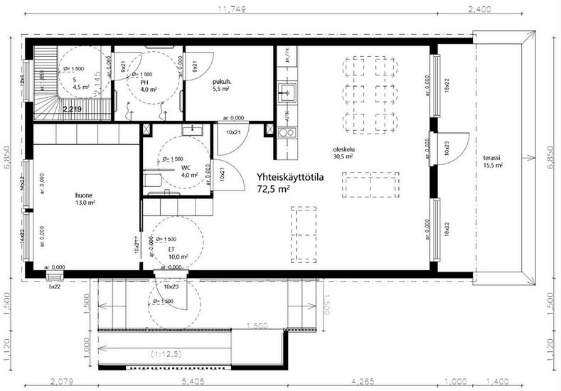
ESTEETÖN MINITALO IKÄÄNTYNEELLE
Opinnäytetyössäni suunnittelin minitaloksi luokiteltavan esteettömän pientalon, joka soveltuu asumiseen myös toimintakyvyn ollessa rajoittunutta. Suunniteltavassa kokonaisuudessa pyrin yhdistämään tilojen fyysisen-, psyykkisen- ja sosiaalisen esteettömyyden arkkitehtuurin keinoin, luoden samalla esteettisesti miellyttävän ympäristön.
Huomiota kiinnitin esteettömyyden ja sosiaalisen kanssakäymisen mahdollistamisen lisäksi myös asunnon ja ulkotilojen kodinomaisuuteen sekä sujuvan käyttökokemuksen saavuttamiseen.


Tontille sijoitettiin kymmenen pohjaratkaisultaan yhtenevää minitaloa sekä yhteiskäyttötila.
Yhteisöllisyyden ja kodinomaisuuden tunne luotiin yhteisillä tiloilla, intiimillä pihapiirillä, vehreydellä sekä luonnonläheisiä materiaaleja yhdistellen.
Rakennusten sisäänkäynnit erotettiin toisistaan vaihtelevilla väreillä ja suurikokoisilla numerokylteillä.
Aiheena minitalon suunnittelu ikääntyneen käyttöön kiehtoi haastavuudellaan. Käyttäjän tarpeille kuten yhteisöllisyydelle, viriketoimintamahdollisuuksille sekä yksityisyydelle ja arvokkuudelle löydettiin tasapaino.
Ohjelmat: ArchiCAD, Twinmotion Ajankohta: Syksy 2024, 4. vuosi

Minitalon julkisivut




Yhteiskäyttötilan julkisivut

Yhteiskäyttötila 72,5 m²