Minshen Cao Portfolio 2023

Page 1

Minshen Cao 2021 - 2023

INTERIOR DESIGN Portfolio

725-217-7523

Sugar Hill, GA

In my previous work, I participated in bidding projects and often have to face sudden changes. The unreachable designer and the upcoming deadline became my first adventure with interior design. Since that day, I have been indulging in the beauty of plan design. I am a fast learner, an employee with a strong sense of responsibility, and a person who always tries to do his job impeccably.

Lanier Technical College Interior Design 2021-2023

SKILL AutoCAD | SketchUp | Revit | Enscape | Photoshop | Microsoft Office Suite ABOUT
Minshen Cao minshencao@yahoo.com
EDUCATION

CONTENT

SETTING the for EXCELLENCE

Pg. 01

Pg. 1 1

| Esty Retail Design | Auto CAD + SketchUp | Tiny House | Revit

Pg. 17

Universal Design | AutoCAD + SketchUp

Pg. 23

Dental Office | AutoCAD + Home Styler

Pg. 29

Coffee Shop | AutoCAD | Coffee Shop (Revision) | AutoCAD + SketchUp

|
|
Pg. 33 |

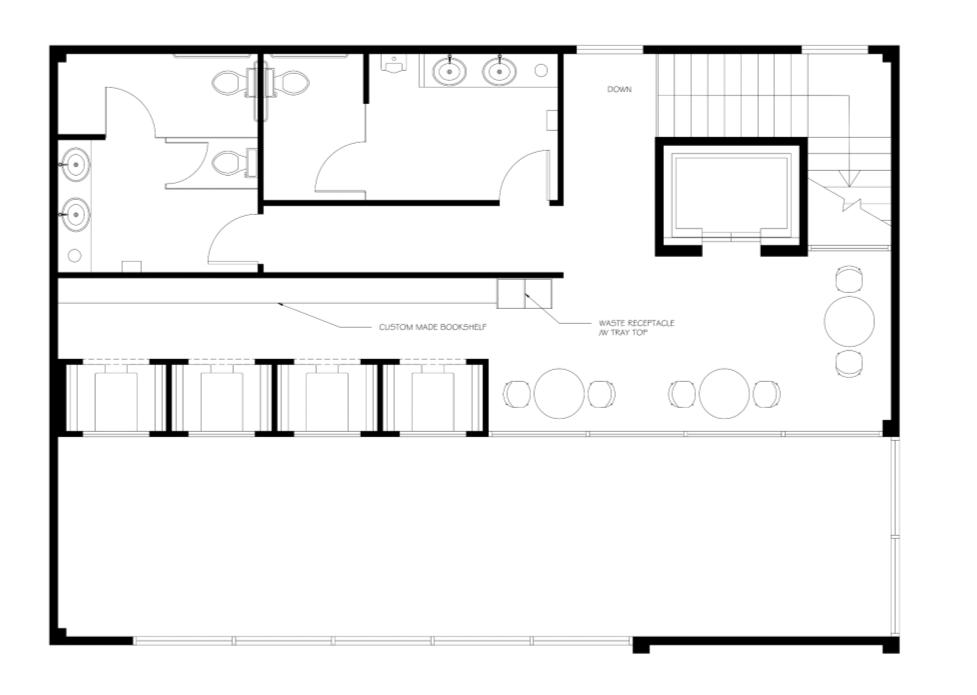
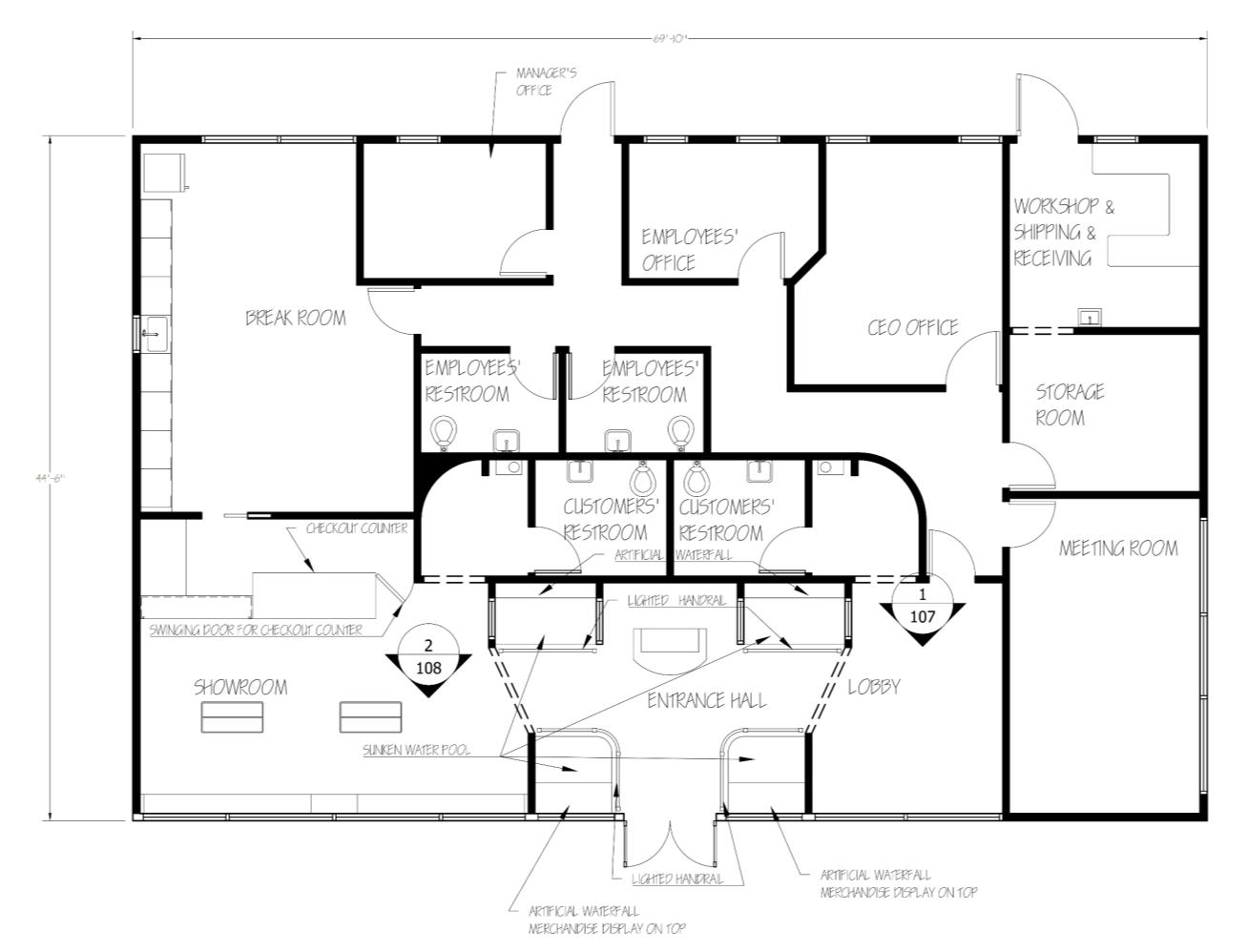
Esty Retail Design

Clark & Taft is committed to making products that stand the test of time and hold your memories of love for generations to come. Discover Craft & Taft's cutting-edge retail office collaboration base: a space designed to connect teams and bridge the gap between present and future. Our base is built to help you and your team achieve your goals and drive your business forward.

01 — ESTY RETAIL DESIGN —
02 FLOOR PLAN
Baseboard
Vinyl Flooring — ESTY RETAIL DESIGN —
Rubber
Slip-resistant
03 FURNITURE PLAN — ESTY RETAIL DESIGN —
04
REFLECTED CEILING PLAN
Display Shelf Veneer
— ESTY RETAIL DESIGN —
Display Case Veneer
05 LOBBY ELEVATION — ESTY RETAIL DESIGN —
06 SHOWROOM ELEVATION
Performance Vinyl Wallcovering — ESTY RETAIL DESIGN —
Chrome Green HC-189

ENTRANCE HALL RENDERINGS

07
— ESTY RETAIL DESIGN —

LOBBY RENDERINGS

08
— ESTY RETAIL DESIGN —

SHOWROOM RENDERINGS

09 — ESTY RETAIL DESIGN —

SHOWROOM RENDERINGS

10 — ESTY RETAIL DESIGN —

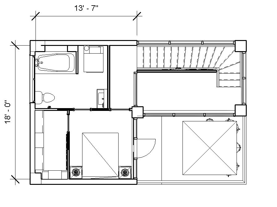
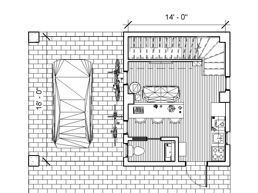
Tiny House

About how many rooms can fit in a 500-square-foot interior space? A two-car garage? Two master bedrooms? A studio apartment? How about a full-size luxury house with one and a half bathrooms and a master bedroom? Within 500 square feet of interior space, a two-story house with parking space and a terrace is the tiny house I present. The “Sherwood” is named after my inspiration, the oil painting “Sherwood” by the graffiti master, Zhanliang Chen. The tiny house with a 20-foot-high wall decorated in graffiti as the axis is representative of aesthetics, functionality, and minimalism.

11 — TINY HOUSE —
FURNITURE PLAN - LEVEL 1 12 — TINY HOUSE —
FURNITURE PLAN - LEVEL 2 13 — TINY HOUSE —

SECTION PLAN - EAST

- WEST
SECTION PLAN
14 — TINY HOUSE —

LIVINGROOM RENDERINGS

15 — TINY HOUSE —

HALLWAY & BEDROOM RENDERINGS

16 — TINY HOUSE —

Universal Design

The project goal is to build a dream home for Sam and Linda Green that accommodates their family and guests, including Linda‘s father, Jack, who uses a wheelchair. The house should feel cozy and intimate for everyday living but also be spacious enough to host large parties and family gatherings. The design should avoid using yellow to accommodate Sam's preference while creating a happy and bright atmosphere to satisfy Linda's desires.

17 — UNIVERSAL DESIGN —
FURNITURE PLAN 18 — UNIVERSAL DESIGN —
19 LIGHTING PLAN — UNIVERSAL DESIGN —

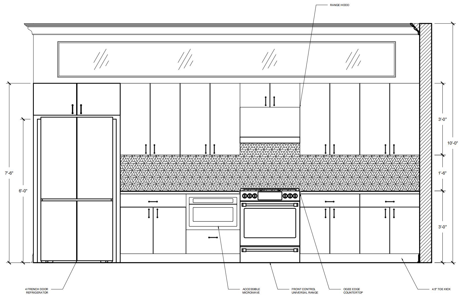
KITCHEN RENDERING

20 KITCHEN
ELEVATION
— UNIVERSAL DESIGN —

KITCHEN RENDERINGS

21
— UNIVERSAL DESIGN —

DINING ROOM RENDERINGS

22
— UNIVERSAL DESIGN —

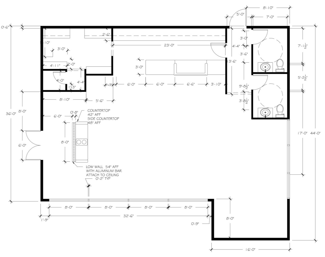
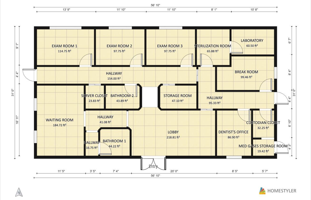
Dental Office

The objective of this project is to design the interior of a new construction building purchased by "Lake Lanier Family Dental Care" to provide a welcoming, functional, and attractive space for patients and staff. The design will also ensure that the requirement of different rooms is met and that the restrooms are designed in compliance with ADA regulations. The goal is to deliver an interior design that meets the client's expectations and ensures a positive experience for everyone.

23
— DENTAL OFFICE —
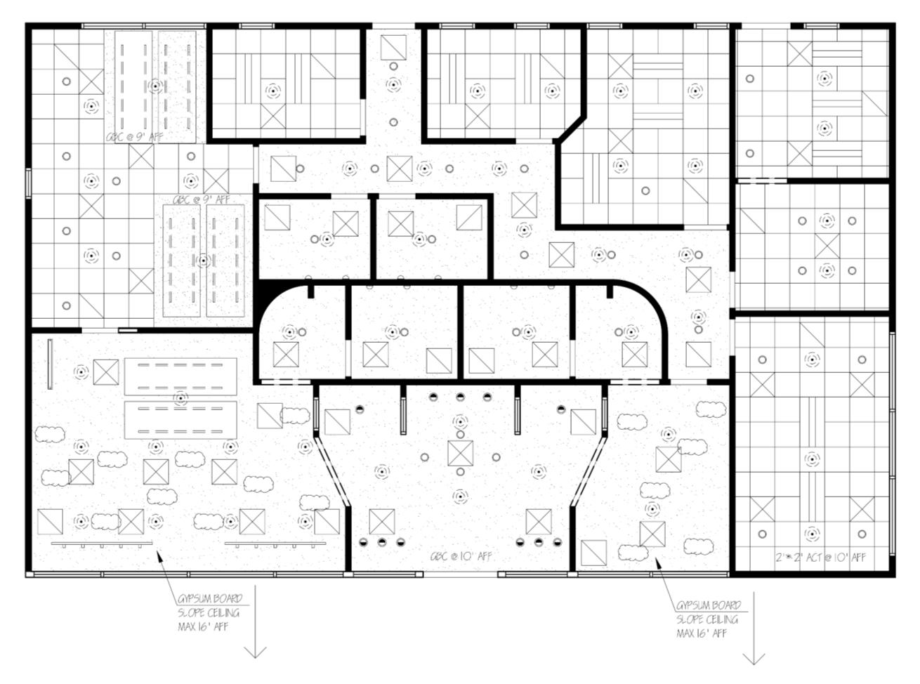
FLOOR PLAN 24 — DENTAL OFFICE —
Reception Countertop Reception Veneer
LVT Flooring

FURNITURE PLAN

25 — DENTAL OFFICE —

LOBBY RENDERINGS

26 — DENTAL OFFICE —

EXAM ROOM ELEVATION & RENDERING

27 — DENTAL OFFICE —

WAITING ROOM ELEVATION & RENDERING

28 — DENTAL OFFICE —

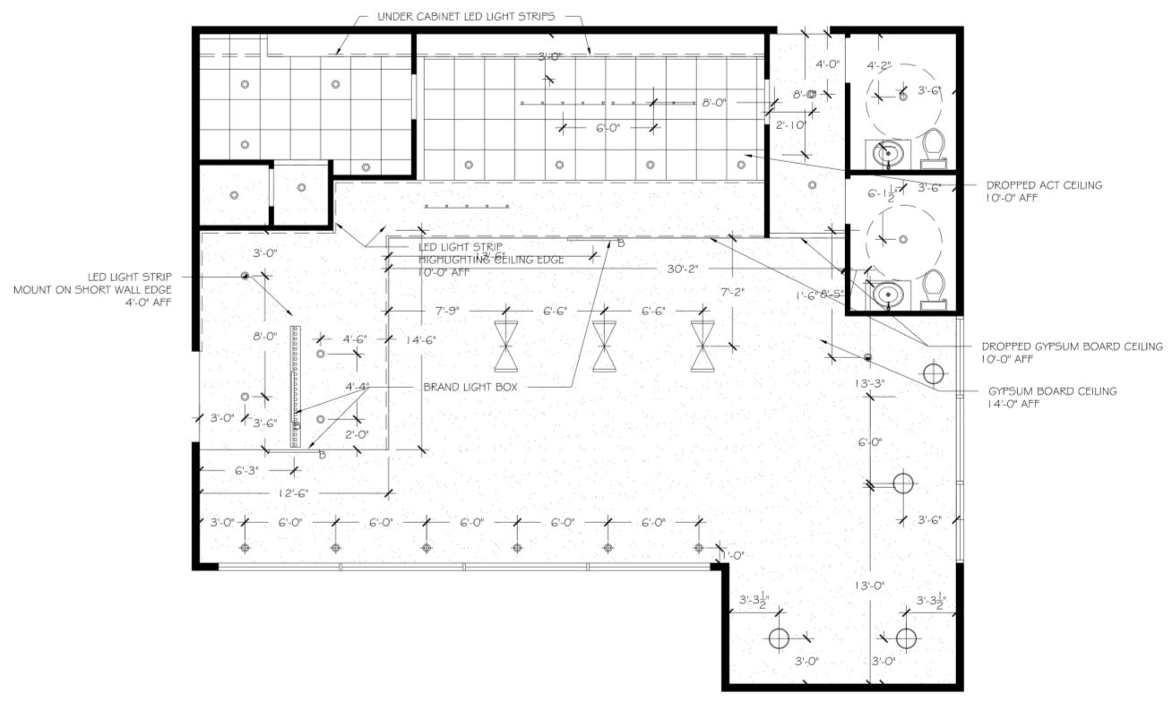
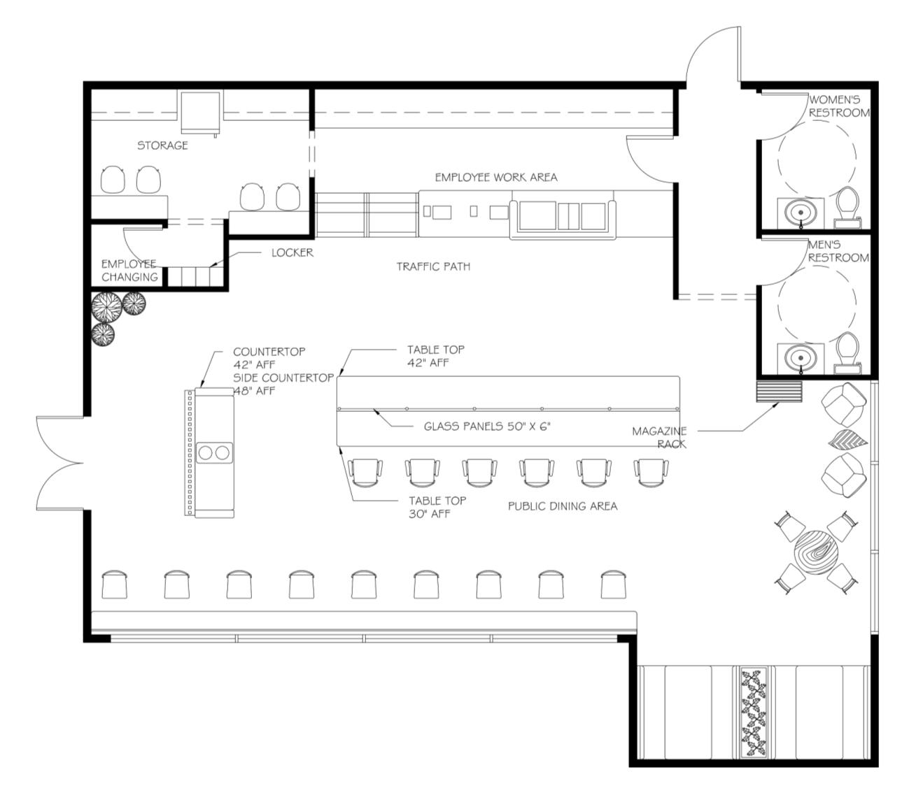
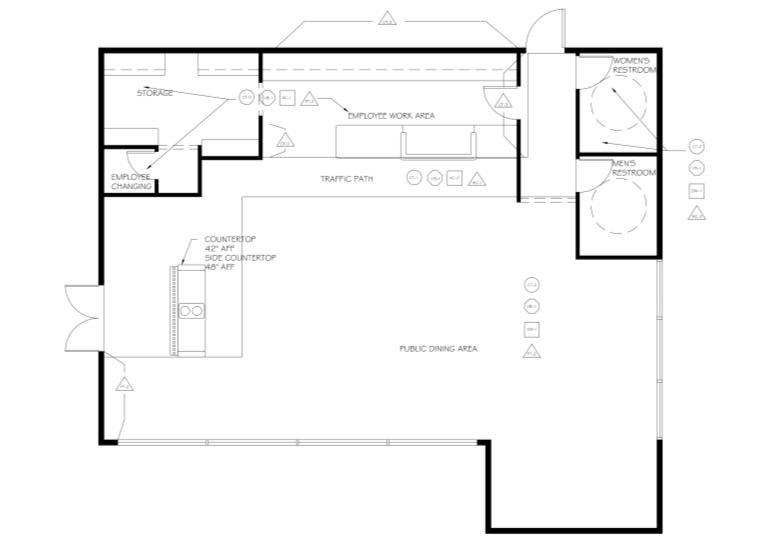
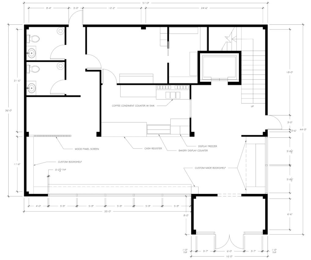
Coffee Shop

The project aims to design a cozy and functional coffee shop incorporating the given building shell and my creativity. A comprehensive set of drawings was created, including floor plans, furniture plans, lighting plans, finishing plans, and finish legends.

29 FLOOR PLAN — COFFEE SHOP —
30 — COFFEE SHOP —
FURNITURE PLAN

RECIPIENT ELEVATION

31 LIGHTING PLAN
— COFFEE SHOP —

LEGENDS

32 FINISH PLAN
— COFFEE SHOP —

Coffee Shop (Revision)

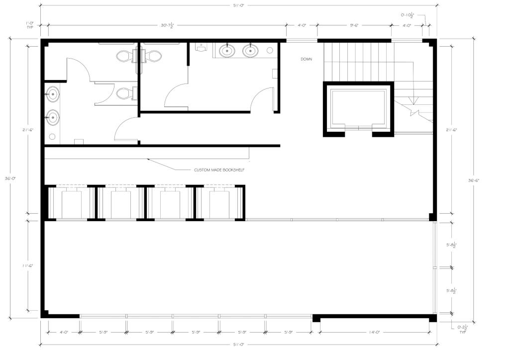
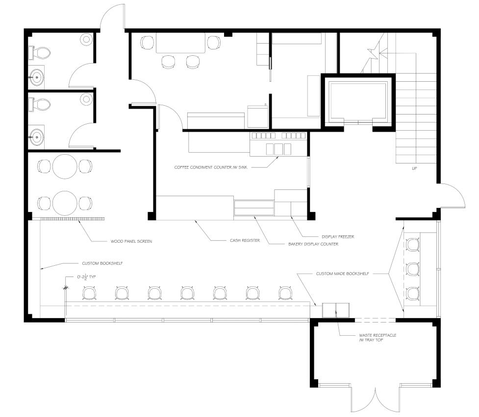
Driven by my passion for a duplex building structure, I transformed the single-story coffee shop into a duplex without altering the original exterior wall dimensions. The interior space design prioritizes meetingADA standards while enhancing natural light and mitigating excessive sunlight through carefully curated window treatments. The coffee shop's theme centers around book reading, with distinct designated areas serving different purposes to elevate the customer experience and increase leisure and work efficiency. My ultimate goal is to create an elegant, comfortable, and book-filled coffee shop that appeals to a broader customer base and enhances overall customer satisfaction.

33 — COFFEE SHOP (Revision) —

FLOOR PLAN

LEVEL 2

FLOOR PLAN

LEVEL 1

34
— COFFEE SHOP (Revision) —

FURNITURE PLAN LEVEL 2

FURNITURE PLAN LEVEL 1

35
— COFFEE SHOP (Revision) —
36 — COFFEE SHOP (Revision) —
37 — COFFEE SHOP (Revision) —
38 — COFFEE SHOP (Revision) —
39 — COFFEE SHOP (Revision) —
40 — COFFEE SHOP (Revision) —
Cao
Thank you! Minshen
2023/04/20

Turn static files into dynamic content formats.

Create a flipbook
Issuu converts static files into: digital portfolios, online yearbooks, online catalogs, digital photo albums and more. Sign up and create your flipbook.