MinqingZhang-Portfolio

Page 1

PORTFOLIO

Minqing Zhang

2 019 - 2024

Minqing Zhang

Master of Architecture 2022-2024

Bachelor of Science in Architecture 2018-2022

University of Idaho

+1-208-874-9360

minqingzh@outlook.com

1006 S Main St, Moscow, ID, 83843

04 Gresham Library IFPC Competition
2nd Place 06 Residential
Portland Housing Unit Studies 03
eVolo
05
Communal
2022
01
Integrated
07 Re-growth: Native Student Center 08 Meowtopia 09 Drawing Form From Fiction 10 Natural Lighting
-
Block in
Refuge Skyscraper
Skyscraper Competition
Family Found
Parenting for Left Behind Kids UIA-HYP Cup 02 Quincy Housing Project
Habitat Design Competition
Moscow Social Housing
Architectural Design

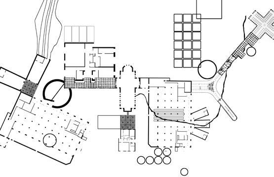
Moscow Social Housing

Individual project, Fall 2022

My design goal is to transform traditional social housing into a more diverse, sustainable, and interesting community by combining affordability, individuality, and diversity. Situated in Moscow near the U of I campus and the main street, this project comprises five terraces arranged in three rows, providing 35 new homes and a commercial space.

The design ethos revolves around promoting a sense of unity among residents of various ages, backgrounds, and lifestyles. Addressing the societal barriers that often segregate different groups, I envision a housing complex that celebrates diversity and nurtures connections among individuals. To achieve this, the housing units are thoughtfully tailored to cater to different preferences and needs, ensuring residents can showcase their individuality. Communal and green spaces foster interaction among residents, encouraging shared living and communication, thereby reducing prejudices through increased contact.

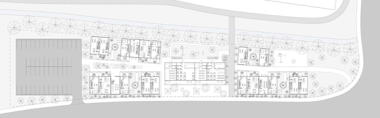
Site
Plan
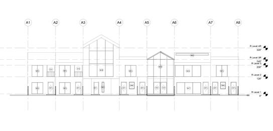
Northeast Elevation
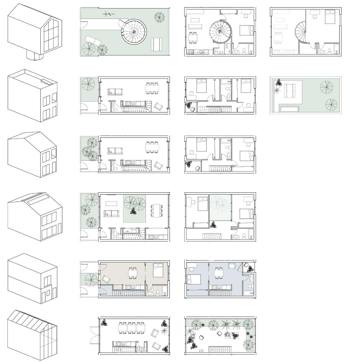
Aerial View Modern style House Standard House Plaza Garden Play Area
Tree House Roof Garden House Standard House Modern Style House 1 Bedroom Units Communal Glass House Tree House Central Garden Communal Glass House Plaza Commercial Space on 1st Floor Garden for Residents
Detailed Construction Section Spiral Staircase in Tree House
Plaza
Central Garden Residential Space

Shared Space

Semi-outdoor entertainment space, communal kitchen, lounge area and community garden

Residential Space

Commercial Space

Restaurant & Stores

Circulation

Pedestrian Bike Vehicle

Rainwater Management

Water tanks filter and store

roof rainwater collected by eave gutters, the water will then be used to irrigate the surrounding landscape and community gardens Landscape

Building
Wall Framing - North Floor Framing Plan - 2nd Floor Reflected Ceiling Plans
Elevation - South
Light-Frame Construction

Quincy Housing Project

Individual project, Spring 2022

The project site is south of Boston, Massachusetts in the city of Quincy. The abandoned airport runway on-site is retained as a pedestrianfriendly public event space, which connects the existing park to the entire community. The housing units are organized on the west side of the site to take advantage of the views of the park and Quincy Bay.

My design focuses on providing affordable and comfortable housing units for people living in high-density areas near the big city of Boston. People can choose to be alone in a quiet and private space, away from the hustle and bustle of the city, or they can choose to participate in their community at any time. The community provides people with a wide variety of social spaces, while housing units are designed to encourage interaction between people and nature.

Masterplan Site
Site
Map
Analysis
1 Bedroom Unit Floor Plan 2 Bedroom Unit Floor Plan 3 Bedroom Unit Floor Plan Neighborhood Streets
Aerial View Overhead View
1 Bedroom Unit Section 2 Bedroom Unit Section 3 Bedroom Unit Section Communal Space
2 Bedroom Unit Living Room 3 Bedroom Unit Living Room 1 Bedroom Unit Elevation 1 Bedroom Unit Backyard at Night 2 Bedroom Unit Backyard 1 Bedroom Unit Backyard in Daylight

Refuge Skyscraper

Group project, Fall 2021

"Warming of the climate system is unequivocal, and since the 1950s, many of the observed changes are unprecedented over decades to millennia" (IPCC). With no limits to human CO2 emissions, garbage production, and nonrenewable resource consumption, humans have rendered the earth nearly uninhabitable. Heightened natural disasters are ravaging the land, and cities around the world are being destroyed. Massive tsunamis, uncontrollable fires, devastating hurricanes, and shattering earthquakes become a consequence no one can escape. With permanent residence no longer a viable option, humans seek refuge in temporary habitats as their sole means of survival.

At the end of the world, people reside within Refuge.

When disaster strikes, private living pods detach and

Each private living pod offers a 'home' that cannot be destroyed. In emergencies, these pods can disconnect and independently fly to the next safe haven before landing on designated pads within the skyscraper. These detachable pods provide their users with a sense of comfort through permanence and familiarity in a relentlessly changing world.

Farm & green Water filter & storage Power generation Storage Factory Residental area Social space School Medical center Data storage Management Research lab
Pods
Section fly to the next Refuge in a safe area.

Water Supply System

Rainwater and groundwater undergo collection, purification, and storage to acquire the clean water essential for buildings and their occupants. Concurrently meeting daily water requirements, an energy-efficient cooling system is established through a water circulation mechanism for temperature control.

Solar Energy System

Made from translucent solar panels, the barrier offers protection while harnessing solar energy to power devices and pods within the building.

Wind System

The air purification devices installed along with window openings on the barrier's surface ensure a constant circulation of fresh air within the skyscraper.

Traffic Flow System

The rotating walkways connect different zones of the vertical city, facilitating movement for residents and pods. Additionally, four vertical elevators enable rapid transportation to different heights for both residents and goods.

In the new Refuge, people embrace the opportunity to start anew.

IFPC Competition - 2nd Place Gresham Library

Individual project, Spring 2021

The library aims to ensure that every individual in this community has the freedom and equal opportunity to access information, knowledge, and education. Simultaneously, as the cultural center of Gresham's

New Urban Planning area, it serves as an open, public social space, facilitating discussions, conversations, and connections among people.

Night Perspective
Parti Diagram
Site Plan First Floor Plan Second Floor Plan
Perspective
Courtyard View of Courtyard from Inside the Library Courtyard Perspective

Family Found

Communal Parenting for Left Behind Kids

Group project, Fall 2021

In rural areas, there exist children commonly referred to as "left-behind children," whose parents migrate or work in urban areas. Without the nurturing bond and parental support, these children are prone to behavioral problems, social withdrawal, increased vulnerability to accidents, and susceptibility to exploitation and trafficking by criminals.

In Tlapanal á municipality, Puebla, Mexico, 93 percent of surveyed children have at least one family member in the United States, with 33 percent having one or both parents residing there. Our design focuses on fostering the community connection of Tlapanal á and promotes the relationships that can be made in public spaces. These connections between the left-behind children and community members can offer emotional support and guidance to compensate for the absence of their parents. By connecting rooftops and activating rooftop spaces, we have created a new, diverse, and multifunctional public space. This eliminates the necessity for children to play in remote ruins or narrow streets. Instead, they can now engage with other children and community members on the rooftops, fostering a safer and more active environment.

Rooftop Space

Park Community Garden Playground Sportsground Outdoor Cinema Food Market Stage
Activate
Tlapanalá
Social
on the
Space
Roof
Safe Walkway & Food Market & Play Area
Park & Community Garden on the Roof

Residential Block in Portland

Individual project, Fall 2020

Site Plan
North Elevation & Section East-West Cross Section
North-South Cross
East Elevation
Section

Re-growth: Native Student Center

Group project, Spring 2023

Our design for the new Native Student Center will support the regrowth of native culture throughout Moscow, by providing essential academic and social services. These services will encourage a healthy and productive academic experience for native students who are away from their homes. The building is physically rooted within the hillside and spatially rooted within the campus culture, strengthening the relationship between the University of Idaho and the native cultures within the MOU memorandum and beyond.

In the design, the connection to the land, axial alignment with the cardinal directions, and the central celebration and gathering space all derive from traditional native architecture. The woven structural grid was inspired by the traditional woven materials within native culture, concurrently, the woven columns serve as rainwater collectors.

Gathering Space East Entrance Lobby
Welcoming Space as Viewed from Academic Mall East Facing Section South Facing Section Second Floor Plan Gallery Looking into Gathering Space
Structural Grid
East Entrance
Detail Section of Woven Column
Aerial View

Meowtopia

Individual project, Spring 2024

The phenomenon of people drying their cats off in the microwave is significant for the understanding of the current relationship between us and living things. Our behavior towards living things in the natural world depends on the attitude we take toward them. Supporting our attitude is a certain belief system that originates from our lives and also shapes our lives.

Using cats as an example, this project proposes a post-animal plan located in Shanghai, inviting cats to help enrich our spaces and our own perception, transforming past objectification and exploitation of animals into positive factors, and establishing symbiotic habitats. By gradually changing people's attitudes, behaviors, and world views, it encourages us to reconsider our relationship with cats and address the injustices cats face.

Site Plan

Collage Section

Bird-Watching Roof: We recognize that cats are part of the ecosystem, even companions that help us understand other species.

Synathropic habitats: Cats are invited into the human environment by architecture, and now they are also users of buildings.

Cat Cafe: Subverting a commoditization into positive factors to assist cats. Cats and people find new ways to collaborate.

Post animal: Sharing spaces leads us to a deeper understanding of space and our perception.

Cat Path
Open Ground Floor Garden Bird-Watching Roof

Drawing Form From Fiction

Research, Spring 2024

Topological Plan Threshold Fragment
Topological Section

"Everything is concealed in symbolism, hidden by veils of mystery and layers of cultural material. But it is psychicdata, absolutely. The large doors slide open, they close unbidden. Energy waves, incident radiation. All the lettersand numbers are here, all the colors of the spectrum, all the voices and sounds, all the code words and ceremonialphrases. It is just a question of deciphering, rearranging, peeling off the layers of unspeakability. Not that we wouldwant to, not that any useful purpose would be served."

White Noise
Topological Section
Topological Axonometric

Monet Photos

Natural Lighting

Research, Fall 2022

Prichard Art Gallery Redesign

Digital
Summer Solstice Winter Solstice 9am
12pm
4pm
9am
12pm
Cloudy 4pm
Cloudy 9am
Sunny 12pm - Sunny 4pm - Sunny 9am
12pm
Cloudy 4pm
Cloudy
Digital Analysis –Daylight Factor
Analysis – Footcandles
- Sunny
- Sunny
- Sunny
- Cloudy
-
-
-
- Cloudy
-
-

Physical Models

Hand Drawings

Turn static files into dynamic content formats.

Create a flipbook
Issuu converts static files into: digital portfolios, online yearbooks, online catalogs, digital photo albums and more. Sign up and create your flipbook.
MinqingZhang-Portfolio by minqingzhang - Issuu