Kang, MinJi - 2025 Spring Portfolio

Page 1


Case Study for Layering Encounters

mk2csc@virginia.edu | 703 655 9900

Selected Works 2021 - 2024

Building relationships and community in Urban Living

Gathering in the site of absence

Hoping new encounters

Communicating through the cyclical passage of time

Interacting with nature in the urban environment

00. Layering Encounters
01. Still Life in Yellow Black
02. The Nest
03. Memories Thought Advance
04. The Garden
Formal Operations, Lessons in Making, Fall 2020

Layering Encounters

Fall 2024 | ARCH 7010 STUDIO

INSTRUCTOR: Peter Stec

Located along Connecticut Avenue in Washington, DC, Layering Encounters addresses urban living through the integration of community-focused design. Woodley Park area, a prominent historical district, currently faces gentrification, isolation, and lack of spatial connection. This causes a lack of community bonds and poor navigability due to large apartments blocking the neighborhood fabric.

Questions

How can providing a space along the Connecticut Avenue improve people’s access to a more friendlier neighborhood?

One area of intervention is perosity. How can a pedestrian move from one side of the avenue to a more private space? How does this increase the mobility of the pedestirans and further the neighborhood?

How can we make the separated units connective? How can we achieve building that fosters community in different levels - clusters, floor, apartment, and further into neighborhood?

The goal of this project is to create an affordable, porous residential environment that fosters stronger neighborhood ties and opens up pathways between urban spaces. Through two key design concepts shown in the two different schemes, the project aims to address those challenges.

ConnecticutAve.

Axonometric View from Connecticut

is

Layering
Individual Household
Floor Community - Interstitial Space
Neighborhood Community - Gallery
Visual Connection
Visual Connection - Interstitial Space

Clusters

The second concept is the sharing of space. Although individual units within the building are on a smaller scale, the project, by providing expansive communal areas, expands the using area for the residents of this project. These interstitial spaces between units serve as gathering spots, fostering interaction among residents while offering additional amenities for the entire neighborhood.

Interstitial Space Diagram
Cluster Space Individual Units
Interstitial Space
Lockers
Coffee Station
Office Booth
Vending Machine
Lockers
Coffee Station
Vending Machine Office Booth
Assignments in Cubicles
Out in Gym
a walk on the Rooftop Garden
with neighbors in the community space
Work in Cublcles
Laundry
Schedule Scenario Diagram

After conducting a daylight and glare analysis of the building, louver became an essential part of the facade in order to reduce the amount of glare. This choice not only lets the essential sunlight into the building, but also adds a unique fabric to the city, stimulating pedestrians and neighbors to be curious and engaged with the project.

Cross Sections and Technical Detail

Still Life in Yellow Black

Fall 2023 | ARCH 4010 STUDIO

INSTRUCTOR: WG Clark

Fall 2023 | Still Life

Still Life in Yellow Black, a community compound situated in the heart of the Philadelphia historical district, is an announcement to the Philadelphia a more bonding community, founded upon three distinct, yet connected ideas.

ARCHSt.

3rdSt.

The project explores the relationship between color and light, serving as a moving story that foreshadows a terrible past and an absence. The edifice is transformed into a storytelling canvas by purposeful manipulation of light and color palettes, drawing viewers into an immersive experience that goes beyond the actual confines of space. The play of color and light acts as a metaphorical language, evoking feelings and a sense of history that are reflected in the constructed shape.

Philadelphia
Historical District
Pre-existing Condition Fire Absence Yellow Stucco Wall Still Life
Site Diagram

The second concept focuses on establishing a collective or compound that emphasizes the centrality of spatial occupation. Areas are thoughtfully planned to promote a feeling of belonging and community. The architecture serves as a platform for social interaction, promoting teamwork and communication among residents. The proposal seeks to reinvent the relationship between people and their built environment by deliberately putting common spaces at the center of the design, creating a lively and welcoming ambiance.

Section
Concept models that tests centrality of spatial occupation
Arch St.

Concept

The final idea explores a compound that illustrates how function and program align. Every component of the architecture has been thoughtfully created to fulfill its specific purpose and blend in well with the overarching programmatic goal. This strategy guarantees the peaceful coexistence of many functions, encouraging effectiveness and clarity in the arrangement of space. The compound becomes an example of well-thoughtout design, in which each component is essential to the overall coherence and functioning of the architectural composition.

Perspective of Sunken Garden
Perspective of Library
Perspective of the Bridge
Perspective of Communal Kitchen

Working Class

College Students

K-12 Students

Example Schedule

Play in the rooftop garden (or the courtyard) Do arts and crafts Path Diagram Occupants Retired

Drink Tea and Socialize Arts

Cook Lunch in Community Kitchen Eat Learn in Learning Hub 6:00 PM 8:00 PM 9:00 PM

Read in Library

Settle down the day at the Tea Garden Life-long learning 10:00 AM 12:00 PM 2:00 PM

Do research in the Library or do assignments in Learning Hub Cook and Eat Lunch

Drink refreshing drinks

Continue studying or socializing 3:00 PM 4:30 PM 5:30 PM

Come back from school

Eat Snacks from the community kitchen

Diagram 7:00 AM 9:00 AM 11: 00 AM 1:00 PM 3:00 PM

Scenario

Communal cooking not only brings community together, but also shares knowledge on different culture, bringing more understanding to the diverse community that Philadelphia belongs in.

Tea drinking culture in each culture represents various types of reflection and socialization. Similar to communal cooking in this complex, tea drinking also brings community together by learning about each different culture, as well as providing time and space to interact with one another.

La Passata Italy
GimJang Korea
African Communcal Kitchen
Pitha Utshob Bangladesh
Communal Cooking
Afternoon Tea England
Touareg Morocco
East Asian Tea Ceremony Samovar Russia, Iran
Tea Ceremony
Diversity Diagram

This architectural concept essentially aims to go beyond the traditional bounds of design by fusing the stories of color and light, highlighting the importance of occupying space, and precisely lining up activities and programs. The architecture seeks to elicit feelings, promote community, and maximize usefulness through these interrelated concepts, resulting in a comprehensive and significant physical environment.

Section Through Courtyard
Arch St.
Adaptive Reuse, Originally built in 1920. Exterior Bricks

SPRING 2023 | ARCH 3020 STUDIO

INSTRUCTOR: JT Bachman

The Nest is an Environmental Studies Center for 5th and 6th-grade students near Walker Upper Elementary School, which also serves as a community center after hours of operation. The facility is specifically designed centered around flexibility, encounter, transparency, and the environment that surrounds the area.

(750-1000ElementaryWalkerUpperSchool ft)

Route (Highway)250
RoseHillDr.
Small Creek
CrowRecreation Center
GreenleafPark

The complex is composed of clustered buildings around a courtyard covered by a big glass structure. This courtyard space serves as a hub where the majority of circulation happens, along with a lot of interaction. The main staircase not only connects the building to the building but also acts as an interaction space through its social stairs.

The core of the main building is the central atrium space, which allows visual connectivity among the floors and light diffusing from the skylight. Visual connectivity was necessary in this building since different types of learning happen on each floor, and it was critical to emphasize learning could happen on different levels by connecting them visually.

Lighted Atrium
Flexible Public Space with Easily Movable Chairs
Lighted Atrium Perspective
Back of Social Stairs Perspective Cafe
Social Stairs Perspective
Social Stairs Mixture of Social and Environmental Interaction
Tana Wall Thick Wall with Subtracted Area for Private and Individual Studies

Situated Indoors

One of the critical parts of this complex is the interaction with the nature. There are four types of space in this complex. Outdoors, covered outdoors, conditioned outdoors, and indoors. Each space could be sued for different purposes based on the needs and advantages of each space. The conditioned space, specifically the courtyard also serves as a space which generates stack effect and venturi effect. When the air gets heated in hot summer day, it rises and by letting them out on the top of this high structure, and with the help of social stairs, the glass courtyard will generate natural air circulation with help of the social stairs. Venturi effect would also happen due to the narrow opening that makes a pathway to all cardinal direction, which also promotes open access to neighborhoods. By controlling the pathways, airflow will naturally cool down the atrium in hot sunny days, and warm up the space with the aid of greenhouse effect.

Outdoors
Covered
Outdoors
Indoors
Types of Environment Explored in the Nest
Stacks Effect Diagram
Louver Glass Feature

Memories Thought Advance

Fall 2022 | ARCH 3010 STUDIO

Memory Thought Advance, an interactive natural history museum for children, is a cenotaph for the connectedness of the past, present, and future of the Anthropocene. While each floor is composed of a different “era, “as humans have defined, the continuity of time is represented through the atrium that connects and ensures the communication and connection of those floors. The entire building is a manifestation of time, and interwoven nature of the floors highlights the character of the time.

New York, where this project is situated, is a hub that people from different parts of the world integrate, sharing ideas on knowledge, culture, and religion, which induces further development and innovation. This connection among people from different background could be facilitated through education as a medium.

Concept Collage

Initial Model and Program Collage

Occupants can take the elevator, which symbolizes technology and education in this cenotaph, to get to the top floor. They could reach the origin of the Earth, which is located near the sky and space. As they move down the building, they get closer and closer to the present time, where they exist. Then, they move into the floors of the future, where children can make their own artifacts and leave marks in Anthropocene history. The journey’s final destination is the auditorium - the basement - which represents Earth, the genesis of the whole history. This journey ends with a cyclical cycle.

The Garden

SPRING 2022 | ARCH 2020 STUDIO

INSTRUCTOR: Maria Gonzalez-Aranguren

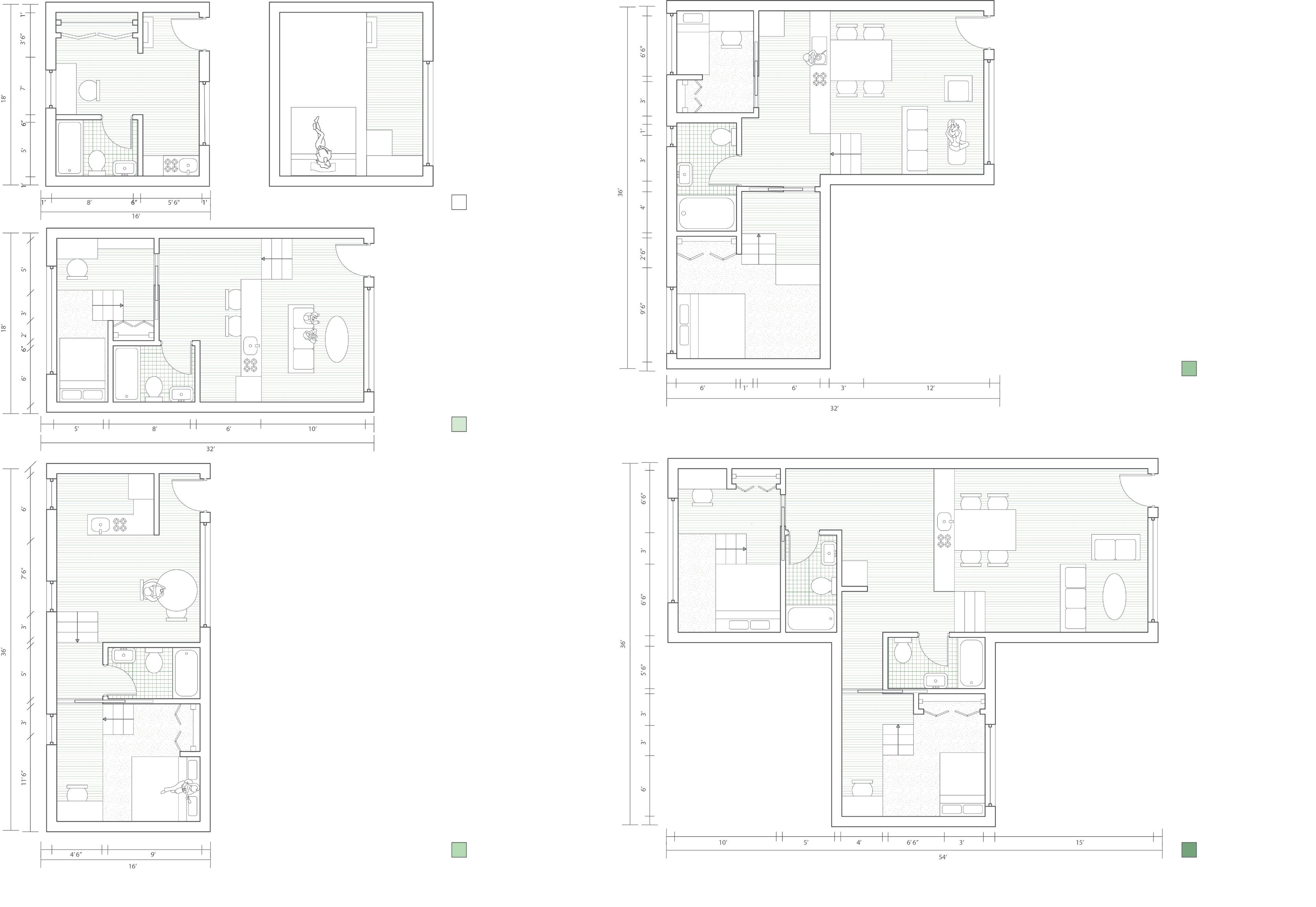
The Garden is a housing project, situated in Scott’s Addition in Richmond, VA. The complex contains 35 units composed of five different types of units. Each of the units, despite each of them being designed for different living types, share similar strategies of addressing the live-work environment through elevation difference, and safety of the neighborhood.

Total number of units: 30 units

Typical unit area: 53.5 m2 (576 sqft)

Built FA: 1471.5 m2 (15,840 sqft)

Built-up area: 2381.3 m2 (25,632 sqft)

NSheppardSt.
Sheppard St.
W Clay St.
Studio Apartment
Apartment with 1 Room
Apartment with 1 Room
Apartment with 1.5 Rooms
Apartment with 2 Rooms

Turn static files into dynamic content formats.

Create a flipbook
Issuu converts static files into: digital portfolios, online yearbooks, online catalogs, digital photo albums and more. Sign up and create your flipbook.
Kang, MinJi - 2025 Spring Portfolio by Min Ji Kang - Issuu