





Sailing is thriving on Lake Minnetonka, and we are just getting started. The sport’s growing popularity has outpaced the capacity of our undersized and deteriorating building on Lighthouse Island, which has served us since 1944.

$10M
The time has come to update and improve our space. By supporting the Lighthouse Island Development Project, you join a community of leaders dedicated to preserving the legacy of sailing on Lake Minnetonka and shaping its future.
To recognize your contribution, donors have access to: naming rights to the building and its important spaces, special event invitations, and insider updates.
More than just a building it is an investment in a beacon of education, community, and the competitive spirit. Your generous financial support of this project ensures our sailing school and yacht club will continue to thrive for generations to come.

Our vision is to foster a vibrant and inclusive sailing community—for all ages and abilities—that celebrates the spirit of adventure and connection. By nurturing a passion for sailing and strengthening bonds within the sailing community, we aim to inspire generations to embrace the challenges, lessons, and joys of the sport on Lake Minnetonka—and beyond.

Sailing teaches skills necessary for lifelong success: critical and creative thinking, independence and teamwork, self-confidence, resilience, and communication. Beyond learning the mechanics of sailing a boat, the sport teaches physics, mathematics, and meteorology. Sailing is a lifelong sport and fosters the pursuit of learning new skills from youth to adulthood.

The thrill of competitive racing is our central focus. Racing instills the will to win, but also good character and sportsmanship, incorporating complex rules of fairness and civility. These lessons can be applied to all areas of life.

Community is at the heart of our identity. A place to connect, have fun, and get out on the water. Sailing is an intergenerational sport where sailors age 7 to 70 and beyond can compete in the same race, and even on the same boat. We celebrate the grandparents, parents, and veteran sailors who pass on their skills and insights, while new sailors of all ages are welcomed and encouraged to try out the sport and become part of the community.

Dedicated to promoting and supporting sailing, we create a culture of passion for the sport of sailing, skill development, and community on and off the water

A beacon of the community, fostering personal growth and celebrating sailing camaraderie.

We are both a literal and figurative lighthouse for the community to enjoy Lake Minnetonka. We encourage sailors of all levels to learn and grow through exposure to top-talent sailing instructors and regional, national, and international sailing experiences. It is a place to gather, connect, learn, and grow as individuals and collectively as a sailing community.

For more than a century, our Sailing School and Yacht Club have created spaces for education, competitive racing, and community for sailors of all ages and backgrounds Together, we’ve fostered a love for sailing, teaching the values of teamwork, discipline, and respect for the water.

MYC is founded, making it one of the oldest yacht clubs in the country.
Led by Don Zinn, Brad Van Ness, and Bradley Robinson, LMSS becomes a separate non-profit organization.
Billy Allen wins a gold medal at the 1972 Summer Olympics in Munich.

City of Deephaven is incorporated.
Gordy Bowers is Head Coach at the 1988 Summer Olympics in Seoul.



LMSS is started when MYC members were interested in organized sailing education for their children.
Awarded US Sailing One Design Regatta of the Year E Scow Nationals.

1943
Original clubhouse burns down; current building is built in 1944.
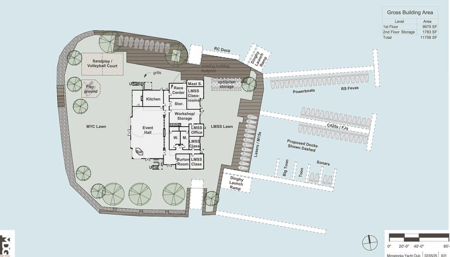
A modern facility designed by Momentum Design Group is ready to accommodate our Lake Minnetonka sailing community.


The advanced technology seen at the highest levels of sailing such as SailGP, the America’s Cup, and the Olympics has become increasingly accessible to the broader sailing community in recent years As a result, LMSS has embraced these tools, making them standard practice in our program.

Technology has transformed how we teach at LMSS, and this is only the beginning!
Sailing classes include: Little Skippers; Learn to Sail Prams, Fevas, and Optis; Learn to Race/Race Team Optis, X Boats, 420s, and Lasers; STEM & Sailing; Adaptive Sailing, Women on the Water, and more! We are also home to the Minnetonka, Eden Prairie, Blake, and Breck High School Sailing Teams
Racing fleets include: A Scows, E Scows, C Scows, MC Scows, Ynglings, Catamarans, Lasers, X Boats, Optimists, 420s, Melges 15s, and the Open Fleet.
New in 2025! We are offering two Learn to Sail classes in Spanish to complement the strong language immersion program in our community’s school district
We are also excited to further expand our use of technology New tools, such as GPS tracking through sailors’ smartphones and Vakaros compass units, will allow us to analyze detailed performance data after every sailing session. Paired with video footage from coach boats, drones, or onboard cameras, this data will provide an unparalleled learning experience for our sailors and coaches.

Optimize our iconic location and construct a versatile, sustainable, and modern facility that will:




A new building will enable us to accommodate new technology and our increased number of students and sailors. This will include advanced courses and programs for all ages, and more access for people with disabilities.
By creating suitable educational spaces, we can foster the next generation of competitive sailors, helping them develop the skills and character needed for success on and off the water.
This ADA compliant facility will enhance member experience, providing larger and more comfortable spaces for members to gather, host events, and enjoy the fellowship that has defined our community for generations.

A new facility ensures that our institutions remain a beacon of sailing excellence and community for years to come.

Built in 1944, our facility has outlived its life expectancy. The time has come to create a home that reflects the excellence we strive for in our sailing programs and supports the vibrant fellowship that forms the heart of our sailing community.
While rich with history, our current facilities no longer meet the evolving needs of our growing membership and the increasing number of students who wish to experience the joy of sailing. We may have the best piece of real estate in Minnesota, but our limited space and outdated infrastructure are holding us back from reaching our full potential.
Today, we face an extraordinary opportunity to build a facility that will not only serve our immediate needs but also ensure our institutions thrive for future generations.
Will you join us in this transformational journey to ensure the future of sailing on Lake Minnetonka?


MODERN CLASSROOMS & FACILITIES
BETTER BOAT STORAGE & ACCESS
EXPANDED CLUBHOUSE & EVENT SPACE



These improved and increased spaces will allow for a more dynamic learning environment with the latest sailing technology for students of all ages and abilities.
With more space for boat storage and new access points, functionality and design of the island facilities will be optimized.
Maximizing our iconic location and offering sweeping views of the water, this will be the perfect setting for club events, social gatherings, and sailing competitions


P l a n
L i g h t h o u s e I s l a n d





$10M
$3M $7M
Estimated building cost
To establish an operating endowment
To ensure the sustainability of this investment, our goal includes an endowment to offset maintenance of our fleet and new facility.
End date of building fundraising
Construction begins, on condition that fundraising goal is met
2027
Construction completed





Help teach thousands of youth and adults the skills needed for success: Critical & Creative Thinking
Teamwork & Communication
Self-confidence & Resilience
Decision-making & Problem-solving
Shape the future of sailing in our community: Your support will bring this project to life and equip us to meet our current and future needs.
This is more than a building it is an investment in a beacon of education, community, and the competitive spirit. For the sport and legacy of sailing on Lake Minnetonka to endure, we must be well-equipped to foster the next generation of sailors. Your generous financial support of this project ensures our sailing school and yacht club will continue to thrive for generations to come.

“
What we teach at LMSS is beyond sailing skills. We teach decision- making, responsibility, a lot of discipline, and commitment all things that you're going to need for life. The kids don't realize it, but that's what we are teaching, and that's what motivates me at the highest level. We teach the basic qualities you need for success.
-







