MING YIN
ARCHITECTURE PORTFOLIO
MARC II. UNIVERSITY OF TORONTO SELECTED WORK 2022-2024
/// ADAPTIVE RESUE CULTURAL CENTER DESIGN
/// A ROOM OF MEMORY
TERRAFORM
THE STRIP
/// ADAPTIVE REUSE OF HERITAGE BUILDING

![]()
MARC II. UNIVERSITY OF TORONTO SELECTED WORK 2022-2024
/// ADAPTIVE RESUE CULTURAL CENTER DESIGN
/// A ROOM OF MEMORY
/// ADAPTIVE REUSE OF HERITAGE BUILDING

/// UNIVERSITY OF TORONTO STUDENT RESIDENCE
TYPE: DORMITORY
LOCATION: GLEN MORRIS ST, TORONTO, ON
COURSE: ARC362
PROFESSOR: JON CUMMINGS
APRIL, 2022

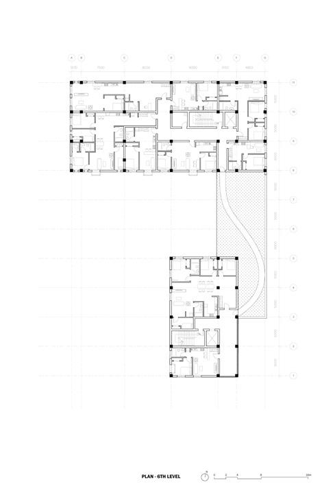
The student residence proposal accommodates 350 beds/bedrooms with amenities and two main unit types: single and double room. Distributed along single and double-loaded corridors, the units’ orientation prevents each other from invading privacy while allows greatest lighting condition.
The design kept the heritage facade of the building and take use of the openings for multiple entrances for different population. A cafe was designed on the ground floor connected with the student dining hall, with seperated entrances from the lobby of student residential area. Library and study rooms were located on the second floor and social spaces were distributed evenly on each floor with gyms, kitchen and study lounge.
Two courtyards were designed on the ground and third floor of the building, one for the public and one is residents-only. And a transparent step-stair corridor was designed on the middle axis of the building, building up a main circulation axis and more opened indoor space with better streetview and greenery.

The public areas are located in the middle axis of the building, with corridors and aligned residential units extending to both sides. Distribution of stairs and elevators meet the needs of fire evacuation and circulation.
Step-stair design covered with glass in the middle: create more transparent space and light at the hub of the more unified structure of the central circulation, and further increase the diversity of space functions and undertakings.














TYPE: TOURISM AND RESIDENTIAL
LOCATION: SPELLO, ITALY
STATUS: COMPETITION
DECEMBER, 2022
TILI WINI WINERY GUEST HOME


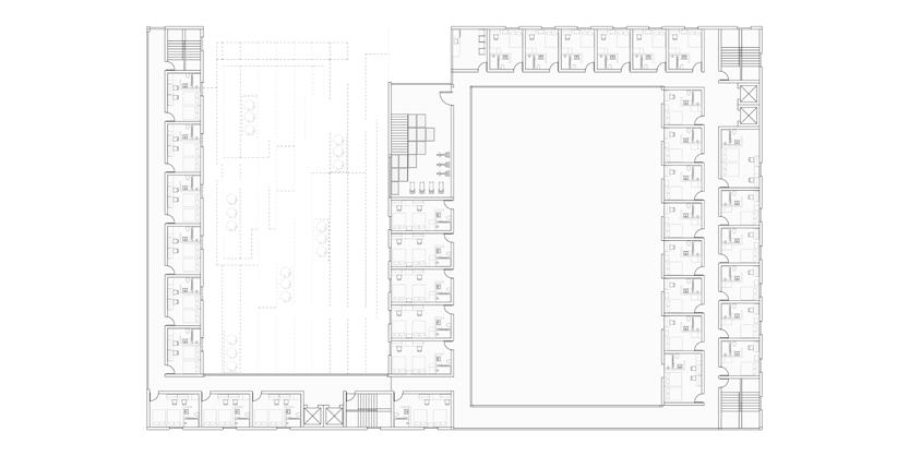
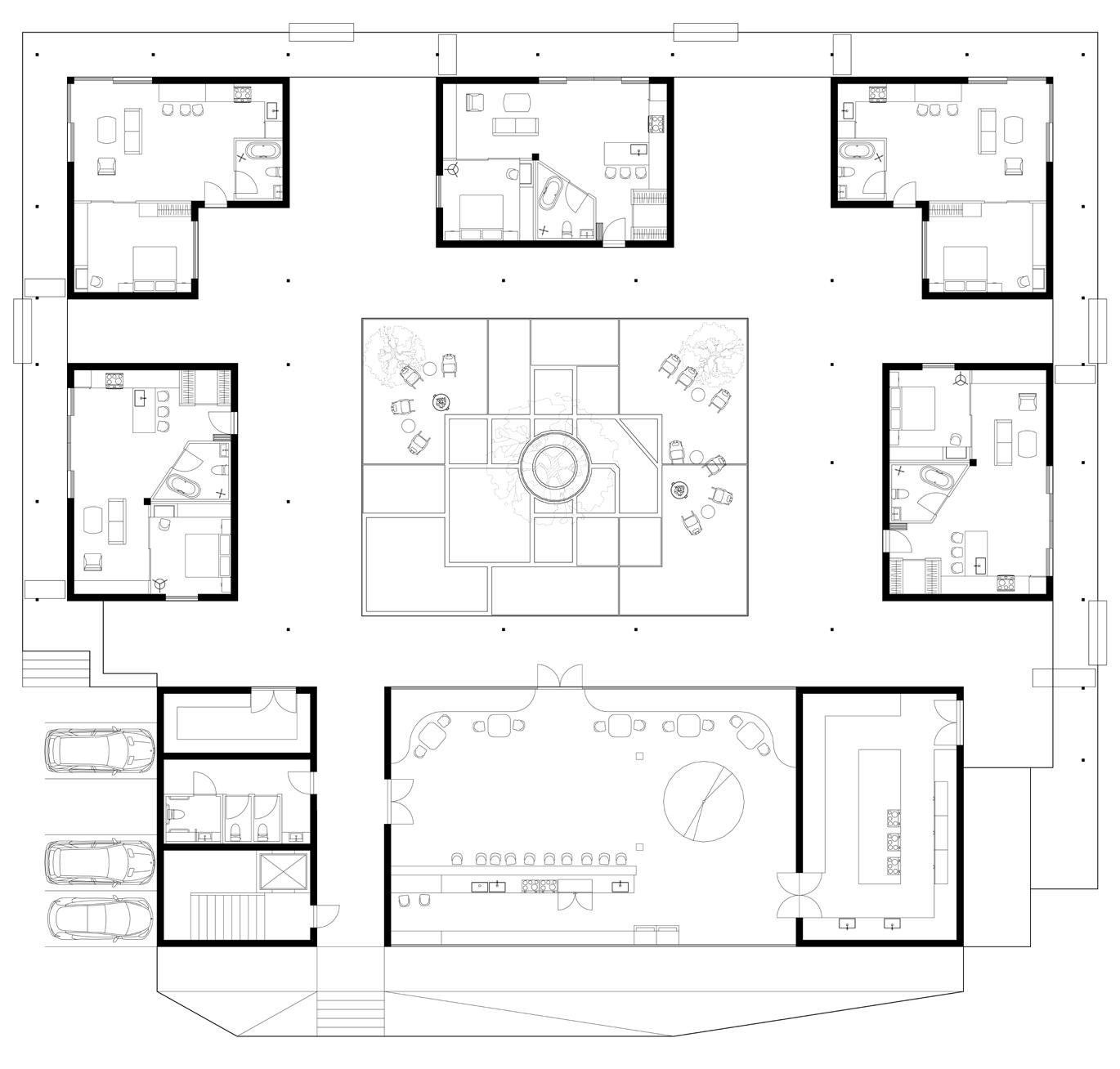
Realizing the historical and cultural root of which the winery is founded upon, the layout of the guest homes takes the form of the traditional Italian villas, where a central courtyard, accompanied by surrounding LOGGIA pathways generates an intimate space that protects the residents from the exterior, while encourages social interactions within. By extending the loggia outward beyond the boundaries of the buildings, the threshold condition contributes to the smooth transition between the outdoor nature, the social space, and the individual guest homes.
All the guest homes are oriented outward. While the back surrounds the central courtyard forming the positive social space, the orientation of each guest home is kept away from another, ensuring maximum view and privacy.
We offer 5 one-floor cottages (2 different types) as residence for the guests where they can do some basic cooking and wine tasting. For the public tasting area, we design an enclosed space on the ground floor and an open space on the upper floor to meet the needs of different guests in different circumstances, with the view of the surrounding landscape open to the maximum extent. Besides, an underground small storage space is located under the main space of tasting area, which can store the owner’s products while act as a displaying room to show the history and proven winemaking skills of Tili Vini.











/// CRAWFORD LAKE INDIGENOUS ART CENTER
TYPE: ART CENTER
LOCATION: CRAWFORD LAKE, TORONTO, ON COURSE: ARC1012
PROFESSOR: ANNE-MARIE ARMSTRONG APRIL, 2024


The design of this museum draws inspiration from Ursula Johnson’s basket-weaving performance, where materials encapsulate memory and spirit. In a similar way, this architecture seeks to preserve and embrace the site, letting it tell its own story. Just as Crawford Lake’s waters wrap around and protect the history within, the building’s form follows the land, integrating seamlessly with the existing visitor center, trees, and sloped terrain. Instead of cutting into the site, the design respects its topography by shaping the floor plates to follow the natural height differences, creating a smooth transition between architecture and landscape. This approach allows the building to "hug" the land, embedding itself within the site's existing conditions without erasure or disruption.




In terms of program, the design emphasizes gathering and storytelling through spatial organization. Inspired by the spiritual fire of Indigenous cultures, the primary spaces take on circular forms to foster a sense of community. These spaces, along with those of the existing visitor center, are then wrapped in a fluid, curving form reminiscent of water’s movement. The exhibition and event spaces all face east toward the lake, incorporating a fireplace and skylights that introduce a single dramatic light source. To balance openness with the need for fire safety, a double-layered facade system is introduced—large glass panels as the inner layer, and operable solid panels as the outer, allowing for flexible enclosure and controlled views of the landscape.





DOWNSVIEW URBAN PLANNING
TYPE: URBAN DESIGN
LOCATION: DOWNSVIEW, TORONTO, ON COURSE: ARC2013
PROFESSOR: SAMANTHA EBY
TEAMMATES: NOUR FAHMY, TIMOTHY SORIBELLO DECEMBER, 2024


The Strip explores the role of open spaces in urban settings, questioning what draws people to gather and how design can foster connectivity, inclusivity, and a sense of community.
Through a carefully designed framework of the strips, each with distinct functions and typologies, we have created a dynamic and adaptable environment that encourages diverse social, cultural, and economic activities.
This approach not only accommodates the growing needs of the population but also strengthens the collective identity of Downsview, making it a vibrant and welcoming destination for all.



















TYPE: CULTURAL CENTER INTERIOR DESIGN
LOOCATION: CAOZHUANGYUAN STREET, GUIYANG, CHINA
STATUS: BUILT
OCTOBER, 2023
/// ADAPTIVE RESUE CULTURAL CENTER DESIGN

The Zhuangyuan Tang (Z.Y.T) is an immersive cultural space that brings the life and legacy of Cao Weicheng, a Qing Dynasty top scholar, into the present through VR and AR technology. This project transforms an existing restaurant into a hybrid exhibition space, integrating VR experience zones and AR-enhanced displays to recreate the grandeur of the Cao family residence and the cultural customs of the era. While preserving the original architectural structure, the interior has been reorganized and redefined, drawing from research on traditional Siheyuan (courtyard houses) to select the most appropriate materials. The result is a space that blends past and present, offering a uniquely immersive exploration of Chinese Zhuangyuan (top scholar) culture.



Construction drawings for material, assembly and facilities.
The material were chosed based on research on traditional Chinese architecture. It aims to present the heritage of Chinese architecture in a modern way, incorporating AR and VR techniques.




TYPE: MODEL MAKING
LOOCATION: /
COURSE: ARC1012
INSTRUCTOR: ANNE-MARIE ARMSTRONG
TEAMMATE: SIMON NEWBIGGING OCTOBER, 2023


Saw Horse
Top: Left to Right
1:20 saw horse made from mat board
1:20 material test saw horse made wire mesh and clay
1:20 hand cut wood saw horse made from soft wood
1:20 hand cut saw horse made from hard and soft woods
Bottom:
Assembly parts for saw horse
Traditionally, Mi’kmaw basketry was made of leaves and grasses and was used to carry goods and belongings. It was the arrival of Europeans and the introduction of their tools and technologies that changed the materiality, form and purpose of Mi’kmaw basketry. And now, like many Indigenous traditions and languages, the craft of basket-making has become rare through the cultural genocide executed by the Canadian government.


Furthermore, with the arrival of the emerald ash bore (through global trade), the Ash trees used in Mi’kmaw Basketry have become endangered, further threatening the craft. Our room takes inspiration from Johnson’s ideas of encapsulating the memory or spirit of the basket and transfers this to the memory of the material. The outer shell of our room is created from the impression of logs, assembled to resemble an upturned tree. The tree is present and absent, reflecting the disappearance of the Ash tree and one facet of the effects of settler colonialism on the environment and, in turn, Indigenous materiality and practices. Inside, offset from the outer shell, is a lashed wooden structure. This space contains the artwork and provides space for the performance. The geometries produced by the lashed wooden structure are meant to reflect the patterns in weaved baskets. The area between the structure and the shell serves as a space for viewership and reflection. Pieces of the structure reach out and connect back to the shell, tracing the impressions of larger branches, tracing the shift from the organic to the highly geometric. This signifies the relationship between the material and the craft, the tradition and the settler effects upon it. Viewers within the space are forced to confront these topics, towards the center, the effects of settler colonialism have had on Indigenous peoples and their culture, and to the outside, the effects on the environment and nature.














TYPE: PUBLIC AND RESIDENTIAL
LOCATION: 283 OSSINGTON AVE, TORONTO, ON
COURSE: ARC2014
COMMUNITY CENTER & AFFORDABLE HOUSING
TEAMMATES: JOOYOUNG LEE IN PROGRESS IN PROGRESS
PROFESSOR: DANIEL CHUNG





The design for the West neighborhood community center with affordable residential units is designed to be more than just a building—it’s a stage for interaction, joy, and connection. Playfulness is at the heart of the design, fostering a sense of belonging for all generations, from children to the elderly. By integrating interlocking massing and push-pull moments in the façade, the architecture creates dynamic shared spaces that blur the boundaries between public and private life. These sculpted forms provide inviting public areas, playful balconies, and generous windows, encouraging spontaneous encounters and shared experiences. In doing so, the building becomes an active participant in neighborhood life, bringing people together through spaces that inspire curiosity, engagement, and joy.

TYPE: PUBLIC AND COMMERCIAL
LOCATION: XIN’AN, XIAMEN, CHINA
STATUS: TO BE BUILT IN PROGRESS IN PROGRESS
ADAPTIVE REUSE OF HERITAGE BUILDING
The project is deeply rooted in Minnan culture, where traditional architecture reflects a strong connection between people, land, and heritage. The design focuses on the roof as the central element, using overlapping and interwoven forms to create spatial continuity, dynamic circulation, and layered experiences. Inspired by the concept of “Yanxu” (the sequence of eaves), the project seeks to preserve the cultural significance of Minnan’s distinctive red-brick structures and deep eaves while adapting them for modern communal and commercial functions.



STEP 1: removing later additions to restore historical proportions
STEP 2: connecting rooftops to form a walkable network
STEP 3: integrating open corridors

The design fosters a seamless blend of tradition and contemporary urban life. The program is structured around three core spaces: a dining experience that combines rooftop gatherings and teahouses, a creative hub for local artisans, and a cultural exhibition space that engages visitors with immersive storytelling.