Undergraduate Arch. Portfolio

Page 1

portfolio JONATHAN HALL SELECTED WORKS| 2021-2023
/CONTENTS

Scholarly spaces

USM Science Village | Oceanography | Hydrography

Long Beach, Ms

Interpretive Center

Fork of the Road | Trans-Atlantic slave trade museum

Natchez, Ms

Connections

Wood museum | Wiggins, Ms

Urban Design

Shotgun House | Midtown Square-Hattiesburg, Ms

Pimienta

Orthographic drawing (pepper project)

Public Spaces

Lake Thoreau Pavilion | Hattiesburg, Ms

02
03 04
05
06
01
01

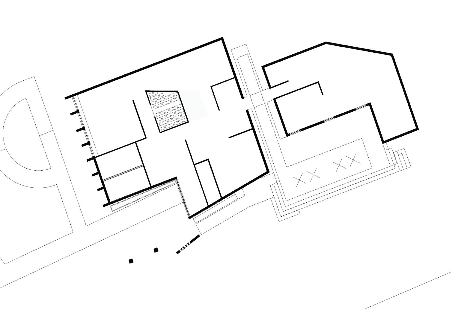
SCIENCE VILLAGE

spring 2023 | long beach,MS

The project consist of two science buildings for university of southern miss. programs oceanography and hydrography. The structures will accommodate 2 high tech labs, 2 high tech classrooms, boat storage below, student common areas and study spaces, administrative offices in each building and an event space with sky bridge connection on third levels to connect building for enjoyment of green roof and planned garden. The concept behind the design is to maintain the existing esthetic on campus of the mission revival style. While maintaining this design there will be an incorporation of modern touches throughout. The building structure is constructed of mass timber, and the exterior envelope utilizes EIFS.

First Floor 1. Lobby 2. Classroom 2A. Classroom (Saferoom) 3. labatory 4. Restroom 5. Administrative 6. Student commons 12. Boat Storage Second Floor 2. Classroom 4. Restroom 5. Administrative 6. Student Common Area 13. Conference Room 14. Study Room Third Floor 1. Lobby 7. Event Space 8. Kitchen 9. Elec./Mech. 10. Sky Bridge
1 2A. 2 3 3 12 3 3 1 5 4 4 6 6 5 14 5 2 14 2 6 4 4 14 13 9 9 1 11 10 8 1 9 9 7 3 4 5 6 4
11. Green Roof/Garden
02

FORK OF THE ROAD

FALL 2022 | Natchez,MS

An Interpretation center for dissemination of knowledge of natural or cultural heritage. The objective being to create feeling with light and space. Design an atmosphere to attribute to the emotion of the space. Projecting empathy for those once objectified and owned. The Forks of the Road Market was a slave market in Natchez, Mississippi. It was largely developed by John Armfield and Isaac Franklin, who in 1833 capitalized on the difference in slave prices in the middle Atlantic states of Virginia and Maryland and the deep south. The centers design incorporates 4 aspects of the slave trade the; (Forgetting tree) used to disorient slaves before shipment. (Door or no return) dark entrance into a dark life ahead but allowing peaks of light in remembrance of a brighter life left behind or day to come. (Barracoons) enclosures in which slaves were confined. (Triangles) interior for structural and exterior, a pyramid mounment representing strength possessed by slaves enduring slavery.

FORGETTING TREE TRIANGLES (INTERIOR/EXTERIOR) BARRACOON N LIGHT SPACE SHADING

The Charcoal illustrations explore concept of light in space and how it may be used to invoke the emotion of sadness and darkness in relationship to the dark history of the slave trade site and museum

Concept
17 E I
A. Forgettign Tree B. Entrance (Door of No Return) C. Boutique Windows D. Barracoons E. Exhibit F. Middle passage G. Exhibit H. Monuments
C F B H D G A
I. Exit way
03

Connections

Fall 2022 | Wiggins,MS

The museum structure TREE FORT is derived from the aspect of a trees layers. The outer wall representing the bark, the exterior protection a tree possesses. The textures and colors of the exterior wooden wall are representation of the bark with its deep, dark and rough first layer. moving through to inside you experience the soft, light, new layers. The forms of each building utilize the compression and expansion principle in similarity to the material wood. The objective of the project is to create a distinctive yet non-invasive structure and space for the city of Wiggins. Connecting and encouraging travelers to stop in and explore the history of the town and its contribution to Lumber industry. The structures are to be comprised with a large use of Lumber, and Mass timber both exterior and Interior. A majority of the material sourced through the citys local industry and small business.

wiggins wood museum
Start Expansion Compession

Wood museum

1. Lobby 2. Receptionist/Tickets 3. Exhibit 4. Conference 5. Storage 6. Office 7. Electrical/Mech. 8. Media Cafe 1. Dining 2. Cashier 3. Kitchen 4. Corridor 5. Storage Wood Shop 1. Lobby 2. Wood shop 1 3. Wood shop 2
1 3 4 2 6 8 7 5 1 2 5 4 3 1 2 3 4
4. Material storage/delivery
04

Veil-house

Urban build: Shotgun house Spring 2022 | Hattiesburg, MS

Compact home

Student living / flex spaces

Horizontal homes

Frontage

Urban development

Walkability

FIRST FLOOR PLAN 1. Porch 2. Living 3. Kitchen 4. Dining 5. Stairway 6. Flex space/Rental SECOND FLOOR PLAN 1. Balcony 2. Storage 3. Stairway
Precast concrete walls act as veils allowing for privacy and noise reduction in a Compact environment. 1 2 4 5 6 3 1 2 3 4
4. Bedroom

Spring 2022 | USM STUDIO II

Five orthographic projected views drawn and rendered of a pepper. The pepper was drawn to scale using drafting techniques incorporated in architectural plans. Project requirement: Use of orthographic principles such as elevation, section, and plan, use of line weights and drawing layout skills. Use of gray scale study and construct rendering using tones on gray scale.

28 Orthographic projection
05
pimienta

Lake Thoreau

Public spaces

Fall 2021 | Hattiesburg,MS

The design and form concept of the pavilion was inspired by the interest of abstract art and modern Architecture. The curves and flow of the pavilion have been designed to help flow into nature. The structures sides utilize a recycled plastic and the rooftop recycled metal. The sides have been slightly exposed exhibiting the wooden support beams for structure allowing visitors to continue to enjoy the sounds and beauty of nature around them. The structure sits nestled at the top of a hill with small sitting holes placed in Front for a private and intimate experience with nature. Located above the sitting holes are walkouts for others to stand or sit and enjoy a view of the environment and Lake.

06

Turn static files into dynamic content formats.

Create a flipbook
Issuu converts static files into: digital portfolios, online yearbooks, online catalogs, digital photo albums and more. Sign up and create your flipbook.