COLEGIO DE PREPARACIÓN INNOVADORA ATIQ


![]()



CURSO: ARQUITECTURA Y EQUIPAMIENTO METROPOLITANO
CATEDRÁ :
ARQ. MTRO. Fred Jesús Huamán Rojas.
ARQ. MTRO. Victor Panduro Hoyos.
ESTUDIANTE: MILUSCA NOEMI CABRERA GRÁNDEZ


932566349
Cabrera.grandez@gmail.com
Cabreragrandez.milu
Tarapoto-Perú



Colegio Particular San Juan Bosco
UNIVERSIDAD CESAR VALLEJO



Proactivo Empatía
Disciplinado
Respetuosa

Español
Ingles - Medio



Autocad Sketchup
Twinmotion

Hola, soy Milusca Noemi Cabrera Grández, estudiante de arquitectura de VI ciclo en la Universidad César Vallejo.
Gracias a los estudios realizados en la universidad he podido complementar los conocimientos adquiridos por el trabajo de mi padre que es ingeniero civil.
He logrado ubicarme mejor en lo que es espacio y funcionalidad.
Al realizar este trabajo me enfoque en:
Cumplir la necesidad de los usuarios.
Transmitir comodidad para el exterior, tanto como interior.
Realizar una arquitectura sostenible.

● Código QR del proyecto
● Ubicación geográfica
● Plano de Ubicación, Topográfico con cortes topográficos y Perimétrico
● Conceptualización
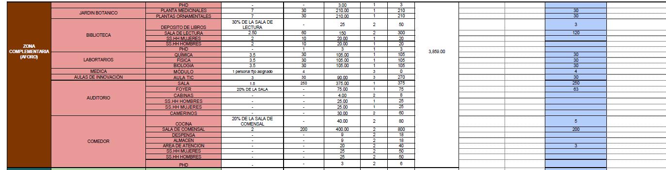
● Análisis funcional (Zonificación inicial, zonificación arquitectónica, Organigrama, Flujograma, Programación Arquitectónica (cada uno en cada cara)
● Análisis formal (Composición del proyecto)
● Análisis tecnológico (Asoleamiento y viento)
● Plot Plan
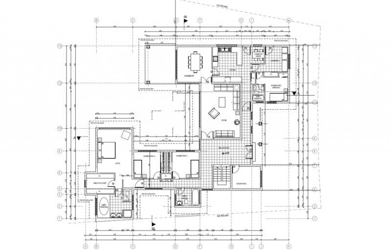
● Planimetría de pisos y techo
● Plano de vegetación o áreas verdes (Tipos de vegetación)
● 4 cortes generales (2 transversales y 2 longitudinales)
● 4 elevaciones generales (A, B, C, D)
● Ampliaciones 2 ambientes
◦ Planimetría
◦ 2 cortes
◦ 2 elevaciones
◦ Detalles de mobiliarios
● Malla estructural de 1 bloque + detalles de columnas y vigas
● Anexos fotográficos.





Las formas geométricas, representan:









Resalta la repetición y organización de módulos que se conectan entre sí, destacando una estructura que se percibe como una suma de partes similares.
Indica como la estructura se divide en partes que se separan, enfatizando la independencia entre los volúmenes.
Describe como el volumen parece estar compuesto por partes diferenciadas.
Enfatiza, la interacción de los volúmenes entre sí.







































