Milena Stanojevic | PORTFOLIO

Page 1

PROJECT STATUS: Completed | Year 2020

SCOPE OF WORK: Design development & Fit-out

LOCATION: Villaggio Mall | Lusail | Qatar

AREA: 3000 sqm

PROJECT TYPE: Commercial / Fitness

PROJECT ROLE: Site supervision and team leader

Project Role: Project coordinator & design leed. Coordinates work with site engineers at project site. Reviews and approves drawings before exacution on site and oversee construction works.

MATERIALS USED

ACRYLIC PERFORATED STEEL DECORATIVE PAINT

CATEGORY: F & B VO2 GYM PORTFOLIO MILENA STANOJEVIC
VO2 Gym at Villaggio Mall is 3000 sqm gym with separate Male and Female entrances. Turning one old gym into a new and modern space during the renovation process with new facilities such as changing rooms with sauna, jacuzzi, beauty salon, massage rooms, and different types of studios (megaformer, cycling, boxing studio, bootcamp, antigravity).
CATEGORY: F & B VO2 GYM PORTFOLIO MILENA STANOJEVIC
COLOR PALLET USED EMPIRE YELLOW COBALT BLUE GRAY LILAC TURQOISE BLUE PINK COSMOS ORANGE TANGELO

PROJECT STATUS: Completed

SCOPE OF WORK: Design development & Fit-out

LOCATION: Vendome Mall Lusail Qatar

AREA: 1150 sqm (LG+G+FF)

PROJECT TYPE: Commercial / Retail

PROJECT ROLE: Project Coordinator | Managing project from start to end

Project Role: Project coordinator - Managing project plan, team goals and project schedules. Supervise project and coordinate all team members. Lead development of the project from concept design to execution on site.

Project challenges

Installation of a 15m high marble facade and glass spider facade with 6x3m dimensions of the glass piece.

MATERIALS USED

MARBLE GLASS WHITE PAINT

CATEGORY: RETAIL APPLE STORE PORTFOLIO MILENA STANOJEVIC
CATEGORY: RETAIL APPLE STORE PORTFOLIO MILENA STANOJEVIC

PROJECT STATUS: Completed Year 2020

SCOPE OF WORK: Design & Fit-out

LOCATION: Gate Mall Qatar

AREA: 300 sqm

PROJECT TYPE: Food & Beverage

PROJECT ROLE: Interior Designer and site architect

An artistic intervention of the existing space with the new interior concept. Plays of color, contrast, and composition, reinterpreting raw and classical interiors with modern and artistic pieces. Using a different type of lighting to create desired abience space including bespoke chandelier installation that brings color to the central communal table.

Project Role: Interior designer & Project manager. Manage key stakeholders and monitor progres of the project.

MATERIALS USED

BRICK CONCRETE PAINT

TEXTURE

WALL CLADDINGS

CATEGORY: F & B NEO RESTAURANT PORTFOLIO MILENA STANOJEVIC

PORTFOLIO MILENA STANOJEVIC

LEGEND

26.11.2020 | 7 1 2 5. 5 LEGEND 1. 3. TEL: +974 4411 7724 FAX: +974 4411 7725 P.O. BOX: 55947 DOHA QATAR QATAR@BLUEPRINTME.COM WWW.BLUEPRINTME.COM KVADRAT/HERO/0931/wool **All materials to be approved upon sample delivery TEL: +974 4411 7724 FAX: +974 4411 7725 P.O. BOX: 55947 DOHA QATAR QATAR@BLUEPRINTME.COM WWW.BLUEPRINTME.COM ITEM DESCRIPTION: MODEL NUMBER: MANUFACTURER: STATUS COMMENTS: Application Area: Height: Width: Depth: Seat height: Seat depth: Arm height: Seat fabric: Back fabric: Base material: Decorative items: Notes: TECHNICAL SPECIFICATIONS: ITEM PICTURE MATERIALS Black metal; Wool CODE: F-01 36 unit Dining chair type 1 **All materials to be approved upon sample delivery Arrmet www.arrmet.it TEL: +974 4411 7724 FAX: +974 4411 7725 P.O. BOX: 55947 DOHA QATAR QATAR@BLUEPRINTME.COM WWW.BLUEPRINTME.COM MODEL NUMBER: DIMENSION: WEBSITE: Application Area: Height: Width: Depth: Seat height: Seat depth: Arm height: Seat fabric: Back fabric: Base material: Decorative items: Notes: TECHNICAL SPECIFICATIONS: CHAPTER 2: LOOSE FURNITURE ISSUE DATE: DECEMBER 2020 REF #200917 NEO @ THE GATE MALL MATERIALS CODE: F-02 H 780mm W 550 D 530 Arrmet Strike Dining area 780mm 550 530 470mm 530mm 620mm Wool in green Wool in green Black steel frame; Seat and back Flame-retardant polyurethane foam FRANCO FABBRI/St.Moritz/108/wool Black steel **All materials be approved upon sample delivery www.arrmet.it Application Area: Seat height: Seat depth: Arm height: Seat fabric: Back fabric: Base material: Decorative items: TECHNICAL SPECIFICATIONS: CHAPTER 2: LOOSE FURNITURE ISSUE DATE: DECEMBER 2020 REF #200917 | NEO @ THE GATE MALL MATERIALS CODE: F-05 Kashmir Chair by Simon James Black steel frame; Seat and back in multi Synergy by Camira/Amiable/wool Black steel **All materials to be approved upon sample delivery MODEL NUMBER: DIMENSION: WEBSITE: CL2; legs www.luxy.com 720mm W 610 D 490mm TEL: +974 4411 7724 FAX: +974 4411 7725 P.O. BOX: 55947 DOHA QATAR QATAR@BLUEPRINTME.COM ITEM DESCRIPTION: COLOR FINISH: QUANTITY: MODEL NUMBER: MANUFACTURER: DIMENSION: STATUS / COMMENTS: WEBSITE: Application Area: Height: Width: Depth: Seat height: Seat depth: Arm height: Seat fabric: Back fabric: Base material: Decorative items: Notes: TECHNICAL SPECIFICATIONS: ITEM PICTURE MATERIALS Reclaimed synthetics Round meltingpot dining table Dirk Vander Kooij www.dirkvanderkooij.com 2 3 4 5 1 3. 4. 1.
1. Wall-mounted giraffe chandelier as focal point above reception 2. Suspended acrylic art piece 3. Oscar Zita sculpture - or similar piece 4. Elizabeth Garous buffet - or a similar piece
5 2. 3.
1 2 3 4 1. 2. 3. 4. 6. 5. 5 RAW CLASSIC CONTRAST ARTISTIC
5. Selected mouldings iluminated softly
LAYOUT

PROJECT STATUS: Suspended 2023

SCOPE OF WORK: Fit-out & Design development

LOCATION: Al Saad | Qatar

AREA: B+GF+3+Roof top

PROJECT TYPE: Hotel

PROJECT ROLE: Project Architect Design lead

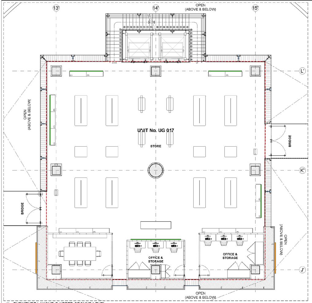
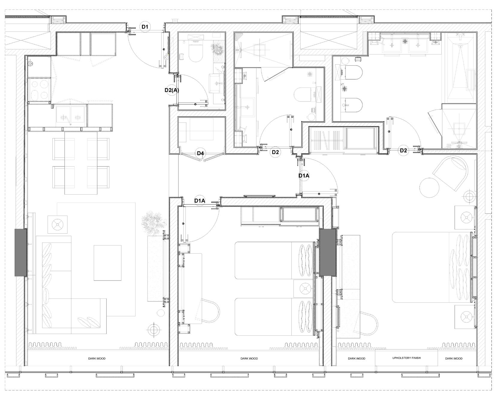
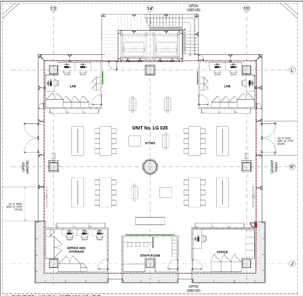
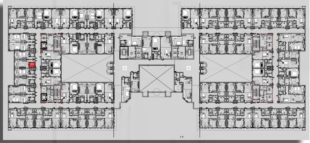
The hotel building fuses contemporary, boutique chic style, high-tech room features.

Designed for the needs of the busy modern-day traveler as well as long-term visitors the rich yet subtle color tones of the essential décor, the comfortable, well-appointed guest rooms, and the signature details create a refined and soothing atmosphere. Each room is designed as suit with living room, bedrooms, and kitchenette. Total number of rooms is 165.

Project Role: Project Architect | Design lead

Responsible for initiating and developing architectural, design and execution shop drawings.

MATERIALS USED

TRAVERTINE BRONZE GLASS METAL POLISHED BRASS

CATEGORY: COMMERCIAL MURWAB HOTEL PORTFOLIO MILENA STANOJEVIC

MATERIALS USED

CATEGORY: COMMERCIAL MURWAB HOTEL PORTFOLIO MILENA STANOJEVIC
CARPET PORCELAIN TILES PAINTED WOOD WALLPAPER FABRIC

PROJECT STATUS: Completed | Year 2019

SCOPE OF WORK: Design & Site supervision

LOCATION: Katara Qatar

AREA: 1800 sqm

PROJECT TYPE: Food & Beverage

PROJECT ROLE: Interior Designer and site architect

Bayt El Talleh is Levantine cuisine restaurant with a magnificent view over Katara south hills, serving authentic, home-style food made Lebanese and Middle-Eastern dishes. The restaurant is designer based on Lebanese traditional house concept, its organic integration with the landscape and its response to the natural aesthetics.

Project Role: Interior designer & site supervision. Attend regular site visits and inspections to ensure project is delivered to the required quality, and approved design intent is achieved.

MATERIALS USED

STONE WROUGHT IRON MOSAIC LIME PLASTER

CATEGORY: F & B BAYT EL TALLEH RESTAURANT PORTFOLIO MILENA STANOJEVIC

FINE

OFFICE AND WASH ROOM

ZONES RESTAURANT

A Souq or Market is the first zone out of the seven zones the restaurant is divided. It’s located before the main entrance of the restaurant and has four shops selling fruits, olives, kunafa (pastry/sweets) and spices ...

The design is inspired by the traditional Arabian market and intends to create a recognizable place that answers the needs of the client. Pebble mosaic flooring, wooden craft doors, lime plaster walls, and wooden beams ceilings bring a traditional market look and feel.

CATEGORY: F & B BAYT EL TALLEH RESTAURANT PORTFOLIO MILENA STANOJEVIC
01 02 05 03 04 06
01SOUQ
SOUQ | MARKET AREA PRIVATE CABANAS PRIVATE CABANAS
DINING COURTYARD DINING BREAD AND SAJ
ROSE LOUNGE

PRIVATE CABANAS

Cabanas are designed as sitting rooms for private guest gatherings. Each cabana is different in size and can host various types of guests.

Made for dining as well as shisha lounge. The Cabanas, with exquisite attention to the detail of fixtures and furnishings drawn from the Levantine tradition, have the capacity to comfortably seat guests in front of a panoramic view of Katara.

COURTYARD DINING

CATEGORY: F & B BAYT EL TALLEH RESTAURANT PORTFOLIO MILENA STANOJEVIC 03
02
MATERIAL PALETTE STONE WROUGHT IRON MOSAIC ANTIQUE MIRROR MATERIAL PALETTE
LOCATION CITY PARK CONCEPT
MASTER PROJECT PUBLIC BATH PORTFOLIO MILENA STANOJEVIC
MASTER PROJECT PUBLIC BATH PORTFOLIO MILENA STANOJEVIC

Turn static files into dynamic content formats.

Create a flipbook
Issuu converts static files into: digital portfolios, online yearbooks, online catalogs, digital photo albums and more. Sign up and create your flipbook.