Milena Miloradovic - Architecte

Page 1


PORTFOLIO

Milena Miloradović Architecte HMONP

AVRIL 2019 - JUIN 2022

Sommaire

SEPT. 2017

- AVRIL 2019

K ARCHITECTURES

MIR - Maison Internationale de la Recherche Cergy-Pontoise

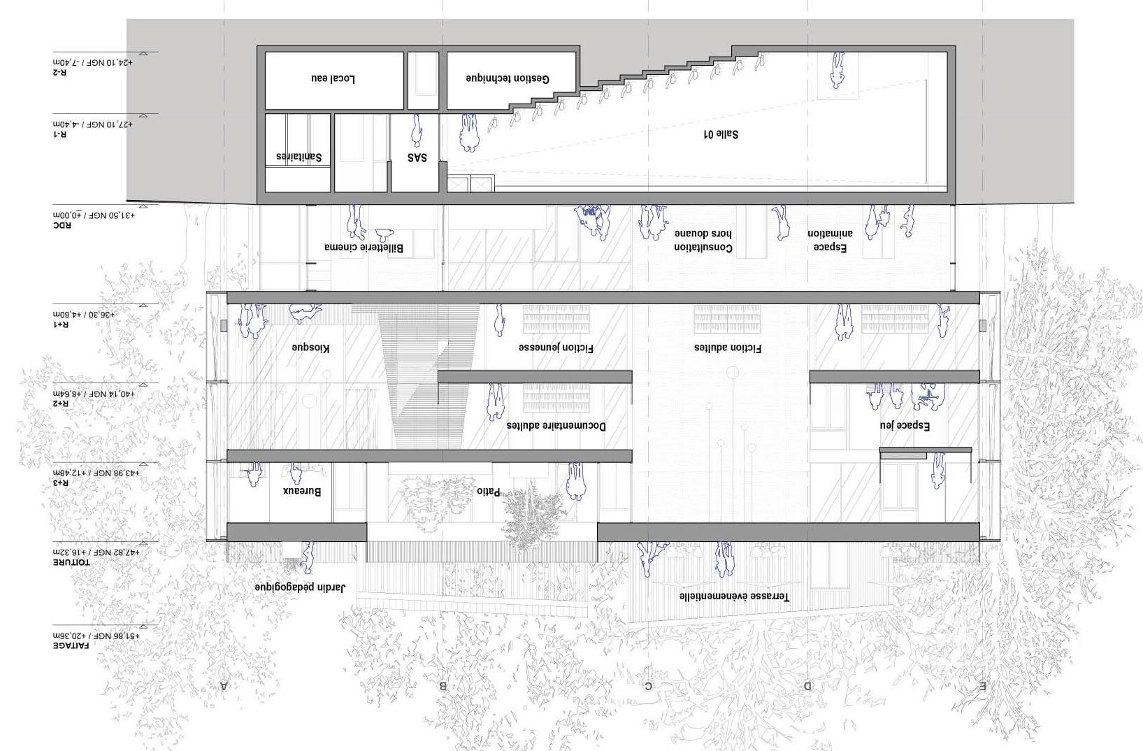
Médiathèque et Cinéma Clichy-la-Garenne

BADIA - BERGER ARCHITECTES

Pôle culturel - Conservatoire de Musique et de danse Le Raincy

Bachelor - Logements étudiants pour le campus de l'Ecole Polytechnique Cergy-Pontoise

p. 4-9

p. 10-13

JUIN 2022

- SEPTEMBRE 2023

M2H ATELIER

Nanterre - Gambetta

Réhabilitation d'un immeuble de bureaux en logements, crèche et commerce

CIRN - Cité Internationale de la Recherche de Nanterre Réhabilitation d’immeubles de bureaux en espaces de recherche, résidence coliving, restaurant, espaces incubateurs et espace extérieur paysager

p. 14-19

p. 20-23

p. 24-27

p. 28-31

MASTER 2 2015-2016

PROJETS D'ECOLE

The Blank Page: Un institut de recherche et de représentation musicale

p. 32-35

K Architectures

MIR

MAISON INTERNATIONALE DE LA RECHERCHE

CERGY-PONTOISE

APS - PC - APD - PRO -DCE

Dans le cadre de ce projet universitaire accueillant des laboratoires de recherche ainsi que des espaces de conférences et d'échange, j'ai eu l'occasion d'approfondir mes connaîssances sur des sujets multiples, depuis la phase APS jusqu'au DCE.

Plus particulièrement, l'étude de l'enveloppe de la MIR m'a été confiée: le socle massif en béton vêtu de bardage bois d'une part, la façade en verre sur les niveaux courants d'autre part. Par ailleurs, un travail sur les géométries et la matérialité des espaces intérieurs a complété cette expérience.

Tout en étant suivie de manière régulière par la chef de projet de l'équipe, j'ai bénéficié d'une autonomie considérable qui m'a permis d'échanger en continu et de manière directe avec les différents intervenants techniques de ce projet. Il s'est agi de combiner les informations fournies par les bureaux d'études, les fabricants, et les entreprises qui nous conseillaient sur la mise en oeuvre des éléments de la façade.

La complexité de ce travail résidait donc non seulement dans la déclinaison des différents modules de façade en fonction du programme de chaque niveau, mais aussi dans l'aspect constructif de l'enveloppe.

A droite: vue sur la proue du bâtiment

Plan et coupe détaillés sur un module type

Mur rideau + EDR au droit des étages courants

Echelle: 1:20

Ci-dessus: Coupe perspective sur la façade ajourée au droit de la toiture-terrasse

A droite: Perspective depuis le parvis d'entrée

Plan et coupe détaillés

Echelle: 1:20

Mur rideau, portes vitrées et bardage bois à "faux claire voie" du RDC

Coupe et élévation détaillées

Châssis ouvrant "à soufflet" et bardage bois à

claire - voie" du RDC

Echelle: 1:20

"faux

K Architectures

LEO MÉDIATHÈQUE À CLICHY-LA-GARENNE

ESQ - APS - PRO - DCE

La particuliarité de ce projet, la double peau constituant sa façade, a été remise en question dès le début des études.

Le dialogue avec la MOA étant initié, nous avons entamé une réflexion sur la faisabilité technique de cette façade, dans la volonté de préserver la double peau en verre tout en répondant aux exigences thermiques, réglementaires, et en respectant l'enveloppe initiale du projet.

A gauche: Vue intérieure sur les espaces de consultation

A droite: Vue depuis le parvis d'entrée

9. Couteaux + plats métalliques fixés dans les poteaux bois

6. Stores extérieurs

17. Main courantes

4. Châssis vitrés + EDR - première peau

5. Habillage casette métallique + isolant

1. Gros oeuvreBéton armé

0. Gros oeuvre DAP + PRS

2. Renforts aluminium pour châssis vitrés

10. Bavettes

16. Pans vitrés seconde peau

13. Cables métalliques

14. Profil métallique + capôt serreur

11. Poteaux bois non porteurs

7. Poteaux bois porteurs

8. Poutres bois

12. Raidisseurs verticaux pour maintien de la double peau

15. Caillebotis

3.Cales pour châssis vitrés
Coupe sur l'entrée et sur la grande salle de cinéma
Echelle: 1:200

Plan et coupe de principe sur l'enveloppe

Echelle: 1:20

Badia - Berger Architecture

CENTRE CULTUREL

CONSERVATOIRE DU RAINCY

APS - APD - PRO/DCE

L'occasion d'aborder la question de l'architecture pour la musique s'est présentée depuis mes années d'études, mais aussi durant la mise en situation de HMONP à l'agence d'architecture Badia-Berger. En effet, les programmes culturels regroupaient les disciplines que j'affectionnais particulièrement.

J'ai tenu à approfondir ces sujets sous différents points de vue, dans le cadre de mon mémoire de master, de mon diplome de fin d'études, et enfin de mon mémoire de HMONP. Par la suite, ma participation au développement des différentes phases du Conservatoire du Raincy, de la fin de l’APS jusqu'au rendu PRO/DCE, m'a permis d'aborder des questions fondamentales telles que la synthèse thechnique, tout en mettant à profit mes acquis au cours de nombreux échanges avec les bureaux d'études, les scénographes et l'acousticien.

A droite: L'Auditorium, étude de l'aménagement intérieur

Salle de spectacle
Etude de l'aménagement intérieur

Profilé type Stilprim

Cavalier Stil f530

Faux plafond sur suspentes élastiques

Matelas de laine minérale de 100 mm

Plaque de BA13

Plaque de BA18

Faux plafond de correction acoustique à perforation variée

Plaque de platre perforé

Laine minérale de 40mm

Luminaire linéaire type

Linelight Zumtobel (pose horizontale ou verticale)

Connecteurs résilients

Ossature métallique indépendante de 60mm de large fixée sur résiliant viscoélastique

Faux-plafond en platre perforé

Laine minérale de 40 mm

Plaque de platre perforé

Plateau d'orchestre

Doublage vertical de type 2

3 plaques de BA13

Laine minérale de 45 mm

Chape acoustique de type 2

Dalle sur plots type Syloplaque

Bande périphérique de désolidarisation Sylomer

Revêtement linoléum 1cm

Chape béton 10cm

Coffrage bois 9mm

Plot type Sylomer

Circulation

2 plaques de BA13

Revêtement linoléum 1cm

Chape acoustique de type 1

Chape béton légère type Weber

Bac collaborant 20cm

Coupe détaillée pour la mise en oeuvre du doublage acoustique du plateau d'orchestre Echelle 1:20

Echelle: 1:200

Coupe longitudinale et Plan du R+3

Badia - Berger Architecture

BACHELOR

CAMPUS DE L'ECOLE POLYTECHNIQUE

PRO/DCE

La phase PRO de ce projet s'est articulée autour des questions de détails constructifs et des prescriptions propres à l’aménagement intérieur: les matériaux, les luminaires, et le mobilier.

Nous avons également accordé une importance considérable à l'usage des lieux, à travers l’échelle très détaillée des dessins et grâce au croisement des différentes données, propres au Marché global de performance.

Tablette haute toute largeur en aggloméré 18mm revêtue de mélamine blanche

Portes de placard coulissantes

Tringle en métal plastifié

Coupe sur les rangements d'une chambre étudiante

Echelle 1:20

Etude des cuisines communes

010 cm
Echelle 1:20
Coupe sur la tablette de la loge
Loge du gardien du campus

M2H Atelier

NANTERRE-GAMBETTA

Réhabilitation d'un immeuble de bureaux en logements, crèche et commerce

Un bâtiment de bureaux transformé en logments (niveaux R+1 à R+3), crèche et et commerce (niveau RDC), avec comme contrainte la conservation de la structure et des façades existantes : tel a été le défi de ce projet de réhabilitation. La dépôt du permis de construire s'est effectué dès les premières phases du processus de conception. L'ensemble des éléments programatiques a été combiné aux exigences d'implantation par rapport aux limites séparatives, d'emprise et de hauteurs, conformément au Plan Local d'Urbanisme de Nanterre. Par ailleurs, une attention particulière est consacrée aux usages des espaces de logements, contraints par les ouvertures et orientations existantes.

A droite: vues intérieures de la crèche et du commerce situés au RDC du bâtiment

CAPA - ESQ - PC

3,223,383,003,003,071,0148,50NGF0,00 6,003,223,383,003,003,162,5036,13NGF

3,223,383,003,003,072,412,66

2,842,933,222,840,183,363,002,99

M2H Atelier

CIRN - CITÉ INTERNATIONALE DE LA RECHERCHE DE NANTERRE

Réhabilitation d’immeubles de bureaux en espaces de recherche, résidence coliving, restaurant, espace incubateur et espace extérieur paysager

Lors des études de ce projet de réhabilitation, l'accent a été mis sur l'aspect technique de la nouvelle façade du bâtiment, mais aussi sur l'imbrication des multiples usages et éléments programmatiques de celui-ci. Des extraits du carnet de serrurerie ci-après constituent un aperçu sommaire de ma contribution au projet : du détail de façade où l'existant acueille des panneaux verticaux fabriquant un filtre visuel, aux escaliers sur-mesure s'intégrant dans les espaces communs de l'incubateur et dont l'aspect visuel met l'accent sur l'esthétique industrielle du lieu.

PRO-DCE
Elévation détaillée des panneaux métalliques ajourésCoupe détaillée des panneaux métalliques ajourés
Vues sur l'escalier sur mesure en serrurerie
Extraits de coupes détaillées

MASTER 2

Projet de Fin d’études ENSAPB

THE

BLANK PAGE

Un institut de recherche et de représentation musicale

PFE Encadré par François Brugel, Patrick de Jean, Solenne Guével, Marc Dujon, Bita Azimi Calori Juin 2017

LES TENDANCES ACTUELLES LIÉES À L’ÉCOUTE DE LA MUSIQUE

L'ambition de ce travail était de tirer profit des questionnements issus de mon mémoire de fin d’études qui traite l’interdisciplinarité entre architecture et musique.

Depuis l’apparition de la musique électronique et le son diffusé sur hauts parleurs, les pratiques de l'écoute évoluent. Quelles sont les dualités liées à l’écoute et comment peut-on s’adapter aux besoins de la musique dite “contemporaine”? Comment l’activité de la pratique musicale peut-elle fédérer une vie de quartier et de nouvelles dynamiques urbaines?

Avec l’apparition de la spatialisation sonore ainsi que la diffusion de la musique dite “acousmatique”, les postures de l’écoute et de la pratique de la musique évoluent.

Des dualités apparaissent, non seulement chez les spectateurs qui peuvent adopter des attitudes multiples face aux sources sonores, mais également chez les interprètes, qui prennent des libertés nouvelles.

L'évolution de cette figure nous a mené à nous interroger sur la lecture de l'ensemble du bâtiment en tant qu'assemblage de vides et de pleins. La volonté de soulever la masse principale de la salle permet de créer un parvis public ainsi qu'une continuité entre la voie routière RN33 et les Berges du Canal de l'Ourcq.

Maquettes d'étude: dynamiser le cube par ses espaces satélites

Croquis: Insertion urbaine et accès public

LES NOUVEAUX ESPACES D'ÉCOUTE

Musique Baroque:

Structure, Contrepoint

Basse con nue, enchevêtrements

Ornements

Musique Classique et Roman que:

Répé ons, Langage Harmonique Mélodies, Tonalités

Musique Moderne:

Affranchissement des principes de composi on classiques, dodécaphonisme, remise en ques on de l’harmonie

Musique contemporaine:

Musique atonale, sérielle, acousmaque, Travail de structure et d’écriture, s’écoute et se voit

Intérieur sta que

Intérieur en connexion visuelle avec l’extérieur

Entre deux sta que

Intérieur dynamique

Entre-deux dynamique

Extérieur dynamique

Configura ons scéniques

Public - sources sonores

Intérieur dynamique vu depuis l’extérieur Répertoires

Posture d’écoute

RÉPONDRE AUX DUALITÉS

Ces exemples ont permis de soulever la question de la flexibilité scénique, nécessaire pour accueillir plusieurs représentations différentes. Il s’est agi d’explorer les configurations scéniques en fonction des sources sonores (multiples ou uniques). De plus, on a exploré les différentes postures d’écoute: est-ce qu’on écoute un concert assis dans une salle, ou peut-on également écouter de la musique dans une dynamique de déambulation?

Enfin, il s'est agi d'interroger le lien avec l’espace extérieur.

Une salle de concert doit-elle être complètement hermétique, ou bien connectée avec l’espace extérieur, en prenant en compte toutes les problématiques acoustiques et visuelles qui se posent lors d’un concert en pleinair?

MIXITÉ PROGRAMMATIQUE

L'enveloppe du volume principal est occupée par les SAS d'entrée de la salle, espaces de déambulation et de convivialité. Les détails constructifs sont conçus de façon à permettre la simultanéité des usages: plancher flottant + système “boite dans la boite” pour les studios. Le volume de la salle est désolidarisé du volume du sas.

A gauche: axonométrie éclatée

milen.miloradovic@gmail.com 0033 626213325

Milena Miloradović

Turn static files into dynamic content formats.

Create a flipbook
Issuu converts static files into: digital portfolios, online yearbooks, online catalogs, digital photo albums and more. Sign up and create your flipbook.
Milena Miloradovic - Architecte by Milena Miloradovic - Issuu