Meera Ilahi Selected Work

Page 1

Meera Ilahi

Selected Work

01 2020 Freight Fun 2022 Meshy Magnets Pop-Up Drop off The New
Sequences of Privacy 2020 2021 2021 01. 02. 04. 03. 05. Advanced Design Research I Advanced Design Research II Comprehensive Design II Comprehensive Design I Intermediate Design Contents
Datum

FREIGHT FUN

Critics: Jason Lee & Scott Sorenson

In an imagined future, leisure travel in the United States will consist of travel via truck along with commercial shipments. By combining the ideas of Dirty Realism with Future Electrification; this project aims to re imagine electric trucks as the new form of leisure transport in a country without a strong rail network.

02 Advanced Design Research Freight Fun
01.

FREIGHT FUN: EXPERIMENTAL DOMESTIC

Freight Fun addresses the lack of a standardized ground transportation system in the continental United States. Electric trucks allow us to reconsider the American Highway system. By combining the idea of Cargo transportation with leisure travel, the hub combines the traditional logistics hub with a transit hub.

Suggesting a future solution for this system with pods that dock on a truck chassis and decouple to plug into the hub. The transit hub contains civic programs embedded within the architecture for passengers to enjoy on their journey.

03 Advanced Design Research Freight Fun
Pods 1 person 1 person 1 Person 2 People Pods 1 person 1 person 1 Person 2 People Bathroom Storage Kitchen Pods 1 person 1 person 1 Person 2 People Bathroom Storage Kitchen

The Freight Fun domestic pods are designed to fit behind an electric semi-truck. The pods all aggregate in different configurations and allow for occupants movement through the space- sharing bathrooms and kitchens while on the move. However, once the truck reaches the hub, the pods are decoupled and docked in different configurations allowing those traveling to meet new people and experience different collective spaces.

04 REF Advanced Design Research Freight Fun
05 Advanced Design Research Freight Fun
06 Advanced Design Research Freight Fun

. Pop Up Drop Off

Critics: Duks Koschitz & Robert Brackett III

The Pop up Drop off serves as an easily deployable drop-off location for film plastic recycling. The largerscale inflatable structure, Pop Up Drop Off, was selected for exhibition at the NYC Design Pavilion in 2022. This was made feasible thanks to a collaboration between Pratt’s d.r.a. Lab and Pneuhaus.

In Collaboration with Hannah Bacsoka, Defne Çeltikçi, and Ileana Hernandez

07
02
Advanced Design Research Pop-Up Drop Off
08 Advanced Design Research Pop-Up Drop Off

Pop up Drop off’s colorful patchwork of recycled material draws attention to how much film plastic we use in our daily lives. The project stands as a physical visualization of film plastic waste and its environmental issues, such as plastic bag recycling. The Pop-Up’s double saddle shapecreated by a pattern consisting of concentric square tubes - serves a dual function: the concave spaces act as collection areas, while the convex spaces form the roof of the structure.

09 Advanced Design Research Pop-Up Drop Off
POP UP DROP OFF

THE NEW DATUM

Critics: Leonard Leung

A new building type in the flood averse zone of the Rockaway peninsula. Providing room for expansion and adaptation as the communities needs change.

In Collaboration with Ashkan Efard

010 Comprehensive Design II The New Datum
03.

THE NEW DATUM

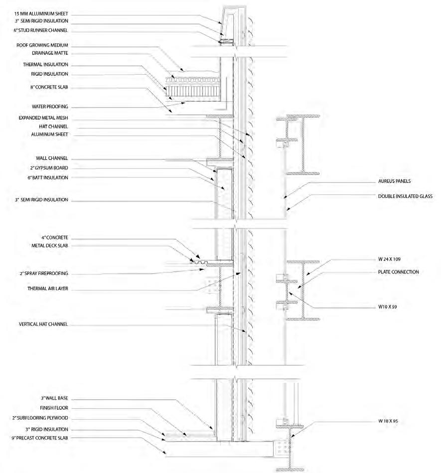
The Rockaway peninsula is a vulnerable community sensitive to the inevitable effects of climate change. This proposal for a community center re-imagines the typical building typology. The subway elevation of 30’ is the new datum. The project aims to redesign the ground as a flood-able ecosystem inspired by swamps. The exoskeleton structure establishes an infrastructure that hangs and supports all programs.

011
Comprehensive Design II The New Datum
Unoccupiable Vegetated Roof (Bird Sanctuary) Bird Observatory - Viewing Deck Classrooms Outdoor Ramp Roof Access Lobby - Event Space Fema Emergency Shipping Container Attachment Lockers + Showers Program Market - Outdoor Dining
012 Comprehensive Design II The New Datum B C C D B B A SITE A A-Train EntranceBeach 60 st - Straiton Ave Bus Stops - Public Transport Access Major Intersection The Market-Way - New Pathway Cutting Through the Site, Activating The Public Market Space B C D
and
Expansion of the Structure
PROCESS: STRUCTURAL ADAPTABILITY Vertical
Horizontal
013 Comprehensive Design II The New Datum
014 Comprehensive Design II The New Datum
015 Comprehensive Design II The New Datum
016 Comprehensive Design II The New Datum

SEQUENCES OF PRIVACY

Critic: Eunjeong Seong

Rethinking conventional housing in Brooklyn. Sequences of Privacy houses over 200 people with shared spaces for community gathering and a ground floor nursery.

In Collaboration with Jiayu Zhu

017 Comprehensive Design I Sequences of Privacy
04.

DOMESTIC LIVING ALTERNATING AND OPEN WALLS

This domestic housing project situated in Bedford Stuyvesant, Brooklyn is to transform the conventional bar-shaped building layout. The strategy involves delineating the walls and creating unique openings and spaces in the boundary walls that divide private residences and communal areas, thus creating a fresh style of living. This approach enables individuals to socialize with acquaintances and neighbors in the hallway from the seclusion and convenience of their homes. The shared areas are crucial components of the community and living experience, forming a front porch condition within a larger scale format.

018
Comprehensive Design I Sequences of Privacy
019
A2
Comprehensive Design I Sequences of Privacy
A1
020 Comprehensive Design I Sequences of Privacy

MAGNETS IN MESH

Magnets in Mesh is a film production extension to the Harlem School of the Arts. The proposal consists of a double layered facade system housing self supporting structural “magnets” with glass suspended between them. The exterior second skin is a mesh wrapper which allows light to penetrate the work spaces discreetly. The film screening spaces are housed inside the magnets to create the optimal environment for film screening. As the “magnets” puncture the mesh, the structure behind is revealed.

021 Intermediate Design I Magnets in Mesh
05.
Critic: Jonathan Scelsa

Design

022 Intermediate Design I Magnets in Mesh
Domino model of stacked I beams providing structural support for the slabs. Stairs and Circulation rest on the exaggerated I beams providing a platform for the stairs. process sketched in plan and section. Exploring the layered facade in section with layered levels of the interior as demand for lighting changes.

MAGNETS IN MESH FILM PRODUCTION IN HARLEM

Magnets in Mesh is a film production extension to the Harlem School of the Arts. The proposal consists of a double layered facade system housing self supporting structural “magnets” with glass suspended between them. The exterior second skin is a mesh wrapper which allows light to penetrate the work spaces discreetly. The film screening spaces are housed inside the magnets to create the optimal environment for film screening. As the “magnets” puncture the mesh, the structure behind is revealed.

023
Intermediate Design I Magnets in Mesh

1 2 3 4 5

024
1) Structure conforms to angle of rigged seating for theater spaces. 2) Theaters are encased, to optimize lighting conditions for film screenings. 3) Magnet forms are darker programs with cafe spaces, theaters, and ticket booth, & lobby for the theaters. 5) The second mesh adds a layer of opacity, diffusing the light for working zones.
Intermediate Design I Magnets in Mesh
4) Curtain walls wrap the light filled spaces: the offices and film editing studios.
025 Intermediate Design I Magnets in Mesh

Turn static files into dynamic content formats.

Create a flipbook
Issuu converts static files into: digital portfolios, online yearbooks, online catalogs, digital photo albums and more. Sign up and create your flipbook.