DS 2.05 “Oasis”
Mikah Cassidy w1825022








The Escuela Pías Library and Lecture Hall building is an excellent example of adaptive reuse. The building was thoughtfully modified to suit its current needs while still maintaining some significant elements of what it once was. The practice of adaptive reuse allows buildings that may have passed their prime a new life, preserving an artifact of history while also minimizing the carbon footprint that comes with demolishing and constructing an entirely new build. particularly love that the architects of this project did not seek to create an entirely modern aesthetic and used the already amazing qualities of the space to their advantage. The library has a beautiful arrangement of ceiling heights that contribute to the grandeur of the space itself. The highest part of the ceiling is where the old church dome once stood, which now has a drop ceiling that was installed in the refurbishment. The diversity in ceiling heights creates a feeling of compression and expansion as you move through the space, creating an experience of transporting to an atmosphere or environment entirely different from the one in which one came. These refurbishments can also be likened to a friendlier “parasite” in which they attached to the pre-existing structure and create a new form entirely. These experiences through a space and the qualities are some would like to replicate in my own project.









The Escuelas Pías library is within an old church that has been restored for modern use, a great example of adaptive reuse while maintaining the space’s original character. Much of the preexisting structure was used in its refurbishment in addition to newly developed areas detailed above.













Pinpointing a site was the first step to creating the design proposal which additionally influenced the program. Elephant and Castle has one of the largest population of Latin Americans in London, with several business located just off Walworth Road that represent various countries in Latin America. There is a concentration of businesses specifically along Maldonado Walk where the proposal is located. Maldonado Walk is a small path at the base of the Strata Tower that cuts from Walworth Road to Hampton Street. It was named after Pedro Vicente Maldonado, an Ecuadorian physicist, mathematician, astronomer, topographer, and geographer. This was a very difficult site to design a proposal into because of the surrounding structures however is an excellent location.
The basis of the following project is a continuation of the “Urban Living Room” brief from first semester. The living room was set to take up no more than 16 m^2. Based on my personal heritage and the demographic of the local area, I wanted to design something with a focus for the Latin American community. Using information from an interview I conducted on site as well as with my mother, I landed on the idea of creating a greenhouse living room. This space was designed to bring a bit of familiarity to Latin American immigrants in London and serve as educational to second generation residents or those without any roots to Latin American.
In this expanison, I worked to create a larger variation in the program to introduce the culture to the area in a variety of media. In terms of the form and materiality of the expansion, I continued with the aesthetic qualities I had developed for the Urban Living Room to ensure cohesion across the entriety of the building. The components of the building are comprised of the geometric “suncatcher” front facade, the exposed timber structure and its bracing, the boxy staircases and both the clear and frosted polycarbonate envelope.









Located on the top floor of Arch 5 is Carolina Bar & Lounge, a Dominican restaurant. I chose this location to visit specifically because of my own heritage. I spoke with one of the owners, she is originally from Dominican Republic and came to London when she was six years old. I asked what reminds her of her home country. She told me when the weather is warm and sunny, dancing, and foods like rice and beans with chicken or beef, plantains, and other street food. I then explained our project to her and asked her if she were to design a room to be put in the area, what would she like to have? Without much contemplation, she immediately told me a small garden with tropical plants and flowers, and maybe fruit to eat. She mentioned having a beach would be nice but obviously not possible.


















The primary plants selected for the greenhouse are plants that are native to Latin America or are plants that hold sentimental value to members of the community such as plants that grew near their homes or places they frequented. They will all be a dwarf or houseplant variety to fit within the space or to be taken home. The plants illustrated here are the ones I found most important to include in the greenhouse.
Musa Banana Tree
Cordyline Ti Hawaiian Red Sister Coconut Palm
Agave Americana
Petra Croton
“Urban Living Room”
“Urban Living Room” Tropical Greenhouse
Carolina Bar & Lounge
I looked at Didier Faustino’s Stairway to Heaven. It is a freestanding staircase with a small room at the top located in Castel Branco, Portugal. It was built in 2001 out of reinforced concrete with a galvanized steel structure and lattice. To better understand how the staircase needs to work for my structure, I constructed a model at my chosen scale using the Stairway to Heaven GA’s as an example. This helped me better understand the technicalities of a staircase and what would be needed to reach my elevated building. From this, can better figure out the type of staircase that best suits the needs of my project.
Another precedent I looked at was the Potemkin Theatre designed by Maich Architects. It covers a 27m^2 area and was constructed out of a timber frame structure with a painted canvas lining. Part of the structure is left uncovered, revealing the staircase inside. I used this as inspiration for the construction of my own project, especially the artistically placed bracing beams.
The next precedent was the Tom Ford Offices in London designed by Squire and Partners, this time looking at the spacing and how the staircase wraps around in a “U” shape. used this to also assist in creating a box model to better understand the space my project would be taking up. To condense the total square meters my project takes up, I cut the staircase of Faustino’s building in half and implemented the same “U” shaped wrap around.
After deciding on the staircase and general space of my project, experimented with different facades. I tried out an organic shape drawn from nature inspired by a geode or crystal such as the amethyst shown below. In contrast, I also tried a perfected, geometric shape inspired by the cuts of an emerald. liked the contrast of the organic shapes of the plants with a strict design such as the emerald and looked at a sun catcher. I thought this would create a great effect within the greenhouse while also including that juxtaposition liked.



















The lot just off Maldonado Way offers great potential for the building, the main difficulty being the arrangement for the room itself. took into consideration the access to sunlight for the existing occupants of this space and would like to attempt to preserve as much of that access as possible. The site for the urban living room is the space above the arches that house Acasifer and Carolina Bar & Lounge which are in Arches 4 and 5 respectively. It is built off of the side of the bridge for support.
Maldonado Walk Mikah Cassidy
Maldonado Walk
Latin American Business in Walworth
N
Cafeteria
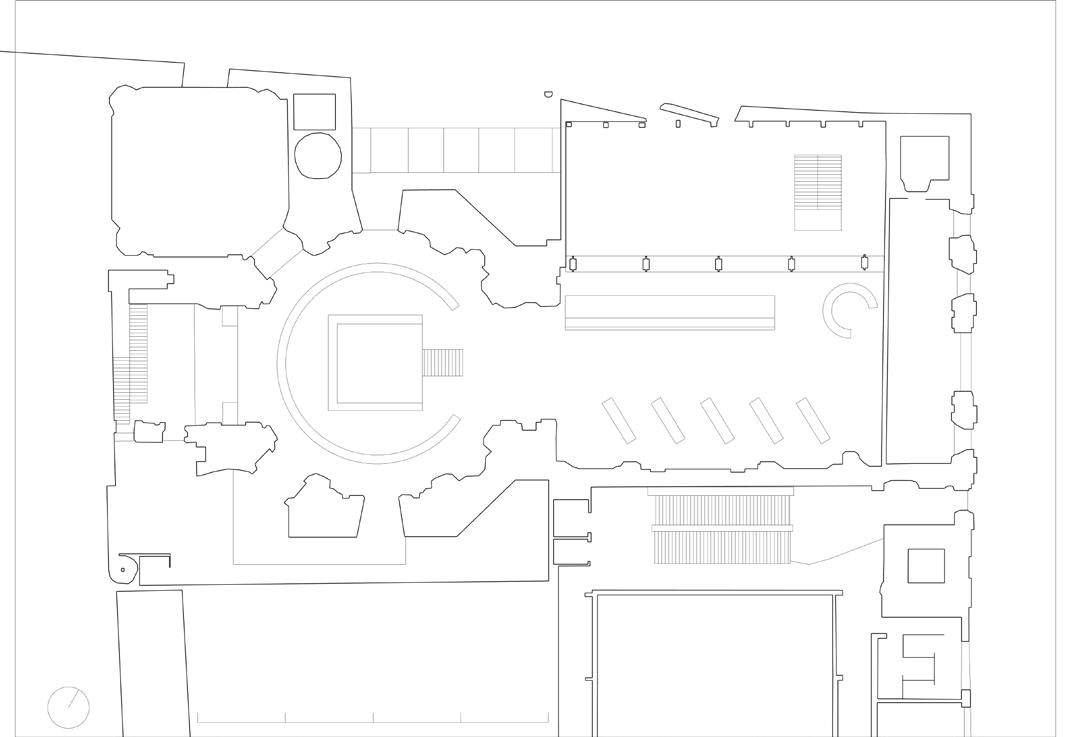
My proposal is a Latin American culturefocused community center titled “Oasis”. It is a site in the middle of a loud, metropolitan area that brings comfort and familiarity. Additionally, the word “oasis” is a cognate-it is the same in both English and Spanish, metaphorically bridging the gap between the two cultures. Drawing inspiration from the Escuela Pias case study and it’s “parasitic” refurbishment, I have created a building that sits tucked away from the busy Walworth Road and Elephant and Castle junction but still in a central proximity to the community. The project is comprised of six main areas, two of which are located in the same volume, on the floor above. The purpose of the project is to provide a space full of qualities and media that make up the Latin American culture. In this space, you can explore a variety of media specific to the culture through literature, music, games, art, dance, and film.
The space is decorated with tropical plants that, while not necessarily native to Central or South America, are ones that are commonly found to contribute to the overall aesthetic and environment of the spaces. The structure of the building is designed simply in form to allow the naturally beautiful qualities of the tropical foliage the spotlight
To avoid casting a massive shadow on the space beneath the building like in the initial volume studies, various experiments were conducted to create a functional, and visually interesting window facade/ skylight.
First made were simple card models to test general shapes and how well light may be able to pass. Further volumetric models were 3D printed to decide on the shape of the windows in the building.
In the initial volumetric studies, the maximum mass of the building that was possible in the area. This proved to have some difficulties with the close proximity to the Strata Tower, the darkness below the building, and the lack of light to the arches being the major restrictions.
In the interest of maintaining a delicate structure, this must be apparent in the general construction of the building. The Urban Living Room project was chosen to be made from a timber structure to display a natural material that would best compliment the plants inside and without distracting attention from their natural beauty. However, the building material needs strength that can support a larger scale building. LVL, or Laminated Veneer Lumber, is a hybrid of this criteria.
LVL is an engineered lumber made through a process very similar to plywood in that it is multiple layers of thin wood connected with adhesives to create stronger beams. It is comparable to glue laminated timber but can tolerate higher amounts of stress. It is less likely to warp than typical timber.
The same materials as the “Urban Living Room” project will be used here to encourage cohesion with the previous design. Additionally, the structure framing will be continued on into the newly added buildings so that the projects all stand as one connected structure in layout and aesthetics.
Cross Section
Following the nonsuccess of the previous volumetric studies, I changed my approach. Rather than trying to fit in a large volume to the site and in an attempt to avoid inputing another imposing structure, looked into “filling in the gaps” on site. This gap was filled by this wedge shaped block in the space between the church and the train bridge, but still above the arches as to not block any entrances. I also looked into possibly continuing the expansion on to the top of the church or adding something to the back of the church. I ultimately scrapped the idea of building on the top of the church because I felt it was becoming too invasive. I felt similarly about the back of the church as well in its multi-level form which eventually led to a much simpler bandstand.
Plan View
South Entrance to Maldonado Walk
View from Train Bridge
Urban Living Room and “Wedge”
Slanted form to allow sunlight below
Creating spaces in various levels. Bridge between the “Pavilion” building and apartment complex
plans using the “block” form from first volumetric iterations
Plans with the form on the ground
Fitting in an appropriately sized function room on the “Pavilion”
Arranging different levels and ceiling heights across the larger form
Sketch of Outdoor Features
Initial Concept Sketches
Exploring forms at the back of the church
Exploring forms on top of the church
Sketching details over the volumetric forms on top and behind the church.
Further ideas of window and facade concepts sketched over volumetric form on top of church and “wedge”
Axo: Proposed Mikah Cassidy
Plan: 2nd Floor+1m
Mikah Cassidy
Plan: 3rd Floor+1m
Mikah Cassidy
Elevation
Mikah Cassidy
Outdoor Bandstand
Cafeteria
View from Train Bridge
South Entrance of Maldonado Walk
Volumetric Studies
Structural Framing
Model Walk Through
Mikah Cassidy
Model Walk Through
Mikah Cassidy
1.) The opaqueness of the polycarbonate creates interesting shadows that can be best displayed at nighttime, when the interior lighting illuminates through the frosted material.
2.) When using a spotlight to imitate the sun, the facade created really beautiful reflections onto the surface below, achieving the sun catcher affect I was going for without needing to add color to the facade, which would affect the plants’ growth.
3.) The east side of the “wedge” features a large slanted window to increase natural light to the floor below. The window is set at a 67º angle. This number comes from the recommendation of adding 5-15º to the location’s latitude to determine the best angle for a skylight. The idea is that the sunlight will funnel through the window to hit the lower floor and illuminate the space below.
4.) The ceiling height of the building offers the perfect blend of comfort for the occupants while not protruding too much into the sky. It was designed to be a “sneak peek” above the railway to passengers while avoiding becoming another skyscraper. For the sake of visibility, I excluded the roof from the 1:50 model. This volumetric model offers an explanation for the geometry of the roof on the greenhouse.
5.) The roof and north facing facade of the “wedge” was also excluded so that the top floor where the cafeteria and drinks bar are located can be removed for better visibility into the model. The roof follows the same bracing as what is seen throughout the structure and acts as a large skylight.
6.) As stated above, the north facing facade was excluded from the model. This image is taken from the axonometric drawing to highlight what it is designed to be. It follows the same geometry of the front facade of the greenhouse but with less exaggerated points.
7.) Bench inside the staircase to Urban Living Room to provide those with lower mobility an opportunity to rest before continuing up.
8.) Staircase is fixed to the side of train bridge but is still open to allow those walking along Maldonado Walk to pass through.
EDS: Measuring Sunlight with PAR
The diagram is of the sun’s path at my site. The shaded region shows the range of the sun’s path throughout the entire year with the solid line marking the sun’s location in November, when this diagram was
My site is located in Elephant & Castle, just slightly south of the Strata Tower. When picking a location, it was essential to ensure there would be adequate sunlight for plants to grow. Based on the conversations I had near the site and my personal knowledge of Latin American culture, I decided to design a greenhouse social space. My original intention was to occupy a vacant arch however it would mostly be in the shade of the tower. Thus, moved my site further south down the walkway and elevated the building to avoid blocking the existing businesses.
During the design process for my project, I researched how to care for the specific plants wanted to include. knew that a south facing window would provide the most sunlight but wasn’t aware of the difference in eastern and western facing windows and the sunlight that they provide. Specifically for plants that need indirect sunlight, came across the term “PAR” used to describe the quality of light a plant needs to grow.
: Light Visible to the Human Eye
: Light Used by Plants
Lux and foot-candle is used to measure intensity of light as seen by the human eye while PAR is used for plants. Light within the PAR spectrum is the useable light a plant needs to photosynthesize. It is widely known that plants need light to grow however the quality of light is also essential to the plants survival. As stated on the Photone - Grow Light Meter website, “optimal plant lighting means that your plants receive the right kind of light (PAR), with the right intensity (PPFD), for the right duration (photoperiod) and the right amount (DLI) of it.”
“Optimal plant lighting means that your plants receive the right kind of light (PAR), with the right intensity (PPFD), for the right duration (photoperiod) and the right amount (DLI) of it.”
-Photone
- Grow Light Meter
PAR: Photosynthetically active radiation (PAR) is light of wavelengths 400-700 nm and is the portion of the light spectrum utilised by plants for photosynthesis.
PPFD: photosynthetic photon flux density is the number of photosynthetically active photons that fall on a given surface each second. PPFD measures the amount of PAR that actually arrives at the plant, or as a scientist might say:
Photoperiod: the period of time each day during which an organism receives illumination; day length.
DLI: Daily Light Integral describes the number of photosynthetically active photons that are delivered to a specific area over a 24-hour period.
Lumen: the SI unit of luminous flux, equal to the amount of light emitted per second in a unit solid angle of one steradian from a uniform source of one candela.
LUX: the SI unit of illuminance, equal to one lumen per square metre.
Foot-Candle: a unit of illumination equal to that given by a source of one candela at a distance of one foot (equivalent to one lumen per square foot or 10.764 lux).
Photone - Grow Light Meter
PAR meters are sold at a very high price and unfortunately the FabLab does not have any to be rented out. After doing some research, found the app Photone - Grow Light Meter, one of the only apps available for iOS that measures PPFD for PAR. It was tested for accuracy against other light measuring apps using lab equipment and proved itself to be reliably accurate. The results of their experiment can be found here: https://growlightmeter.com/th e-best-light-meter-app-for-pla nts/
Data
Forecast:
Using the Photone app, I walked down Maldonado Way, where my site is located, and recorded the meter readings. These measurements were taken on a cloudy, overcast day. The image on the left is a mapping of these readings. My site offers the best location in terms of quality of sunlight for the plants as it has the highest PAR. These measurements of course were taken at ground level but still provides a good understanding of the lighting conditions in the area.
DDS: LVL Structure Framing and Steel
Connections
Mikah Cassidy (DS 2.05)
My proposal is a community center with a focus on demonstrating various aspects of Latin culture to the local area. opted for a more simplistic design to
I
first began with modeling the staircase of this timber structure to better understand its strength and discover where additional beams or bracing are needed to strengthen the structure.
first modeled the framing but it was flexible and fragile, which is not ideal for this type of building. Adding the vertical, diagonal bracing gave this structure a lot more support and made it much sturdier than before.
As highlighted in Figure 3, the structure will be attached to the church and railway bridge for additional support. looked at how timber might attached to the brick (Figure 4) and found many examples of wooden pergolas constructed off the side of a house (Figure 5). This was a good starting point however these pergolas were not weight bearing and I therefore needed to look into something that could support a larger load.
German brand Pollmeier creates a beech hardwood LVL titled “BauBuche” in different dimensions for various applications. Pollmeier describes their LVL as “the green alternative to reinforced concrete posts and beams” with an “outstanding” embodied CO2 content. While the specifics for cost are not clarified, the website mentions this material is “cost-efficient” due to its “high density and homogeneity” which reduces the amount of connectors and thus their cost. Pollmeier sustainably sources their beech hardwood from local central European forests with a Programme for the Endorsement of Forest Certification, or PEFC and makes the veneers at their facilities in Creuzburg, Germany.
1.171kg CO2
Low Cost
With the Black and White Building’s flushed steel plates as inspiration, I drew possible connections that can be used in the context of my proposal (Figures 15, 16, and 17). also thought to keep the plate flushed as it is in Waugh Thistleton to minimize the “clunky” look of these fixings as illustrated in Figure 18. I looked to amend the awkward gap show in Figure 14 by thinking of a way for this steel fixing to be fixed into the brick (Figures 18 and 19)







Because the proposal is designed to appear as a delicate framing, the materials used are very important to constructing a strong and sturdy structure. I liked the natural qualities of wood and the way it simultaneously compliments both the harsher brick of the surrounding built environment and the soft greenery and foliage within the building leading me to select Laminated Veneer Lumber, or LVL, as the structural material choice (Figure 7). LVL is an engineered lumber made through a process very similar to plywood in that it is multiple layers of wood connected with adhesives to create stronger beams. It is comparable to glue laminated timber but can tolerate higher amounts of stress. It is less likely to warp than typical timber. “The high load-bearing capacity of [LVL] reduces dimensions and cross-sections in timber construction - that means more space and lower material consumption.”
As a precedent, I looked at the Black and White Building by Waugh
Whichever arrangement of plates being used, thought to keep the plate flushed as it is in Waugh Thistleton to minimize the “clunky” look of these fixings (Figure 20) While you will still see the bolts used to hold these in place, it is far less intrusive than seeing the whole metal plate.
drew a different connection using a standardized influence but felt that the arrangement of the steel flitch plates in Figure 14 left an awkward gap between the proposal and the brick side, which would also reduce the floor area inside the proposal itself. To try and amend this, I thought about how the fixing could possible be set within the brick
Figure 19
Figure 18
Cross Section
Figure 20

“Oasis” is a Latin American culture-focused community center. Drawing inspiration from the Escuela Pias case study and it’s “parasitic” refurbishment, I have created a building that sits tucked away from the busy Walworth Road and Elephant and Castle junction but still in a central proximity to the community. The project is comprised of six main areas, two of which are located in the same volume, on the floor above. The purpose of the project is to provide a space full of qualities and media that make up the Latin American culture. In this space, you can explore a variety of media specific to the culture through literature, music, games, art, dance, and film. The primary target is to create a center focused on Latin American culture that is the “link” to connecting or reconnecting with Latin American culture and heritage while living away from it. Its variety of cultural points throughout the building can serve as familiar reminders to immigrants or an introduction to second-generation people or anyone that is curious to learn more. Though visibility is increasing, Latin American Londoners do not have much recognition in the capital city. From personal experience, I believe this can lead to feeling disconnected from their culture and heritage and this center aims to reverse that and increase appreciation and knowledge of the vibrant culture.
The space is decorated with tropical plants that, while not necessarily native to Central or South America, are ones that are commonly found to contribute to the overall aesthetic and environment of the spaces. The structure of the building is designed simply in form to allow the naturally beautiful qualities of the tropical foliage the spotlight
Pinpointing a site was the first step to creating the design proposal which additionally influenced the program. Elephant and Castle has one of the largest population of Latin Americans in London, with several business located just off Walworth Road that represent various countries in Latin America. There is a concentration of businesses specifically along Maldonado Walk where the proposal is located. Maldonado Walk is a small path at the base of the Strata Tower that cuts from Walworth Road to Hampton Street. This was a very difficult site to design a proposal into because of the surrounding structures however is an excellent location.

The placement of the building on the site took inspiration from the case study, personal opinion, and constraints in the brief. The project was instructed to be created with a direct connection to the site, which should then inform the design. Rather than designing a free standing form that can be placed anywhere, these projects had to be site specific which led to elevating the project to avoid intruding the ground space and connect it to the site around it.
The proposal is positioned with narrow entrances to the site which could create a challenge for access however there is a good sized lot in front. Additionally, the building is fixed off a train bridge which could potentially cause disruption to the train services or construction.
The proposal comprises of nine spaces specifically included with the idea of bringing one closer to understanding, learning, or reminding them of the culture. The spaces are as follows:
1: Language Learning Classrooms
2: Professional Offices
3: “Urban Living Room” Greenhouse
4: Media Room
5: Dance
When it was time to begin designing my proposal on the site, I worked primarily in volumes to figure out an arrangement of my building. Because this project is an extension of the “Urban Living Room” I designed, I already knew what physical qualities I wanted it to have in terms of aesthetic and materiality and just needed to work through a layout.
Following this “parasite” idea from the Escuela Pías case study, the proposal is fixed to the brick train bridge and neighboring United Reformed Church, employing the use of existing structures.
The location of the building was fit to receive the best sunlight on the site. The proposal was set into a difficult site with many restrictions informing the size and arrangement of the proposal and in how the spaces were later divided up creating a building that is well suited and optimized to its purpose and its size.
The facade is a combination of frosted and transparent polycarbonate, allowing for increased natural light to illuminate the space and thus not relying solely on electricity for artificial lighting. In future design development of this project, there is a potential for rainwater collection to be explored to be reused in watering the plants within the proposal. The spaces of the proposal can all be used for a variety of activity however should the building need to be taken down, it was designed to be constructed with mechanical fixtures, meaning it could be disassembled in the future and the material easily recycled.




We were given a list of case studies which were assigned on a first-come-first-serve basis. I picked the library and lecture hall of the National Distance Education University which is located within the refurbished Escuela Pías de San Fernando in Madrid, Spain. It was previously a church that burned down during the Spanish Civil War in 1936. The refurbishment was designed by architect José Ignacio Linazasoro and was completed as part of a larger rehabilitation project in 2004. The building was thoughtfully modified to suit its current needs while still maintaining some significant elements of what it once was. The library has a beautiful arrangement of ceiling heights that contribute to the grandeur of the space itself. The diversity in ceiling heights creates a feeling of compression and expansion as you move through the space, creating an experience of transporting to an atmosphere or environment entirely different from the one in which one came. These refurbishments can also be likened to a friendlier or welcomed “parasite” in which they attached to the pre-existing structure and create a new form entirely. These experiences through a space and the qualities are some I aimed to replicate in my own project.


A form of timber was initially selected as the main building material for aesthetic purposes. Further research showed that Laminated-Veneer-Lumber, or LVL, would make a great choice for its aesthetic qualities but also for its strength and for being an environmentally friendlier option. German brand Pollmeier creates a beech hardwood LVL titled “BauBuche” in different dimensions for various applications. Pollmeier describes their LVL as “the green alternative to reinforced concrete posts and beams” with an “outstanding” embodied CO2 content. While the specifics for cost are not clarified, the website mentions this material is “cost-efficient” due to its “high density and homogeneity” which reduces the amount of connectors and thus their cost. Pollmeier sustainably sources their beech hardwood from local central European forests with a Programme for the Endorsement of Forest Certification, or PEFC and makes the veneers at their facilities in Creuzburg, Germany. Being fixed to already existing buildings also creates ease in connecting the necessary MEP for the building to already existing systems.

“Parasite”