PERTENCENTES: Centro de Cultura Nordestina em Duque de Caxias | TFG

Page 1

TRABALHO FINAL DE GRADUAÇÃO UNIVERSIDADE UNIGRANRIO CENTRO DE CULTURA N0RDESTINA EM DUQUE DE CAXIAS

UNIVERSIDADE E DO GRANDE RIO PROF. JOSÉ DE SOUZA HERDY UNIGRANRIO ESCOLA DE CIÊNCIA E TECNOLOGIA CURSO DE ARQUITETURA E URBANISMO

MIKAELLY EMILLY EVANGELISTA SILVA

PERTENCENTES: CENTRO DE CULTURA NORDESTINA EM DUQUE DE CAXIAS

TRABALHO FINAL DE GRADUAÇÃO

DUQUE
2022
DE CAXIAS

MIKAELLY EMILLY EVANGELISTA SILVA

PERTENCENTES: CENTRO DE CULTURA NORDESTINA EM DUQUE DE CAXIAS

Trabalho Final de Graduação de Curso apresentado à Universidade do Grande Rio Professor José de Souza Herdy, como parte dos requisitos necessários para obtenção do título de Bacharel em Arquitetura e Urbanismo.

Orientador: Prof. Gabriel Botelho Neves da Rosa

DUQUE DE CAXIAS 2022

PERTENCENTES: CENTRO DE CULTURA NORDESTINA EM DUQUE DE CAXIAS

MIKAELLY EMILLY EVANGELISTA SILVA

Aprovada em:

BANCA EXAMINADORA

Prof. Gabriel Botelho Neves da Rosa ORIENTADOR

Prof. Rachel Sampaio de Oliveira SUPERVISOR

Prof. Filipe Ungaro Marino CONVIDADO

"(...) a gente tem obrigação de fazer cultura pra preservar as tradições, pra contar sua própria história. Porque, senão, ninguém vai querer contar. Procurando sempre as estradas, (...) Estivesse onde estivesse (...). Onde eu ia, encontrava as colônias nordestinas (...), procurando se apossar de um pedacinho de terra, um meio de vida melhor… E eu cantava pra eles, lá onde estivesses (...)"

Luiz Gonzaga, 1988.

Figura 1 Desenho de Luiz Gonzaga.

Fonte: Davi Teixeira.

Em primeiro lugar gostaria de agredecer a Deus, pois era nEle que eu me apoiava nos momentos mais difícies, e que não teria chegado até aqui sem. Agradeço aos meus pais, Maricélia e Edmir, por tudo, principalmente a minha mãe, a minha melhor amiga, que não deixou que eu desistisse nem por um minuto de mim, e derrubou barreiras para que hoje eu pudesse estar aqui. Jamais serei capaz de retribuir tudo que a senhora fez, essa vitória é sua.

A minha avó, Lindalva (in memoriam), que eu sei que sempre esteve olhando por mim e me mandando forças para continuar.

Ao meu namorado, Thiago, que acreditou em mim e me incentivou a crescer em todos os momentos.

Aos meus amigos, Nathália e Victor, que seguraram a minha mão quando mais precisei de apoio.

Ao meu orientador, Professor Gabriel Botelho, que sempre esteve disposto a me ajudar a traçar bons caminhos e entender minhas ideias quando não sabia por onde começar.

A Universidade Unigranrio e todos os professores do curso de Arquitetura e Urbanismo, que me acolheram na minha construção profissional.

Ao Programa Universidade para Todos PROUNI, que possibilitou que eu conseguisse a minha formação superior.

A minha origem nordestina, que permitiu que hoje eu pudesse disseminar essa vasta e linda cultura à outras pessoas.

A todos que de qualquer maneira fizeram parte da minha formação hoje. E por último agradeço a mim mesma, por não ter desistido dos meus sonhos. Foram caminhos árduos, noites em claros e grandes inseguranças, mas todos esses momentos me levaram até aqui.

Obrigada.

AGRADECIMENTOS

PERTENCENTES

"Retirantes" é usado ao se referir à pessoas que deixam sua terra devido à seca e a miséria em busca de uma vida melhor, e esse é um termo muito utlizado para se referer aos nordestinos que migraram fugindo das secas do sertão paras as cidades grandes localizadas no Sul e Sudeste do Brasil. Com essa busca de um novo lugar para recomeçar os nordestinos acabaram encontrando novos lugares e um novo lar para que pudessem chamar de seu. Mas ter de abandonar sua vida e cultura é sempre díficil e solitário, assim se faz necessário encontrar um espaço de pertencimento e acolhimento, onde todos falem a mesma língua e também que seja uma forma de não esquecer a sua própria história e repassar está para as outras gerações.

"Pertencente" é que faz parte ou pertence a algo (ou alguém). Ao transformar essa palavra em plural, ela concede um contraste com os "Retirantes". O povo nordestino agora deixa de ser um povo de "Retirantes" a procura de ser e passam a ser "Pertencentes" , pois agora pertencem a um lugar e são parte dessa cultura.

Contextualização do Tema..........................................14

Tema...............................................................................................................14

Tema Específico...........................................................................................14

Particularidade do Tema............................................................................14

Objetivo Geral...............................................................................................14

Objetivos Específicos..................................................................................14

Justificativa/Relevância...............................................................................15

Projeto...........................................................................30

Programa de necessidades......................................................................30 Situação........................................................................................................32

Implantação.................................................................................................33

Diagrama Explodido da Edificação........................................................34

Diagrama de Concepção da Forma e Circulação Vertical..........................................................................................................35

Estudo de Insolação...................................................................................36

Problematização do Tema...........................................16

Cultura e sua importância..........................................................................16

Contextualização e importância de um Centro de Cultura................16

Relação entre Arquitetura e o Centro Cultural.....................................17

A relação do Nordeste e do Rio de Janeiro............................................18

Cultura Nordestina em Duque de Caxias...............................................19

Unidades culturais nordestinas em todo o Estado do Rio de Janeiro............................................................................................................19

A relação entre o Nordeste e a Arquitetura..........................................20

Proposições Iniciais......................................................22

Procedimentos Metodológicos.................................................................22 Referências....................................................................................................23

Diretrizes ......................................................................................................25 Cronograma..................................................................................................26

Localização...................................................................27

Diagrama da Aplicação dos Cobogós...................................................37

Planta Baixa Área de Eventos e Espaço Cinema.............................38

Fluxos | Área Eventos e Espaço Cinema...............................................39

Planta Baixa | Ateliês................................................................................40

Fluxos | Ateliês............................................................................................41

Planta Baixa | Lazer e Cultura.................................................................42

Fluxos | Lazer e Cultura............................................................................43

Planta Baixa | Área Dos Funcionários e Administrativo...................44

Fluxos | Área Dos Funcionários e Administrativo..............................45

Planta Baixa | Área Técnica e Cobertura..............................................46

SUMÁRIO
Corte Longitudinal....................................................................................47 Fachadas......................................................................................................48 Referências Bibliográficas......................................... 63 Perspectivas.................................................................49

CONTEXTUALIZAÇÃO DO TEMA

Tema

Centro de Cultura Nordestina em Duque de Caxias.

Tema Específico

O Centro de Cultura Nordestina será um espaço de resgate de vivências e memórias da identidade do povo nordestino. Particularidade do tema

Utilizar da criação de espaços no projeto para trazer os elementos culturais do Nordeste.

Objetivos Específicos

Difundir a cultura nordestina com a criação de espaços onde exibirão a história, música e as artes nordestinas;

Objetivo Geral

Projetar um de Centro de Cultura Nordestina para população de nordestinos em Duque de Caxias em função do acolhimento de suas memórias e de sua história, e para população não nordestina, como local de entendimento da cultura e vivenciamento do lazer.

Projetar ambientes para a comunidade local e público diverso, onde serão desenvolvidas atividades educacionais, oficinas e lazer;

-

Trazer elementos arquitetônicos nordestinos que remetam a história cultural.

14

Justificativa/Relevância

Esse tema surgiu como algo estritamente importante e pessoal para mim, já que sou nordestina. Vivo na pele a realidade que é sair de seu lugar de origem em busca de uma vida melhor e recomeçar do zero em um local diferente, principalmente em questão de cultura. Morando aqui há quase 14 anos pude observar como a falta de um espaço de acolhimento cultural e da identidade pode influenciar as nossas vidas, além de infelizmente ter que lidar com preconceitos e xenofobia.

Esse espaço cultural tem como objetivo reavivar a história da nação nordestina, que já faz parte da formação de Caxias, como na "Feira Nordestina" que acontece desde 1940, e também o "Forró na Feira" onde tem shows, ao lado da Estação de trem de Duque de Caxias. Além disso, esse projeto visa promover não somente a cultura para nordestinos, mas levar o lazer para as comunidades locais.

A busca por uma vida melhor é o que levou e leva a população nordestina há migrar para as grandes cidades, e foi dessa maneira que o povo nordestino criou uma relação bem pessoal com o Rio de Janeiro, especialmente dentro do campo de construção civil, como a obra da ponte Rio Niterói por exemplo, e no campo da indústria.

O Centro também trará apoio para aqueles que precisam, oferecendo oficinas e atividades, dentro do campo cultural, desde artesanato até dança. Desse jeito, o Centro de Cultura Nordestina trará ainda maior visibilidade para o povo nordestino e aproximará as pessoas do lazer e da cultura.

Após análises, percebi que apesar de existir um espaço cultural como palco da culinária, música, e artesanato na cidade do Rio, fazia-se ainda necessário um local de acolhimento que conseguisse transmitir a história da cultura desse povo na baixada fluminense. Segundo o IBGE (2010), Duque de Caxias é um dos munícipios do Rio de Janeiro que mais residem nordestinos.

15

PROBLEMATIZAÇÃO DO TEMA

Cultura e sua importância

A cultura está presente em todos os momentos da vida, é a criação de tudo que fazemos e que por consequente, acabamos por ser a própria cultura. A cultura é como sentimos e vivenciamos o mundo, expressadas de maneiras variadas e única (REGINA, 2006). Conhecer a cultura do local é algo necessário para conseguirmos nos encontrar como parte da sociedade. Pode se dizer que a cultura é um dos meios do processo social e meio de entender as sociedades contemporâneas e se entender, segundo Santos (1996).

Contextualização e importância de um Centro de Cultura

Um centro de cultura, deve ter como objetivo trazer a conexão das pessoas do local e do meio que será implantado, sempre levando em conta a realidade da vida da comunidade e as vivências locais. Sem estar atrelada a qualquer classe social, mas que também não deve ser neutra ou apolítica (COELHO, 1986).

Infelizmente, boa parte dos brasileiros não possuem acesso a atividades culturais ou lazer, em boa parte devido a questões financeiras e outras por não existir maior empenho no desenvolvimento dessa área pelos governantes, fazendo com muitos não consigam assim usufruir de algo que é seu por direito. Ficando claro que é importante investir no meio cultural, pois só com ela é possível entender e unificar a diferenças e trazer mudanças na sociedade.

Os centros culturais devem ter como objetivos: trabalhar as diferenças e diversidade dos pensamentos, além de mostrar outro olhar do mundo, sem serem os discursos já enraizados que são nos ensinados na escola ou pela mídia (CENNI, 1991, p. 199); trazer informação e permitir a liberdade de discuti lo (COELHO, 1986, p.124); e ser um espaço para inovação e desvelamento da realidade (RAMOS, 2007, p. 96).

O centro de cultura, de acordo com os autores Teixeira Coelho e Milanesi (1997), deve ser também visto como um local onde devem acontecer três ações que são comuns do meio cultural: a criação, que busca difundir a reprodução de itens culturais, produção artística e educação estética, com oficinas, laboratórios e cursos; a circulação, que visa que a informação e os bens culturais devem ser públicos com a participação da comunidade; e a preservação, onde para manter a memória do bem cultural e da sociedade, ele deve ser bem preservado.

16

Por fim, os centros de culturas são capazes também de trazer o lazer de diversas maneiras como por meio de oficinas que tenham músicas, artes e outras manifestações culturais, trazendo assim bem-estar e diversão para a comunidade. Dessa forma, mostra que proporcionar o lazer é algo essencial na elaboração de um centro cultural (SILVA, 2013).

Relação entre Arquitetura e o Centro Cultural

Com o passar do tempo e a transformação da sociedade a cultura também passou por evoluções, principalmente no quesito de mudar a como a cidade é vista. A cultura passou a ser vista como uma mercadoria para o poder público, que visava o crescimento das cidades atraindo a população. Advinda da Europa, especificamente na França, foi onde o conceito de Centro Cultural moderno surgiu, em 1975, com a inauguração do Centro Nacional de Arte e Cultura Georges Pompidou, dos arquitetos Renzo Piano e Richard Rogers, sendo um marco muito importante já que teve grande nfluência em todo o mundo. Passou a ser valorizada a arquitetura, pois se buscava a criação de centros culturais emblemáticos que enriquecessem a cidade e o turismo.influência

No Brasil, os primeiros Centros Culturais foram implantados nos anos 80, mais especificamente na cidade de São Paulo: o Centro Cultural do Jabaquara e o Centro Cultural São Paulo ou Vergueiro, como iniciativa do Ministério da Educação (Ramos, 2007). Com isso, a cultura e arquitetura passou a ser utilizada como moeda de troca para o crescimento financeiro do país, com o turismo.

Os Centros Culturais modernos, hoje não são só apenas lugares que promovem a cultura, mas que são espaços onde abrigam outras diversas funções em só lugar, como museus, bibliotecas, anfiteatros, galerias entre tantos outros ambientes que tenham a função de difundir a cultura (Ramos, 2007).

A arquitetura, e os Centros Culturais estão estritamente ligados, já que para um bom projeto é necessário que este possua uma boa funcionalidade, proporcione lazer e que seja acessível, democrático, funcional e esteticamente belo. Além disso, a arquitetura deve proporcionar espaços que tragam a integração do público com o local e de suas atividades, com espaços integrados e visualmente livres.

Segundo a autora Neves, o centro de cultura deve ser um espaço onde haja conexão com as pessoas da comunidade e com seu entorno:

17

O centro de cultura é um espaço que deve construir laços com a comunidade e os acontecimentos locais, funcionando como um equipamento informacional, no qual proporciona cultura para os diferentes grupos sociais, buscando promover a sua integração. (NEVES, 2012, p. 1)

O Centro Cultural também é capaz de trazer a revitalização das áreas urbanas em que está inserido, mostrando assim que a arquitetura moderna tem um papel importante em como o projeto irá se comportar no espaço como já mencionado anteriormente, procurando sempre atender as necessidades do local, como cita Ghirardo:

Para a concepção do projeto de um Centro Cultural o arquiteto precisa ter em mente quais as necessidades do tipo de organização que vai ser estruturada e quais vão ser os tipos de atividades que irão ser promovidas nos espaços, para que dessa forma, possa ser projetado de maneira que atenda todas as condições do programa de necessidades, evitando problemas futuros (MILANESI, 2003).

A relação do Nordeste e do Rio de Janeiro

Governos, bancos, grandes empresas e instituições culturais como os museus adotaram a arquitetura moderna como sua marca, em prédios geralmente bem construídos. Mas os arquitetos ganharam crescente prestígio ao produzirem edifícios para incorporadores mais preocupados com a rapidez, o custo baixo e o efeito espetacular. (GHIRARDO, 2002, p. 5- 6)

O Rio de Janeiro acolhe muitas histórias, como acolheu as tradições e o povo nordestino. Com a migração em busca de empregos para o Sudeste os nordestinos acabaram encontrando aqui um local para uma vida melhor, onde contribuíram para o crescimento do Estado, dentro do campo da construção civil, participando numa das maiores ligações do Rio com Niterói e as Regiões dos Lagos, a ponte Rio-Niterói.

É possível encontrar vestígios da cultura no samba, na culinária e nas comemorações. Hoje, no Estado do Rio Janeiro, de acordo com o Instituto Brasileiro de Geografia e Estatística (IBGE) residem 2,1 milhão de migrantes no estado, sendo 1,5 milhão desses nordestinos, onde a sua maioria está localizada na cidade metropolitana do Rio de Janeiro, em Duque de Caxias e em São Gonçalo.

18

Figura 2 – Dados do IBGE em gráfico.

Fonte: IBGE, 2010, a autora.

Cultura Nordestina em Duque de Caxias

Com a chegada dos nordestinos no Município, em meados de 1940, também veio a criação da Feira de Caxias (ou Feira Nordestina como também é conhecida), que faz parte da história dos moradores, pois traz o resgate da cultura nordestina. A feira está localizada nas Avenidas Duque de Caxias, Presidentes Vargas e em um trecho da Rua Prefeito José Carlos Lacerda, contando com diversos tipos de barracas. A Feira conta com dois quilômetros e meio de extensão e possuem grandes variedades da culinária nordestina e por lá já passaram Luiz Gonzaga e Jackson do Pandeiro.

se alocassem na Praça Roberto Silveira. Com isso, a lei municipal 1.831, de 13 de agosto de 2004, o nome do evento passou a se chamar Forró na Praça e que se popularizou como Forró na Feira. Hoje o Forró na Feira, se localiza ao lado da Estação de Trem de Duque de Caxias, na Avenida Presidente Vargas, porém enfrenta dificuldades de apresentação pois está próximo do Hospital e próximo a residências dos moradores. Mas sem dúvidas, a Feira e o Forró na Feira é um marco importante na vida dos Caxienses e Nordestinos.

Em 1998, a feira passou a fazer apresentações de forró pé de serra com o incentivo do coordenador de Cultura da Secretaria do município, o que acabou se tornando um sucesso, e fez com que as apresentações

Unidades culturais nordestinas em todo o Estado do Rio de Janeiro

No município de Duque de Caxias, mesmo possuindo uma grande população nordestina não existe um local propriamente direcionado a cultura. Atualmente existem apenas dois centros de Cultura Nordestina em todo o Estado:

19
Figura 3 Forró na Feira. Fonte: Extra, 2012.

A relação entre o Nordeste e a Arquitetura

O Nordeste é conhecido não é só conhecido pela sua vasta cultura, mas também por sua arquitetura que foi moldada por diversos anos, já que foi lá que chegou a primeira expedição portuguesa no Brasil. Com isso, a arquitetura colonial é fortemente encontrada em todos os estados nordestinos.

Também é possível ver a influência dos estilos europeus, no Maneirismo, que foi muito característico pela sua pintura branca, fachadas geométricas e frontões triangulares, e no barroco, vistas nas construções de igrejas. Apesar de todo domínio europeu, a arquitetura Nordestina também possui seus próprios métodos construtivos como é o caso da arquitetura vernacular.

A arquitetura vernacular está estritamente ligada aos aspectos culturais e geográficos do povo nordestino como sua identidade, onde são usados recursos naturais e técnicas próprias do local. A taipa ou pau a pique é um método construtivo vernacular que é bastante encontrado nas construções de casas pelo sertão. Nela são usados o barro e a madeira, e se dividem em duas técnicas construtivas: a taipa de mão e a taipa de pilão.

A taipa de mão também conhecida como pau a pique, taipa de sopapo ou taipa de sebe, utiliza o entrelaçamento das madeiras onde os vãos que são formados por elas são preenchidos com barro. Já a taipa de pilão, é uma estrutura resistente pois coloca a

20
Figura 4 Centro Luiz Gonzaga de Tradições Nordestinas (ou Feira de São Cristóvão) R. Campo de São Cristóvão São Cristóvão, Rio de Janeiro RJ . Fonte: Riotour, 2022. Figura 5 – Centro de Tradições Nordestinas de São Gonçalo - R. José Augusto Pereira dos Santos, 80 Neves, São Gonçalo - RJ Fonte: Jornal O São Gonçalo, 2020.

terra em fôrmas de madeira (os taipas) onde são compactadas ou apiloadas, diversas vezes, em camadas de quinze centímetros de altura.

Figura 6 Casa de taipa de pilão.

Fonte: Mel no Tacho, 2009.

A i a estética a construção, trazia a proteção em dias de calor e chuva, proporcionando o conforto térmico.

eram mais usados pelas famílias mais ricas, onde o térreo era reservado para o comércio e o andar de cima para moradia.

As casas, tanto térreas como os sobrados, tinham como características as altas platibandas que escondiam os telhados e traziam uma bela fachada a casa, além de evitar que água da chuva fosse para calçada, e podiam ser trabalhadas com vários tipos de elementos decorativos.

As casas típicas nordestinas também possuem como aspectos a sua fachada colada na calçada, sem recuos; os telhados de duas águas, jogando a água pluvial para frente e para os fundos da construção; as pinturas coloridas e à base de cal das fachadas, de forma artesanal; as portas e janelas geralmente de madeira; e telhados utilizando geralmente a telha cerâmica aparente, sem forros.

Figura 7 Fachadas mostrando as cores e a platibanda das casas nordestinas.

Mas com certeza os traços coloniais são os mais encontrados nas cidades nordestinas, elas podem ser encontradas em dois tipos de habitações mais usuais: a casa térrea e os sobrados. As casas térreas são as mais vistas e populares, já que os sobrados

Fonte: Uol, 1982.

21

PROPOSIÇÕES INICIAIS

Procedimentos Metodológicos

Para o desenvolvimento desse trabalho, serão utilizadas algumas etapas metodológicas como base a serem seguidas:

I. Revisão bibliográfica consultada e analisada em artigos, livros, publicações, sites e dados estatísticos, tratando sobre a cultura, centros de cultura, a relação entre arquitetura e a cultura, e da cultura e arquitetura nordestina;

V. Estudo inicial do projeto com base na definição de conceitos preliminares determinando: Conceito e Partido, Programa de necessidades e a setorização do projeto, assim como seu fluxograma, croquis, desenhos esquemáticos e plano de massas;

VI. Desenvolvimento do projeto arquitetônico utilizando o apoio de softwares como o Autocad, SketchUp e V ray, onde serão elaborados plantas baixas, cortes, fachadas, especificações e perspectivas.

II. Análise arquitetônica de referências projetuais com relação ou com semelhanças ao tema centro de cultura ou centro cultural, para o embasamento, entendimento e a concepção da criação do projeto;

III. Realização de levantamento fotográfico do terreno e análise da Área de Intervenção, assim como seus impactos urbanísticos;

IV. Implementação de conceitos da cultura nordestina, assim como as características arquitetônicas da localidade em questão na concepção do projeto;

22

Referências

Museu Cais do Sertão - Recife, Pernambuco | Brasil

Arquitetura.

Figura 8 Museu Cais do Sertão.

Fonte: ArchDaily, 2018.

O Museu Cais do Sertão é um projeto do Brasil Arquitetura, do ano de 2018, medindo 5000 m², que utiliza uma grande área de armazéns do antigo Porto do Recife, em frente ao mar. O projeto usa como o tema o Sertão, onde toda sua estrutura é de concreto pigmentado na cor ocre. Além disso, seu térreo possui 65 metros de

vão livre, criando uma praça coberta que protege do sol e da chuva.

O projeto conta com um grande cobogó em concreto geopolimérico, (este que teve origem no Recife), com a função de criar um filtro de luz e remeter com seu desenho a galhada da caatinga ou as rachaduras de solo seco. O cobogó traz também o contraste com a cor ocre, e essa "casca" é a sua logo marca.

Referência a ser usada: Uso do cobogó como filtro de luz e conexão com o exterior; O seu térreo livre; E os elementos construtivos t d N d t C b ó

Figuras 9, 10 e 11 – Museu Cais do Sertão.

Fonte: ArchDaily, 2018.

23

Centro Cultural Arauco - Arauco, Chile | Elton _ léniz.

Figura 12 – Centro Cultural Arauco.

Fonte: ArchDaily, 2018.

O Centro Cultural foi projetado pelo arquiteto Elton Léniz, em 2016 e possui a característica de não ser apenas um edifício, mas um espaço público, com seu térreo elevado sob pilotis, além de fazer o centro ser uma área permeável aos transeuntes por se localizar em uma esquina. No térreo estão localizadas todas as atividades direcionadas ao público se abrindo para um pátio coberto, enquanto na parte superior estão os outros serviços. Ainda, a construção possui um terreno mais compacto com 1.400 m².

Referência a ser usada: O seu Térreo sob pilotis deixando o livre; O seu espaço do terreno compacto mas que usou o seu programa de as áreas de maneira funcional; e o Uso do Brises.

Fonte: ArchDaily, 2018.

Fonte: ArchDaily, 2018.

Figura 16 Planta e elevação. Figuras 13, 14 e 15 Centro Cultural Arauco.
24

CENTRO CULTURAL NORDESTINO

VALORIZAÇÃO DA ARQUITETURA CULTURA E LAZER

IDENTIDADE

FAZER USO DA ARQUITETURA DE ORIGEM NORDESTINA, USANDO TÉCNICAS CONSTRUTIVAS E ELEMENTOS VISUAIS

PROJETAR ESPAÇOS ARQUITETÔNICOS QUE ESTIMULEM O ACESSO DA CULTURA, LAZER E EDUCAÇÃO PARA COMUNIDADE

CRIAR ESPAÇOS DE MÚSICA, HISTÓRIA, ARTES, DANÇAS E EXIBIÇÕES PARA DIFUNDIR A CULTURA NORDESTINA

25
DIRETRIZES
C 26

LOCALIZAÇÃO

BAIRRO VINTE E CINCO DE AGOSTO

O terreno escolhido para o projeto se localiza na Rua Professor José de Souza Herdy, Nº 46, no bairro Jardim Vinte e Cinco de Agosto em Duque de Caxias. Com sua medida em aproximadamente 1.387,46m², é um terreno de esquina, o que levou a escolha desse local, pois permite o acesso por 3 lados. Além disso, essa localização é favorecida pois está perto de vias importantes e vasto transporte público, o que traz um acesso mais fácil de outros municípios, principalmente da baixada.

PARAMÊTROS URBANÍSTICOS DO MUNICÍPIO DE DUQUE DE CAXIAS

ZONA MISTA 1 ZM1

TAXA DE OCUPAÇÃO 60% TAXA DE UTILIZAÇÃO 240%

GABARITO - NÃO INFORMADO DUQUE DE CAXIAS ÁREA DE INTERVENÇÃO

27

ANÁLISE DO ENTORNO

O terreno para implantação do projeto foi escolhido devido a sua proximidade aos principais pontos centrais de Duque de Caxias. A poucos metros está Estação de Trem que liga o Rio de Janeiro a Duque de Caxias, além do terminais rodoviários que se encontram próximos. E é um bairro de área mista, com comércios, serviços e residências. Em frente ao terreno está localizada a Universidade Unigranrio e o Shopping, que faz com esse local tenha um grande fluxo de pessoas, e o seu entorno é caracterizado por gabaritos que variam entre 10 e 30 metros.

Rua

Rua Major Frazão

Av.

Av. Brg. Lima e

Av. Pres. Vargas

Estação de Trem Duque de Caxias

Rodoviária Intermunicipal Teatro Raul Cortez e Biblioteca Governador Leonel Brizola Mercado Municipal Rodoviária Municipal e Intermunicipal Prefeitura 1º Distrito Universidade Unigranrio Universidade Estácio Escola de Samba Grande Rio Teatro Procópio Ferreira, Instituto Histórico e Câmara Municipal Duque de Caxias Fonte: Google Earth. Rua Aílton Costa Professor José de Souza Herdy Terreno escolhido Figura 17: Mapa de Caxias. Gov. Leonel de Moura Brizola Silva Praça Roberto Silveira Linha Férrea Ramal Saracuruna
28
VIAS PRINCIPAIS

ANÁLISE DO LOCAL

Fonte: Google Earth, 2022.

Figura 18 Vista do terreno em obras, mostrando seu declive.

Fonte: Google Earth, 2022.

Figura 19 Vista do terreno com a praça, mostrando seu declive.

Fonte: Google Earth, 2022.

Figura 20 – Vista do terreno na rua Professor José de Souza Herdy, em obras.

Rua Major Frazão

Rua Aílton Costa

Figura 21 Vista do terreno na rua Professor José de Souza Herdy, atualmente.

O terreno do projeto possui um declive que faz com a parte mais baixa, na Rua Major Frazão, esteja num nível 0,00, enquanto a mais alta está em um nível +6,85, na Rua Aílton Costa. Atualmente, o terreno é uma praça que se divide em 3 platôs, sendo o primero nível a +0,15, o segundo a +3,65 e o último a +7,00. Para evitar mais movimentos de terras e cortes, será usado esse níveis como base para o desenvolvimento do projeto.

Rua Professor José de Souza Herdy Fonte: Google Earth ,2022. Fonte: Google Earth, 2022.
29
Figura 22 – Ampliação do local do terreno.

SETORIZAÇÃO

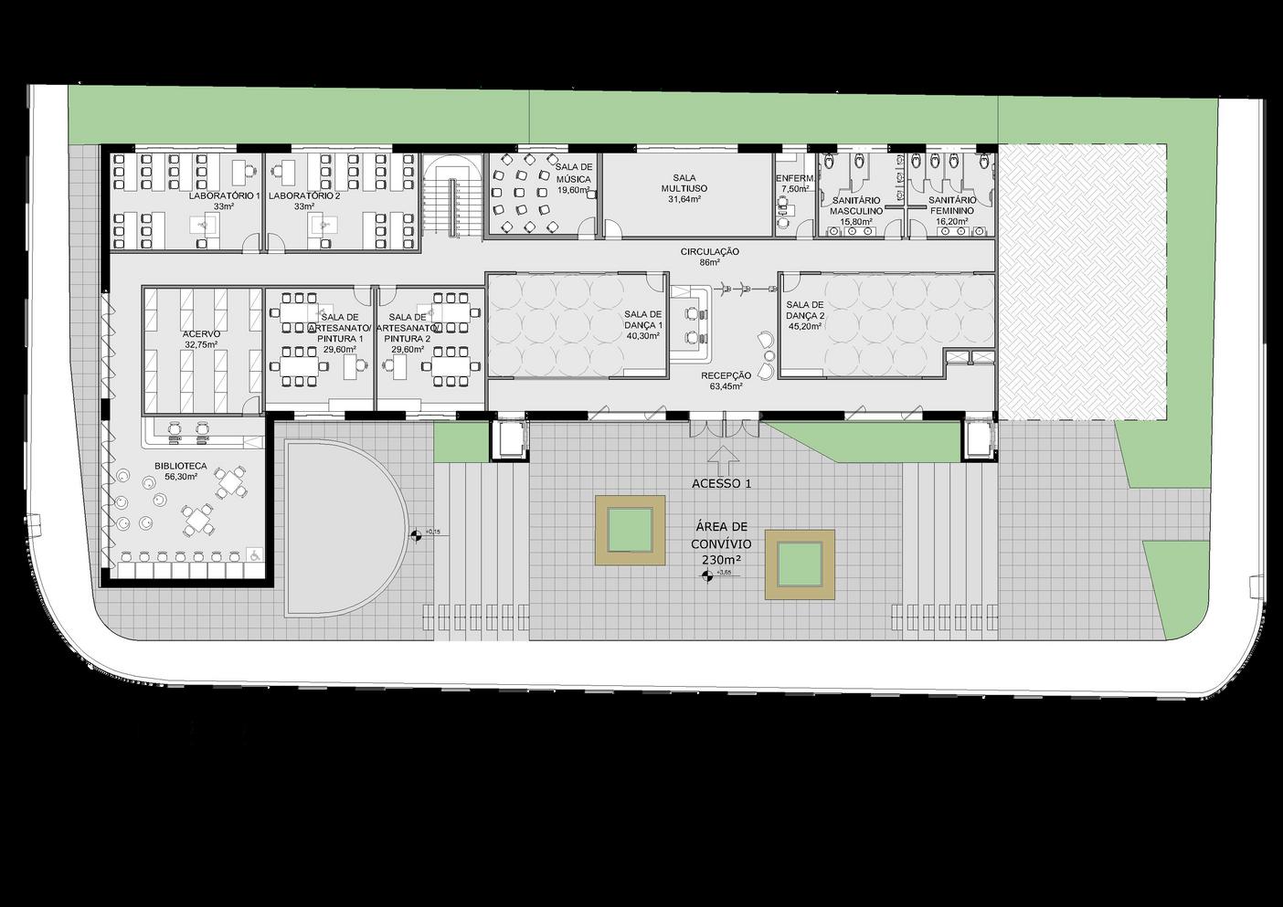
PROGRAMA DE NECESSIDADES
30
COBERTURA 3° PAVIMENTO 2° PAVIMENTO 1° PAVIMENTO TÉRREO CULTURA PÚBLICO ADMINISTRAÇÃO SERVIÇO

PAVIMENTO AMBIENTE

PALCO APRESENTAÇÕES/ ANFITEATRO/CINEMA ABERTO 42m²

TABELA - PROGRAMA DE NECESSIDADES

TÉRREO

ÁREA DE EVENTOS 372,43m² ÁREA EXTERNA 83,37m²

AMBIENTE

CIRCULAÇÃO INTERNA + VERTICAL 94,20m² 1° PAVIMENTO

RECEPÇÃO 45,94m²

PAVIMENTO

RECEPÇÃO 63,45m²

BIBLIOTECA 56,30m²

ARCEVO 32,75m²

LABORATÓRIO 1 33m²

LABORATÓRIO 2 33m²

SALA DE ARTESANATO 1 29,60m²

SALA DE ARTESANATO 2 29,60m²

CIRCULAÇÃO VERTICAL 4,10m² 1°

SALA DE MÚSICA 19,60m²

SALA DE MULTIUSO 31,64m²

SALA DE DANÇA 1 40,30 m²

SALA DE DANÇA 2 63,45 m²

ENFERMAGEM 7,50m²

SANITÁRIO MASCULINO 15,80m²

SANITÁRIO FEMININO 16,20m²

PAVIMENTO 2°

PAVIMENTO

GALERIA DE EXPOSIÇÕES 91,54m² DEPÓSITO DE LIXO 6,41m² DML 2,40m² AUDITÓRIO 103 PESSOAS 139,94m² CAMARIM 16,14m² PÁTIO DESCOBERTO 64,45 m²

SANITÁRIO MASCULINO 15,80m²

SANITÁRIO FEMININO 16,20m² PRAÇA ALIMENT./ÁREA CONVÍVIO 197,45m² RESTAURANTE 1 11m² RESTAURANTE 2 11m² CIRCULAÇÃO INTERNA + VERTICAL 91,06m²

3° PAVIMENTO

RECEPÇÃO/SECRETARIA 36,95m² ALMOXARIFADO 7,60m² CENTRAL DE SEGURANÇA 8,10m²

PAVIMENTO AMBIENTE ÁREA DE CONVÍVIO/CIRCULAÇÃO 114,20m²

3° PAVIMENTO

SALA DOS INTRUTORES 10,77m²

CENTRAL DE SEGURANÇA 8,10m² SALA DIREÇÃO 10,77m²

ADMINISTRAÇÃO 17,52m²

SALA DE REUNIÃO 11,10m²

SALA DE PROJEÇÃO 9,07m² COPA 10m²

AUDITÓRIO 103 PESSOAS 139,94m²

SANITÁRIO MASCULINO 6,84m²

SANITÁRIO FEMININO 7,40m² SANITÁRIO PCD 2,95m²

31
32
A TOTAL DO TE DO PROJETO: Fonte: Google Ea SITUAÇÃO Figura 23: Mapa da área do terreno.

ACESSOS FLUXO DE PESSOAS

IMPLANTAÇÃO
33
34
DIAGRAMA EXPLODIDO DA EDIFICAÇÃO COBERTURA E ÁREA TÉCNICA ÁREA DOS FUNCIONÁRIOS E ADMINISTRATIVO LAZER E CULTURA ATELIÊS ÁREA EVENTOS E ESPAÇO CINEMA ESPAÇO LAZER COBOGÓS

CIRCULAÇÃO VERTICAL

CIRCULAÇÃO ELEVADOR EXTERNO

CIRCULAÇÃO ESCADA INTERNA

Primeiro a forma concebida como uma caixa, localizada ao final do terreno, a fim de deixar o espaço a frente livre para uso de convívio.

Depois o térreo foi colocado sob pilotis deixando essa área livre e coberta, auxiliando em dias de muito sol e chuva. Também foi projetado um bloco a frente sob pilotis com a função da parede lateral receber a projeção de filmes em telão, já que conta com uma arquibancada a sua frente, protejada na curva de nível do terreno.

E por último foi adcionada a circulação vertical com os elevadores para fora da edificação. Devido ao grande declive, foi necessário protejar dois elevadores com portas duplas que atendassem todas as áreas do projeto e os platôs do terreno, e trouxessem acessibilidade para todos.

DIAGRAMA DE CONCEPÇÃO DA FORMA E
35
9:00 h VERÃO INVERNO L O N S 9:00 h ESTUDO DE INSOLAÇÃO SOLSTÍCIO DE INVERNO SOLSTÍCIO DE VERÃO 12:00 h 36

Elementos usados para diminuir a temperatura e insolação da edificação

Para diminuir a temperatura dentro da edificação foi usado a Taipa de pilão nas paredes externas, que consegue absorver durante o dia o calor e manter o ambiente interno com temperatura amena enquanto a noite as paredes liberam o calor absorv

DIAGRAMA DA APLICAÇÃO DOS

Figura 23 Taipa de Pilão.

Fonte: Google, 2022.

E para diminuição da insolação projetou se uma malha de cobogós com um desenho único inspirado na Flor de Malta do Chapéu de Cangaceiro, elemento nordestino importante, aplicado nas paredes laterais e fachada frontal. Os cobogós de concreto medem 1,05x1,05m e pintados na cor branca, causando contraste com a cor da Taipa.

Figura 24 Flor de Malta.

Fonte: Brasil de Fato, 2022.

COBOGÓS
37
0 2,5 5 10m
38
PLANTA BAIXA | ÁREA EVENTOS E ESPAÇO CINEMA

CINEMA

ÁREA EXTERNA

ÁREA DE EVENTOS

FLUXO DO PÚBLICO

FLUXO DOS ELEVADORES

FLUXOS | ÁREA EVENTOS E ESPAÇO
PALCO APRESENTAÇÕES/ ANFITEATRO/ CINEMA ABERTO 39
PLANTA BAIXA | ATELIÊS 0 2,5 5 10m 40

LABORATÓRIO 1

LABORATÓRIO 2

SANITÁRIO MASCULINO

ENFERMARIA

SALA MULTIUSO SALA DE MÚSICA

SALA DE ARTESANATO/ PINTURA 1

SANITÁRIO FEMININO ACERVO

SALA DE DANÇA 2 SALA DE DANÇA 1 BIBLIOTECA

SALA DE ARTESANATO/ PINTURA 2

FLUXO DO PÚBLICO

FLUXO DOS ELEVADORES

FLUXOS |
ATELIÊS
41
RECEPÇÃO
0 2,5 5 10m PLANTA BAIXA | LAZER E CULTURA 42

FLUXOS | LAZER E CULTURA

GALERIA DE EXPOSIÇÕES SANITÁRIO FEMININO

SANITÁRIO MASCULINO

FLUXO DO PÚBLICO

FLUXO DOS ELEVADORES

43
AUDITÓRIO 103 PESSOAS RESTAURANTE 1 RESTAURANTE 2 RECEPÇÃO CAMARIM PRAÇA ALIMENTAÇÃO/ ÁREA DE CONVÍVIO PÁTIO DESCOBERTO DÉP. LIXO/DML
0 2,5 5 10m PLANTA
| ÁREA
ADMINISTRATIVO 44
BAIXA
DOS FUNCIONÁRIOS E

AUDITÓRIO 103 PESSOAS

CAMARIM

SAN. PCD SALA DE PROJ.

SAN MASC.

SALA DE REUNIÃO SAN. FEM.

ÁREA DE CONVÍVIO

RECEPÇÃO/ SECRETÁRIA

ALMOX.

ADM COPA SALA DIREÇÃO

SALA DOS INSTRUTORES

CENTRAL DE SEGURANÇA

FLUXO DO PÚBLICO

FLUXO DOS ELEVADORES

FLUXOS | ÁREA DOS FUNCIONÁRIOS E ADMINISTRATIVO
45
0 2,5 5 10m PLANTA BAIXA | ÁREA TÉCNICA E COBERTURA 46
CORTE LONGITUDINAL CASA DEMÁQ. RES. SUP SALA REUNIÃO ADM SALA PROJ SAN PCD SAN FEM SAN MASC AUDITÓRIO SALA MULTIUSO ENFER.SAN. MASC. SAN. FEM. SALA DE MÚSICA LABORATÓRIO 2 LABORATÓRIO 1 GALERIA DE EXPOSIÇÕES SAN. MASC. SAN. FEM. DML PRAÇA ALIMENTAÇÃO /CONVÍVIO CAM ÁREA DE EVENTOS +3,65 +7,00 +10,50 +14,00 +16,50 +0,15 47
FACHADAS
Fachada Norte Fachada Oeste
48
Fachada Leste Fachada Sul
49
50
51
52
53
54
55
56
57
58
59
60
61
62

REFERÊNCIAS BIBLIOGRÁFICAS

Arquitetura Nordestina marcada por traços típicos das estruturas coloniais. BAHIA WS, 2022. Disponível em: https://www.bahia.ws/arquitetura no nordeste/#:~:text=A%20arquitetura%20da%20regi%C3%A3o%20nordeste,margeiam%20os%20limites%20dos%20terrenos. Acesso em: 01 maio 2022.

Arquitetura nordestina: uma profusão de materiais, formas e cores. Archtrends Portobello, 2021. Disponível em: https://archtrends.com/blog/arquitetura nordestina/. Acesso em: 01 maio 2022.

BATISTA, Luiz Felipe da Silva. A influência da arquitetura na criação de um centro cultural, na cidade de Bom Jesus do Galho-MG. Orientadores: Leonardo de Souza Caetano e Rogério Francisco Werly Costa. 2020. 65 f. TCC (Graduação) Curso de Arquitetura e Urbanismo, Faculdade Doctum de Caratinga, Caratinga, 2020. Disponível em: https://dspace.doctum.edu.br/bitstream/123456789/3514/1/TCC%20LUIZ%20FELIPE.pdf. Acesso em: 29 abr. 2022.

BORGES, Fabrícia Dias da C. M. F; ESPOLADOR, Thais Cristina. Centro Cultural: Evolução e Importância no Brasil. Colloquium Socialis, Presidente Prudente, v. 02, n. Especial 2, p.636 641, jul./dez. 2018. Disponível em: https://bit.ly/3aVFwqn. Acesso em: 30 abr. 2022.

CENNI, Roberto. Três centros culturais da cidade de São Paulo. 1991. 334p. Dissertação (Mestrado em Artes Plásticas) Escola de Comunicações e Artes, Universidade de São Paulo, São Paulo, 1991. Disponível em: https://www.teses.usp.br/teses/disponiveis/27/27131/tde 02092015 090526/publico/Cenni.pdf. Acesso em: 28 abr. 2022.

Centro Cultural Arauco / elton léniz. ArchDaily Brasil, 17 mar. 2018. Disponível em: https://www.archdaily.com.br/br/890527/centro-cultural-arauco-elton-leniz. Acesso em: 31 abr. 2022.

COELHO, Teixeira. Usos da cultura: políticas de ação cultural. Rio de Janeiro: Paz e Terra, 1986. 124 p.

63

CONCLA Comissão Nacional de Classificação. IBGE, 2022. Disponível em: https://cnae.ibge.gov.br/en/component/content/article/95 7a12/7a12 vamos conhecer o brasil/nosso povo/1471 migracao e deslocamento.html. Acesso em: 28 mar. 2022.

DOMINGUES, Tamires Ferreira. Complexo Cultural de Artes e Ofícios de Campanha: Política do Reuso para o Bem Cultural Correio Velho, no Centro Histórico. Orientador: Prof. (a) D. Sc. Luciana Bracarense Coimbra. 2018. 111 f. TCC (Graduação) Curso de Arquitetura e Urbanismo, Gestão de Engenharia, Arquitetura e Tecnologia GEAT, Centro Universitário do Sul de Minas, Minas Gerais, 2018. Disponível em: http://repositorio.unis.edu.br/bitstream/prefix/853/1/TCC%20 %20Tamiris%20Ferreira%20Domingues%20 %2029 11 18%20.pdf. Acesso em: 29 abr. 2022.

GHIRARDO, Diane Yvonne. Arquitetura contemporânea: uma história concisa. Tradução: Maria Beatriz de Medina. 2 ed. São Paulo: Martins Fontes, 2002, 320 p.

INTERLICHE, L. R. F.; PADOVAN, L. A implantação de centros culturais como elemento mediador na transformação e revalorização da sociedade. Departamento de Arquitetura e Urbanismo Faculdades Integradas de Ourinhos - FIO/FEMM, 2015. Disponível: http://www.cic.fio.edu.br/anaisCIC/anais2015/pdf/arq026.pdf. Acesso em: 29 abr. 2022.

LEITE, Bruna Rezende. Um Nordeste Carioca. O Prelo, 2020. Disponível em: https://oprelo.ioerj.com.br/2020/10/08/migracao nordestina rio de-janeiro/?doing wp cron=1651603014.1275188922882080078125. Acesso em: 28 mar. 2022.

LUCENA, Felipe. Relação Rio de Janeiro Nordeste. Diário do rio,2021. Disponível em: https://diariodorio.com/relacao rio de janeiro nordeste/. Acesso em: 28 mar. 2022.

MILANESI, Luís. A Casa da Invenção: Biblioteca, Centro Cultural. 4°. ed., São Paulo: Ateliê Editorial, 2003. 271 p.

64

NEVES, Renata Ribeiro. Centro Cultural: a Cultura à promoção da Arquitetura. Revista Especialize On line IPOG, Goiânia, 5° ed., v 01, n. 005, p.1 11, jan. 2013. Disponível em: https://bit.ly/399t5GR. Acesso em: 30 abr. 2022.

RAMOS, Luciene Borges. Centro Cultural: Território privilegiado da ação cultural e informacional na sociedade contemporânea. In: ENECULT - Encontro de Estudos Multidisciplinares em Cultura, 2007, Salvador. Disponível em: http://www.cult.ufba.br/enecult2007/LucieneBorgesRamos.pdf. Acesso em: 28 abr. 2022.

SANTOS, José Luiz dos. O que é cultura. 16°. ed. São Paulo: Brasiliense, 2006, 91 p. SILVA, Mário Fernandes da. Centros Culturais: Análise da produção bibliográfica. 2013. 206 p. Dissertação (Mestrado em Hospitalidade, área de concentração em Planejamento e Gestão Estratégica da Hospitalidade) Universidade Anhembi Morumbi. São Paulo, 2013. Disponível em: http://periodicos.anhembi.br/arquivos/trabalhos001/420255.pdf. Acesso em: 31 abr. 2022.

TIEPPO, Ticiana Toniolo. Centro de cultura, lazer e serviço na beira mar de São José. Orientador: Lino Fernando Bragança Peres. 2007. 62 f. TCC (Graduação) Curso de Arquitetura e Urbanismo, Departamento de Arquitetura e Urbanismo, Universidade Federal de Santa Catarina, Florianópolis, 2007. Disponível em: http://tcc.bu.ufsc.br/Arq270458.pdf. Acesso em: 29 abr. 2022.

14,5% dos brasileiros moram foram do estado em que nasceram, diz IBGE. G1,17 set. 2012. Disponível em: https://g1.globo.com/brasil/noticia/2012/10/145 dos brasileiros moram fora do estado em que nasceram diz ibge.html. Acesso em: 28 mar. 2022.

Centro Jackson do Pandeiro, ao lado da estação de trem, vai além dos ritmos nordestinos e bomba com o samba. Extra,2012. Disponível em: https://extra.globo.com/noticias/rio/baixada-fluminense/centro-jackson-do-pandeiro-ao-lado-da-estacao-de-trem-vai-alem-dos-ritmosnordestinos bomba com samba 5185291.html. Acesso em: 20 nov. 2022.

65

Turn static files into dynamic content formats.

Create a flipbook
Issuu converts static files into: digital portfolios, online yearbooks, online catalogs, digital photo albums and more. Sign up and create your flipbook.