





![]()






Type: Museum
Location: Bhairon Marg, Delhi
Year: 2024
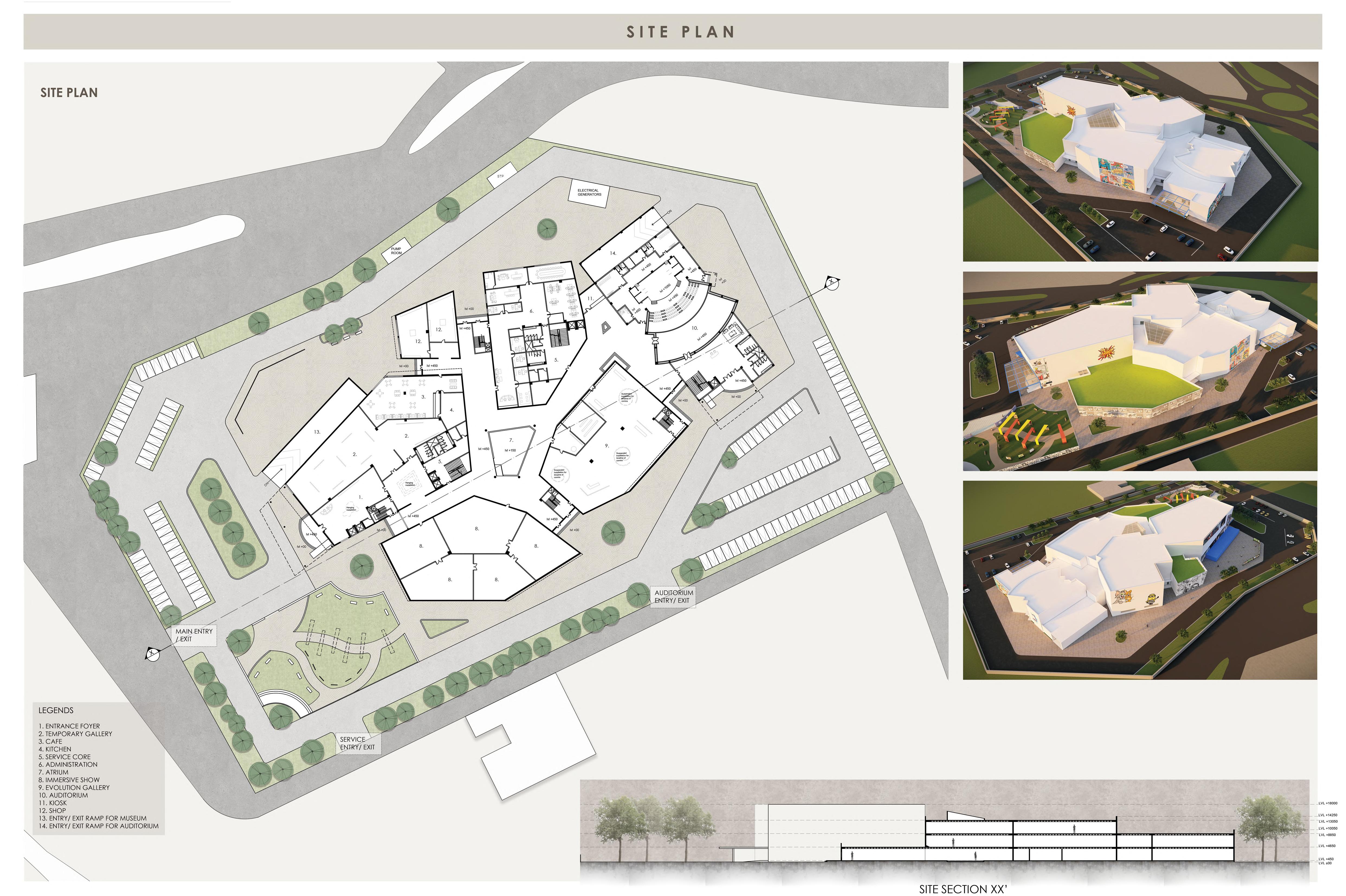
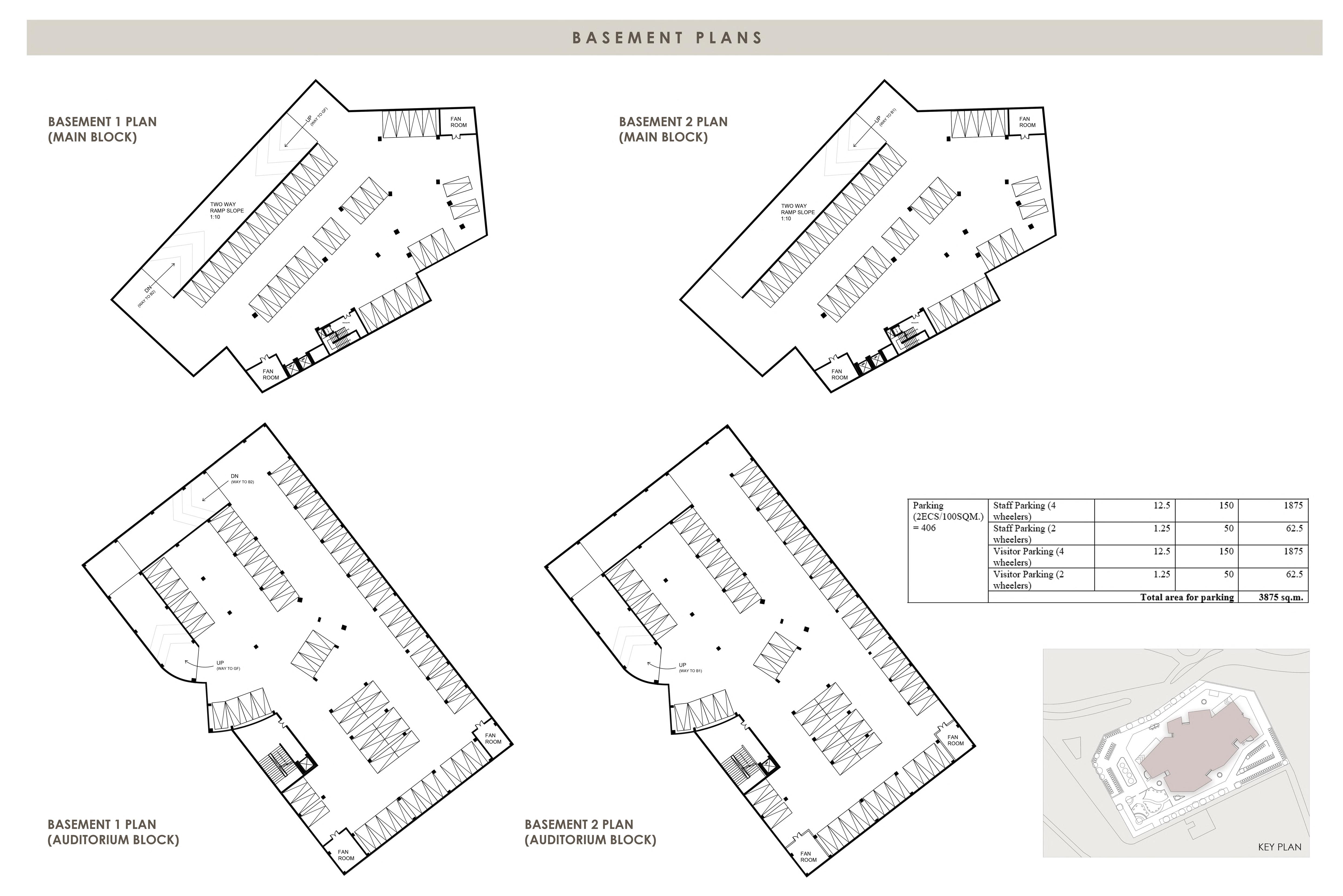
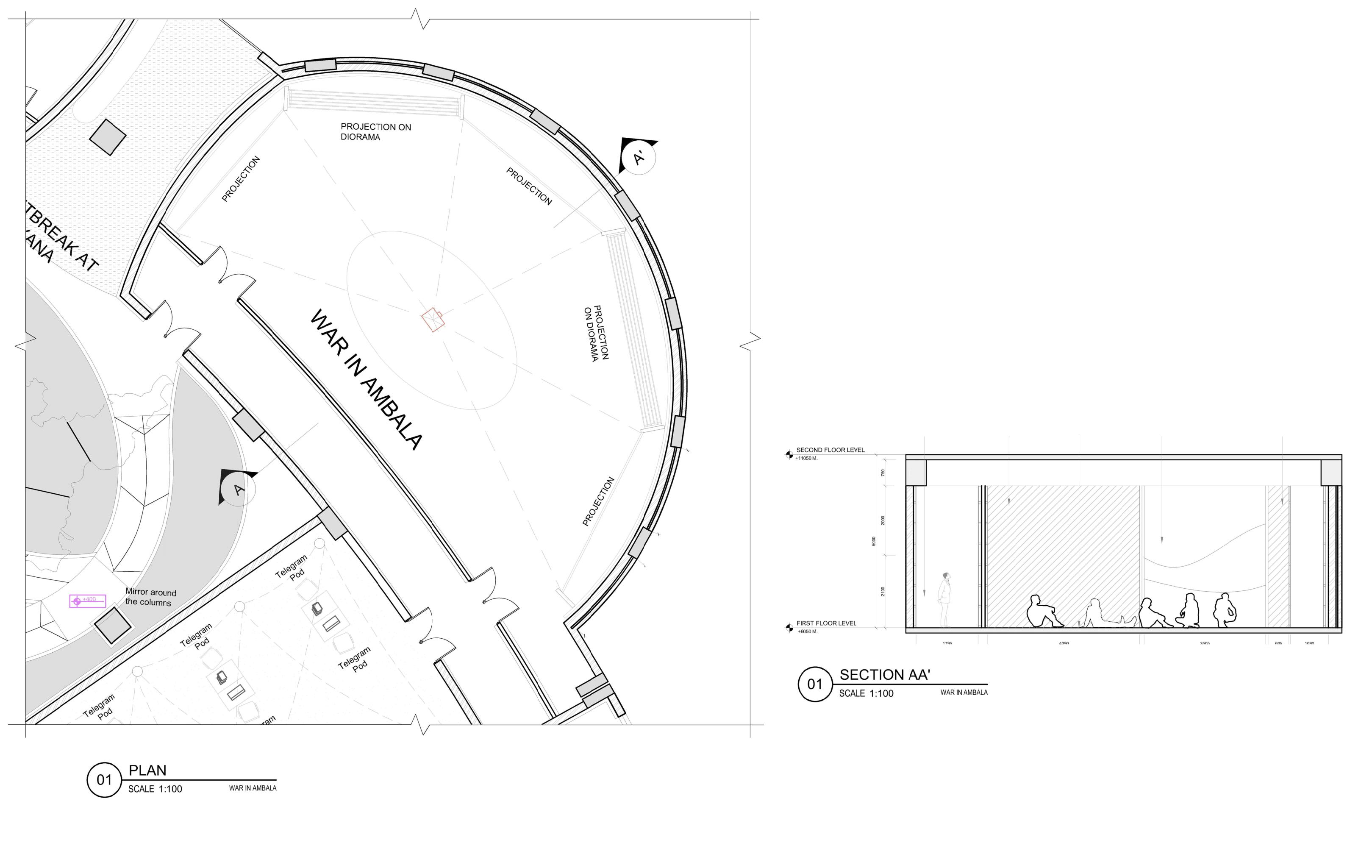
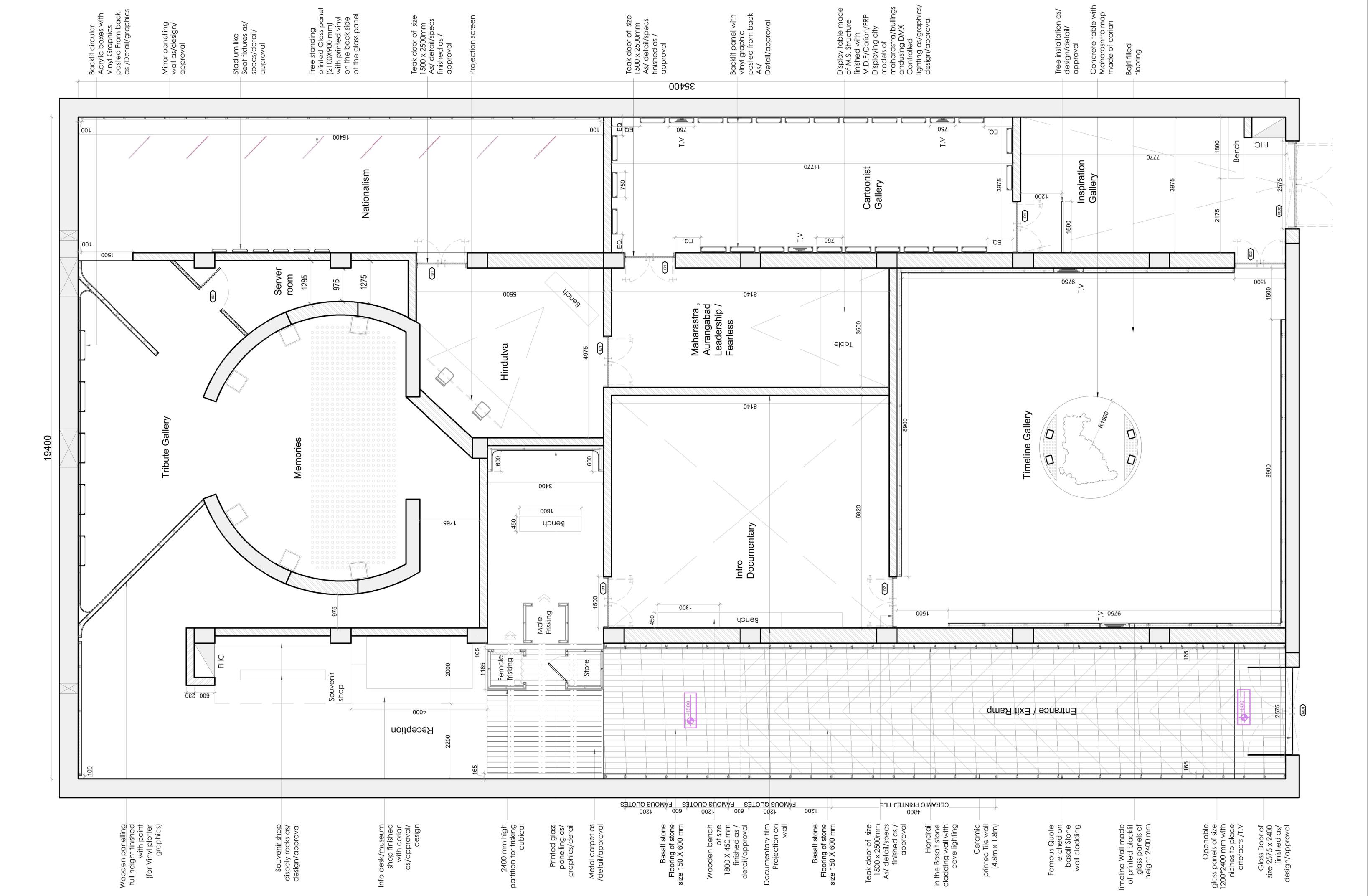
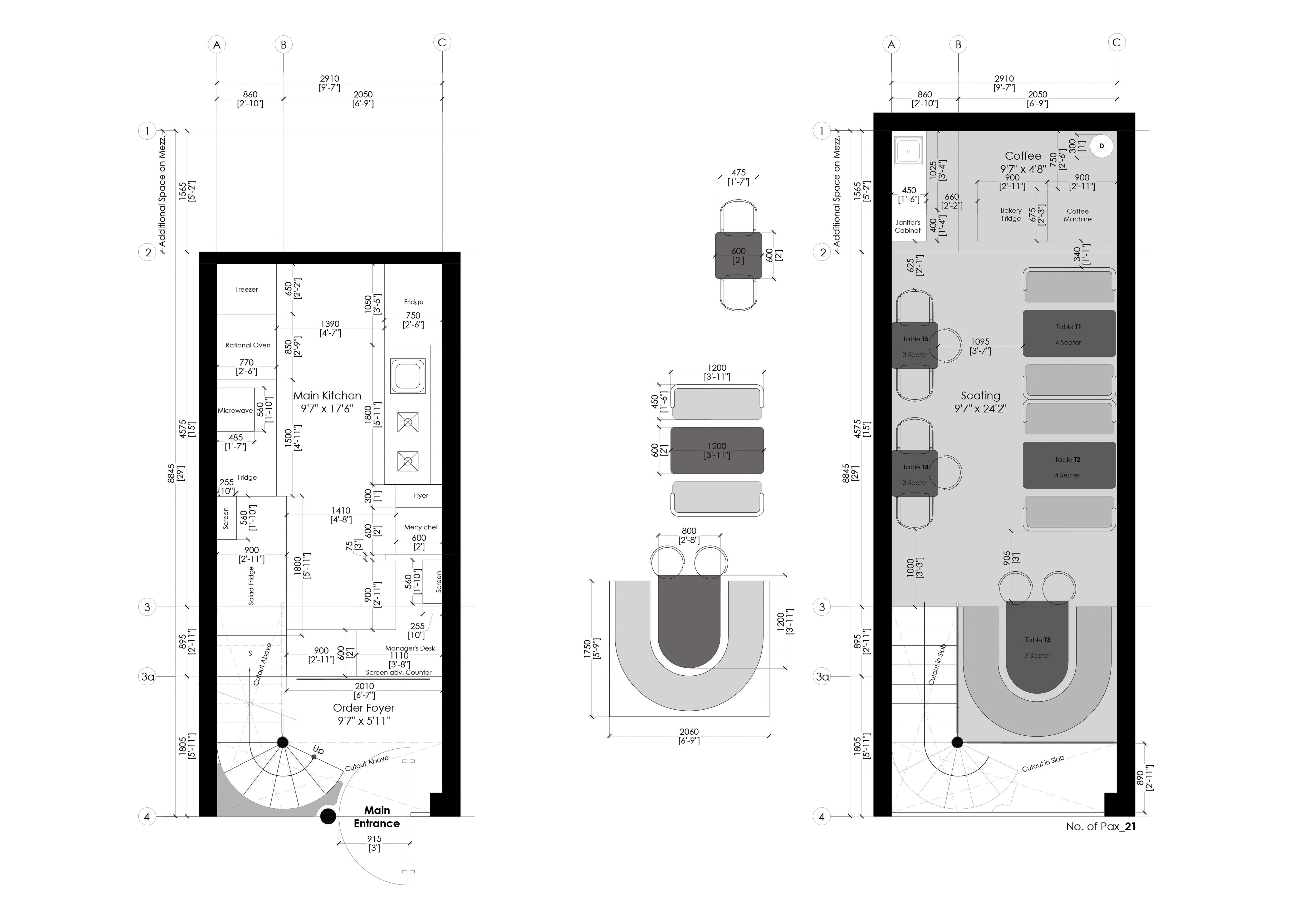
The project aims to design a museum dedicated to celebrating the history, artistry, and impact of comics and cartoons. The museum highlights the contribution of comic artists and cartoonists in the field.
Autocad, Sketchup, Lumion, Photoshop








I did my architectural internship in Design Factory India for 5 months in which I learnt about the interior designing for museums and installations for urban spaces.
I also did an internship with Estudio 916 for 3 months in which I gained experience on residential and commercial projects.





















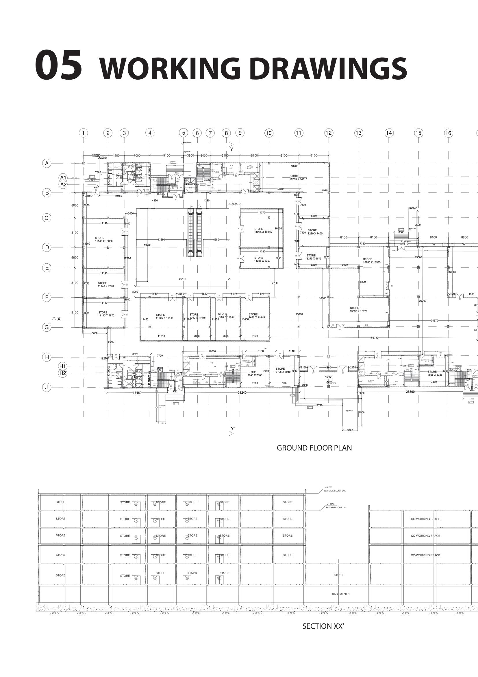
Layout
- Floor Tiles - 600 X 600 mm - 3mm Wide Grooves - All Grooves to be filled with Epoxy Grout





















miileemukherjee25@gmail.com