architect MIHAELA TATU
PORTFOLIO SELECTED WORKS
CANADIAN EXPERIENCE 2021 – 2024
Mihaela Tatu, senior architect and partner at 360 Smart Design – On. Canada

I am a licensed architect with more than 7 years experience in residential, commercial and industrial buildings design.
I have worked in more architecture studios in Romania , Italy ( Palermo and Milan ) and in Canada, in collaboration with 360Smart Design. I improved my skills of leadership, good communication, team work and a good organization, alongside my training in architectural design. All these guide me to finish a great project with success!
Email: mihaelatatu89@gmail.com


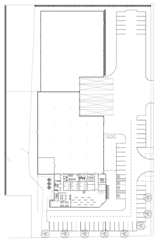
year 2023 -2024
architect MIHAELA TATU
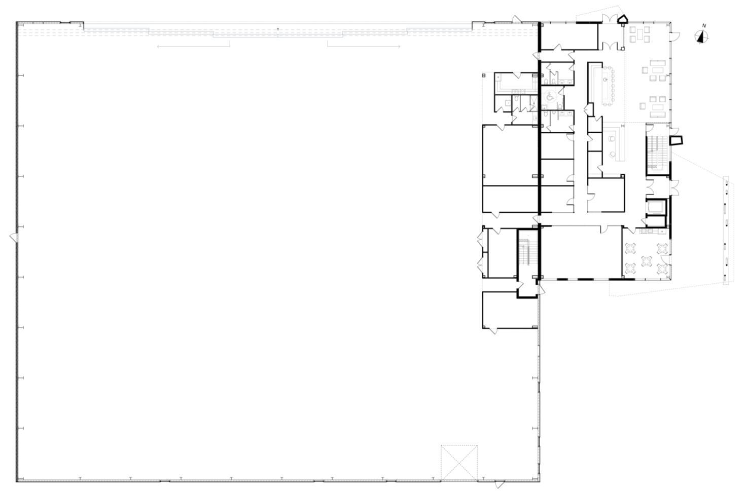
project author 360 SMART DESIGN












































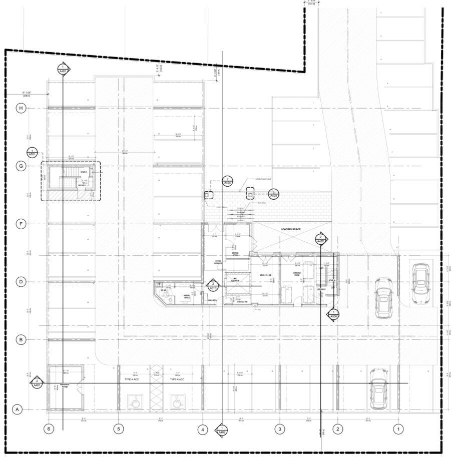
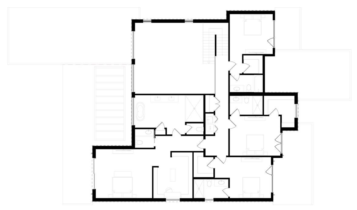
project author 360 SMART DESIGN








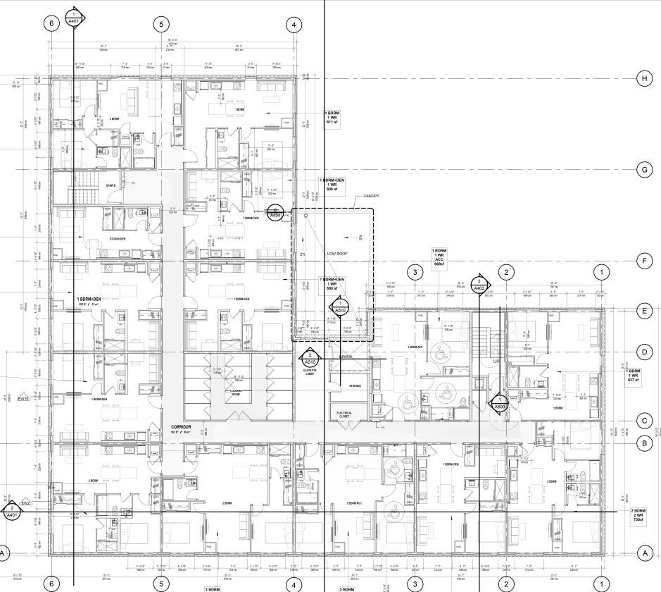
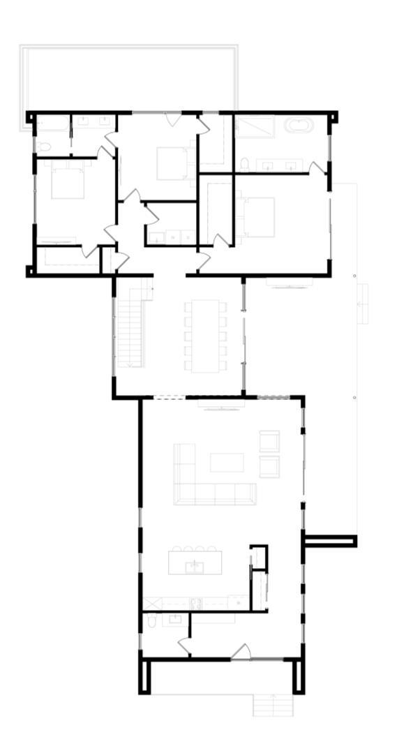
project author 360 SMART DESIGN














architect MIHAELA TATU
project author 360 SMART DESIGN














architect MIHAELA TATU
project author 360 SMART DESIGN


















