Í N D I C E
IV. Laboratorio Arquitectónico
C E N T R O S U R B A N O S
El proyecto-laboratorio centros urbanos está orientado a la construcción de una plataforma de investigación basada en un proceso continuo de retroalimentación entre educación e investigación. Se plantea una aproximación académica a la condición contemporánea de la gran aglomeración urbana artificialmente implementada, que refleja un proceso específico de adaptación y modificación del ambiente construido, poco estudia do por fuera de las lógicas de la precariedad o de la mera racionalidad económica, productiva y funcional. Se indagan nuevas perspectivas de desarrollo para la ciudad de Bogotá, utilizándola como espacio físico de investigación e implementación de diversas metodologías de desarrollo espacial, orientadas a la definición de nuevos dispositivos y agrupaciones urbano-arquitectónicas basadas en modos emergentes de “desarrollo local” impulsados por dinámicas endógenas y exógenas propias del mundo contemporáneo.






NODO CULTURA-COMERCIO





E Q U I P A M I E N T O S
Este predio estratégicamente posicionado entre la calle 13 y el humedal en Bogotá ayudaría a darle cara al proyecto, desde el cual se alimentará el sector ya que aquí se posicionará la estación del Regiotram de Funza y así mismo se plantea un equipamiento pedagógico que fomente el valor ecológico y productivo agrícola del sector, logrando darles una cara a las industrias y protegiendo el recurso agua.







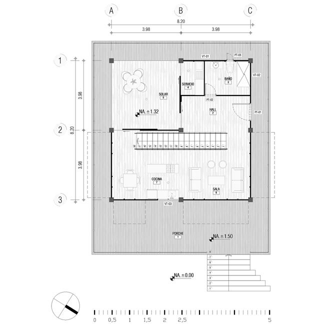
CÓDIGO ESTACIÓN REGIOTRAM





C A S A D E R I B E R A
La diversidad de problemáticas existentes en las diferentes regiones costeras de Colombia, recoge situaciones como la contaminación ocasionada gracias a las basuras en las playas, la falla de infraestructura, el desempleo, la violencia, o la falta de educación. Sin embargo, Bocachica, al ser una isla gravemente desconectada es uno de los lugares, que actualmente se ve más afectado, en el caribe colombiano.
Buscando solventa las diferentes problemáticas del sector, se dispone un tejido de viviendas bio-habitables a lo largo de la isla que funcionen como micro máquinas verdes que al conservar la arquitectura tradicional del sector y al involucrar materiales propios de zona, le permita a la comunidad de Bocachica, comenzar un proceso de restauración ambiental, social y cultural.













DESARROLLO DE ESTRATEGIAS PARA LA ADAPTACIÓN Y MITIGACIÓN DE INUNDACIONES EN ISTMINA
El proyecto tiene como objetivo desarrollar y proponer estrategias integrales para mitigar las inundaciones que afectan a las comunidades vulnerables de Istmina, Chocó. A través de un enfoque multidisciplinario que considera factores urbanos, tecnológicos, sociales y ambientales, se realizó un análisis exhaustivo del área, identificando las principales causas del problema y proponiendo varias alternativas de solución. La investigación incluye la participación activa de la comunidad mediante entrevistas, para asegurar que la solución seleccionada responda a sus necesidades y condiciones locales.
El alcance del proyecto concluye con la identificación de la propuesta de solución más adecuada, basada en los criterios y necesidades de la comunidad. Los principales entregables incluyen el desarrollo de las alternativas propuestas y una conclusión final que detallará la solución más viable. El éxito del proyecto se medirá cuando se logre identificar dicha solución en consenso con la comunidad afectada.





















ALTERNATIVA 5
ALTERNATIVA 2
ALTERNATIVA 3





