Portafolio Interior y/o Decoración.

Page 1

PORTAFOLIO.PORTAFOLIO.

ANTE-PROYECTOS Y PROYECTOS DE INTERIORISMO Y DECORACIÓN.

DISEÑO INTERIOR | DEPARTAMENTO

CHILE.

1301.

DISEÑO

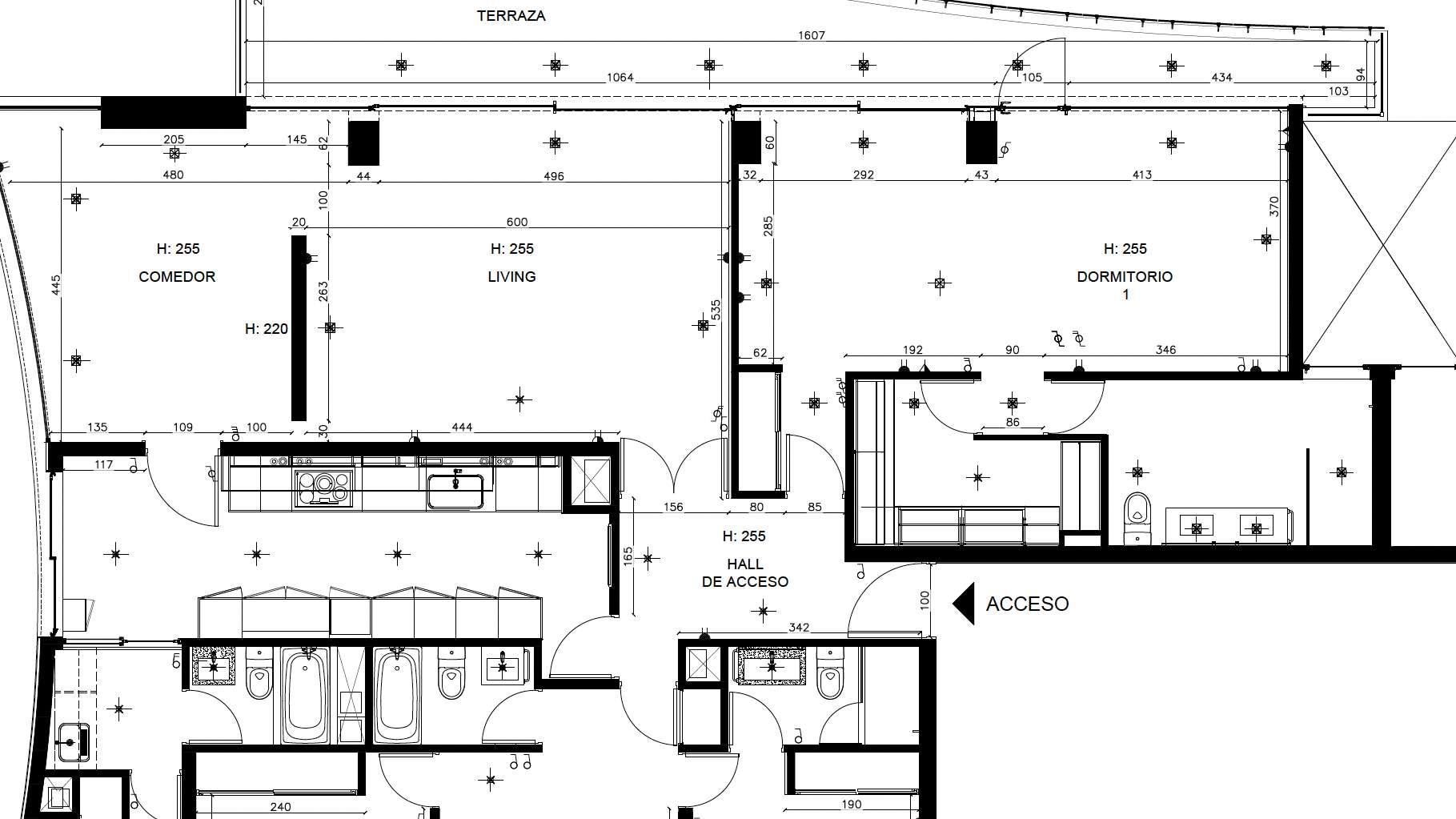
INTERIOR | DEPARTAMENTO 1301 | HALL DE ACCESO.

UBICACIÓN: CHILE.

DISEÑO INTERIOR | DEPARTAMENTO 1301 | ARRIMO CON ZAPATERO + ESPEJO. UBICACIÓN: CHILE.

DISEÑO INTERIOR | DEPARTAMENTO 1301 | RESPALDO DE CAMA + ESCRITORIO. UBICACIÓN: CHILE.

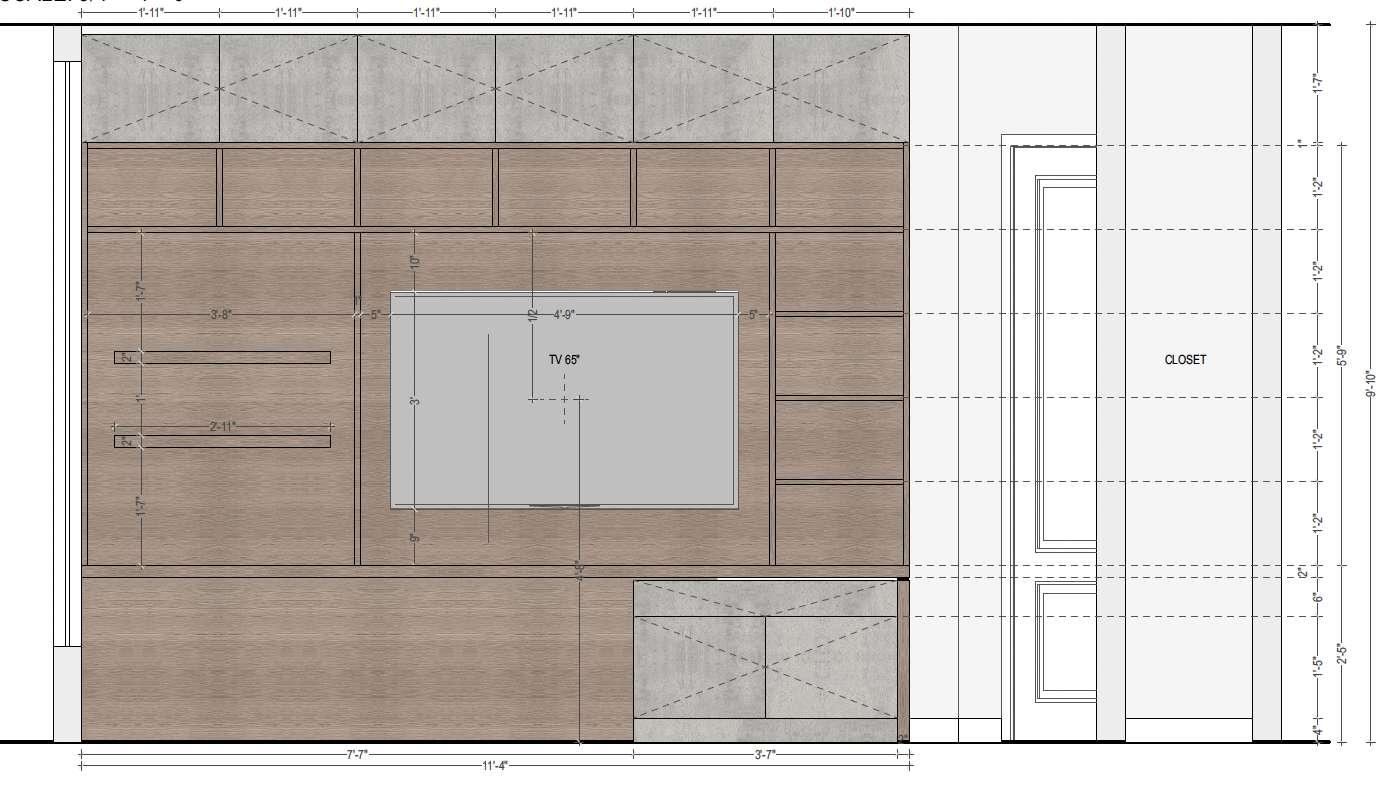
DISEÑO INTERIOR | DEPARTAMENTO 1301 | SALA MUEBLE TV. UBICACIÓN: CHILE.

DISEÑO INTERIOR |

UBICACIÓN: CHILE.

DEPARTAMENTO 1301 | DISEÑO MURO PRINCIPAL.

DISEÑO INTERIOR | TV ROOM.

MIAMI.

DISEÑO

INTERIOR | TV ROOM | PLANTA GENERAL.

UBICACIÓN: MIAMI.

DISEÑO INTERIOR | TV ROOM | ELEVACIONES GENERALES.

UBICACIÓN: MIAMI.

DISEÑO INTERIOR | TV ROOM | RENDERS.

UBICACIÓN: MIAMI.

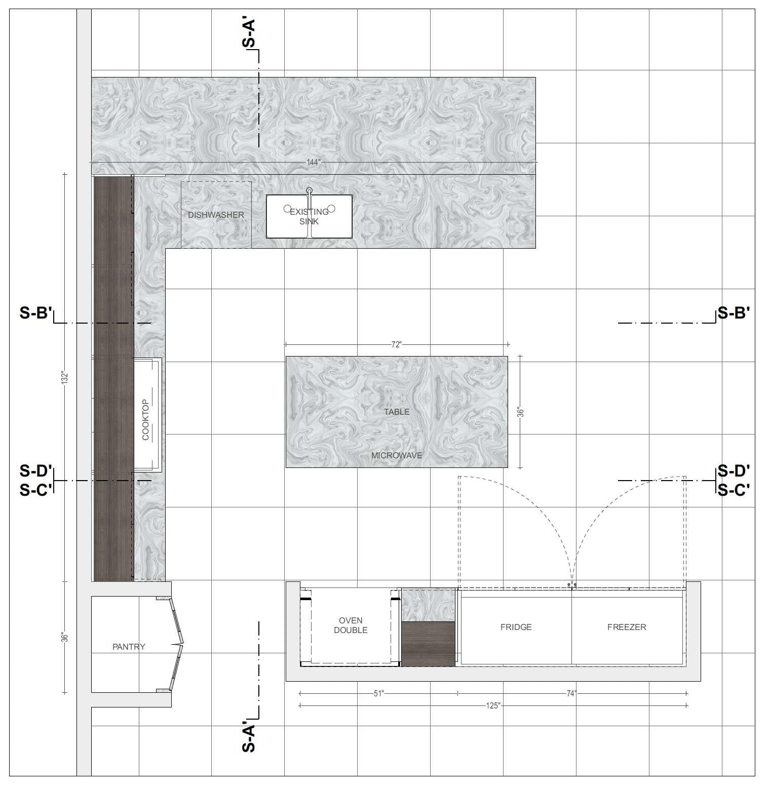
DISEÑO INTERIOR | KITCHEN.

MIAMI.

DISEÑO INTERIOR | MASTER BATH | PLANTA GENERAL. UBICACIÓN: MIAMI.

DISEÑO INTERIOR | MASTER BATH | ELEVACIONES GENERALES.

UBICACIÓN: MIAMI.

DISEÑO INTERIOR | MASTER BATH | ELEVACIONES GENERALES. UBICACIÓN: MIAMI.

DISEÑO INTERIOR | MASTER BATH & CLOSET.

MIAMI.

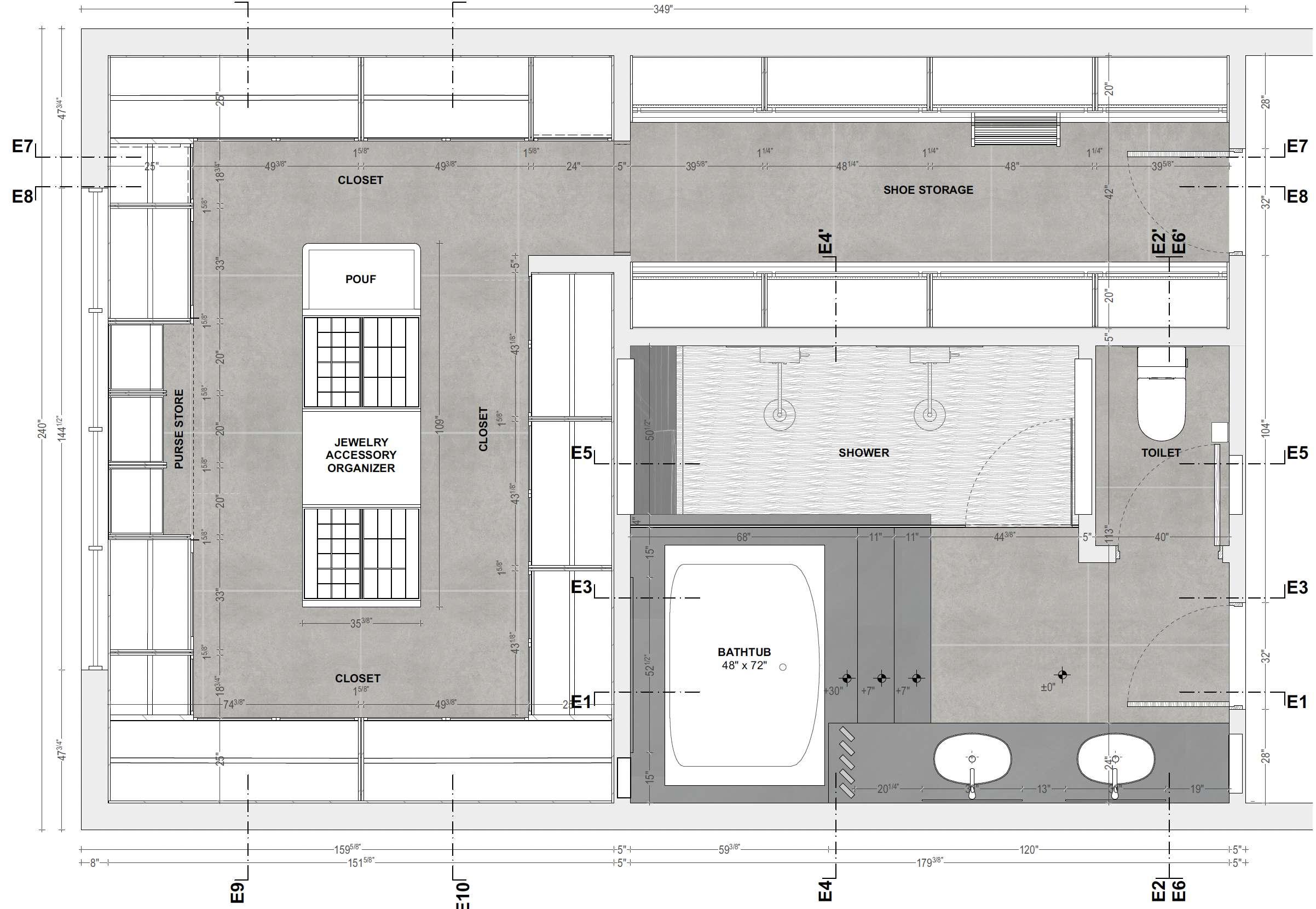
DISEÑO INTERIOR | MASTER BATH | PLANTA GENERAL. UBICACIÓN: MIAMI.

DISEÑO INTERIOR | MASTER BATH | PLANTA ILUMINACIÓN.

UBICACIÓN: MIAMI.

DISEÑO INTERIOR | MASTER BATH | ELEVACIONES GENERALES. UBICACIÓN: MIAMI.

DISEÑO INTERIOR | MASTER BATH | ELEVACIÓN MURO DORMITORIO.

UBICACIÓN: MIAMI.

DISEÑO INTERIOR | MASTER BATH | RENDERS. UBICACIÓN: MIAMI.

DISEÑO INTERIOR | MASTER CLOSET | PERSPECTIVAS AXONOMÉTRICAS.

UBICACIÓN: MIAMI.

DISEÑO

INTERIOR | MASTER CLOSET | ELEVACIONES GENERALES. UBICACIÓN: MIAMI.

DISEÑO INTERIOR | MASTER CLOSET | RENDERS. UBICACIÓN: MIAMI.

DISEÑO INTERIOR | WALL DESK & MAKEUP.

MIAMI.

DISEÑO

INTERIOR | WALL DESK & MAKEUP | PLANTA GENERAL. UBICACIÓN: MIAMI.

DISEÑO INTERIOR | WALL DESK & MAKEUP | ELEVACIONES Y DETALLES.

UBICACIÓN: MIAMI.

DISEÑO INTERIOR | WALL DESK & MAKEUP | RENDERS. UBICACIÓN: MIAMI.

DISEÑO INTERIOR | WALL DESK & MAKEUP | RENDER. UBICACIÓN: MIAMI.

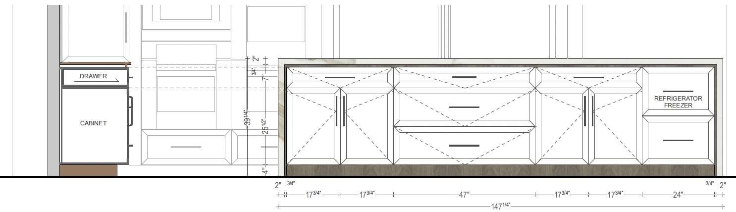
DISEÑO INTERIOR | KITCHEN & BREAKFEAST

MIAMI.

DISEÑO

INTERIOR | KITCHEN & BREAKFEAST | PLANTA GENERAL Y EQUIPOS. UBICACIÓN: MIAMI.

DISEÑO

INTERIOR | KITCHEN & BREAKFEAST | ELECACIONES GENERALES.

UBICACIÓN: MIAMI.

DISEÑO INTERIOR | KITCHEN & BREAKFEAST | PERSPECTIVAS AXONOMÉTRICAS.

UBICACIÓN: MIAMI.

DISEÑO INTERIOR | KITCHEN & BREAKFEAST | RENDERS. UBICACIÓN: MIAMI.

DISEÑO DE INTERIOR | COMISARÍA.

COMMISSIONER ANTHONY RODRIGUEZ | MIAMI.

DISEÑO DE OFICINA | COMISARÍA | PLANTA ARQUITECTURA INTERIOR.

UBICACIÓN: MIAMI.

DISEÑO DE OFICINA | COMISARÍA | PERSPECTIVA AXONOMÉTRICA.

UBICACIÓN: MIAMI.

DISEÑO DE OFICINA | COMISARÍA | ELEVACIONES Y DETALLES.

UBICACIÓN: MIAMI.

DISEÑO DE OFICINA | FRISBI INFLUENCER MARKETING | E. UBICACIÓN: MIAMI.

DISEÑO DE OFICINA | FRISBI INFLUENCER MARKETING | E. UBICACIÓN: MIAMI.

INTERIORISMO + DECORACIÓN.

PROYECTOS INMOBILIARIOS, CHILE.

SALA

COMÚN | INMOBILIARIA ALTURA.

UBICACIÓN: PROVIDENCIA.

SALA COMÚN | INMOBILIARIA ALTURA. UBICACIÓN: PROVIDENCIA.

PILOTO | INMOBILIARIA ALTURA. UBICACIÓN: PROVIDENCIA.

PILOTO | INMOBILIARIA ICUADRA. UBICACIÓN: PROVIDENCIA.

PILOTO | INMOBILIARIA ICUADRA. UBICACIÓN: PROVIDENCIA.

PILOTO | INMOBILIARIA ICUADRA. UBICACIÓN: PROVIDENCIA.

SALA COMÚN | INMOBILIARIA INSPIRA. UBICACIÓN: VITACURA.

SALA DE VENTAS | INMOBILIARIA AVSA. UBICACIÓN: PROVIDENCIA.

Turn static files into dynamic content formats.

Create a flipbook
Issuu converts static files into: digital portfolios, online yearbooks, online catalogs, digital photo albums and more. Sign up and create your flipbook.