PORTFOLIO | Arch. Miguel Chapana

Page 1


PROFESSIONAL EXPERIENCE

Kids Market

Vancouver, Canada

Tirso Lightning

New York, USA

Residential Projects

Cochabamba/La Paz, Bolivia

Apartment at Green Tower

La Paz, Bolivia

Mani Coffee Bar

Cochabamba, Bolivia

ACADEMIC PROJECTS

Faculty of Agricultural and Livestock Sciences

Bachelor Tesis

Oriel House

Architectural Composition

Rhythm and Movement

Design Studio Class

PORTFOLIO CONTENTS

KIDS MARKET

Vancouver, Canada

In this project, I developed a proposal for the redesign of the party rooms at Kids Market, considering that this area serves as a focal point and main attraction for hosting events.

I also created the graphic design of a hopscotch game to complement the space and encourage greater interaction among children.

Hopscotch Design
Render Images Party Zone

TIRSO LIGHTNING

While working remotely with Tirso Lighting, I collaborated on several commercial projects, creating detailed 3D assemblies using the PointCloud virtual scanning system in SketchUp and assisting the design team with technical drawings and project coordination. New York, United States

Render Images

Point Cloud Scan

RESIDENTIAL PROJECTS

Cochabamba / La Paz, Bolivia

Throughout my professional experience, I’ve had the opportunity to work on a variety of projects, primarily residential homes and buildings.

I was responsible for all project phases, from design development and technical drawings to client management, documentation, and onsite execution, ensuring timely and satisfactory completion.

¨Calampampa¨ residential and comercial building. Design and structural work March 2021

¨Rojas Family¨ Home

Design,structural and carcase work

Jan 2020

¨Feng Shui¨ Home

Interior and Exterior Remodeling

Feb 2022

APARTMENT AT GREEN TOWER

La Paz, Bolivia

Living room furniture designed with meticulous attention to detail, tailored to the client’s specific requirements. The project integrates functionality and aesthetics through clean lines, refined materials, and a modern composition that enhances comfort and spatial harmony.

MANI COFFEE-BAR

A space designed with warm, inviting tones, where textures and spatial organization were carefully managed to balance natural and artificial lighting while maintaining smooth, transversal circulation throughout the area. Cochabamba, Bolivia

Bachelor Thesis

FACULTY OF AGRICULTURAL AND LIVESTOCK SCIENCES

2020

Cochabamba, Bolivia Degree Seminar

Used Softwares:

The approach of the Faculty of Agricultural and Livestock Sciences project, proposes the expansion of the current Faculty, considering its curricular needs and enviromental characteristics.

The project proposes a direct spatial connection with the current faculty and with the environment, spatially generating a central patio that connects with the entrance square, thus, also considering study greenhouses, patio and roof crop areas. Through a staggered and hierarchical design that promotes a better visual and distribution.

Vectorworks - Revit
Vray - Photoshop
D5 Render

https://bit.ly/FacultyRender

Video Tour

Isometric View

Recreation Area

Dinning Area

Library

Administration

Great Auditorium

Classroom Blocks

Main Entrance

Axonometry

Greenhouses
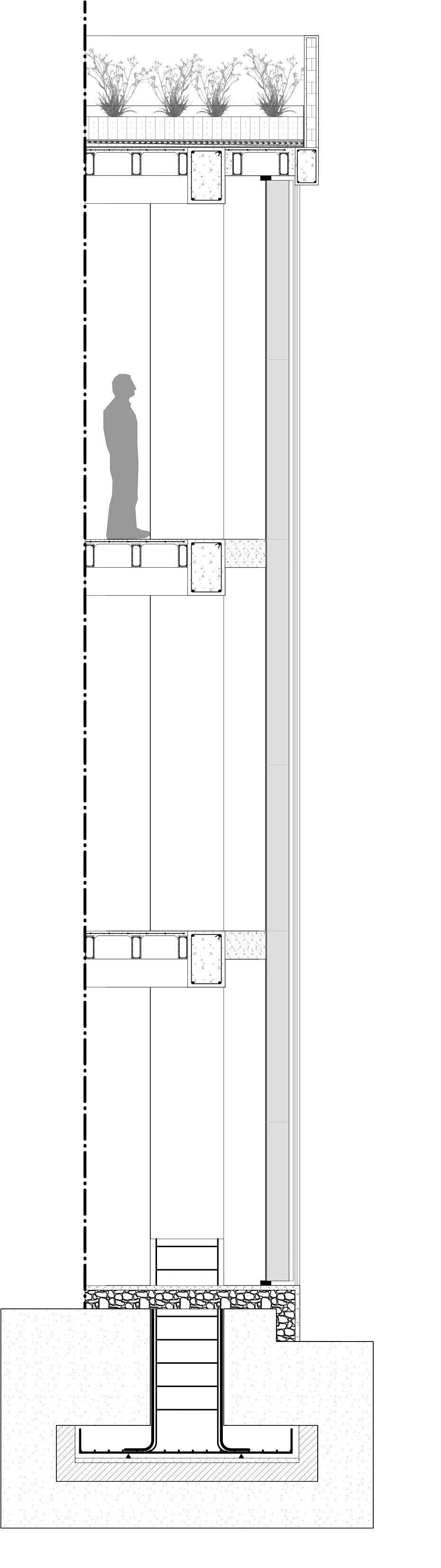
Section B - B’
Section D - D’ Greenhouse Library

Dinning Area

Model - Scale1:150

Roof Crops
Compacted Ground
Iron Mounting
40x80 cm Column

Glass Housing and Structure

Metallic Skeleton Structure

Cultivation Structure

Study Area

Detail Section

Crops Area

Architectural Composition

ORIEL HOUSE

2016

Tarija, Bolivia

Architectural Composition

Used Softwares: Vectorworks

Sketchup Vray - Photoshop

This project takes place in a private project at the outsides of the city of Tarija, which integrates a series of vacation homes, golf fields and tennis courts. The residential area is located on a sloping terrain which provides incredible views of the surroundings.

With this project it was achieved to take advantage of the visuals and layout of the land, at the same time generating spaces of comfort and recreation.

LOWER FLOOR GROUND FLOOR

ENTRY HALL PERSPECTIVE

TOP FLOOR

LONGITUDINAL SECTION

DINNER PERSPECTIVE

RHYTM AND MOVEMENT

Rhytm and movement are a series of individual and group volumes abstracted from the structure of a leaf. Using elements as hierarchy, repetition, curves, dot and line rhytm, it creates a path that generates a unique spatial experience in a sculpture architectural composition.

Turn static files into dynamic content formats.

Create a flipbook
Issuu converts static files into: digital portfolios, online yearbooks, online catalogs, digital photo albums and more. Sign up and create your flipbook.
PORTFOLIO | Arch. Miguel Chapana by Miguel Ch - Issuu