PORTFOLIO BIM

Page 1


PORTAFOLIO BIM

ARQ.MIGUELANGELLATORREROMERO

Electromecánicas Industrias y minerías Hospitales Restauración y conservación

ÁNCASH – SAN NICOLÁS

PIURA – MORROPÓN - AYABACA
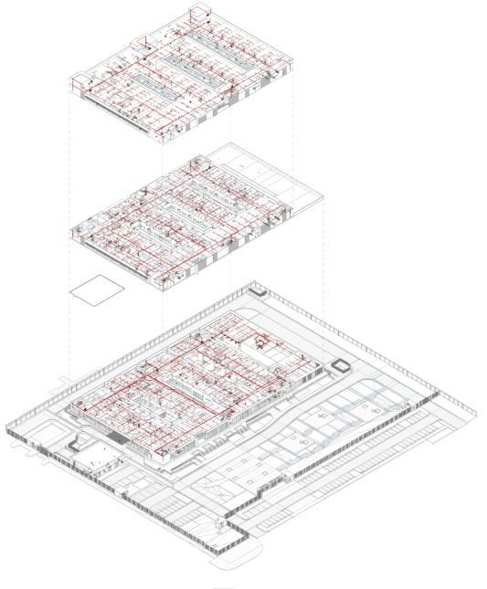
LIMA - LURÍN

PROYECTO LA MERCED

Centro Histórico de Lima

Perú

ALCANCE

MODELADO EN SOFTWARE BIM, PLANIMETRIA ARQUITECTURA, ESTRUCTURAS, MEP

PROPUESTAS DE CONSERVACIÓN Y RESTAURACIÓN DE LINTERNA PORTADA

RECONSTRUCCIÓN

DEL CENTRO DE SALUD SAN NICOLÁS

San Nicolás, Ancash - Perú

ALCANCE

MODELADO EN SOFTWARE BIM, PLANIMETRIA ARQUITECTURA, ESTRUCTURAS, MEP

MECÁNICAS

INSTALACIONES ELÉCTRICAS ESTRUCTURAS

AGUA FRÍA Y CALIENTE
AGUA FRÍA Y CALIENTE

HOSPITAL DE APOYO II-1

Morropón - Perú

Alcance

MODELADO EN SOFTWARE BIM, RENDERIZADO, PLANIMETRIA

ARQUITECTURA, ESTRUCTURAS, ESPECIALIDADES

MECÁNICAS

INSTALACIONES ELÉCTRICAS ESTRUCTURAS

AGUA CONTRA INCENDIOS
AGUA FRÍA Y CALIENTE

EDIFICIO AUXILIAR

OWENS ILLINOIS

Alcance

MODELADO EN SOFTWARE BIM, RENDERIZADO, PLANIMETRIA ARQUITECTURA ESTRUCTURAS, INSTALACIONES

Lurín - Perú

AGUA CONTRA INCENDIOS

ELÉCTRICAS MECÁNICAS

DISTRIBUCIÓN DE ENERGÍA ELÉCTRICA

EN REDES DE BT, BT Y SEDS

Jilili – Provincia de Ayabaca.

Alcance

MODELADO EN SOFTWARE BIM, NUBE DE PUNTOS Y PLANIMETRIA Montero, Sicchez, Ayabaca, Ambasal Y

DESARROLLO DE ALGORITMO EN DYNAMO PARA

DISTRIBUCIÓN DE POSTES POR COORDENADAS

DESARROLLO DE ARMADOS (FAMILIAS DE POSTES DE BAJA, MEDIANA Y ALTA TENSIÓN) Y METRADOS

Turn static files into dynamic content formats.

Create a flipbook
Issuu converts static files into: digital portfolios, online yearbooks, online catalogs, digital photo albums and more. Sign up and create your flipbook.