Michel Rangel Portfolio ENSA

Page 1

Michel Rangel Portfolio

Statut: Construit

LES LAREDOS

Ce projet a été développé au début de la dernière année du diplôme d’architecture au Tec de Monterrey.

Il s’agit d’un projet qui se développe durant un an, où le premier semestre est consacré à une analyse approfondie du site et au début d’une proposition de projet urbain et architectural. Au cours du deuxième semestre, le projet architectural est développé.

Ce projet est développé dans deux villes et deux pays, précisément dans les villes de Nuevo Laredo (Mexique) et de Laredo (États-Unis).

Avant l’annexion du Texas aux ÉtatsUnis, les deux villes ne faisaient qu’une, étant séparées par le Rio Bravo. Dans ce chapitre, nous essayons de rétablir l’union entre les deux villes et de les faire converger en une seule malgré la séparation naturelle (le fleuve) et nationale (les pays).

Les deux partagent encore une culture, des traditions et même une langue. Il est normal de voir des étudiants traverser la frontière vers les États-Unis le matin, juste pour avoir une meilleure qualité d’études.

Pour l’analyse du site, nous avons été divisés en équipes pour étudier l’histoire, la géographie, la population et l’urbanisation des villes. La page suivante présente un résumé des informations pertinentes trouvées.

Typologie : Urbain et transport

Collaboration : Groupe

Localisation : Nuevo Laredo y Laredo

Ecole d’Architecture

Tec de Monterrey

Initative Liens Culturels

Chapitre «Les Laredos»

Après l’analyse du site, plusieurs problèmes ont été choisis sur lesquels le groupe serait divisé et chacun serait chargé de proposer un projet pour les améliorer. En outre, nous avons été affectés à différents quartiers des deux villes pour proposer des solutions. Dans mon cas, mon site se trouve au passage à niveau entre les deux pays, qui n’est accessible qu’aux marchandises, pas aux passagers. Et mon problème sera le transport.

Il a été décidé de procéder à une analyse des besoins des personnes concernées. Le gouvernement local des deux pays, le secteur privé et la société civile sont identifiés comme parties prenantes. À partir de là, les différents besoins de chacun d’entre eux sont ventilés et classés en trois catégories : tourisme, infrastructure et transport. En voyant le site, nous avons remarqué son manque de contact avec l’utilisateur (les habitants du quartier) : manque d’espaces verts et de trottoirs. De plus, la région a le potentiel pour devenir un carrefour non seulement pour les chemins de fer, mais aussi pour les bus et les transports à pied, avec le processus migratoire que cela implique.

C’est pourquoi un centre de bus et une série de parcs, dont une place centrale, sont proposés pour redonner vie aux quartiers.

ENSAPVS

Parc surélevé de Séville

Pour ce projet, nous avons été répartis entre différentes villes présentant des problèmes de migration différents.

Dans mon cas, la ville sélectionnée était Séville, dans la zone des passages à niveau avant d’arriver à la gare.

L’intention était de faire de ce croisement un arrêt, afin de détendre le flux de personnes à la station finale. Pour cela, il est prévu de réaménager la plate-forme qui atteint la zone. En faisant le reste, nous nous sommes rendu compte que cette zone était principalement industrielle et que, bien qu’elle se trouve en face de l’un des parcs les plus importants de Séville, ce n’est pas une zone qui semble en bon état. De plus, elle est traversé par les voies ferrées, ce qui constitue une rupture dans l’espace urbain qui ne permet pas le croisement entre les deux zones.

C’est pourquoi il a été décidé de créer un parc surélevé qui commence dans la périphérie et se termine dans le parc, créant ainsi un lien entre les deux. Dans le même temps, il reliera perpendiculairement les différents bâtiments qui l’entourent. Étant donné que la plupart des usines ne sont pas utilisées, nous avons commencé à créer une série de quartiers urbains qui permettront à la zone d’être entièrement équipée pour les habitants et même d’ajouter des zones résidentielles.

Pour que le parc surélevé soit plus qu’un simple passage, il a été divisé en quadrants où des boutiques et des espaces ouverts ont été ajoutés pour compléter les différents quartiers.

Typologie : Urbaine

Collaboration : Binome

Localisation : Séville

Statut : Projet d’école

RdC R+1
最 最

Elements Structurels

REVÊTEMENT EN PIERRE + IMPERMEABILISANT

COUCHE DE COMPRESSION 4 CM D'ÉPAISSEUR

TREILLIS SOUDÉ

TAULE CALIBRE 25

POUTRE W SELON LE CALCUL STRUCTUREL

CADRE

BOIS THERMOTRÉÉ POUR L'EXTÉRIEUR

CANAL DE PLUIE

REVÊTEMENT ADEHSIF ET BOIS TRAITÉ POUR L'INTÉRIEUR

Coupe constructif des poteaux

FERME DE BÉTON FINI POLI. MONTAGE SELON LE CALCUL STRUCTUREL

PIEDESTAL EN BÉTON RENFORCÉ SELON LE CALCUL STRUCTUREL

TAQUET EN BÉTON Z-1

RENFORCÉE SELON LE CALCUL STRUCTUREL

Système structurel

Café 200 m 2 Boutique 198 m 2 UP UP Réstaurant 198 m 2 UP UP CLOTURE

Studios

La Villete

Notre projet se situe Porte de La Villette dans le Nord de Paris, en face du Parc de La Villette et de la Cité des Sciences et de l’Industrie. Se situant en entrée de ville, c’est un site stratégique, ouvrant sur le nord parisien. Des infrastructures très importantes sont présentes sur ce site. On y retrouve le boulevard périphérique, les voies ferrées allant du Grand Est à la gare de l’Est, le canal de Ourcq et le boulevard de la Villette.

Aujourd’hui, la liaison entre le périphérique est dédiée aux camions transitant par la plateforme. Nous imaginons par la suite que la liaison mise en place évoluera également et permettra une nouvelle entrée dans le bâtiment.

Le programme a été prédéfini par les enseignants et sera précisé dans les pages suivantes.

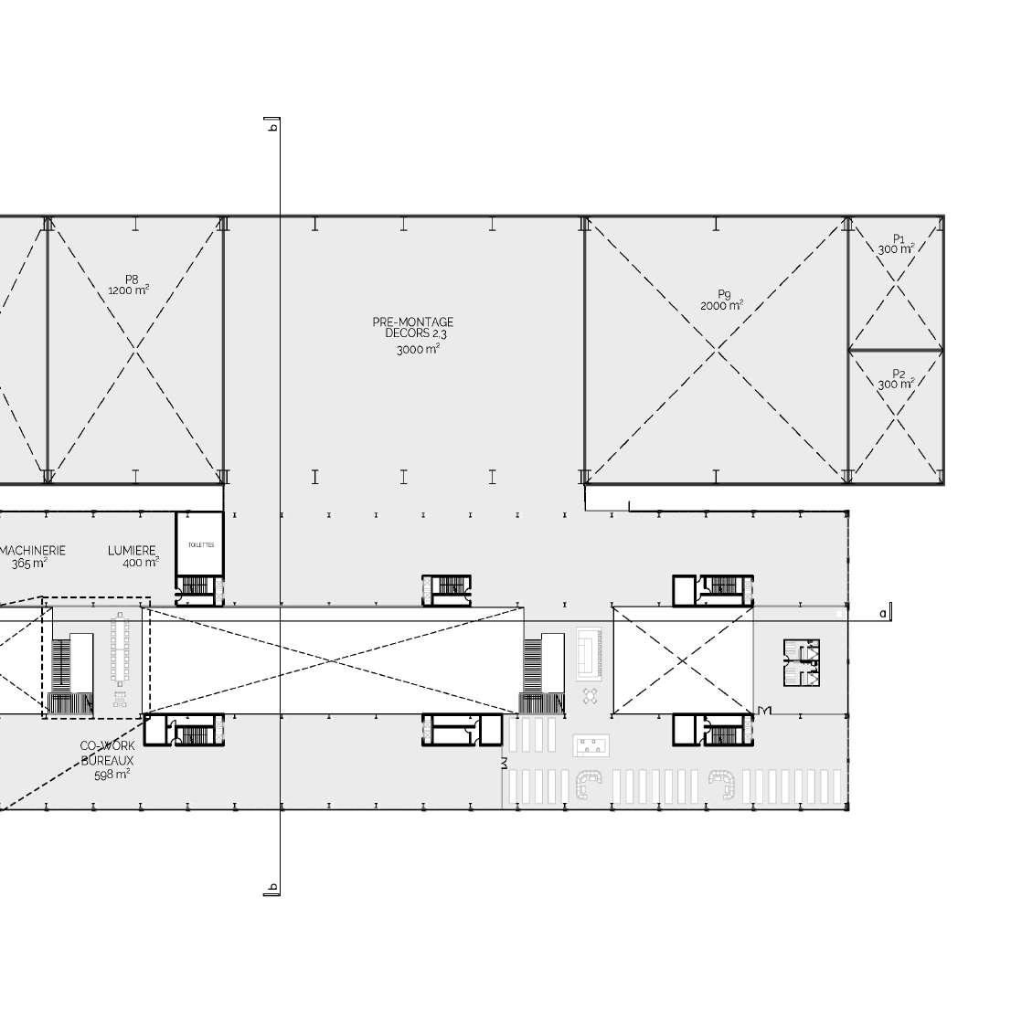
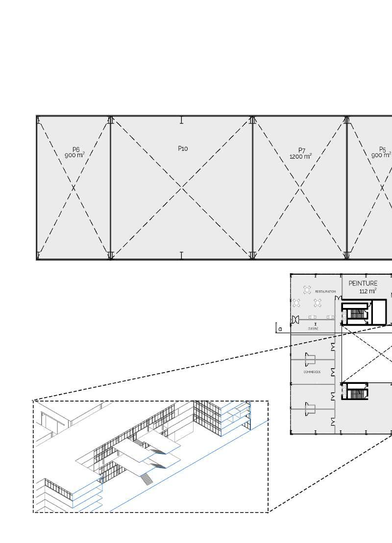
Le projet porte sur un bâtiment qui peut réunir plusieurs usages et qui peut converger les uns vers les autres, y compris les studios de cinéma, c’est pourquoi la disposition et les circulations sont essentielles à la conception. Pour cela, on procède à une analyse du programme qui permet de comprendre les besoins de chaque partie du programme et ses exigences. Il identifie celles qui peuvent être partagées entre différents utilisateurs et celles qui sont privées.

Un bâtiment est conçu avec deux atriums qui permettent une transparence entre l’ensemble du programme pour se sentir membre d’une même communauté. Cela permet également de ventiler et de faire entrer la lumière naturelle. Il sera relié à des passerelles utiles où des activités pourront être partagées entre différents utilisateurs. Le bâtiment abritant les studios de cinéma est accolé pour leur donner plus d’intimité, car il s’agit d’un programme qui nécessite des spécificités (son, mouvement de matériel) qui pourraient déranger les locataires du bâtiment susmentionné.

Enfin, un parc est créé qui se termine au Canal St Denis qui était auparavant complètement séparé par un mur du bâtiment original sur notre site.

Typologie : Multi-usages et studios cine

Collaboration : Individuelle

Localisation : Paris La Villette

Statut : Projet d’école

Diagramme Programmatique

Compréhension du programme

Processus de conception

Implantation

Façade Sud

R+1 Plan type

Maquette d’étude structurel

䴀愀焀甀攀琀琀攀 Détails
Atrium
Parc

Centre Culturel Independencia

Il s’agira d’un projet au Mexique dans la ville de Monterrey, la capitale industrielle du pays. C’est une grande ville avec une population de 5,7 millions d’habitants. Il faut savoir que la ville a aujourd’hui privilégié une croissance horizontale, ce qui a conduit à une urbanisation incontrôlée, renvoyant de nombreuses zones résidentielles à la périphérie de la ville. Mais cela n’a pas toujours été le cas. Le quartier Independence, où se situe notre projet, montre des signes de vie depuis le début des années 1840. Ce quartier est situé en face du centre-ville, car on a commencé à voir des traces de son urbanisation presque dès la naissance de la ville. Il faisait partie d’une extension de la ville qui s’appelait à l’époque Nuevo Repueblo del Sur. Il suit le contour réticulaire que l’on voit dans le centre-ville, et lorsqu’il commence à toucher la colline

Loma Larga, il commence à prendre une forme irrégulière qui s’adapte à la topographie de la zone, créant l’apparence d’une favela. Il est délimité par le fleuve Santa Catarina, qui sépare le centre-ville du quartier, et par la Loma Larga, une colline qui le sépare de la zone la plus riche d’Amérique latine. En raison de sa topographie complexe et de son statut foncier irrégulier, l’accessibilité de la zone est limitée. Elle reste presque physiquement isolée du reste de la ville, de sorte que la qualité de vie de ses 30 000 habitants est gravement affectée par un accès limité aux ressources et aux services. L’effort nécessaire pour établir un habitat humain dans des conditions difficiles a renforcé le capital social de la communauté ; sa topographie reconnaissable a consolidé son identité.

Plan de Situation

On peut voir sur le plan du site que celui-ci est situé à deux parcelles de l’un des centres religieux les plus importants de la ville, la Basilique de Guadalupe, cette zone étant réputée pour sa dévotion. C’est aussi le principal point de rencontre du quartier, car on y trouve non seulement une église et une place publique, mais aussi de nombreux stands de nourriture, de vêtements et de meubles fabriqués par les habitants du quartier euxmêmes. Il y a également beaucoup de petites entreprises, pour la plupart familiales, dans la région. Il y a également un grand nombre d’écoles dans la région.

Le Centro Culturual Independencia est un bâtiment de 7 000 mètres carrés situé dans la Colonia Independencia, l’un des quartiers les plus traditionnels et les plus conflictuels de la ville de Monterrey. Elle offre des services aux habitants de la région et promeut des activités de développement culturel.

Le bâtiment est organisé en cinq volumes orthogonaux divisés par des cours et des jardins, articulés par des galeries de service et des circulations verticales. Sur le plan formel, les cinq volumes sont composés de cadres en acier et recouverts de murs en blocs. À l’extérieur, chaque espace dispose d’un jardin ou d’une cour qui sert de point de rencontre.

L’entrée principale est située entre les volumes du musée/de la bibliothèque et la piscine. Les volumes situés à l’est entre les bâtiments sont accessibles depuis la Calle Jalisco. Les bâtiments sont reliés par des galeries. Ces galeries sont larges, ce qui leur permet d’être utilisées comme des extensions du programme du projet. Pour plus d’informations : demander le book dédidié a ce projet, puis que c’est un Projet de Fin d’études.

Typologie : Centre Culturel

Collaboration : Individuelle

Localisation : Monterrey

Statut : Projet d’école

Processus de Conception

Schéma de patios

Différence des hauteurs

Système de Galleries

Façade Principale

Bibliothèque

RdC R+1 Coupe Longitudinale Patio en face de l’auditorium

Turn static files into dynamic content formats.

Create a flipbook
Issuu converts static files into: digital portfolios, online yearbooks, online catalogs, digital photo albums and more. Sign up and create your flipbook.
Michel Rangel Portfolio ENSA by Michel Rangel - Issuu