
Completed Works + On the Boards
![]()

Completed Works + On the Boards
*Full resume included on final page, outlining full project experience and skillsets across design phases.
2014-2016
Bachlor of Science in Architecture
Catholic University of America
Washington, DC
Associates of Applied Science
2011-2014
Architectural Technology Degree
Montgomery College Rockville, MD
2021-Present
Skills
Adobe Suite
Revit
AutoCAD
Enscape
SketchUP
Twinmotion
Spanish
2016-2021
sshape, Washington, DC
Senior Project Designer
Led workplace design from programming through construction administration, managing LEED/WELL-certified interiors up to 80,000 SF and driving BIM collaboration to deliver complex scopes (i.e., SCIFs and interconnecting stairs with minimal revisions) keeping transparency and the end user in mind.
OTJ Architects, Washington, DC
Project Designer II
Delivered high-impact visuals using Revit, Enscape, and Adobe Suite to guide client decisions, align vision to concept, and maintain design integrity within budget and schedule constraints.
NAIOP Northern Virginia Design Award
Interior Tenant Space over 50K SF
click here to learn more
2024 James M. Scott Exceptional Design Honor Award over 50K SF
click here to learn more

33moncayo@gmail.com +1 240 328 4495
Washington, DC USA
Work in progress, each project here begins with a provocation: how might material, circulation, or ceiling planes carry meaning? We lead with curiosity and let site, story, and team shape the rest.
+30K square feet
We approached this headquarter's expansion with reverence; editing for proportion, continuity, and tactile hierarchy. Through warm accents and quiet formality, we extended their legacy into the space.
16K square feet
A compact HQ demanded clarity without extravagance. This project distilled comfort and dignity through subtle moves; deeper daylight access, flexible meeting rhythms, and a touchpoint for all levels of comort.
+80K square feet
A multi-level HQ with a monumental internal stair re-imaged. We standardized spatial “neighborhoods” and blurred the thresholds in between. Design cues like cafés and lounges softens hybrid culture into place.
16K square feet
In-place renovation focused on footprint reduction without compromise. Led design and construction coordination, opening perimeter zones with daylight-filled lounges, replacing solid walls with glass offices, and carving out moments for collaboration and pause.
Trade Association in Washington, DC Consultant in Washington, DC
Association in Washington, DC
client — Non-profit Organization
type — +30,000 SF of interior workspace year — 2024
collaboration — sshape, Peris Construction, Cushman and Wakefield, RMR Group

A public policy think tank committed to upholding human dignity, expanding human potential, and fostering a freer and safer global environment, elected to expand their scholar and staff office to a more substantial and refined 32,000 rentable square foot facility within the historic Dupont Circle district. Situated adjacent to their principal headquarters, the design intent for this new space emphasizes a highend and timeless aesthetic, intended to resonate with the established historical character of their existing offices.





Interior wall surfaces serve as a gallery for historic artwork and photographic documentation from the mid-twentieth century.


Leading a collaborative visioning session to align on look, feel, and design direction—gathering real-time feedback to ensure the concept reflects the client’s culture and goals.




The incorporation of numerous library spaces, designed to accommodate an extensive collection of volumes, was also a significant programmatic requirement. The office design features standardized private offices equipped with ergonomic furniture and a timeless aesthetic.


client — Confidential Client type — +15,000 SF of interior workspace year — 2023 collaboration — sshape, Clune Construction, Cresa
This Confidential Foundation sought to reinvigorate their DC identity, downsizing from 30,000 RSF of traditional office space to 13,000 RSF of mission-driven destination space. With the goal of driving staff back into the city and recovering a lost sense of community, sshape prioritized an activity-based workplace design that directly reflects the inspiring work of the organization in a built environment. The final design caters to the diverse varying needs of its occupants and priorities wellness, equity, and engagement. Understanding that every workday looks slightly different, this flexible hybrid workspace accommodates all types of work settings, from high-occupancy collaboration to dedicated quiet zones.
Inspired by Washington, DC's African American Museum and iconic cherry blossoms, this LEED Gold Certified office blends the strong foundation of a flexible activity-based workspace with an integration of wellness, diversity, equity, and community through their vibrant and missiondriven design.









Functional with A homely touch Interiors.
Inspired by Washington, DC's African American Museum and iconic cherry blossoms, this LEED Gold Certified office blends the strong foundation of a flexible activity-based workspace with an integration of wellness, diversity, equity, and community through their vibrant and mission-driven design.
A/6


Involved in the design vision and workplace strategy for this office transformation, transitioning from a traditional office-heavy layout to a more collaborative, open-plan environment. Partnered closely with the client to develop flexible neighborhoods and amenityrich pockets—creating a variety of spaces that support focus, connection, and well-being. Maintained a strong presence on site weekly—often multiple times a week—to coordinate with the general contractor and ensure the design intent was fully realized throughout construction. The result was a highly successful project that stayed true to its original vision from concept through completion.



The interconnecting stair acts as a central moment of transition—both physically and experientially— guiding staff into the heart of the workplace: the "greenhouse." This vibrant hub is filled with lush greenery, drawing the outdoors in and reinforcing a daily connection to nature. Touchdown spaces are tucked among the plantings and lounge areas, offering informal work zones bathed in soft, ambient light from string lights and pendants. Bold graphic murals infuse the space with character and identity, making it both welcoming and distinct. More than just a relocation, this move represents a pivotal transformation—an environment that reflects the organization’s commitment to its people, its purpose, and its continued evolution.





Branded wayfinding like “Base Camp” creates a sense of place— turning everyday spaces into memorable, experience-driven destinations.



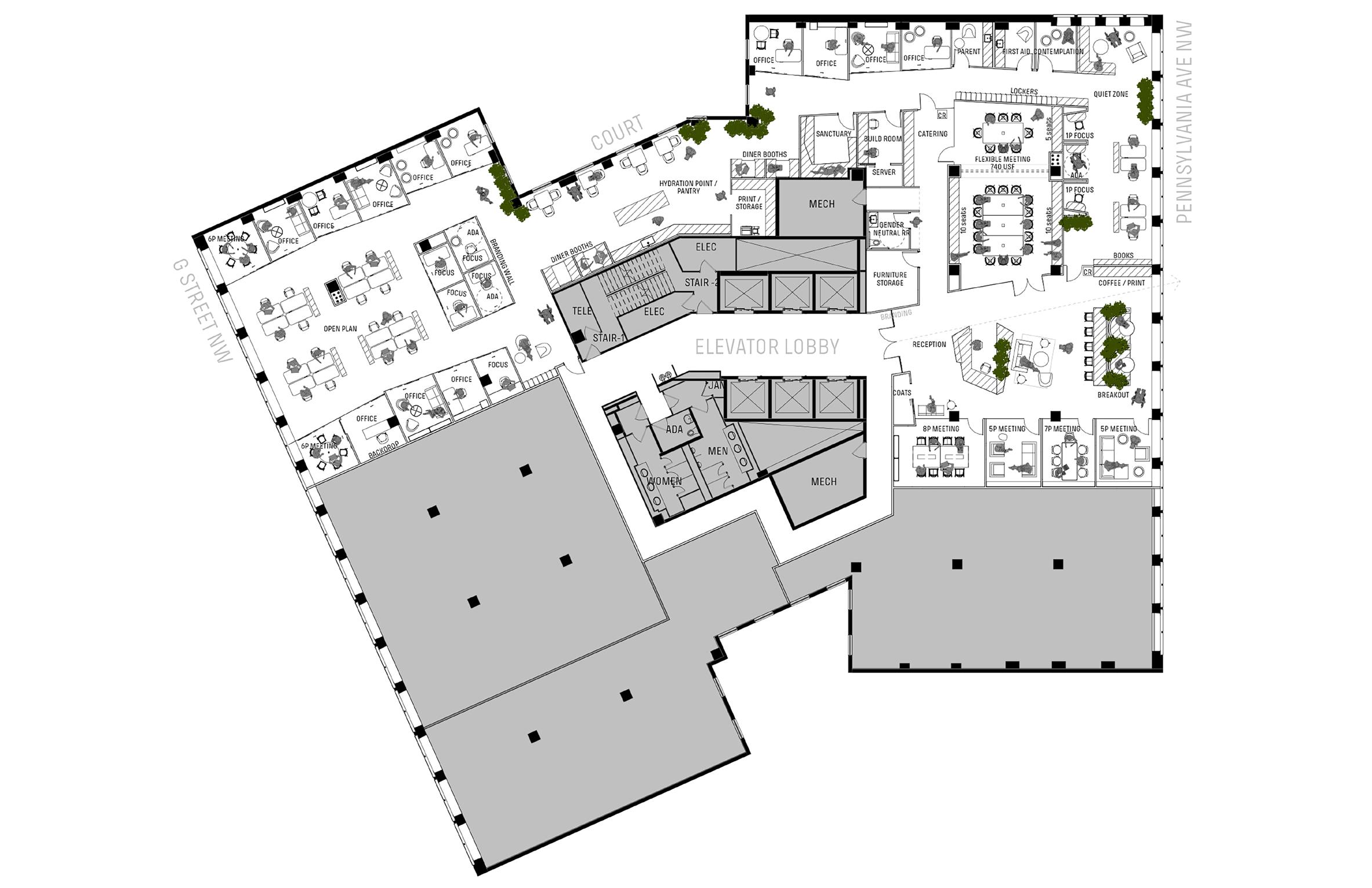
Each floor follows the conceptual program of delineating the most public functions at the ground level of the stair case, while keeping a hybrid buffer as the second floor, & finally leading up to the most private level of the conceptual hierarchy at the third floor.
Diagrams (left and above) highlight three additional sound scapes offered throughout the space. (1) greenery & well-being; (2) breakout zones & different levels of seating green ; and (3) effecient primary circulation coupled with secondary circulation for maximum accessibility from all corners of the floor plan.
Zones defined by rich materiality—wood tones, refined detailing, and layered textures create an elevated environment for connection and focus.



greenery at the windowline blurs the edge between inside and out— creating a calm, visual rhythm.

This 21,000 SF renovation was part of a larger effort to reduce the client’s overall footprint. My role was to lead design and construction coordination—opening up solid walls with glass-front offices, adding daylightfilled lounges at the windowline, and carved out collab zones. All completed in a single, in-place phase—proving a smaller space can still deliver big on comfort and connection.





Core plumbing walls were preserved as a strategic move—minimizing rework, accelerating the schedule, and creating space in the budget for impactful changes like increased glazing and improved sightlines.
By preserving core offices and furniture, we were able to reinvest in features that truly transformed the space—like glassfront offices that maximize daylight and visual connection across this 21,000 SF footprint.
Opened up formerly closed-off areas to create a mix of casual and semi-private zones, supporting both heads-down work and informal collaboration across the floor.


Lounges and collaboration zones hug the windows, turning daylight into a shared resource—not just a perk.
As part of a strategic square footage reduction, we reimagined the entry zones as open collaboration lounges—shifting away from traditional reception desks to create an immediate sense of energy, transparency, and purpose.
Reduce overall footprint from 38,000sf to 21,000sf
Renovation in place to achieve cost savings across the board
Integration of variety of spaces for meetings, focus work, and collaboration
Designed for 36 people, but can flex up to 90 people on peak days
Work in progress, each project here begins with a provocation: how might material, circulation, or ceiling planes carry meaning? We lead with curiosity and let site, story, and team shape the rest.
+30K square feet
We approached this headquarter's expansion with reverence; editing for proportion, continuity, and tactile hierarchy. Through warm accents and quiet formality, we extended their legacy into the space.
16K square feet
A compact HQ demanded clarity without extravagance. This project distilled comfort and dignity through subtle moves; deeper daylight access, flexible meeting rhythms, and a touchpoint for all levels of comort.
+80K square feet
A multi-level HQ with a monumental internal stair re-imaged. We standardized spatial “neighborhoods” and blurred the thresholds in between. Design cues like cafés and lounges softens hybrid culture into place.
16K square feet
In-place renovation focused on footprint reduction without compromise. Led design and construction coordination, opening perimeter zones with daylight-filled lounges, replacing solid walls with glass offices, and carving out moments for collaboration and pause.
Trade Association in Washington, DC Consultant in Washington, DC
Association in Washington, DC







CLIA, the Cruise Lines International Association, sought a new HQ that embodies the lightness, flexibility, and joy of modern cruising. Not as a theme, but as a spatial ethos. The design translated their values into an architectural language that invites curiosity, elevates guest experience, and allows for evolution over time.

client — CLIA
type — 15,000 SF workplace interiors
est. completion — May 2026
collaboration — Revit, Adobe Suite, and Enscape


Our team prioritized layered storytelling, soft thresholds, wellness integration, and design consistency across phases. Delivering a quiet yet emotionally resonant workplace.
Led a hybrid visioning + programming session that uncovered CLIA's strategic pillars, stakeholder priorities, and internal goals.





client — Lewis-Burke Associates type — 20,000 SF workplace interiors est. completion — May 2026 collaboration — Revit, Adobe Suite, and Enscape
“From Healy Hall to the Halls of Congress: A Campus of Curiosity”
Rooted in the legacy of Washington, DC and inspired by the spirit of discovery found on a university quad, Lewis-Burke’s new workplace reimagines the traditional office as a modern learning campus— layered with moments of advocacy, collaboration, and civic energy.
The space is a journey of both familiarity and surprise—merging hospitality, local pride, and impact-driven design to reflect Lewis-Burke’s authentic presence in DC and their forward-thinking influence in advocating for public policies.


















The palette emphasizes natural tones and subtlecontrasts: warm wood, neutrals, and matte metal with accents of rust and bronze. These elements were chosen to convey sustainability, lightness, and durability while supporting flexible layouts. Ceiling and wall gestures introduce rhythm, and subtle flooring shifts define zones without barriers.




A full-floor headquarters relocation for a national nonprofit, designed within the historic Greyhound building at 1100 New York Ave. The project emphasizes wellness, flexibility, and community, incorporating layered lighting, acoustic treatments, ADA-accessible wellness spaces, and integrated technology. An open, hoteling layout supports hybrid work while multifunctional zones near reception accommodate events and member gatherings. The design draws inspiration from the building’s architectural history and the client’s mission, blending nostalgic materiality with modern workplace strategies to foster inclusivity, staff engagement, and a warm, downtown-inspired atmosphere.

ENSUREEQUITY










client — ICBA
type — 15,000 SF workplace est. completion — September 2025 collaboration — Revit, Adobe Suite, and Enscape














Design is approached as a layered process of listening, discovery, and problem-solving. With over eight years shaping workplace and corporate interiors, from mission-rich headquarters to hospitality-forward hybrid environments, I specialize in translating values and goals into tactile, spatial experiences
Unfolding organizational identity through programming workshops and consultant coordination, each project becomes a story, told through intentional materiality, inclusive wayfinding, and thoughtful delivery through construction administraion.
Career
sshape, Washington, DC
Senior Project Designer
November 2021 - Present
OTJ Architects, Washington, DC
Project Designer II
February 2016 - November 2021
Education
Bachlor of Science in Architecture
Catholic University of America
Washington, DC
August 2014 - May 2016
Associates of Applied Science
Architectural Technology Degree
Montgomery College
Rockville, MD
August 2011 - May 2014
Achievements
NAIOP Northern Virginia Design Award
Confidential Capital Venture Firm
Interior Tenant Space over 50K SF
click here to learn more
2024 James M. Scott Exceptional Design
Honor Award over 50K SF
Confidential Not-for-Profit
click here to learn more
• Led immersive visioning workshops using conceptual-driven prompts, image curation, and storytelling exercises to uncover clients’ spatial and cultural end goals.
• Developed conceptual narratives that guided architectural direction, material palettes, and zoning strategies across projects up to 80,000 SF.
• Translated culture, headcount, and hybrid needs into highly adaptable spatial programs, often collaborating with brokers and engineers to test site viability, RSF efficiency, and future-proofing the client’s vision.
• Led strategic programming efforts for corporate workplace, nonprofit, and civic clients by translating organizational goals into test fits, spatial adjacencies, and versatile spaces for the future.
Design Development
• Led design development for complex workplace interiors by achieving internal design milestone into high-quality visuals and presentations using Revit, Enscape, and the Adobe Suite to effectively communicate design intent - aiding clients make decisions more efficiently.
• Facilitated QA/QC design reviews to align architectural direction with technical documentation, managing DD deliverables across lighting, MEP, and furniture.
Construction Admin & Delivery
• Project designer II in a complex three-story, interconnecting stair alongside integration of advanced security features and technology, private zones with biometric access control, and secure SCIF space.
• Produced detailed construction documents in Revit. By encourgaing engineers and consultants to collaborate within BIM models, the team reduced errors and back-andforth revisions.
Stephanie Berry, sshape Partner | Director of Projects sberry@sshapedc.com
Kevin Sneed, OTJ Architects Principle | Mentor ksnead@otj.com

Thank you