


![]()



338 1614581
michelelabate@yahoo.com michelelabateart
Mi chiamo Michele, sono nato a Salerno (1995), vivo e lavoro a Roma. Da sempre nutro la passione per le arti figurative, crescendo mi sono avvicinato al cinema. Dopo il diploma presso il liceo artistico, unendo queste mie due forti passioni, ho deciso di frequentare il corso triennale di scenografia presso l’Accademia di Belle Arti di Firenze. Nel 2022 ho conseguito la laurea triennale in scenografia presso il Centro Sperimentale di Cinematografia, da allora lavoro nell’art department.

FORMAZIONE
LAUREA TRIENNALE IN SCENOGRAFIA
Centro Sperimentale di Cinematografia, Scuola Nazionale di Cinema, Roma 2020-2022
LAUREA TRIENNALE IN PROGETTAZIONE E
ARTI APPLICATE SCENOGRAFIA
Accademia di Belle Arti di Firenze Punteggio 110/110 con lode 2015-2018
DIPLOMA DI II° GRADO
Liceo Artistico Carlo Levi, Eboli (SA) 2008-2013
CONOSCENZE SOFTWARE
AUTOCAD
CINEMA 4D
SKETCHUP
ADOBE PHOTOSHOP
ADOBE ILLUSTRATOR
ADOBE INDESIGN
OFFICE WORD
OFFICE EXCEL
LINGUE
ITALIANO
Madrelingua - Eccellente - Ottima - Buona - Eccellente - Ottima - Buona - Ottima - Ottima
INGLESE
Comprensione, scritto, parlato
Livello B1
WORKSHOP L’AFFRESCO
E LA GRAFICA SU CERAMICA
La Corte della Miniera, Urbino (2012)
LABORATORIO GRAFICA D’ARTE TECNICHE
DELL’INCISIONE
Liceo Artistico Carlo Levi, Eboli (2012)
VERONA (2022/2023) di Timothy Scott Bogart, Scenografia di Dante Ferretti Bozzettista
SERIE TV
STUDIO BATTAGLIA 2 (2023) di Simone Spada Scenografia di Carlo Rescigno Assistente Scenografo
IL BARBIERE COMPLOTTISTA (2022) di Valerio Ferrara Assistente Scenografo
RUMORE BIANCO (2021) di Francesco Castellaneta Scenografo
FRAMING PASSION (2021) di Margherita Ferrari Scenografo
ANIMALI (2020) di Marco Mazzone Assistente scenografo
2023
Bozzettista
Produzione Iervolino & Lady Bacardi
Entertainment S.p.A.
Regia Timothy Scott Bogart
Scenografia Dante Ferretti
La più grade storia d’amore di tutti i tempi ambientata come un musical pop originale.
Tirocinio svolto come bozzettista presso Cinecittà - Attrezzeria 17, Teatri 8/9, Studio Dante Ferretti
BOZZETTO
BALLO CAPULETI (CORTILE)
Carboncino e pastelli gessosi su cartoncino da base fotografica.
Le tavole di seguito riportate, descrivono l’iter di preparazione dei bozzetti per il maestro Dante Ferretti.



BALLO CAPULETI (CORTILE)
Intervento digitale su base fotografica. Cortile Castello di Torrechiara (PR).


Base fotografica, cortile Castello di Torrechiara

2021/2022
Centro Sperimentale di Cinematografia, Roma
Progetto realizzato sullo script dell’omonimo film mai girato di Francesco Zeffirelli, per il progetto “Il cinema che mai non fu” curato da Francesco Frigeri e da Carlo Rescigno per il corso di scenografia della Scuola Nazionale di Cinema.
BOZZETTO
LABORATORIO DI MICHELANGELO Tecnica mista trasposta e completata in digitale.
A seguire
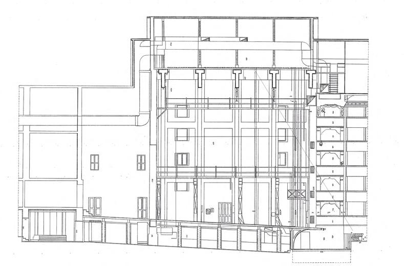
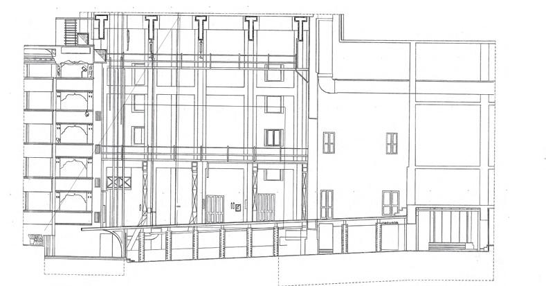
TAVOLA TECNICA CON PROSPETTI E SEZIONI DEL LABORATORIO DI MICHELANGELO.





I FIORENTINI
LABORATORIO DI MICHELANGELO
Tecnica mista trasposta e completata in digitale.

2020/2021
Centro Sperimentale di Cinematografia, Roma
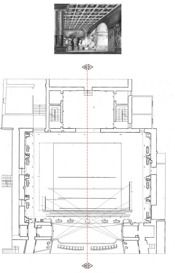
DARIO ARGENTO’S INFERNO
Inferno di Dario Argento, 1980. Lavoro organizzato dal CSC in collaborazione con il critico cinematografico Marcello Garofalo, per la mostra sul regista Dario Argento a Torino, 2021. La serie di tavole di seguito riportata, è una ricostruzione dei set originali, frutto dell’analisi e dello studio dei frame estratti dal film, grazie ai quali è stato possibile realizzare i bozzetti e le tavole tecniche.
BOZZETTO LEGATORIA
Acrilico, carboncino e pastelli gessosi su cartoncino preparato pittoricamente.
TAVOLA TECNICA LEGATORIA
Autocad e Photoshop.
BOZZETTO GROTTA TENEBRARUM
Acrilico, carboncino e pastelli gessosi su cartoncino preparato pittoricamente.







2019/2020
Centro Sperimentale di Cinematografia, Roma
Bozzetto realizzato sullo script dell’omonimo film mai girato di Giuseppe Tornatore, per il progetto “Il cinema che mai non fu” curato da Francesco Frigeri e da Carlo Rescigno per il corso di scenografia della Scuola Nazionale di Cinema.

Acrilico e pastelli su cartoncino.
2022
Ass. Scenografo
Produzione CSC - Centro Sperimentale di Cinematografia
Regia Valerio Ferrara
Scenografia Nike Paolucci
In un quartiere popolare di Roma c’è un barbiere che crede nelle teorie del complotto. In famiglia, come a lavoro, viene deriso da tutti e nessuno lo prende sul serio finché non viene arrestato dalla polizia. Una storia di famiglia attraverso la parabola di un uomo che, per ricevere attenzioni e affetto dai suoi cari, finisce per contagiare con il morbo del complottismo tutto il quartiere.
A seguire alcuni frames del corto.







2021/2022
Centro Sperimentale di Cinematografia, Roma
Una miniserie in cinque episodi che racconta la Red Passion di chi la vive. L’espressione più sincera di un istinto creativo che non puoi fermare, ma solo seguire.
A seguire alcuni frames della miniserie.
2021/2022
Sperimentale di Cinematografia Roma
MINISERIE ORIGINALE CAMPARI
episodi che mostrano il dietro le quinte di cinematografico. Esplodono in ogni frame il Red Passion e della sua forza creativa. Passion è una lode al Cinema scritta e mani dagli studenti del Centro Sperimentale di Cinematografia: una storia corale, immediata, che racconta la passione di di seguire la propria arte.
alcuni frames della miniserie.









2017/2018
Accademia di Belle Arti di Firenze
Opera in due atti con musica di Vincenzo Bellini su libretto di Felice Romani. Di questo progetto è riportato il bozzetto del primo atto rappresentate il Palazzo Capuleti e la relativa tavola tecnica inserita nel teatro.
BOZZETTO PALAZZO CAPULETI
Grafite su carta da lucido.
A seguire
TAVOLA TECNICA PALAZZO CAPULETI
Grafite su carta da lucido.





2023
Ass. Scenografo
Produzione Palomar
Regia Simone Spada Scenografia Carlo Rescigno
Studio Battaglia è un legal dramedy che ci farà osservare le relazioni sentimentali da uno spioncino particolare: lo studio dell’avvocato divorzista.
A seguire alcuni frames della serie televisiva.







2020/2021
Centro Sperimentale di Cinematografia, Roma
Il progetto, studiato per essere inserito nel Teatro 5 di Cinecittà, interessa la scenografia televisiva per un ipotetico programma d’intrattenimento musicale con ospiti cantanti e con orchestra, distribuita sui diversi piani della struttura a chiave di violino.
Simulazione grafica della scena ripresa dalla camera posizionata sul Jimmy Jib.
A seguire
TAVOLA TECNICA
CON PIANTA E PROSPETTI


2019/2020
Centro Sperimentale di Cinematografia Roma
L’associazione per il Gioco di Ruolo dal Vivo in Italia, ha scelto come teatro per la realizzazione delle sue manifestazioni il lago di Vulci. Sono state quindi richieste delle scenografie apposite per definire le aree di gioco e creare le zone di appartenenza delle diverse squadre. Di seguito il bozzetto della Locanda malfamata, luogo di ritrovo e ristoro per tutti i giocatori.



