portfolio 2023

Page 1

Hello,

I am Michalina Matuszak. I am a Poznań University of Technology graduate. Architecture is not only my interest or passion but also a way of expressing myself in my own way. Experiencing architecture has taught me to be more sensitive, to see details and it has opened up many new paths for self-development.

After hours an actress in an independent amateur theater, big fan of road cycling and rock music.

content m i c h a l i n a m a t u s z a k 1.
p o r t f o l i o 2.
m i c h a l i n a m a t u s z a k 3.
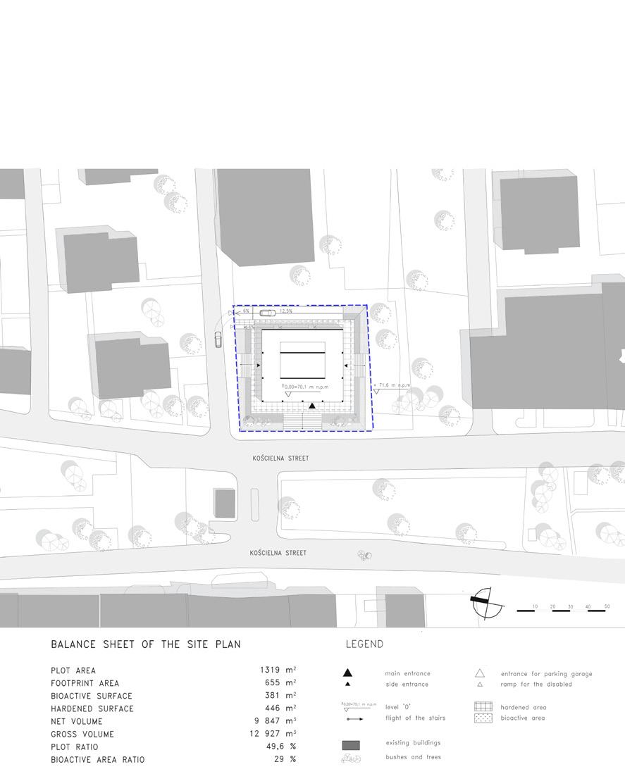
p o r t f o l i o SITE PLAN 4.
m i c h a l i n a m a t u s z a k
5.
PLAN OF THE GROUND FLOOR
p o r t f o l i o SECTION SOUTH ELEVATION 6.
m i c h a l i n a m a t u s z a k 7.
p o r t f o l i o
“Be truthful. Nature only sides with truth.”
8.
~ Adolf Loos
9.
p o r t f o l i o SITE PLAN 10.
m i c h a l i n a m a t u s z a k VISUALISATION 11.
12.
PLAN OF THE GROUND FLOOR
m i c h a l i n a m a t u s z a k
13.
SECTION A-A
p o r t f o l i o
14.
SECTION OF THE ELEVATION
m i c h a l i n a m a t u s z a k 15.

PLAN OF THE GROUND FLOOR

p o r t f o l i o 1 2 3 6 B B A A D D 7 10 L M M 11 12 13 4 5 5 45 300 330 210 240 360 45 530 45 360 240 210 330 300 45 290 530 ±0,00 -0,10 -0,01 -0,20 -0,10 -5,75 -5,20 -2,50 -0,10 -0,10 -0,10 RURA SPUSTOWA WYJŚCIE KANAŁÓW WENTYLACJI MECHANICZNEJ WYJŚCIE KANAŁÓW WENTYLACJI MECHANICZNEJ 0 0 0 12 21 B B A A D D C C % 3% % % 3% % % % C 455 BUDYNEK BUDYNEK II A K K 7 7 H H N N 7 7
16.
m i c h a l i n a m a t u s z a k 17.

„In a society that celebrates the inessential, architecture can put up a resistance, counteract the waste of forms and meanings, and speak its own language.

p o r t f o l i o
VISUALISATION
[...]”
18.
m i c h a l i n a m a t u s z a k N N 350 +3,90 +7,90 +11,80 ±0,00 +3,50 +7,40 -0,50 -5,75 -0,10 +6,40 3% 3% 1m 5m = 455 m p m 445 25 p B B A A D D E E F F G G K K L L M M D D H H 350 350 -0,20 -4,00 +3,90 -4,00 ±0,00 -6,35 -9,75
A-A 19.
SECTION
p o r t f o l i o VISUALISATION 20.
m i c h a l i n a m a t u s z a k
SECTION D-D 10 10 11 11 12 12 -6,35 +6,40 ±0,00 -2,25 +11,80 -0,10 -13,35 -1,25 1 p p ±0,00 +6,40 -9,75 -5,25 -0,10 -12,85 -10,95 -11,55 +11,80 +3,50 13 13 21.
VISUALISATION
p o r t f o l i o 1 1 2 2 5 5 6 6 B B A A D D E E F F 7 7 10 10 L L M M 11 11 12 12 13 13 4 4 5 5 35 420 300 480 35 35 420 300 480 380 720 630 120 570 210 720 600 690 45 5 220 700 20 990 690 020 210 210 120 870 990 300 330 210 240 360 35 5 620 975 1 270 -5,75 -4,00 -5,25 -4,37 -4,94 -5,25 -0,20 -9,75 -5,20 -5,20 RURA SPUSTOWA RURA SPUSTOWA WYJŚCIE KANAŁÓW WENTYLACJI MECHANICZNEJ B B A D D C E E 6% 6% 6% OKNO DACHOWE 3 % 3 % 3 % 3 % C -1
0 -1
0
0 -1
0
11
13 -1
5
- 17- 19 - 20 -1-1 - 24 -1 - 2-ZBIORNIK BEZODPŁYWOWY BUDYNEK III 1 5 A A KOMIN SAUNY 8 8 9 9 G G K K 6 6 7 7 C C H H N N 7 7
OF -1 FLOOR 22.
-
-
--
-
-
--
-
-
PLAN
23. m i c h a l i n a m a t u s z a k AKSONOMETRY

VISUALISATION - OFFICE SPACE

VISUALISATION - MEETING SPACE

24. p o r t f o l i o
25. m i c h a l i n a m a t u s z a k AKSONOMETRY

VISUALISATION - KITCHEN

26. p o r t f o l i o
m i c h a l i n a m a t u s z a k GSEducationalVersion stół 200 85 L P+M P S szafka ekspres 60 60 piekarnik mikrofala 60 60 wysokie 40 60 lodówka 60 60 półki wnękowe 17 5 30 umywalka + bateria podtynkowa 55x25 grzejnik ręcznikowy miska WC wisząca szafka nad geberitem 83 17 5 szafa płaszcze 120 5 szafa półkami 55 46 narożnik modułowy ok 70 3 0 dywan 230x 30 dywan biurko 46 szafa wieszaki otwarta 187 50 lustro podświetlane biurko szufladą 40 74 bateria prysznicowa podtynkowa deszczownicą grzejnikiem elektrycznym pralkę suszarkę szuflada koszem pranie 2 60 wnęka drukarkę 143 60 biurko 143 60 szafka zamykana 143 30 szafa przeszklona na puchary 73 x25 mata ochronna 70 180 trenaż fotel biurowy fotel sofa trzyosobowa grzejnik płytowy szafka RTV regałem telewizor 65 cali szafka lampka 49 30 szafka lampka 49 30 szafka z umywalką 100 50 geberitem wisząca szafa deskę do prasowania żelazko 54 34 ZM zuflady witryna zuflady szafa gospodarcza 120 60 szafa 55 60 szafa 104 60 szafa 104 60 szafa 104x60 lustro zmywarka 60 60 sortownik śmieci 60 60 szuflady 60 60 szuflady 60 60 szuflady 60 60 płyta indukcyjna grzejnik płytowy klimatyzator ścienny grzejnik płytowy regał zamykany 90 40 regał otwarty 75 40 grzejnik płytowy klimatyzator ścienny podświetlane lustro grzejnik płytowy tapicerowane podumywalkowa szafka wisząca 30 115 grzejnik płytowy bateria podtynkowa klimatyzator ścienny puf Ø ławka tapicerowanymi siedziskami 294 50 4 5 Training room/office 10 7 m Guest room 12 5 m2 Bathroom 1 3 5 m Hall 17 7 m Bedroom &closet 20 1 m Living room 44 2 m2 Bathroom 2 5 2 m kawowy łóżko materac 180x200 kawowy Ø73 wolnostojąca anna 160 70 szafka wisząca 120 30 szafka wisząca 120 30 szafka wisząca 91 30 okap podszafkowy wnęka 8 h 60 regał otwarty 91 30 aluzje drewniane żaluzje drewniane aluzje drewniane grzejnik ręcznikowy klimatyzator ścienny LED LED LED LED LED LED LED LED LED LED LED LED LED LED LED LED LED
27.
PLAN OF THE APARTMENT
p o r t f o l i o
28.
VISUALISATION - LIVING ROOM

VISUALISATION - SLEEPING ROOM

m i c h a l i n a m a t u s z a k
29.
p o r t f o l i o
- BATHROOM 30.
VISUALISATION
THANK YOU

Turn static files into dynamic content formats.

Create a flipbook
Issuu converts static files into: digital portfolios, online yearbooks, online catalogs, digital photo albums and more. Sign up and create your flipbook.