Michael Nemery Architecture Portfolio

Page 1


Nemery architecture portfolio

Michael

01 N.A.S.A HEADQUARTERS

Flagship Center for Space Travel Fall 2023 l Design 7 l Partner

04 Krafla Ski Hearth Icelandic Skier's Oasis Summer 2024 l Competition l Team design projects

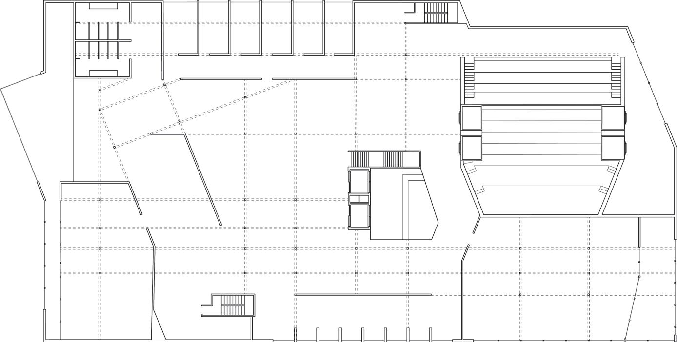
WINTER PARK LIBRARY

Learning and Community Center Spring 2023 l Design 6 l Solo

Thermal Voyage Academy

School of Passive Comfort Spring 2024 l Design 8

TRAVEL SKETCHES

Form Finding & Shaping Excersises Fall 2020-2024 l Solo

By Modal - Complex Transportation and Recration Park Fall 2024 l Team

01 N.A.S.A MANHATTAN HEADQUARTERS

D7 l Fall 2023 l Professor Judi Shade Monk

In Collaboration with Luke Ortega

Location: Midtown, Manhattan

The N.A.S.A Headquarters is a flagship center on the corner of 8th avenue and 31st street across from Madison Square Garden. The program of the spaces serve to reinvigorate interest in outer space and become a beacon for those searching to expand their horizons. The skyscraper is a monument to the threshold of space between the ground and sky. It acts as a interdisciplinary joint between the perception from the scale of the ground to the scale of the broader skyline.

It plays off the themes of conceal and reveal to relate to the client and present the building to the street through dramatic moments requiring further investigation. The facade utilizes the concept to tease and entice visitors while keeping true N.A.S.A functions within the building discrete.

Partner Project:

Perspective Aerial Render: -Luke Ortega (Facade and Structure Modeling) -Michael Nemery (Photoshop Post Editing and Base Modeling)

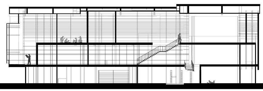
The project was designed to be infused with the three main ideas of conceal, reveal, and community. The three goals are expressed through the section as the relationship between areas of program within the vertical assention were derived from one of these three ideas.

Conceal Reveal
Community
Sectional Composition Study

Partner Project:

Longitudinal Section Composition: Michael Nemery

Cross-Section Composition: Luke Ortega

Sectional Composition Study- Luke Ortega and Michael Nemery

- OBSERVATION DECK

- TEMPORARY HOUSING UNITS

- MULTI-PURPOSE OFFICE SPACES

- EXPANSIVE LABRATORY SPACES

Public:

- PLANETARY OBSERVATION DECK

- PLANETARIUM EXPERIENCE

Public:

- SIMULATION TESTING SPACES

- ROOF-TOP BAR AND DINER

- IMMERSIVE MUSEUM EXHIBITS

The series illustrates the components considered for developing the facade. The facade's mullian system is to respond to the program and the ideas of conceal and reveal echoing from the base through the tower and further highlighted with the use of LED screens.

The project operates to continue the formation of a small entertainment block with the entrance to Penn Station and Madison Square Garden with its inclusion of a museum, LED facade screens, and rooftop bar.

Facade Sketch Study

02 Winter Park Library Extension

D6 l Spring 2023 l Professor Alfonso Perez Winter Park, Florida

The site is located in the heart of downtown Winter Park, Florida, whose cultural identity is rooted within modernizing a town historically plagued with symbols of segregation. The proposed extension to the Winter Park Library serves to connect the two halfs of the city through a continuation of the library's focus on collaboration and extension to cultural activites sponsored in the tight-knit town. With the town's conceptual position of refusing car-oriented developments, and of expanding density and walkability in our existing communities, the project will inspire new sustainable approaches to exploit the city's dense and pure structure.

The proposed library will mainatin many of the functions found within the existing building, while adding only some srategic and high traffic library functions. A new cafe will be installed to provide a continuation and fluid transition from the street-line shop structure on main street into the library building itself. In addition, there will be spaces for open and private collaboration through study spaces and studio environments. The library extension will be the new vessel for transitioning the contextual foot traffic to mental movement while effortlessly stitching itself into the identity of Winter Park.

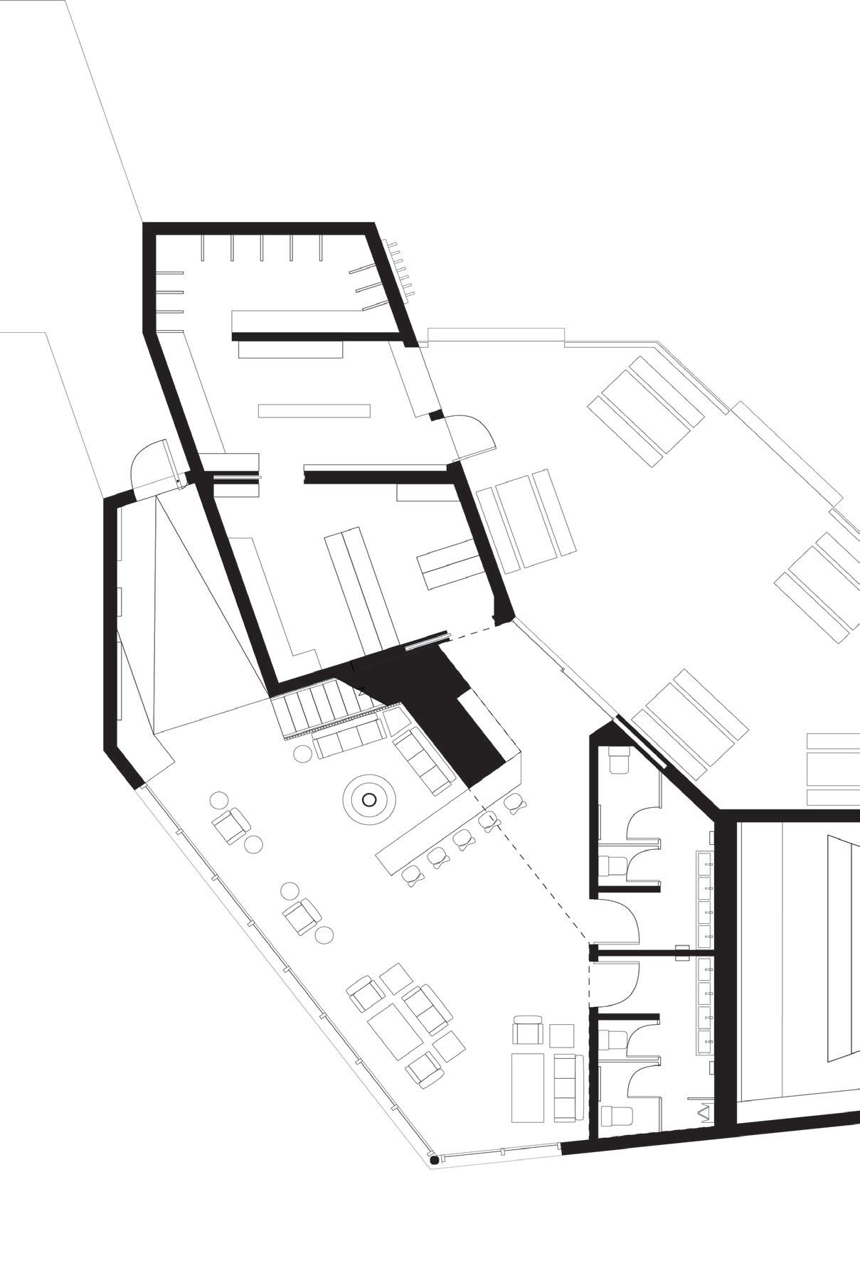
Site Mapping

Aldermann Square is the adjoining exterior plaza to the main entrance. The plaza acts as a coninuation of the axis through the building moving people to and from the rest of the city. People are drawn to the large open space that swallows your perception and fosters collaboration through the central social pit. It provides the visitor with a reminder of the emphasis of the library on collaboration with each tier of the library becoming more spcialized and personal.

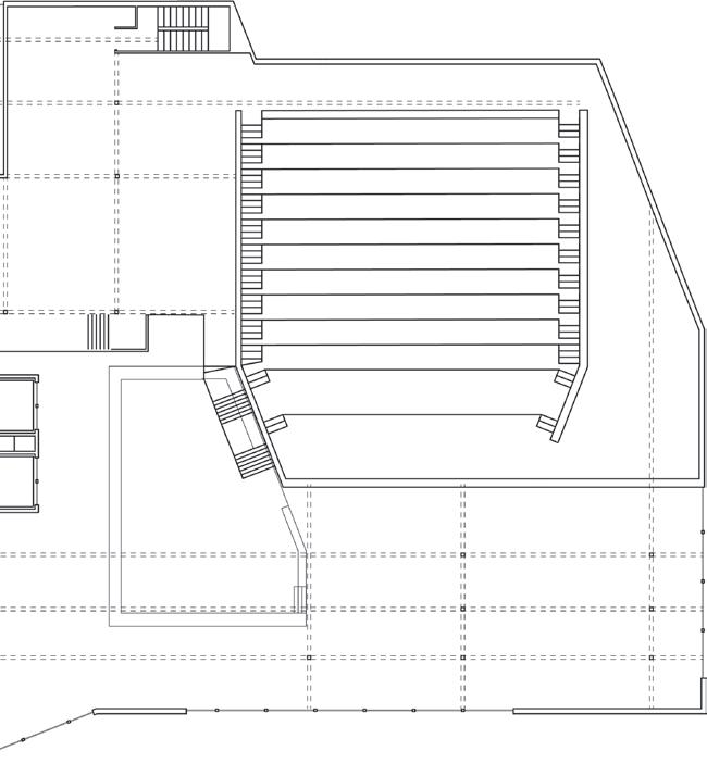
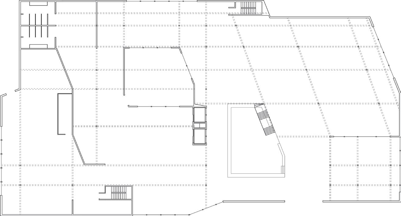
Second Floor Plan
Third Floor Plan

03 Thermal Voyage Academy

D8 l Spring 2024 l Professor Donna Cohen

Accra, Ghana

The site is located just outside of the capital city of Ghana, Accra just north by about 25 miles. In the mountainous hillside to a small adjacent town, the Thermal Voyage Academy aims to become an example and unique approach to providing students with a education under extreme climate conditions. Factoring in hours of direct daylight and humidity into the design, the Academy is a blend of interior/exterior moments and calculated shaded roofs to allow students and faculty to experience thermal comfort throughout their daily routine. The horizontality of the structures were designed to limit the exposure of sunlight on extensive faces in the east/west direction by using the verticality of the mountainous hillside to extend the reach of the shading roofs and facade designs. The project will inspire new thermal comfort in the most extreme conditions and will inspire new approaches to combat climate conditions by manipulating its natural effects.

The Academy will be home to students of all ages and grades by providing learning opportunities from lower to high school. With a highlighted focus on accessibility , the complex is rooted in maximizing students ease of education in a comfortable setting. The library and cafeteria spaces were chosen to be highlighted as these programs both share the common affinity of maximum comfortability. Both spaces are positioned upon entry into the school for direct access and limiting time in the heat. Both spaces were designed to contain adjustable elements that open to allow a cross-breeze and close to create a wind tunnel. Furthermore, both spaces force circulation to promote students and faculty to not rest in one spot for too long to suffer from the humidity. Both spaces provide the maximum level of comfort in a space that demands it.

Topography Adjustments

Program Key:

1. High School

2. Middle School

3. Administration/Clinic

4. Science, Art, and Music Labs

5. Lower School

7. Library

6. Sancturary
8. Dining Hall 9. Gymnasium
Two Classroom Use

Entrance Perspective

The entrance to the library is from a cascading series of stairs interrupted by various trees and building overhangs. Upon entry, the adjustable wall blinds are presented to create pockets of privacy and comfort.

The library places the blinds and study spaces near its entry as it opens the space to gusts flowing up from the valley below for maximum comfort. The interior and roof condition work together to let air circulate throughout the space. Using the hilly conditions of the site, the library creates a underground nook that students can utilitze for additional shaded comfort for personal studies.

04 Krafla Ski Hearth

Design Competition l Summer 2024 l In Collaboration with Micah Fitzgerald & Jose Osorio

Location: Krafla, Iceland

Nestled amidst the desolate and stark Icelandic landscape, the Krafla Ski Hearth creates a unique experience by epitomizing the combination of rustic charma and a modern hearth. Standing out not only through its programmatic delineation but also through its approach in optimizing views, visitors are presented with an unparalled sanctuary of relaxation and activity. The building form takes inspiration from the Icelandic landscape, mimicking the undulating movements found along surrounding mountain ranges to create moments of interaction and connection. The form creates an organic environemnt connecting interior programs to each other with the landscape.

The proposed Krafla Ski Hearth will exist to reflect and capture the beauty that Iceland offers through its large frontal glass windows. The angle of the structure was positioned to offer the best panoramic view of the surrounding environment and the ability to reflect the Northern Lights at night. The dark exterior wooden material contrast with the snowy landscape to radiate a central beacon within the arid landscape.

Partner Project: Perspective Aerial Render: -Micah Fitzgerald (Base Render)
-Michael Nemery (Photoshop Post Editing and Base Modeling)
Aerial Site Plan: Michael Nemery
Aerial Site Plan
Perspective Aerial Render

The ground floor plan was assembled by categorizing areas of program within relaxation, Expanding upon the program’s initial features and activities, the three blocks were blocks, between blocks, and with site conditions. The resulting form was sculpted and visual thresholds linking the building to its context. The plan operates as a representation so as a realization of the interconnectivity between all programs in the site. The varying the design highlight the circulatory importance of transitory thresholds that converge moments, along with the project’s materiality, mirror the geometry and substance mirrors the roof system to highlight the threefold composition of the building program of the design. Ultimately, the Krafla Ski Hearth redefines the ski experience through by bringing people together.

Square meterage is arranged to foster linear circulation Program is group and divided into activity, relaxation, and maintenance block.

ARRAY SPLIT

relaxation, activity, or maintenance blocks. were arranged by establishing relationships within sculpted to provide spatial prograrmmatic thresholds representation of those three blocks, but more varying moments of compression found within converge at the project’s central volume. These substance of the Icelandic landscape. The form in plan program while embedding hierarchical structure through its focus on bridging activity and relaxation

Partner Project:

Entrance Render: -Micah Fitzgerald (Base Render)

-Michael Nemery (Photoshop Post Editing and Base Modeling)

Ground Floor Plan: Michael Nemery and Jose Osorio

Process Form Series: Michael Nemery and Jose Osorio

Program Key:

3. Rest and Warmth Area

4. Self-Serve Refreshment Area

5. Outdoor Dining Terrace

6. Equipment Check/Tuning Station

7. Equipment Storage

8. Unisex Changing Rooms

9. Restrooms

10. Snow Groomer Storage 11. Transient Equipment Storage 12. Viewing Mezzanine 13. Viewing Balcony

At the center of the cabin exists the hearth. The location was chosen to allow the hearth to be in contact with areas of relaxation and activity while extending towards the maintenance garage. The hearth’s position guides circulation around it both horizontally and vertically, with its central mass acts as a programmatic, structural, and conceptual core within the project. The hearth and mass join to the mezzanine which extends the rest and warmth area while acting as a viewing deck both indoors and through its attached balcony, framing a view towards the ski slopes. The hearth embodies the intersection of comfort and connection. The project also reflects the concepts of arrival and receiving, prioritizing the relationship between the visitor and the context through both programs of recreation and relaxation. Aside from the circuitous approach to the project’s compressed threshold of entry, the building embraces the ski slopes through its placement and its tripartite crescent form.

Program blocks are repositioned to optimize views

Program blocks are adjusted to create compression and hierarchial organization

Program block combine to bridge primary spaces

Edge connections are refined and blocks give way to uniform project

Partner Project:

Interior Render: -Micah Fitzgerald (Base Render)

-Michael Nemery (Photoshop Post Editing and Base Modeling)

Section Detail: Michael Nemery and Jose Osorio

05

Travel and Form Sketches

Images taken from Gainesville, Las Vegas, New York City, Columbus, Missouri

"Sketching allows my mind and hand to synchronized my interest and visualize my inspiration, process, and creative design solutions."

Michael Nemery
Michael Nemery 2023

06 By Modal Transportation Hub

G1 l Fall 2024 l Carla Saldana Ochoa

In Collaboration with Ruth Iglehart & Reagan

Johnson

Jacksonville, Florida

The site is located in Jacksonville, Florida along the Ribault River. Working with current technology (Point clouds, Artificial Intelligence, Internet of Things) as a tool to help design and articulate proposals, this studio focused on developing and revitalizing vacant properties along the Ribault River. The space was turned into a safe, accessible, and sustainable public space with targeted interventions to activate the area. Furthermore, focusing on the interface between water and land through a restoration process, the project works to plan and predict the design of a structure whose program changes over time. A key instrument to this study was flood prevention and prediction to prepare the community for what is to come and what it could suffer.

The By Modal Transporation Hub is a public park with flood-resilient infrastructures in place to activate the community through recreational means. With a focus on two forms of non-motorized transporation in the kayak and bike, the Hub supports the notion of community connection. The collection of selected programs tries to reconnect the community to its surrounding context by also creating a structure in place for disaster relief and potential water level rise.

Partner Project:

Aerial Perspective: -Michael Nemery (Base Render) -Ruth Iglehart (Photoshop Post Editing)

Collaged Floor Plan: Michael Nemery, Reagan Johnson, and Ruth Iglehart

Aerial Perspective

MASTER PLAN

Jacksonville, Florida GIS and A.I. Map

GIS Analysis and Artificial Intelligence programs were used to study and investigate the city of Jacksonville, Florida as a whole before beginning to hone in on our specific site. These programs were used to uncover existing problems the city faces as well as to predict the challenges the city will have to overcome in the future. The highlighted problems consider the conditions of future flooding and access to recreational and educational needs.

Furthermore, Artificial Intelligence programs were used to survey the local media for insight into the surroudning cultural identity of the city. Using the data collected, a series of collages were framed to entertain the notions of community problems and potential solutions beginning to be discovered and spread throughout the community.

Partner Project:

Jacksonville Map: -Michael Nemery, Reagan Johnson, Ruth Iglehart

Transect Analysis: Michael Nemery, Reagan Johnson, Ruth Iglehart

A.I. Collages: Michael Nemery, Reagan Johnson, Ruth Iglehart

TRANSECT AND SOCIAL MEDIA ANALYSIS

Using a series of GIS Mapping Analysis and Transect Section Analysis, we were able to compile a collection of data points that allows for the investigation of certain moments along the various routes that can be taken from our site. Each column of data exists within or along one of the chosen paths providing clues to community and cultural needs that are lacking in these areas. From the data collected, there was a noticably high level of local residents asking for increased access to the river, concerns of flooding, and need for better transporation systems to get to a variety of needs locally and contextually.

Flooding
Dams and Barriers Wetlands

Partner Project:

Ground Floor Plan: -Michael Nemery, Ruth Iglehart

Interior Perspectives: Michael Nemery (Base Model)

Reagan Johnson (Photoshop Post Editing)

The perspective is taken of the bike shop and kayak launch node on the north-east side of the site. It is a moment of transportation participation through two proposed modes of recreation that will be impactful for present and future site conditions.

The entrance into the bike shop presents guest with the opportunity to take a moment of rest within the active environment. Whether it needs a tune-up before riding across the river or renting a bike for a quick trip, the access to the bike shop is positioned at a cornerstone connection along the site.

The view from the community gathering space looks onto the rest of the program and the extension of the cove. Providing a space that can house multiple families, the community gathering space is a open structure that is at the service of the community, its needs, and with a view.

The series of sketches were designed to provide a formwork to the collection of riprap that creates the access to the lake. The varying methods were taken from a similar shape to discover different approaches to responding to various moments in the ever-changing landscape.

The occupyable rip-rap provides visitors with a direct and safe access to the Ribault River. The stones were designed with shoreline and water level change in mind as the stones are able to hold water and let it rescind while still maintaining its accessible nature. These stones sit within the base on this particular site but can easily be replicated to form any shoreline along the hundreds of rivers in Jacksonville.

Angled Twist

Partner Project:

Cross Section -Michael Nemery, Reagan Johnson, Ruth Iglehart

Section Moments: Michael Nemery, Ruth Iglehart

Interaction: The combination of ramps and half-height floors present moments for visitors to reconvene while either moving through the bridge, the structure, the cove, somewhere within all three.

Recreation: The Complex provides various recreational ammenities which include: kayak and bike rental, a basketball court, a

ammenities to facilitate community participation a full length soccer field, and pickleball courts.

Discovery: With direct access to the water through the occupyable riprap and miles of intersecting paths, visitors have ample opportunities to learn and interact with their community.

Contact: michaelnemery12@gmail.com

Phone: (917)-767-4188

Turn static files into dynamic content formats.

Create a flipbook
Issuu converts static files into: digital portfolios, online yearbooks, online catalogs, digital photo albums and more. Sign up and create your flipbook.
Michael Nemery Architecture Portfolio by michaelnemery12 - Issuu