






03
REACHING
ARCH 301
HANSEN PRIZE FINALIST
04
KIOSK
ARCH 401
![]()







03
ARCH 301
HANSEN PRIZE FINALIST
04
ARCH 401
Partner: Colton Foglesong

Set in a near future of 2050, The Silos is a civic center serving downtown Des Moines and the greater state of Iowa. Located on the hisotric Court Avenue, The Silos interface with the Des Moines Farmer’s Market by mirroring the brick facades of the Court Avenue buildings and expanding the market both into the alley on the site and into the building itself.
The building provides a space for a year-long market with vendor spaces, alongisde a museum recalling the history of voting and a large event space which can be used to host caucusing, elections, and public speakers. Top: View from Court Ave













The Silos create dramatic lighting to emphasize the building’s extreme verticality, aiming to draw the attention of the individual upward.
The building pushes familarity through a common material to the midwest, red brick. However, this familiarity is challenged through the monolithic forms yet is broken up via the vertical columns and perforated brick sysetm.
Also seen in section are the mezzanines which carry the individual from one volume to the other, transporting the user through the glass brick lobbies. These lobbies are made of the same module size as the red brick volumes to ensure visual and organizational continuity.
Each volume is crowned by an oculus which serves the purpose to enhance the dramatic lighting in the space. The oculi are oriented in particular directions to capture specific lighting moments. For example, the oculus atop the market volume is oriented southeast in order to capture more morning light, brightening the space as the farmer’s market takes place.


To the left is a view into our market space, where individuals can buy goods and foods, and then sit and eat in the space, experiecing the dramatic lighting from the skylight above. Also sitting in the space is the butter cow from the Iowa State Fair, recalling Iowan iconography in a space designed to provoke Iowan imagery.
To the right is a view of our mezzanines which connect the market and event volumes through our glass brick lobbies, diffusing the light which comes in and affording a time to stop and reflect.

The mapping is an illustration of the Des Moines Farmer’s Market and its power to bring the people of Iowa together. Each red dot represents a vendor at the farmer’s market, while the heart represents the idea that Iowa is at the center of the Heartland, with Des Moines being the central piece of Iowa itself, stitching communities together.
The meeting room view shows our perforated brick system in full effect, casting dotted light into an intimite space.


The exploded isometric view pulls apart our building’s systems, illustrating the structural systems and how it interfaces with the brick shell infill.
Our structure requires both the exposed vertical columns as well as the unexposed horizontal banding which sits within the wall cavity and binds the form together.
The Silos also features a reconstructed prarie, meant to be a serene moment at the end of the procession, seeking to ease potential anxieties associated with voting.
Also on the site is a water collection system, which collects water runoof to use in building graywater systems and to water the prarie in times of drought.
Below is an illsutration of our building’s assemblage process. By 2050, when our project is set, it is not difficult to imagine that robots are utilized to contruct buildings more commonly. We then expect to utilize brick-building robots to construct our building’s facade and lay brick specifically as designed.


Below: Perspective Detail Section






We found the form of our building by starting with the classic silo shape. However, to accomodate programming and push the familiarity of our building, we expanded and tapered the forms. The volumes spark images of the classic Iowa brick silo, while still becoming unqiue, monolithic, and powerful forms which house democracy and accomodate the process of voting on the future of policies affecting Des Moines, the state of Iowa, and the nation.












Partner: Julia Skoczen
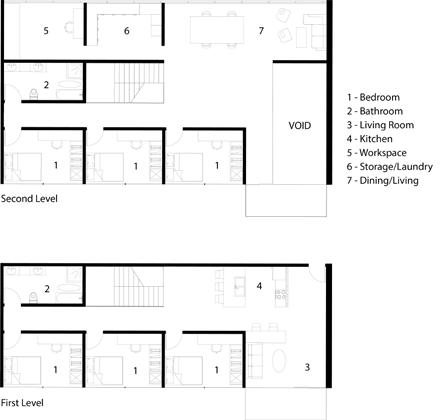
Break 10 transforms an urban site through thoughtful design interventions, prioritizing community engagement and sustainability. The building, set in downtown Des Moines, Iowa, fosters interaction with Sherman Hill residents while seamlessly blending public and private spaces.
Addressing environmental concerns, the design incorporates solar orientation, shading strategies, and water management solutions like rain gardens and bioswales. Access and circulation are carefully planned to integrate with the neighborhood, directing foot traffic and enhancing connectivity to key amenities like the nearby Pappajohn Sculpture Park.

Programmatically, the project offers diverse spaces including a greenhouse, makerspace, and food pantry alongside coliving residential units. Transparent materials and strategic positioning optimize natural light and views, fostering a sense of spaciousness within a compact footprint. The facade design, characterized by metal meshes and warm hues, enhances visual interest and modulation of light.
Overall, Break 10 aims to revitalize the site, breaking through existing conditions and creating an inviting and vibrant environment that enriches the lives of residents and the broader community.

Break 10 aims to bridge cultures and foster connections through coliving units. Each unit houses six individuals, each with their own bedroom, all which face south receiving an abundance of natural light, and views toward the Des Moines River Valley. The units are two levels to make the best use of circulation space.
The unit also has its own private greenhouse so that individuals can grow their own plants and produce, alongside the public greenhouse on the first floor.













Partners: Jordan King and Colton Fogelsong
You are there, I am here. You feel. You see. You reach.

Reaching is about a perceived connection over a great distance. When exploring the site of the Des Moines Art Center and Greenwood Park, we experienced a profound sense of forced perspective that made us stop. This was created by the framing through the native White Oak trees, forming a natural axis line on our site.
Our event space celebrates this axis and the feeling of reaching by stretching itself up the hill. This, in turn, creates a moment of observation up the natural axis.
Our own constructed axis is a glass-enclosed hall and stairway allowing visitors to navigate up the hill and reach other programmatic elements of the building.








DIAGRAMS
We created forced perspective in our building through compression and release - we did this, yet again, to create a feeling of reaching. That when you are compressed, you are reaching toward what is open. And, when you are released, you are reaching something beyond the building. The best example of this is entry to the building, where you are compressed into a small door, released into a large entryway. You are then compressed again through another doorway toward the staircase ahead, or the event space to your side, both of which open and release you to view the natural axis or constructed axis.
Designing around trees was a large consideration of this project. As this was a landscape studio, we ensured our project would be respectful to the site, as architecture always should be. When on the site, we mapped out the coordinates of each tree around where we would build to know how we could best design not only around them, but also for them. In doing so, we were able to create views toward important trees, as well as let the tree mapping influence where our building lay, and how the form was created.
Our building can be accessed two ways: from the rose garden on the upper part of the hill, or from a sidewalk on the lower part of the hill. These two enternaces exmplify what the project is all about--reaching from top to bottom.
This project was chosen as a Hansen Award Finalist. The Hansen Award is a competition between third-year architecture students, where one group from each student is chosen to compete as finalists.
The exterior of the building is made from limestone brick, echoing the lannon stone used by Saarinen on his wing of the Des Moines Art Center. We carried this material into the interior walls as well, with a smooth limestone. We decided to use wood flooring, to contrase the lighter limestone with a darker, yet natural, material.
















The experience within the building is one of reaching, just as with the site itself. There is tension created between the building volumes as one gazes up the monumental stair, as the visitor is given the ability to see from top to bottom (or vice versa); this leads to a sense of being drawn to the opposite end of the axis. To continue these feelings of pulling and tension, we constructed a striking view along the natural axis in the main event space.




What we seeked to do in this project was to see how architecture can learn from nature. How it can mimic it, replicate it, observe it, and ultimately, reach toward it. Our building, through its lookouts, hallway, and monumental staircase which reach up the hill, seeks to emphasize and reconstruct the natural beauty of Greenwood Park and encapsulate what it means to design with site and experience the overwhelming feeling of reaching.

The Kiosk project aimed to combat a growing trend of voter apathy. Set in 2050, the kiosks will be delpoyed in downtown areas throughout the state of Iowa and seek to encourage individuals to turn out to vote so that their voices may be heard. The kiosk takes from classic American iconography, and plays off of it. In place of a flagpole, a glass spire which illuminates; in place of the American flag, striped copper and glass tubes which blend transparency with privacy.

Manifesto depicting the divide of young and non-party-affiliated voters with the voting process due to disenfranchisement.


Maps highlighting voter turnout by precinct in Des Moines with historically redlines areas overlayed alongside potential kisok deployment downtown.


Maps highlighting density and location of younger age populations (20-29) in Des Moines alongside potential kisok deployment downtown.


SPACIAL ORGANIZATION
A semi-circular plan creates a sense of closeness and community while participating in democracy while still allowing privacy and affording views out to landscapes while casting your ballot.

CIRCULATION



The kisoks are an interconnected network-and they aren’t just used for voting. They can also access library sysetms, job sites, and email, serving as a mini deployable civic center for easier access to community-based resources.

Fourth Year Architecture Student at Iowa State Intern at HMA Architects, St Cloud MN

Detail-oriented and versatile fourth-year architecture student with a minor in sustainability and one summer of hands-on internship experience in the architecture industry. Offers strong interpersonal and creative problem-solving abilities alongside a growth-oriented mindset.
Revit
(320) 428-6543
michael.h.folsom@gmail.com
2450 121st Ave Clear Lake MN
AutoCAD
Microsoft Office
Adobe Suite
Sketchup
Rhinocerous3D
Architectural Intern
HMA Architects
CONTACT
Problem Solving
Adaptability
Leadership
Team Building
May - August 2024
Made changes to redlined drawings, ensuring accuracy and compliance with project specifications.
Modeled existing buildings in Revit for renovation projects, contributing to the planning and execution phases. Conducted field verifications to confirm on-site conditions and integrate findings into project designs.
Created detail drawings, evacuation plans, and drafted elevations and sections to support project documentation.
Reporter
Building Name, Street 00, City, Country Phone 000-000-000
Iowa State Daily
info@example.com ww.example.com
Communication
Event Planning
Bachelor of Architecture
Iowa State University
Fourth Year
Member of Honors College
Member of Honors College
IRHA Outstanding Leader Award (2023)
NRHH Service Member of the Year (2023) Hansen Award Finalist (2024)
Dean’s List (2021-2024)
August 2024 - Present
Wrote articles for the academics desk relating to architecture, sustainability, accessibility, and renovations/remodels. Wrote as a part of the College of Design beat, reporting on college events.
Resident Advisor
ISU Department of Residence
August 2022 - Present
Planned events with 100+ participants building community within residence halls at Iowa State
Planned the first annual Portfolio Night for residence hall students; engaged students with the concept of portfolio-making and included a lecture from Professor Bosuk Hur Fostered the development of relationships among 50+ residents
Ministry Intern
Alpha Omega Campus Ministry
August 2022 - Present
Led lessons and studies for student groups multiple times per week. Organized social and volunteer events for 15+ students. Created and developed faith-based lessons and curriculum.
Iowa State Chapter Member
August 2024 - Present
Contributed to the overall success of the chapter as an active member through event participation and engagement.