Michael Evans 2024 Portfolio

Page 1

MICHIEL EVINS ARCHITECTURE PORTFOLIO

e.mike-evs85@hotmail.co.uk t. +32 456 31 71 93

Private Residential Replacement Dwelling Langland, Swansea -£1.5 million - Stage: Feasibility to Planning Application

Theprojectinvolvedthedemolitionofanexistingresidencedeemedunsuitableforthefamily’slivingarrangement. Thereplacementdwellingsitsatopasteepnorth–southgradient.Thehierarchyoftheelevationssubtlyclosethenorth publiclaneface,whilstopeningupthesouthtobreath-takingviewsacrossthegolfcourse/towardstheBristolChannel

ground floor layout
north elevation north –south section through site
refined concept models massing and development sketches
north / public facing perspective

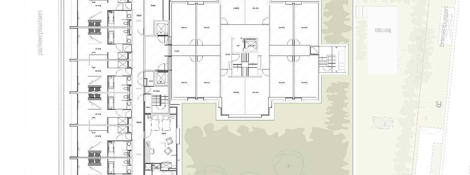
Private Apartments and Museum extension

Kortrijk, Belgium -€n/a - Stage: Building Permit

Thedemolitionofexistingpoorqualityindustrialunits allowedforthereplacementof48mixedsized apartments,withundergroundparkingspaces,upona footprintpredeterminedbythecity’smasterplan. Additionally,maximisingriverviewstothesouth,anda largegreensquaretothewest,helpeddeterminethe layout.

Theproposal’sexternallanguagewas,asrequestedby thelocalcityplanningdepartment,torhymewiththe existingtexturemuseum’sindustrialbaseandlighter metalroofstructure,whilstexhibitingitsownidentity.

west elevation south elevation east elevation
gasstraat/ east perspective (modelled by myself, outsourced render)
first floor plan
gasstraat/ east perspective (modelled by myself, outsourced render)

Private Residential Replacement Dwelling Pontlliw, Swansea -£450,000 - Stage: Feasibility to Planning Application

Anexistingcowbarnintheopencountrysidewasconvertedintoaprivateresidentialdwellingfora familyof4.Themajorityoftheproposalsitswithintheexistingfootprint,minimisingtheimpactto thesurroundinggreenery,whilstmaximisinginternalspace.Theroofscapemimicstheexistingpitch, whilstliftingupwardstoperceivablyfloatandallowsufficientcirculationspacetothefirstfloor.

ground floor plan first floor plan
north –south section east –west section south elevation east –west section
concept south elevation
courtyard perspective
southern perspective

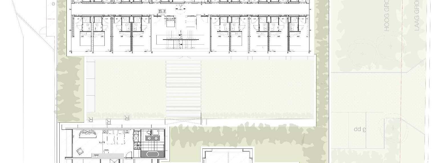
450 Bed New Student Housing

Swansea -£15-16 million - Stage: Planning Application

Proposalswereproducedforamixof450+bedstudio/shared apartmentsonacitycentresiteinSwansea.Spaceoptimisation droveanefficientlayout,whichonanawkwardsite-combined withlocalplanningrequirementstowardsagatewayaestheticproducedbothanaffordableanddramaticscheme.

aerial urban context perspectives
typical unit concept layout
development sketches
first
early concept models
floor layout
south entrance perspective
east –south corner perspective
east elevation east –west section

NumerouspotentialsitesownedbyaHousingAssociationwereselected forassessmentofrepair,renovation,orredevelopment.Alayoutand massingexercisewasundertakentogaugethepotentialfora rowof1 familyhouses/2familysplitlevelapartmentswithprivate amenityspaces.

ground floor site layout
site layout perspective
entrance perspective Social Housing Feasibility Study Porthcawl, Bridgend -£n/a - Stage: Feasibility

Private

Anexistingderelictbarn,sittingexposedatopthePontardawehills,wasconvertedintoamixof privateresidentialforayoungfamily,linkinganoffice/workshopfortheirburgeoningartistic business.Theextentoftheproposalssatwithintheexistingstoneperimeterwalls,anynew projectionsthroughwerekepttoaminimum,incorporatingexistingopeningsasmuchaspossible. Alightweighttimberstructurewasusedbehind,whichgentlysatalongsideandabovetheexisting.

south elevation west elevation east elevation
Residential Replacement Dwelling and Commercial Pontardawe, Neath Port Talbot -£250,000 - Stage: Construction ground floor plan first floor plan

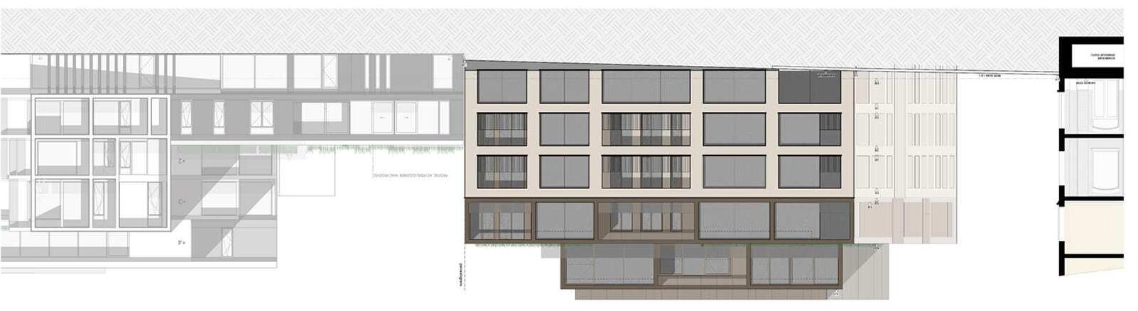
Anextensiontothehotelontheoutskirtsofanindustrialpark introducedatimberandglassstructure,withawraparound greenroofcanopy,ontotheexistingunderutilisedcarpark area.

Reductionstotheprevious8storeyproposal,andutilisationof aCLTmodularconstruction,helpedrationaliseandreduce costsoftheoveralldesign,whilstmaintainingdesignintent.

IBIS Hotel –52 bed extension Kortrijk, Belgium -€n/a - Stage: Concept
(outsourced render)

Commercial Hotel Extension

Rhossili, Gower-£3 million - Stage: Planning

Withviewsacrossoneofthetop10beachesinEurope,located alongacoastal AreaofOutstandingNaturalBeauty,extensionstotheexistinghotelmaximised viewsouttosea.DesignelementsweresteeredbytheAONB,thepublic southernfaçaderemainedmoretraditionalwithminimaladjustments,thenorth, privatecourtyardwithviewsalongthebeachbecamemoreexpressiveandopen.

first floor plan
north –south bar section north –south restaurant section north –south venue section
south elevation
north elevation

Dental Surgery Extension

Swansea -£625,000 - Stage: Pre-Construction

Anexpandingdentalsurgeryrequestedanextensiontomeetanincrease inclientnumbers.Theinabilitytoextendsouthbeyondthebuilding frontage,oralongtheterracetothesides,resultedextendingtotherear.

Annewhierarchyissetwherebystaffenterunseen[includes additional requestedparkingspaces]withclientsenteringfromthefront.Utilising spacebelowtheparkinglevelallowedadditionalarchive/sterilisation space,alongsideincreasedparkingprovisionstomeettheprojectbrief.

south –north section
ground floor plan first floor plan second floor plan third floor plan

Commercial and Residential Renovation / Extension Swansea -£5 million - Stage: Post Planning Application

Theclientbriefrequiredrationalisingthegroundfloorcommercial spaceandincorporatingapartmentsaboveinexisting/newbuild elements.Theexistingpropertywasstrippedinternally,whilstthe characterofthe3storeybrickfrontfaçadewasretained.Apartments werearrangedaroundtheexistingopeningsandpartitionwalls.

north to south west elevation
design development sketch
north elevationnorth westelevation concept sketches
second floor plan
beforeafter
third floor plan

Private Residential Dwelling Renovation and Extension Caswell, Swansea -£500,000 - Stage: Construction

Redevelopmentoftheexisting1960’sprivatedwellingprioritised openplanliving,alongsidetheintroductionofarooftopmaster bedroommaximisingviewstowardsthecoast.Amaterialpaletteof primarilyzincandcharredtimbertransformedtheexisting outdated pebbledash,allowingtheproposaltoembraceitstreelined location.

first floor plan

section through south facing living room and roof master bedroom section through family room

south elevation

Commercial Holiday Cottage Renovation and Extension Port Eynon, Gower -£170,000 - Stage: Planning Application

Theprojectbriefinvolvedrenovatinganexistingderelict barnandextendingtothenorth,providingthe existingfarmhouseowneranadditionalincomeinretirement.Twoseparatedmasses,oneexistingone new,willbothaccommodateatwopersoncoupleforaweekendretreat.Theproposalhasbeendesigned tomaintainpriorityoftheexistingstonebuilding,withanorthernextensionhiddenbehind,outofsight fromtheaccessroadtothesouth.Proposalshavebeenfuture proofedwiththeabilitytocombinethe spaces,byremovingthestorebetweenthenorthextensionandthestairtothesouthexistingbarn.

east –west section through barn east –west section through extension
west elevation
south –north section
south –north section concept sketch west elevation concept sketch
ground floor plan first
roof plan
floor plan

Arooftopextensionfeasibilityexercisewasundertakento gaugetheopinionofboth residentsandlocalauthority.Duetoparkingrequirements onthetightsite,both1and2 bedapartmentswerearrangedwithinaproposedshell,bothchannellingviewstowardsthe nearbycoastandfloodingtheinteriorswithlight.Aformwasconceivedthatfollowedthe highpitchedgablelineoftheexistingneighbouringdwellings,whichwassubsequently subvertedandreorientatedaccordinglytobothwestandeastapartmentblocks.

2
bed layout1 bed layout
4 no. Private Residential Rooftop Extension Langland, Gower -£1,200,000 - Stage: Feasibility Studies

Private Apartment and 8no. Houses

Zwevezele, Belgium -€n/a - Stage: Concept

Amixofapartmentandresidentialhousing wasintroducedtoagreenfieldsitewithan emphasistowardsalowprofileforeachhouse unit,whereasagreateremphasiswasallowed fortheapartmentsattheroadbisection.

Theretentionandreintroductionofgreenery wasparamounttothesite’spreviousand futurecharacteristic-allowingandmaximising viewstothesurroundingfields,whilsthiding undesirableelementssuchastheapartment’s carparkingspaces.

Commercial Exhibition Space Renovation

Swansea Docks -£175,000 - Stage: Completed

AnexistingshellontheperipheryofTrinitySt DavidUniversity’snewcampuswasreorganised toallowflexibleofficeandexhibitionspaces.

ground floor plan
conference layout

Social Housing Feasibility Study

Redevelopmentproposalswereinvestigatedforasite sandwichedbetweenbusypedestriantrafficandan abandonedrailwayline.Theexpectedoccupantof eachpropertywasidentifiedasprimarilyelderly, whichfocussedthelayouttowardsacentralcommunal circulationspace,whilstalsomaintainingelementsof privacythroughtheutilisationofnaturaltoplightand intimatecourtyardspaces.

site layout perspective
perspective
roadside
Pyle, Bridgend -£n/a - Stage: Feasibility

Turn static files into dynamic content formats.

Create a flipbook
Issuu converts static files into: digital portfolios, online yearbooks, online catalogs, digital photo albums and more. Sign up and create your flipbook.
Michael Evans 2024 Portfolio by michaelevansarchitect - Issuu