My Portfolio

Page 1


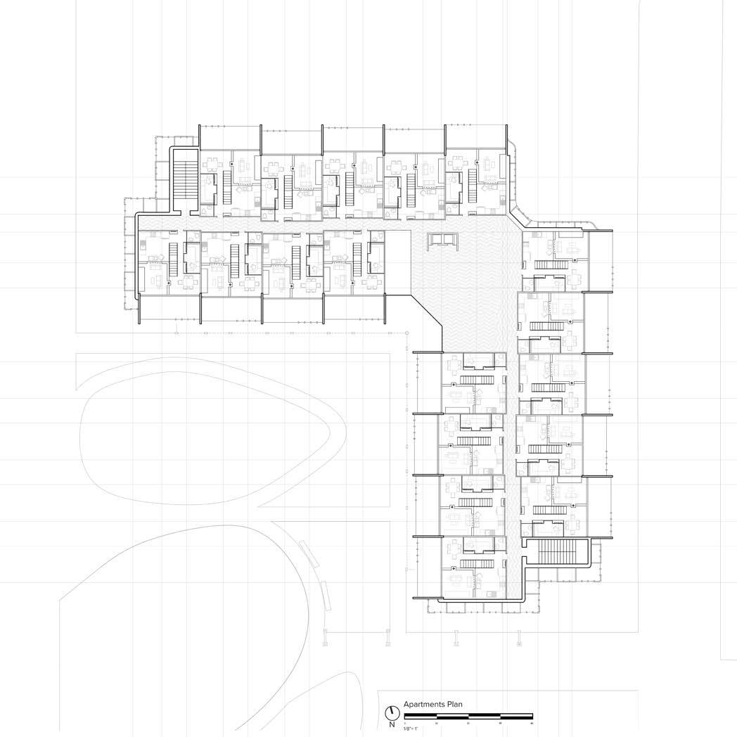
The building is separated into two parts: the Northern wing of the ground floor is a restaurant, providing a softer entrance into the building and park for both residents and visitors. The eastern wing of the ground floor is the main entrance for residences. The building holds the edge of the road and has multiple entry points to make the building more welcoming. The upper floors are the apartments with a primary duplex design with prototypes to allow for slight variations in duplex size and how many rooms they have.

The building rises six floors, each composed of duplex apartments designed to optimize space and functionality for urban living. The façade is a distinctive steel grid spread with slightly opaque glass panels, creating a dynamic play of light and shadow throughout the day. This design not only enhances the building’s aesthetic appeal but also provides varying levels of privacy and lighting for the apartments. The panels are strategically configured to shift subtly, introducing a sense of individuality to each unit and ensuring no two apartments are identical in appearance. The façade shifts two feet back and forth, generating depth and texture while defining private terraces for residents. Within this two-foot recess, the design incorporates versatile storage spaces, such as planters for greenery, bicycle racks, or additional shelving. This multifunctional approach maximizes utility while maintaining a clean, cohesive design, contributing to the building’s innovative and resident-centered identity.

The rooftop serves as a communal haven, featuring two greenhouses alongside open common spaces. These greenhouses provide residents with the opportunity to cultivate their own vegetables and plants, promoting sustainability and self-sufficiency. The rooftop’s shared spaces are private and exclusively accessible to residents, encouraging community interaction while maintaining privacy.

perspective shows the apartment at night, emphasizing the focus on the park while being a beacon of warmth in the backdrop. The vibrance of night shows the protected feeling of a safe space where people can come at all times of the day and feel at home. The building’s beauty is in its not seen as a destination for people to take pictures of, but as a home.

An Apartment for Natural Living

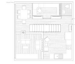
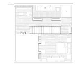
This apartment offers a seamless blend of modern comfort and natural beauty. Designed with eco-friendly materials, abundant natural light, and green spaces throughout, it creates a peaceful sanctuary where residents can feel in perfect harmony with the environment. Every detail is thoughtfully crafted to promote a balanced, sustainable lifestyle, making it an ideal retreat from the bustle of the city.

the design emulates an estuary. The furniture mirrors the found in such environments, while the apartment’s columns remangrove roots. Every part of the apartment works together.

Hallways greet you with luscious garden walls and a tangle of columns emulating roots of a mangrove tree.
Chairs are inspired by the anatomy of a Sandhill Crane

Vertical Datum

Vertical datum, otherwise known as “Tower”, is a process in which we were asked to take city structures and grids and collage them into a 24x4 drawing. We then used that collage to create a physical model keeping the same size perimeters. We were then given a program to shape our spaces, in which I focused in on joint prosthetics to help people with injuries or other disabilities.

Physical therapy, manufacture and maintain prosthetics.
Physical therapy, manufacture and maintain prosthetics.
Physical therapy, manufacture and maintain prosthetics.

The Suspended Music School

For this project, my task was to create a satellite music school in downtown Gainesville. This design was influenced by my musical notation of the song Little Black Book by Jlin played by the Kronos Quartet. The main takeaway from the song was the idea of tension and how it can be used as a system to define the spaces in the building.

This section shows the south entrance, and how nearly the entire first floor is open. This allows for the floors above to be suspended and hang. The offsetting of the floors also adds to the tension of the building as the floors are pushing past one another.

West Entrance

The building is anchored by the main performance space as the walls of the space extend the length of the building defining the major zones of the project. The ground floor’s open design is made possible by pushing all the required spaces along the sides of the building. This is opposite from the other floors where the required spaces are centered and the circulation is along the sides.

NOLITA MARKET

Partner Project with Danny Kopelman

NOLITA, NYC has been digressing from its original cultural identity, as it was founded as an outside neighborhood to Little Italy and had a strong sense of connectivity between residents. Our proposal explores the implications and experiences of a central market, acting as a datum for a surrounding art school and a beacon of local commerce. We hope that this market celebrates the art and work of this neighborhood and school, yet invites surrounding visitors to take part in the connectivity of NOLITA’s residents and cultural values. Additionally, with the value of Elizabeth Street Garden in mind, we hope that the itinerary of our leveled paths is a worthy extension, yet complementary structure to this space. Overall, this market would help to connect the diverse cultural identities of this reshaped community.

The school is strategically located adjacent to the renowned Elizabeth Street Garden, creating a connection between the educational environment and the vibrant outdoor space. This opens directly into the garden, celebrating its presence as a vital community asset and integrating it into the school’s identity. The garden not only provides a serene backdrop but also serves as an inspiring extension of the school, encouraging outdoor learning and interaction with nature. The school’s layout is designed to support a range of academic and cultural activities. The east wing houses a large, performing arts auditorium, which serves as a venue for school productions, concerts, and community events. The remainder of the building is dedicated to classrooms and study spaces, each designed to create an optimal learning environment. The overall design prioritizes functionality and connectivity, creating a balanced educational setting that integrates with the surrounding urban and natural context.

School Plans

Turn static files into dynamic content formats.

Create a flipbook
Issuu converts static files into: digital portfolios, online yearbooks, online catalogs, digital photo albums and more. Sign up and create your flipbook.