

MICHAEL DE LA OSA
UNIVERSITY OF FLORIDA MICHAELDELAOSA13@GMAIL.COM

ARCHITECTURE PORFOLIO
THIS PORTFOLIO CONTAINS MY MOST SIGNIFICANT PROJECTS PRODUCED IN THE LAST THREE YEARS BETWEEN JANUARY 2023 AND JANUARY 2025.





HIGH DENSITY LIVING
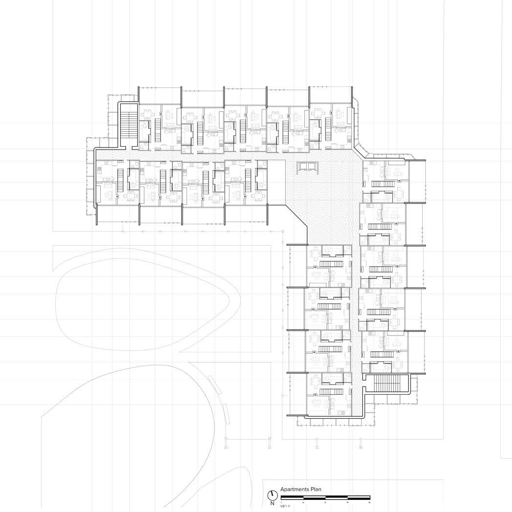
One of the most prevalent issues in the modern world is housing. A crisis not only of affordability, but also, in many places, of availability. This project sought to tackle this issue by creating a high-density living neighborhood where each person in the studio selected a plot within our site to create the high density living. The Site Is in New Orleans just outside of the French Quarter and Central Business District. The site is an extension of the Lafitte Greenway, connecting Armstrong Park and Marais Park together.


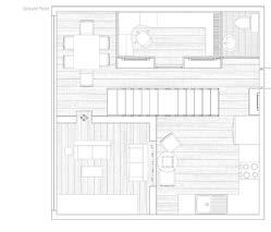
The building is separated into two parts: the Northern wing of the ground floor is a restaurant, providing a softer entrance into the building and park for both residents and visitors. The eastern wing of the ground floor is the main entrance for residences. The building holds the edge of the road and has multiple entry points to make the building more welcoming. The upper floors are the apartments with a primary duplex design with prototypes to allow for slight variations in duplex size and how many rooms they have.





The building rises six floors, each composed of duplex apartments designed to optimize space and functionality for urban living. The façade is a distinctive steel grid spread with slightly opaque glass panels, creating a dynamic play of light and shadow throughout the day. This design not only enhances the building’s aesthetic appeal but also provides varying levels of privacy and lighting for the apartments. The panels are strategically configured to shift subtly, introducing a sense of individuality to each unit and ensuring no two apartments are identical in appearance. The façade shifts two feet back and forth, generating depth and texture while defining private terraces for residents. Within this two-foot recess, the design incorporates versatile storage spaces, such as planters for greenery, bicycle racks, or additional shelving. This multifunctional approach maximizes utility while maintaining a clean, cohesive design, contributing to the building’s innovative and resident-centered identity.



The rooftop serves as a communal haven, featuring two greenhouses alongside open common spaces. These greenhouses provide residents with the opportunity to cultivate their own vegetables and plants, promoting sustainability and self-sufficiency. The rooftop’s shared spaces are private and exclusively accessible to residents, encouraging community interaction while maintaining privacy.
The balcony serves as a key feature of each apartment, offering residents an unobstructed view of the interior park nestled within the neighborhood. This design creates a seamless visual connection to the greenery, fostering a sense of openness and tranquility in the urban setting. A large semi-opaque wall partially encloses the balcony, carefully balancing privacy, and exposure. This wall shields the space from harsh weather conditions, such as strong winds or direct sunlight, ensuring the balcony remains a comfortable and functional area throughout all seasons. The integration of natural elements into the design is a central theme of the project. In dense urban environments, where access to nature is often limited, this connection to greenery becomes essential for enhancing mental well-being, promoting sustainability, and cultivating a sense of harmony within the living space.

This perspective the park at night simplicity. It is not

perspective shows the apartment at night, emphasizing the focus on the park while being a beacon of warmth in the backdrop. The vibrance of night shows the protected feeling of a safe space where people can come at all times of the day and feel at home. The building’s beauty is in its not seen as a destination for people to take pictures of, but as a home.
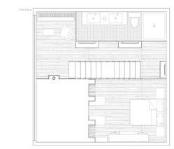
An Apartment for Natural Living
This apartment offers a seamless blend of modern comfort and natural beauty. Designed with eco-friendly materials, abundant natural light, and green spaces throughout, it creates a peaceful sanctuary where residents can feel in perfect harmony with the environment. Every detail is thoughtfully crafted to promote a balanced, sustainable lifestyle, making it an ideal retreat from the bustle of the city.




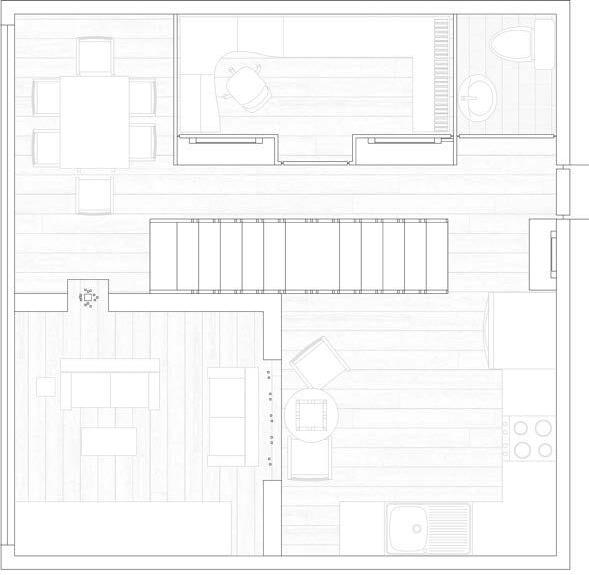
Ground Floor


Coves
Small Sheltered inlet where the sea meets
Everything in the organisms found semble mangrove


the design emulates an estuary. The furniture mirrors the found in such environments, while the apartment’s columns remangrove roots. Every part of the apartment works together.




Hallways greet you with luscious garden walls and a tangle of columns emulating roots of a mangrove tree.
Chairs are inspired by the anatomy of a Sandhill Crane

Vertical Datum
Vertical datum, otherwise known as “Tower”, is a process in which we were asked to take city structures and grids and collage them into a 24x4 drawing. We then used that collage to create a physical model keeping the same size perimeters. We were then given a program to shape our spaces, in which I focused in on joint prosthetics to help people with injuries or other disabilities.



Physical therapy, manufacture and maintain prosthetics.
Physical therapy, manufacture and maintain prosthetics.
Physical therapy, manufacture and maintain prosthetics.
These vignette drawings were made both digitally and hand drawn, and are informitive of what activities will be taking place in each key area. Since it is meant to be a rehabilitation facility, there are areas to do physical therapy, manufacture and maintain prosthetics.


The shift in the center of the design is meant to act as a transition space between public and private spaces with rehabilitation centers towards the bottom and individual consultaion and manufacturing in the upper half.










The Suspended Music School
For this project, my task was to create a satellite music school in downtown Gainesville. This design was influenced by my musical notation of the song Little Black Book by Jlin played by the Kronos Quartet. The main takeaway from the song was the the idea of tension and how it can be used as a system to define the spaces in the building.







Musical notation of the song Little Black Book by Jlin played by the Kronos Quartet



The building’s south facing entrance is predominantly for students as it is the most protected from the main road. The entrance is pushed back from the envelope of the building and acts as a transition space and courtyard. The west entrance is closer to University Avenue and acts as the general public entrance, but is split in two as it also allows for students to discreetly enter the practice areas above.

South Entrance



This section shows the south entrance, and how nearly the entire first floor is open. This allows for the floors above to be suspended and hang. The offsetting of the floors also adds to the tension of the building as the floors are pushing past one another.

West Entrance



The roof of the building is modular in its design as it uses columns that extend down from the roof to create zones of spaces. These spaces are where the programs are placed creating a core system that has the circulation move around them.
The circulation of the building as mentioned previously, moves along the sides of the building allowing for access to the spaces in the center. To allow for the offset floors, there is a ramp that rotates around the central core and allows for access to all spaces in the building.


Walls Roof





Diagram of Core Circulation
Circulation
The building is anchored by the main preformance space as the walls of the space extend the length of the building defining the major zones of the project. The ground floor’s open design is made possible by pushing all the required spaces along the sides of the building. This is opposite from the other floors where the required spaces are centered and the circulation is along the sides.





NOLITA MARKET
Partner Project with Danny Kopelman
NOLITA, NYC has been digressing from its original cultural idenitity, as it was founded as an outside neighborhood to Little Italy and had a strong sense of connectivity between residents. Our proposal explores the implications and experiences of a central market, acting as a datum for a surrounding art school and a beacon of local commerce. We hope that this market celebrates the art and work of this neighborhood and school, yet invites surrounding visitors to take part in the connectivity of NOLITA’s residents and cultural values. Additionally, with the value of Elizabeth Street Garden in mind, we hope that the itinerary of our leveled paths is a worthy extension, yet complementary structure to this space. Overall, this market would help to connect the diverse cultural identities of this reshaped community.




Residential Tower One serves as the primary living space for students. In addition to the dormitory spaces, the tower houses food courts that provide convenient dining options and dedicated study rooms to foster an environment conducive to learning and collaboration. These amenities create a vibrant and multifunctional hub tailored to support both the academic and social aspects of student life. The building’s façade is wrapped in a semi-opaque skin, a design feature that serves both aesthetic and functional purposes. This specialized façade diffuses incoming sunlight, reducing glare and brightness within the dorm rooms to maintain a comfortable interior environment. At the same time, the semi-transparency of the skin enhances privacy for the residents, creating a sense of seclusion without completely isolating them from the outside world. The façade strikes a balance between openness and protection, contributing to the overall architectural character of the tower while prioritizing the well-being and comfort of its student occupants.
Residential Tower 1 Plans





The Second Residential Building is designed to house faculty members, offering them a comfortable and functional living space integrated into the academic community. This building is directly connected to the student library, creating a central hub for learning and interaction. The library itself features a multi-purpose auditorium located in the basement, which serves as a venue for lectures, presentations, and community events. This auditorium also links to the First Residential Building, providing students with a private and convenient entrance to the library. The Second Residential Building also enjoys direct access to the vibrant open market area, ensuring convenience for both faculty and students to engage with the surrounding urban context. Despite its connectivity to active public spaces, the building maintains a distinct sense of privacy. A dedicated entrance at the street level exclusively serves the Residential Tower, ensuring a secure and secluded access point for faculty residents. This dual-purpose design balances accessibility and privacy, reinforcing the building’s role as both a functional living space and a key element of the community’s infrastructure.
Residential Tower 2 and Library Plans





The school is strategically located adjacent to the renowned Elizabeth Street Garden, creating a connection between the educational environment and the vibrant outdoor space. This opens directly into the garden, celebrating its presence as a vital community asset and integrating it into the school’s identity. The garden not only provides a serene backdrop but also serves as an inspiring extension of the school, encouraging outdoor learning and interaction with nature. The school’s layout is designed to support a range of academic and cultural activities. The east wing houses a large, performing arts auditorium, which serves as a venue for school productions, concerts, and community events. The remainder of the building is dedicated to classrooms and study spaces, each designed to create an optimal learning environment. The overall design prioritizes functionality and connectivity, creating a balanced educational setting that integrates with the surrounding urban and natural context.
School Plans




