Skip to main content

Jiawen Li_Architecture Portfolio

Page 1


[Evolving Narratives]

Jiawen Li Portfolio

Selected works 2020-2026

Columbia University GSAPP M.S. AAD 2025-2026 2019-2025

Harbin Institute of Technology B.Arch

E-mail: jl7217@columbia.edu

Email: jl7217@columbia.edu / Telephone: +1 3472247233 / New York, NY

EDUCATION

Columbia University, New York, United States

M.S. Advanced Architectural Design

Harbin Institute of Technology, Harbin, Heilongjiang, China

Bachelor of Architecture

Mathematics & Physics

University of California, Los Angeles, California, United States

Study Abroad Program

INTERNSHIP EXPERIENCE

Graduation May 2026

September 2020 – June 2025

September 2019 – June 2020

September 2023 – December 2023

Architectural Design Institute of South China University of Technology (SCUTAD) - Guangzhou, China

Architectural Assistant June 2024 – January 2025

Project I: Haikou Bay Plot 1802 Retail Street

• Assisted with facade design of the main retail street buildings using Rhino and Grasshopper

• Explored canopy articulation and morphology through parametric modeling and environmental analysis using Grasshopper and Climate Studio

• Supported iterative design development through model optimization and visualization using Rhino and Enscape

Project II: Tsinghua Shenzhen International Graduate School

• Assisted the project architect in producing architectural analysis drawings and technical floor plans

• Contributed to iterative design development through 3D modeling and visualization using Rhino and Enscape

Guangzhou Chengzong Design Co., Ltd. - Guangzhou, China

Architectural Intern

Project I: Renovation Design of Guangzhou No.17 Middle School

June 2022 – August 2022

• Developed preliminary 3D models and technical floor plans for the renovation proposal using Revit

• Assisted in translating design concepts into schematic-level drawings

Project II: Yupin Optics Manufacturing Plant

• Conducted multiple site surveys to assess ground conditions, spatial efficiency, and user needs

• Developed preliminary 3D models and technical floor plans using Revit

• Communicated with the client throughout the design process and revised the design in accordance with client requirements and relevant codes

Fineland Real Estate Development Group Limited - Guangzhou, China

Real Estate Development Intern July 2021 – August 2021

Project: Fineland Meilin Riverside One Residential Development

• Assisted the development team in collecting and organizing planning regulations and site information

• Supported early-stage feasibility analysis and coordination between design consultants and internal departments

Guangdong Architectural Design and Research Institute Group (GDAD) - Guangzhou, China

Architectural Intern

Project: Renovation Design of Dongfeng East Road Primary School

July 2020 – August 2020

• Designed a renovation proposal that revitalized the campus while reinterpreting Lingnan architectural characteristics

• Assisted in concept development and schematic design presentation

SKILLS

• Bim & 3D Modeling: Rhino + Grasshopper, Revit, SketchUp, Unity3D, Blender

• Rendering Software: V-ray, Enscape, D5, Lumion

• Other Software: Photoshop, Illustrator, InDesign, Premiere, AutoCAD, Climate Studio, Arduino

HONORS AND AFFILIATIONS

Second Prize, China Collegiate Design Competition & Exhibition

June 2024

Third Prize, The 17th Creative China National Design Art Awards August 2023

Second Prize, Asian Youth Rookie Award (Spring Competition) June 2023

First Prize, The 3rd WCM in 2022 Corporate-tailored Award April 2023

First Prize (Patent Granted), Student Innovation and Entrepreneurship Competition October 2021

- 01 -

Irish American Cultural Museum

Renovation of the US Embassy in Dublin

Sep.-Dec. 2025

Group Work (2 members)

Location: Dublin, Ireland

Type: Renovation

Instructor: Prof. Jorge Otero-Pailos and Prof. Mark Rakatansky

The while design es, programs—accommodations, identity,

The adaptive reuse of the former U.S. Consulate transforms the building into the Irish American Cultural Museum while integrating hotel, dining, and leisure programs that activate the site with contemporary commercial use. The design layers moments of Irish migration—departure, struggle, and renewal—through overlapping spatial sequences, where architecture choreographs relationships between artifacts across eras. The newly introduced commercial programs—accommodations, gathering spaces, and places of respite—extend the museum’s themes of memory, identity, and communal exchange into everyday occupation of the building.

Building History

- US Embassy of the Cold War

In the 1950s, openness was both a top design priority and a US diplomatic objective. These Embassy designs were to be “friendly” and “inviting” American buildings that also reflected the “foreignness” of faraway places. Designed in 1957 and opened to the public on St. Patrick’s Day 1964, John Johansen’s US Embassy in Dublin was the last of the midcentury modern embassies to be constructed under the State Department’s modernist initiative.

- Precast Concrete Elements

- Timeline of the Project

EXHIBITION CIRCULATION

The exhibition narrates the journey of Irish migration and creates a spatial experience where memory and identity move across architectural layers. The journey begins at the plaza, guiding visitors downward into the ship and through three main thematic zones. The path moves from the new building into the old, ascends along a spiral ramp toward light, then descends back to the ship, completing a full loop.

03 Achievements

Drawing from the former embassy’s architecture, the spiral ramp showcases achievements in politics, arts, and science. Its continuous ascent conveys optimism and continuity.

02 New Challenges

Discriminatory ads and political cartoons expose early social exclusion. The gradually rising space symbolizes resilience and the effort to ascend despite adversity.

01 Great Irish Famine

Visitors first enter a full-scale reconstruction of an immigrant ship. The ship’s bow cuts into the space, directing visitors toward artifacts from 19thcentury migration. Tickets, belongings, and caricatures mark the moment of departure and rupture.

EXHIBITION SPACE

Throughout the sequence, the architecture stages intentional lines of sight between displays from different periods, allowing moments of struggle to face moments of achievement and early departures to echo later returns. These cross-temporal relationships generate a layered emotional experience, enabling visitors to feel the tension, hope, and continuity embedded in the Irish migrant narrative as they move through the space.

HOTEL ROOM

The hotel rooms in the new addition reinterpret the layout of traditional Irish homes while referencing the spatial structure of immigrant ship cabins. The plan follows a three-part organization, with a central hospitality zone—kitchen and living—flanked by private spaces for sleeping and bathing. A symbolic hearth anchors the middle, recalling the heart of the Irish dwelling and carrying the warmth of cultural memory into a contemporary setting.

Measured architectural drawing of house, 'Poll 2' house, Menlough, Co. Galway

Hotel room plan 340 sq ft (32.5 sqm)

GAP BETWEEN THE NEW AND THE OLD

A deliberate gap separates the new addition from the historic consulate, preserving and framing the original façade. The new roof lifts gradually into a walkable garden, allowing visitors to rise toward and closely experience the old façade. This interval protects the heritage building while creating a gentle landscape where past and present meet.

WALL SECTION

1 Extensive planting: 100mm vegetation layer and filter map

2 35mm GFRC panel

3 1200mm steel edge beam

4 12 mm gypsum board

5 Low-E double glazing

6 Perimeter heating unit

7 30mm cement screed

8 20mm stone panel

- 02 -

Point and Line to Plane

Lifting Heritage to the Public Realm

Feb.-Jun. 2023

Individual Work

Location: Guangzhou, China

Type: Renovation of Ancient Buildings

Instructor: Tang Jiajun

This project seeks to reconnect a historic neighborhood in Guangzhou, where dense construction has led to a lack of public space. By extracting the textures and forms of traditional buildings, I elevate the design, creating a dynamic interaction between heritage and contemporary space.

The design uses an abstracted structure of lines, points, and planes to lift a large square platform above the old buildings, providing much-needed community space. This elevated ground becomes a new communal hub, where past and present meet in a harmonious dialogue, restoring the balance between history and modernity while enhancing the urban environment for its inhabitants.

Site and Old City Boundary

History of area development

City landscape development Tourism resources

Stairs and Courtyards

Traditional Xiguan houses usually have two independent entrances: the residents on the ground floor enter from the street, and the residents on the second floor and above enter the building through a shared staircase. Usually, the house uses courtyards for lighting and ventilation.

Site Fabric

The Xiguan mansions in Yongqingfang are a quintessential representation of Guangzhou's traditional residential culture, embodying the profound historical and cultural heritage of the Lingnan region. With urbanization advancing, some Xiguan mansions have been modified or even demolished.

Massing Generation

Starting from the existing buildings on the site, structural columns are extended upward from the original walls. The stairwell is then extended vertically to the plane above, forming both structural and circulation spaces. The original buildings are further extended upward to become rooms on the elevated platform.

Activity Room
Courtyard
Platform & Room
Old Houses

Sectional Sequence

Observation Deck
Activity Room Courtyard

A space that both respects history and embraces a modern sensibility through a deep interaction with the historical buildings on the original site. By skillfully preserving and integrating elements of the historic architecture, I have not only preserved the cultural heritage of the area but also breathed new life into it.

Transparent Enclosed Space Corridor

The new space and the old architecture are seamlessly connected visually and functionally through the choice of materials, the continuation of spatial layout, and the interplay of details. Here, history and modernity collide and merge, imbuing every corner with traces of time and contemporary vitality, creating a unique atmosphere that is both nostalgic and innovative.

Wall Section
Structural Truss
Vapor Barrier
Double Glazing Curtain Wall
Ceiling Panel
I Beam
Thermal Insulation
Steel Beam
Roof Finish

Renovation Results

Preserve the texture and focus on repair to maintain the authentic charm of Yongqing Fang. By respecting the historical and cultural significance of the area, the design prioritizes the conservation of its original architectural features and urban texture.

- 03 -

Garden of Language

A Chinese Traditional Garden in Defense of Dying Dialects

Feb.-Jun. 2024

Individual Work

Location: Suzhou, China

Type: High-rise Building

Instructor: Zhao Hui

In response to the fading heritage of Suzhou’s local dialect, Wu, this project aims to preserve and celebrate its cultural identity through architecture. The design draws inspiration from the intricate forms of traditional Suzhou gardens, translating them into a vertical spatial arrangement for a high-rise building.

The building serves as a performance space for Wu opera, a key cultural expression of the region. By carefully stacking the garden’s elements, we create a functional yet poetic space that reflects the delicate interplay between nature, language, and performance, offering a modern setting for the ancient art of Wu opera to flourish.

Distribution

of Classical Gardens of Suzhou

Suzhou classical gardens are a combination of house and garden. The Chinese philosophy, history, and cultural customs it contains are a symbol and concentration of the cultural, historical, and local customs of the Jiangnan region.

Culture of Wu Dialect

In the Wu dialect area, we often hear Shanghai opera and comedy, Suzhou Pingtan and Kunqu opera, Hangzhou opera, Shaoxing opera and Yue opera, etc. These are all operas based on the Wu dialect. Without the Wu dialect, these operas will gradually be assimilated or even disappear.

Kunqu Opera Shanghai Opera
Hangzhou Opera Yue Opera Suzhou Pingtan

Vocabulary

The architectural layout, structure, shape and style of Suzhou classical gardens skillfully make use of various gardening art methods such as contrast, foil, borrowed scenery, scale change, and winning with less, combining pavilions, terraces, towers, stones, flowers and trees.

Exhibition

Garden

Tea space

Performance

Ping Tan performance

Exhibition

SECTION A-A

SECOND FLOOR PLAN

FOURTH FLOOR PLAN

1. Pingtan Performance Space 2. Tea Lounge 3. Observation Deck
1. Kunqu Performance Space 2. Tea Lounge 3. Observation Deck
1. Kunqu Performance Space 2. Exhibition 3. Restaurant 4. Tea Room
1. Open-Air Cinema 2. Activity Room 3. Observation Deck 4. Tea Room
—— TEA ROOM —— —— PERFORMANCE SPACE ——

Flowing Factory

Spatial Flows Within Industrial Memory

Feb.-Jun. 2022

Individual Work

Location: Harbin, China

Type: Factory Renovation

Instructor: Meng Qi

former welding factory in Harbin, now vacated after relocating to the suburbs, transforms into a space for creative professionals. The design embraces the fluidity of movement, contrasting the rigid form of the original factory. Curved surfaces break the traditionally industrial, linear layout, creating a dynamic and flexible environment. This “flowing” space is organized to support the daily routines and needs of architects, fostering collaboration and inspiration. The design reflects a deliberate departure from the past’s structural rigidity, offering a creative haven where space is both functional and expressive, rooted in the context of industrial heritage while looking toward future possibilities.

History of Harbin Welding Institue Limited Company

Harbin Welding Research Institute was established in 1956. Due to the restructuring of state-owned enterprises, it moved from Nangang District in the center of Harbin to Songbei District in 1999.

An Architect's Daily Needs

Functions are arranged based on the activities of an architect's day, including meeting and communication spaces, workspaces, a craft area, an exhibition area, and a leisure space.

1. Create two curves as the primary paths

2. Elevate the curves upward to form two blocks

3. Add staircases to establish a pedestrian system 4. Design skylights that echo the forms of the blocks

1st Floor Plan - Display Area

1. Exhibition space

2. The scale-model workshop

3. Material library

4. Ramp to 2nd floor

5. Spiral ramp

6. Restroom

2nd Floor Plan - Working Area

7. Office space

8. Material sample display

9. Events / Discussion area

10. Bar

11. Viewing platform

Vertical Playscapes

Elevated Realms for Young Explorers

Feb.-Jun. 2023

Group Work (4 members)

Location: Hong Kong, China

Type: Urban Design

Instructor: Luo Peng

Hong Kong’s dense urban environment has led to the marginalization of children’s spaces, resulting in psychological challenges for young residents. This project addresses the need for dedicated spaces for children by adding modular play areas to the façade of a high-density residential building. These play modules offer children a safe and stimulating environment, elevating them above the ground level and providing new ways to interact with the city. A bridge connects various parts of the building, promoting physical activity and social interaction. This design aims to create an inclusive, nurturing environment where children can grow within the complexities of urban life.

This location is in Hong Kong and highlights a unique type of residential building: public rental housing. Built as a social security initiative by the Hong Kong Housing Authority for low-income residents, these homes are typically found in Kowloon, Tsuen Wan, Sha Tin, Tai Po, and the outlying islands.

Although compact and crowded to accommodate as many people as possible, public housing remains highly sought after. Many residents aspire to secure a unit in their lifetime. The illustrations depict three standard housing types commonly seen in these developments.

CROWDED DWELLINGS & LACK OF SPACE FOR CHILDREN

BRIDGE & COMPONENT

Examining the needs of children and youth across various age groups, I categorized the different spaces into social areas, educational environments, natural settings, and recreational zones.

By consolidating and reorganizing these spaces, I ensured that each age group had access to suitable activities and environments that supported their growth and interaction.

COMPONENT DESIGN

IN-BUILDING GARDEN

EXTERNAL PLATFORM

Built Work: Nowhere Table

Reconstructing the Original Scene of Coffee Social Interaction

Aug.-Sep. 2024

Group Work (16 members)

Responsibilities: Participate in the whole process of design and construction

Location: Shenzhen, China

The concept of this design originates from the history of street coffee culture. Through our research into the history of coffee drinking, we discovered that the earliest coffee-drinking activities emerged on the streets. In the early days, people would casually gather and stand while drinking coffee on the streets, which gradually gave rise to the concept of coffeehouses.

While coffeehouses provided a sheltered space protecting people from the elements, the introduction of seating inherently limited the broader social interactions that standing coffee culture once enabled. Looking back at the history of coffee, many great ideas, inventions, and theories were born from the early standing-style street coffee culture. Therefore, through this design, we aim to create a standing coffee space that fosters opportunities for social interaction and engagement.

Section 1-1

Section 2-2

Elevation

Built Work: L ike a Feather

Building Design and Construction

May.-Jun. 2021

Group Work (7 members)

Responsibilities: Participate in the whole process of design and construction

Location: Harbin, China

- 07Internship Work:

Tsinghua Shenzhen International Gaduate School

Architectural Design Research Institute of South China University of Technology

Jun. 2024 - Jan. 2025

Design Development + Construction Documents Phase

Area: 105334 m²

Location: Shenzhen, China

Responsibilities:

• Assisted the project architect in producing architectural analysis drawings and technical floor plan

• Contributed to iterative design development through 3D modeling and visualization using Enscape

FUNCTION ANALYSIS

SITE PLAN

CAMPUS MAIN ENTRANCE RENDERING

VERTICAL GARDEN

SECTION 1-1

SECTION 2-2

THIRD FLOOR PLAN

SECOND FLOOR PLAN

GROUND FLOOR PLAN

Internship Work:

Haikou Plot 1802 Retail Street

Architectural Design Research Institute of South China University of Technology

Jun. 2024 - Jan. 2025

Schematic Design Phase

Area: 40470 m²

Location: Haikou, China

Responsibilities:

• Assisted with facade design of the main retail street buildings using Rhino and Grasshopper

• Explored canopy articulation and morphology through parametric modeling and environmental analysis using Grasshopper and Climate Studio

• Supported iterative design development through model optimization and visualization using Enscape

GROUND

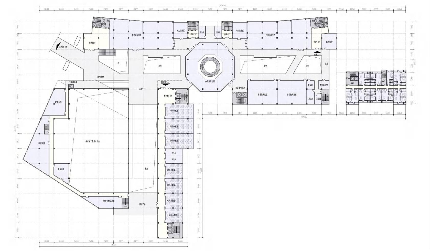
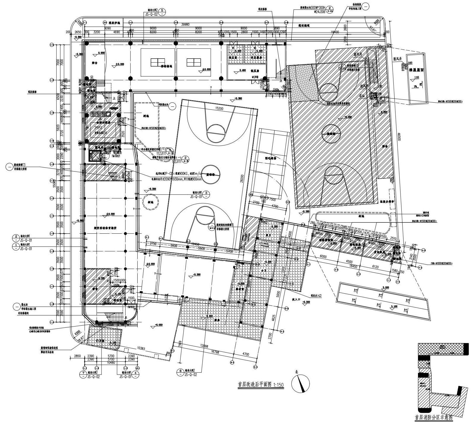
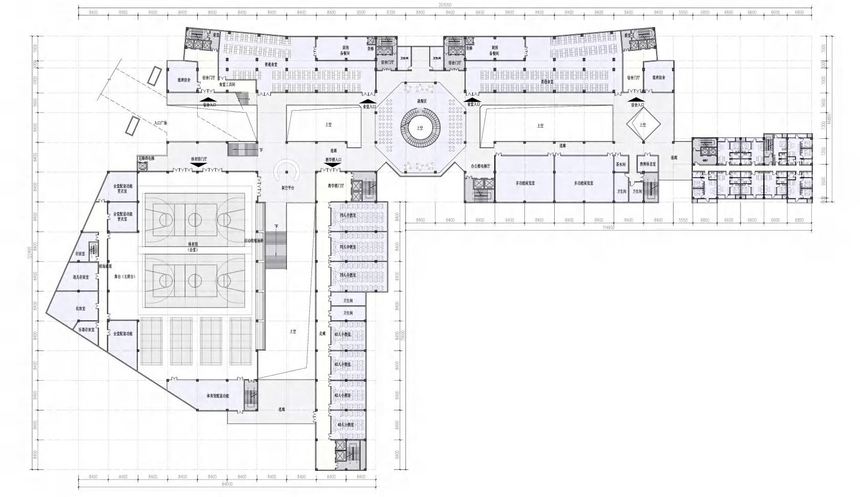
- 09Internship Work: Guangzhou No.17 Middle School West Campus Renovation Project

Architectural Design Research Institute of South China University of Technology

Jun. 2024 - Jan. 2025

Schematic Design Phase

Area: 40470 m²

Location: Haikou, China

Responsibilities:

• Developed preliminary 3D models and technical floor plans for the renovation proposal using Revit

• Assisted in translating design concepts into schematic-level drawings

FIRST FLOOR PLAN

DRAINAGE DETAIL

ELEVATION AND MATERIAL

[Evolving Narratives]

E-mail: jl7217@columbia.edu

Turn static files into dynamic content formats.

Create a flipbook