
Portfolio
Michael Akanni | 2025
Architectural Design
Acoustic Design
Team Collaboration
![]()

Michael Akanni | 2025
Architectural Design
Acoustic Design
Team Collaboration
m.akanni1@icloud.com 312-918-0650
Chicago, IL | Gary, IN https://www.linkedin.com/in/michael-akanni-1aa188237

Revit SketchUp Enscape
Rhino / Grasshopper
Adobe Creative Suite
University of Kansas
B.A.Arch (2025)
M.A.Arch (2025)
Acoustic Certificate (2025)
Technical Workflow
Cultural Analysis Design-Build Execution
Final Cut Pro
Microsoft Excel
BlueBeam Insul
EASE Auralization
Silva, Kapila - kapilads@ku.edu
KU Architecture Professor
Pittman, Jason - jason.p@branchpattern.com
Branch Pattern Acoustic Account Manager
KU Acoustics Professor
Waggoner, Ryan - wag44@ku.edu
Evans Scholar Advisor
Specncer Musseum Director of Creative Services
Acoustic Designer 2024-2025
BranchPattern - Kansas City
Technology & Acoustic Team
Audio Engineer Asst. 2019-2023
University of Kansas School of Music
Audiovisual editor (editing, recording, & streaming)
Technical Designer, Owner 2025
Akanni Technical Studio
Consultations, project research, site walkthrough, and technical deliverables using CAD and DAW software
NOMAS Design Competition 2022
University of Kansas Chapter Annual NOMA Conference in Nashville Tennessee
DirtWorks Studio, Haven 2022-2023
Design-build Studio Solar Decathlon Competition to design net zero house. Construction documentation, prefabrication, shop drawings
Design & Culture in Cuba 2024
Winter Study Abroad
Explored historical and contemporary architecture & art through field documentation and cultural research
Chick Evans Scholarship Undergraduate
Western Golf Association
Full tuition and housing
Kansas Chapter Executive Board - VP of New Scholars
MSP Undergraduate - Graduate
University of Kansas Mentored Scholar Program
Helps students apply talents to their studies and personal-
Table of Contents
Kansas City Jazz Center pg. 6-13
Haven DesignBuild pg. 14-23
KU NOMAS Barbara G. Laurie Design Competition pg.24-33
Acoustic Design / AV Operations
pg. 34-39
Architecture and Arts in Cuba pg. 40-45
Revit / Enscape / AutoCAD / Adobe Suite
Course: Architecture Studio 508
Instructor: Professor Jae Chang, University of Kansas
Location: Kansas City, Missouri - the border between downtown and the Crossroad district
Objective: This project celebrates Kansas tries. It aims to provide an immersive experience full-scale design installations.
Overview: Situated adjacent to a park highway features a flexible auditorium, a public restaurant, around a central courtyard that enhances

Design: The design emphasizes transparency, ventions to indoor markets. On the third ing device. Throughout the building, collaborative community.

Kansas City’s rich cultural identity and highlights the innovation within its architecture, engineering, and construction indusexperience that presents design through the lens of the architect, engaging the public with interactive exhibitions and highway cap, the exhibition center bridges public gathering spaces with the surrounding urban fabric. The ground floor restaurant, and multi-use gathering areas. The upper levels are dedicated to private studios and office spaces, arranged enhances natural light and spatial flow. Each programmatic element supports creativity, education, and public engagement. transparency, adaptability, and spatial connectivity. Public areas are designed to accommodate a range of events, from conand fourth floors, private studios and offices are interconnected by a skylit courtyard that also functions as a wayfindcollaborative zones foster interaction and creativity, reflecting the openness and progressive vision of Kansas City’s design









Under-Ceiling displays
Much of the setbacks on the site were created to provide pleasant outdoor experiences.
Site Boundary
Gallery Entry Stair

Display graphics as an artistic canvas for local artists to be used in show curated pieces. Located in programed spaces like outdoor restaurant seating and courtyard.
Park Display

Main St Display
Main Kansas City attraction display connected to the south loop development and downtown. Show Kansas City news, events Canvas for students to display their work and promote architecture & design





LEVEL 4
CONFERENCE ROOMS KITCHENETTE LOUNGE
PRIVATE COLLAB ROOMS

Interior Render of Gallery Space
Interior Render of Gallery Space
Detail 1
STONEO ENGINEERED CLADDING M03
SMOOTH FINISH
VERTICAL T RAIL
CAVITY INSULATION
METAL SHEATHING
STEEL WALL STUD
PAINTED GYPSUM BOARD


Detail 2
HAWK SERIES 10.4 LED DIGITAL DISPLAY SCREEN
DIGITAL DISPLAY MODULE CABINET
RIGID INSULATION BOARD
METAL SHEATHING
CAVITY INSULATION
GYPSUM PANEL BOARD
SLANTED I-BEAM
PAINTED GYPSUM BOARD

GX SERIES INDOOR DIGITAL DISPLAY
FILTER FABRIC
PRELOCATION LAYER
VAPOR BARRIER
EPS INSULATION
PLASTIC SEALING
CONCRETE SLAB
METAL DECK


HAWK SERIES 10.4 LED DIGITAL DISPLAY
CONCRETE FLOORING
RIGID STEEL STRUCTURE
STONEO ENGINEERED CLADDING M03 SMOOTH FINISH
On-Site Fabrication Team / AutoCAD

Course: Architecture Studio 509
Instructor: Professor Chad Kraus, University of Kansas
Location: Lawrence, Kansas - on the site of the school’s construction warehouse
The Haven DesignBuild Project, undertaken in the DirtWorks versity of Kansas, provided me with a valuable opportunity on-site experience in the execution of a built project. dio members, I contributed to the fabrication of key elements house, specifically the floor frame and the steel window responsibilities was the construction of detailed shop we installed. Although the cabinets were sourced from mented custom Baltic birch faces with flush under-handles, and smooth finish.

DirtWorks studio at the Uniopportunity to acquire real-world, Collaborating with fellow stuelements in the sustainable window frame. Among my primary shop drawings for the cabinetry from IKEA, the studio impleunder-handles, achieving a seamless



Dirt Works Studio is a design-build studio for third-year architecture students, affiliated with ARCH 509 Design-build Studio and special electives. The team’s structure evolves over four semesters based on course enrollment. The officers and a core group from Fall 2021 are committed for the project’s duration. Additional students may join for a semester, with the option to continue. Team leads organize tasks and timelines, while officers oversee specific team roles. Collaboration with engineering students and faculty supports technical innovations.
The project timeline aligns with the University of Kansas semester schedule, involving architecture students through studio and elective course credit. Initiated in Fall 2021, the design-build studio, consisting of 18 third-year students, progressed from conceptual to schematic design. Partnerships were established with entities such as BNIM, Apex Engineers, Good Energy Solutions, Build SMART, Prosoco, and Wood Haven. In Spring 2022, the team collaborated with consulting professors and created large-scale models to prototype systems. The permit set, crucial for approval by early August, is a priority. During Summer 2022, a smaller student group will advance the project, focusing on custom elements’ shop drawings.
Returning in Fall 2022, select students continue with elective credit, and a new group of 15-18 students joins for construction collaboration. Dirt Works Studio benefits from the University of Kansas Design Build Lab in Lawrence, facilitating extensive fabrication off-site to enhance construction quality and efficiency. The goal is near completion by the semester end, with remaining work scheduled for the following semester. In Spring 2023, a new group finalizes construction for inspection, testing, and public exhibition.
will join the project for a semester, with options to continue on in later phases. The team leads will guide the project by organizing tasks and creating timelines meeting milestones. The other officers will lead students to complete the tasks that fall within their team’s role. The team will collaborate with engineering students and faculty as needed to support technical innovations. PROJECT
KRAUS, LIZ FRAKA, LAUREN MALONEY, ANDREW STENDER, HARLEIGH BRANDON, ERICA VILLAMAYOR
WORKS STUDIO FALL 2021
DIRT WORKS STUDIO SPRING 2022
DIRT WORKS STUDIO FALL 2022
DIRT WORKS STUDIO SPRING 2023
FACULTY ADVISORS JAE CHANG, HUGO SHEWARD, ELAINA SUTLEY, MARIO MEDINA, HONGYI CAI, CHEIN-HO KO
SUPPLEMENTAL GROUPS ENGINEERING STUDENTS, ARCHITECTURE PHD STUDENTS
Schedule completed by students in studio Self participating semesters
proposed team structure is anchored by the Dirt Works Studio, directed by Associate Professor Chad Kraus, who will serve as the Faculty Team student team is comprised of the Dirt Works Studio (Fall 2021), which includes all five student officers: Liz Fraka (Student Team Lead), (Health and Safety Officer), Andrew Stender (Construction Officer), Harleigh Brandon (Measured Contest Officer), and Erica Villamayor Outreach Officer), in addition to 13 other dedicated students. Each semester it is projected that some members of the current team will continue semester, where they will be joined by a new incoming group of Dirt Works Studio students. With this model, the team is anticipated to gradually as the project unfolds. In addition to the core Dirt Works Studio team, Faculty Advisors from KU Architecture and KU Engineering, along with will play a supporting role by lending their specific expertise to the project.
Safety

Dignity
Education
Health & Wellness
Market Analysis
Model Home

Net-Zero Energy






Community
Experience
Prospect Harbor

Cross Ventilation

Passive Heating





Durability & Resilience

Passive House Standards





ACCESSIBLE TRANSFER SHOWER W/ SHOWER SEAT

Native Vegetation
Embodied Impact
Energy Efficiency
Biomaterials
Right-Size
Contest 1: Architecture [Juried]
Dirt Works Studio is partnering with The Good Work, whose mission is to provide dignified shelter to individuals or families experiencing domestic violence and to support them while they transition to more secure and happier lives. Each family served by The Good Work has a different background, but one commonality is that their lives have been fundamentally disrupted. Recognizing this, Dirt Works Studio aims to provide a place of refuge while remaining connected to the fabric of the Strawberry Hill neighborhood of Kansas City, Kansas. The mutually reinforcing and complementary aspirations of The Good Work and the Solar Decathlon - advocating for the health of the planet and the health of the community - results in clear and potent design criteria.
Strawberry Hill, previously called Splitlog Hill, was named after a wealthy Native American mill owner named Mathias Splitlog, who built a manor here in 1870. In the early 1900s, the area was populated by Slavic immigrants working in nearby industries. This area suffered from redlining in the mid-twentieth century, resulting in systemic disinvestment. In 1957, roughly one-third of the neighborhood’s land area was claimed by eminent domain for the
demanding
Design decisions completed by studio with primary contribution to redlining revisions
concrete
which could uses BuildSMART’s tionally walls will which will moisture home at While the connected ments set energy from the renewables. ful passive solar energy Contest In addition considered als and selected important hour, making because When low als selected, not need bon. The ground as a thermal

very durable if done properly

PROJECT PURPOSE: NEW CONSTRUCTION
REASON OF SUBMITTAL: NEW CONSTRUCTION 2018 INTERNATIONAL BUILDING CODE LOCATION: 3813 GREENWAY DRIVE, LAWRENCE, KANSAS 66046
5. OWNER: UNIVERSITY OF KANSAS
6. CODE FOOTPRINT CREATED: AUGUST 8,
7. FIRE SERVICE:
8. BUILDING INSPECTOR: CITY OF LAWRENCE
high shock resistance and moderate bending strength
ideal for rainscreens and other exterior uses
an increase in overall strength and water resistance
proper placement and
degrees of loads placed on it
could be discouraging to families. The project’s structure BuildSMART’s prefabricated E-Walls, which provide exceptionally high-strength walls, especially for a home this size. The will be clad in horizontal, thermally-treated wood siding, will enhance the shear strength and reduce wear on the moisture barrier. The standing seam metal roof will protect the at its most vulnerable surfaces.
the intention is for this home to be net positive, it will be connected to the electrical grid and use local net metering agreeto sell excess energy during peak production times to offenergy use after the sun sets. Even when drawing electricity the grid, 44% of the energy produced in Kansas comes from renewables. The home’s energy load will be reduced by thoughtpassive strategies and active systems, and offset by a robust energy collection system.
Contest 5: Embodied Environmental Impact [Juried] addition to Operational Carbon, Embodied Carbon has been considered by prioritizing non-fossil fuel-based and local materiand assemblies. Low-toxicity and non-toxic materials will be selected to ensure good indoor air quality, which is particularly important in a home that will have relatively few air changes per making the home a healthier place to live in. Wood was chosen because it has low embodied energy and functions as a carbon sink. low embodied carbon materials are not available, the materiselected, like the standing seam roof, are highly durable and will need to be replaced often, which offsets their embodied carThe concrete foundation will be finished and exposed for the ground floor, which will be long-lasting, easy to clean, and function thermal mass. It may also serve as a radiant heat source.
one of the most durable
can last up to 50 years
concealed fasteners eliminates any possibility of leakage
can withstand extreme resistant
9. OCCUPANCY TYPE: EDUCATIONAL: CLASSROOM AREA
10. CONSTRUCTION TYPE: TYPE V-B
excellent thermal and sound stronger than most and do not deform when stressed or exposed to extreme temperature or humidity
11. STRUCTURAL CODE REQUIREMENTS:
A. FLOOR AREA: 520 SF (9,500 SF ALLOWABLE)
B. BUILDING HEIGHT: 13'-5" (40' ALLOWABLE)
C. FIRE RATINGS: 0 HOURS (0 ALLOWABLE)
12. ACTIVE FIRE SAFETY FEATURES:
A. NO FIRE SUPRESSION SYSTEM
B. NO FIRE ALARM SYSTEM
C. NO EMERGENCY LIGHTING AND POWER
D. A SINGLE SMOKE ALARM IN STUDIO AREA
13. THIS NEW CONSTRUCTION IS DESIGNED AN ACCESSORY STRUCTURE TO THE EXISTING INDUSTRIAL BUILDING.
14. COMBINED NET AREA OF THE STUDIO AND GALLERY IS 320 SF. BASED ON 2018 IBC TABLE 1004.5 MAXIMUM FLOOR AREA ALLOWANCES PER OCCUPANT, WITH A 'CLASSROOM AREA' FUNCTION OF SPACE, THE OCCUPANT LOAD FACTOR IS 20 NET OCCUPANT. THEREFORE, THE TOTAL OCCUPANT LOAD OF THE STRUCTURE IS (OCCUPANTS X 20 = 320 SF) 16 PERSONS.
been specifically chosen as it is a tree ubiquitous to this area, but not regularly harvested. It will be thermally treated to be rated for exterior exposure. Thermal treatment will help to avoid the chemicals typically found in exterior-rated wood. The BuildSMART prefabricated system is produced locally, so the transportation impact is low. The system will also reduce onsite construction time, which saves significant carbon. For the batt insulation within the wall cavities, the team is exploring a timber-based batt, in keeping with our preference for biomaterials.
15. EGRESS DOOR WIDTHS: THERE IS ONE EGRESS DOORS (EXIT DISCHARGE), WITH CLEAR OPENING OF 36", EXCEEDING THE MINIMUM OF 32" AS WELL AS THE MINIMUM BASED ON THE MULTIPLIER OF .2" PER OCCUPANT.
Success in this contest will hinge on strategic choices in plumbing and HVAC systems. Integrating systems into the home will improve the lives of the family, in ways they might not even realize. At each fixture, there will be a point-of-use tankless hot water heater, which will minimize wasted water at faucets and showerheads, and eliminate the wasted energy of a tank water heater. This may be combined with a central tankless hot water heater to address higher demands.
The Build SMART system’s prefabricated panels provide accurate rough openings to make tighter fits for windows and doors, and liquid flashing fully seals the openings to prevent air leakage. This system in conjunction with solid-core doors can serve as noise absorption in the home. The mini-split reduces the amount of ducting needed for the space, which will also reduce interior noise.
Increased daylighting saves energy throughout the day and has been shown to improve mental health, aligning with the heightened needs of the client. The large southern window wall brings
1/2" 13-PLY BALTIC BIRCH PLYWOOD CABINET, TYP.
WARDROBE CABINET
CABINET FINGERPRINT-FREE STAINLESS STEEL REFRIGERATOR
BASE CABINET AND ACCESSORIES TYP, - PLAN SECTION C
1/2" = 1'-0"

1/2" 13-PLY BALTIC BIRCH PLYWOOD DRAWER, TYP.
13-PLY BALTIC BIRCH PLYWOOD CABINET, TYP.
BASE CABINET WITH DRAWER / 2 DOORS
1/2" 13-PLY BALTIC BIRCH PLYWOOD CABINET, TYP. 1/2" 13-PLY BALTIC BIRCH PLYWOOD DRAWER, TYP.
BASE CABINET FOR SINK / 2 DOORS
CABINET TYPE 3 - FRONT ELEVATION @ LOWER CABINETRY
BIRCH
BASE CABINET TYPE 3 - PLAN SECTION @ LOWER CABINETRY
CABINET TYPE 4 - PLAN SECTION @ LOWER CABINETRY
= 1'-0"
BRACKETS
NOMAS Barbara G. Laurie Design Competition 2022

Team Members:
Anna Dennison
Fernando Echauri
Abraham Simon
Instructor: Partnered with Professor Shannon Chris to transform the competition prompt into a structured course
Location: Nashville, Tennessee
Competition: This design competition was one chose to participate in. The opportunity presented the National Organization of Minority Architects tition spanned three semesters, including a dedicated journey culminated in a trip to Nashville for the chance to present our project to the judges.

one that I, along with other architecture students, presented itself through the campus organization of Architects (NOMAS). Our engagement in this compededicated summer semester for the project. The the annual NOMA conference, where we had the
This map illustrates the North Nashville community and the aftermath of the division caused by the constructed interstate (I-40). The interstate not only acts as a physical barrier separating the Hadley Washington Neighborhood from Osage North Fisk but also influences the utilization of Jefferson St. as a connection between the public and the neighborhood business center.
The region boasts a significant educational presence, with universities and a high school located nearby. Additionally, there is a park housing a community center and an adjacent library, providing essential resources for the community. The site’s functionality has been significantly affected by the highway and its impact on vehicular circulation



Outdoor Murals
Pedestrian & Bike Circulation
Community Staple Businesses






We used light and transparent to allow users to look through idea of a connected community.
This project combats adversities space where culture, entrepreneurship, education coexist and work together plify the voices of its inhabitants. a space where North Nashville the values of the community, it a way to grow from the history founded on.

transparent materiality and foster the community. adversities by creating a entrepreneurship, and together to aminhabitants. Providing Nashville can express it allows them history they were

Insul / EASE Auralization Final Cut Pro

Experience: BranchPattern & KU School of Music
Certificates: Graduate Acoustics Certificate
Instructor: Jason Pittman – Project Manager, BranchPattern, Acoustics Professor, University of Kansas
Brock Babcock – Audio Engineer, University of Kansas - School of Music
As both a designer and occupant of sound-sensitive tion for the role acoustics play in shaping I worked closely with the acoustics team reverberation times and mitigated unwanted
This experience equipped me with practical loss calculators in Excel, as well as reconstructing simulations. I also collaborated with mechanical implement CFM adjustments in support

sound-sensitive spaces, I’ve developed a deep appreciashaping spatial experience. During my time at BranchPattern, team to develop design strategies that achieved targeted unwanted noise.
practical skills in creating reverberation and transmission reconstructing 3D models for surface analysis and ray tracing mechanical engineers to interpret reference drawings and support of meeting specific NC (Noise Criterion) targets.
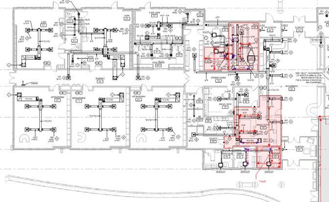
Mechanical Drawing assessing background noise Vibro-acoustic





During my studies at the University of Kansas, I developed a strong interest in designing sound-sensitive spaces, earning an Acoustics Certificate through focused coursework and field observation. My experience with AV equalization sharpened my ability to design with the user’s auditory experience in mind, integrating technical knowledge with spatial intent.



KU Study Abroad - Winter 2024
Experience: Traveled throughout Cuba for 2.5 weeks, based in Havana with excursions to cities such as Sancti Spíritus, Trinidad, and Matanzas. The trip concluded with a four-day investigation of U.S.–Cuba cultural connections in Miami.
Instructor:
Professor Tim Hossler – Chair, Department of Design, University of Kansas




As part of KU’s M.Arch program, I participated in a multidisciplinary experience in Cuba, exploring the country’s rich architectural direct cultural immersion. Traveling alongside students backgrounds, I engaged in site analysis, field documentation, research. The experience expanded my global perspective form my approach to culturally

multidisciplinary study abroad architectural history through students from various design documentation, and reflective perspective and continues to inculturally responsive design.




















