PORTFOLIO


MICHAEL PRATT SELECTED
WORKS ARCHITECTURAL

![]()


MICHAEL PRATT SELECTED

Hi! I’m an Architectural Technology honours graduate currently enrolled in the Online Master of Architecture program (NAAB accredited) at The Boston Architectural College in Boston, Massachusetts, USA.
I am interested in sustainable design, how we can further incorporate natural building materials into the urban environment, decentralized energy generation and storage, and the influence of artificial intelligence on the architecture profession.
Phone: (647)-299-8463
Email: mikepratt23@gmail.com Toronto, Ontario, Canada Instagram: mike_pratt_arch
Architectural Designer Intern Arup 2023
Graphic Designer / Production Supervisor University of Toronto Press 2014-2021
Carpenter Earthship Biotecture / Sett Construction 2012-2013
Master of Architecture (M.Arch) - Dean’s Award Scholarship
Expected Graduation May 2026
Boston Architectural College Boston, MA (Online Program)
Ontario College Advanced Diploma Architectural Technology
2024
George Brown College Toronto, ON
Cumulative GPA: 3.9 - Dean’s List
Certificate Arts & Science Fanshawe College London, ON
O.S.S.D. Certified Bilingual, French Immersion
Aldershot High School Burlington, ON
SOFTWARE
Revit
Rhino
AutoCAD
SketchUp
Bluebeam Revu
Twinmotion
Adobe Illustrator
Adobe Photoshop
Adobe InDesign
MS Office
01 Capulin Volcano Skywalk & Artist Retreat
Semester 6
02 Mixed-Use Mass Timber High-Rise Semester 5
03 Nature Centre Semester 3
04 Detached Single Family Residential Semester 2
05 Single Storey, Steel Frame Warehousing Semester 4

Capulin, New Mexico, USA
Semester 6
Contributors: None
Programs Used: SketchUp, Twinmotion, Revit, Adobe Illustrator, Adobe InDesign
Sewn through the crater rim of an extinct cinder cone volcano, the Capulin Volcano Skywalk & Artist Retreat invites tourists and artists to connect with the vast and wonderous New Mexican landscape. The main skywalk offers visitors excellent opportunities to observe breathtaking views, understand volcanic formation, and appreciate celestial bodies at night. The architectural form takes inspiration from the structure of a volcano, resembling the layered tiers of ash and cinders that build up over long periods of time with an active volcano. This form creates a variety of studio spaces that afford artists the means to explore their creative visions. The circulation shafts that burrow through the cone are reminiscent of the volcanic vents that once allowed molten lava to flow through. The architecture aims to create an inspirational environment to and invites both artists and non-artists alike to engage with the creative process and experience a sense of awe.


































































1 - EMBED

Cantilevered primary circulation spaces into the two high points of crater rim to maximize views and not obstruct the existing Crater Rim Trail.



















3 - EXTRUDE

Public and private spaces from the circulation space towards the low point of the crater rim to maximize views.

Sequential Massing Diagram







































2 - CONNECT
Cantilevered spaces together to create continuous circulation.








































4 - PULL




Public and private spaces up and down to resemble the structural layers of a volcano and create a variety of usable spaces.














































































































































































































































CRATER RIM TRAIL






























360° VIEWS NOT OBSTRUCTED BY PROPOSED BUILDING










































































































Toronto, Ontario, Canada
Semester 5
Contributors: Chris Beech, Kelsey Fisher
Programs Used: Twinmotion, Revit, Adobe Illustrator
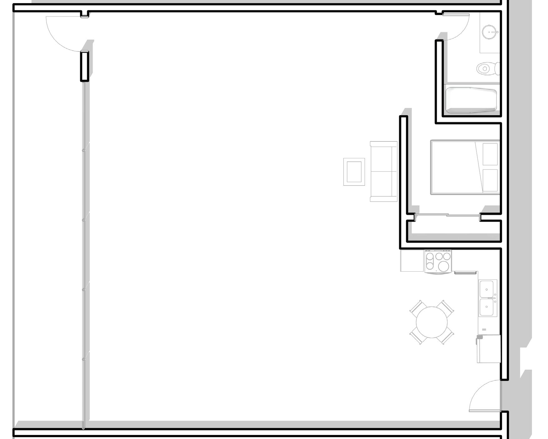
The Breeze Residences is a 10 storey mass timber condominium located on the Lake Ontario waterfront in downtown Toronto. The design was inspired by the beauty of the lake and the refreshing breeze that it brings inland.
Our goal for the project was to create a functional mixed-use building that takes full advantage of the views that the waterfront site offered while paying respect to the surrounding neighborhoods and public spaces.
Two V-shaped columns prop up the podium’s brick veneer to represent the idea of inviting fresh lake air into the building. The metal privacy fins that divide the balconies cut through the air like blades of a fan while allowing for unobstructed views of the waterfront. The wave designs on the balcony railings where inspired by the waves crashing and the breeze blowing and attempt to give movement to an otherwise static object.





Massing Diagram
The massing of The Breeze Residences was designed to maximize views of the lakefront to the south and the existing park to the west while adhering to the established mass timber structural grid.






























































Building Section






































































































































ENERGY EFFICIENT LIGHTING











SCHÖCK THERMAL BREAK







PERMEABLE PATH




Sustainability Diagram






































FOUNTAIN HEAT ISLAND EFFECT












ORNAMENTAL GRASS HEAT ISLAND EFFECT


Tollkeeper’s Park, Toronto, Ontario, Canada
Semester 3
Contributors: None
Programs Used: Revit, Adobe Illustrator
The design for the Hillcrest Community School Nature Centre creates a functional place to inspire present and future generations on how to live more sustainably. The project combines passive solar heating and cooling with familiar materials and off-grid energy generation, to create a durable and resilient building that will endure the uncertain environmental and economic times in the foreseeable future. It is a demonstration of how to harness natural processes, and engineer natural materials to create a comfortable space. Mass Timber and Rammed Earth were chosen as the principal building materials for their durability, sustainability, and warmth. While standing seam metal roofing made with 90% recycled content was chosen for its durability and ability to catch clean rainwater. Together, the materials and the passive approach create a space which will adapt to changing conditions and require little maintenance and upkeep to minimize the embodied energy used over the course of the building’s lifespan.






































Toronto, Ontario, Canada
Semester 2
Contributors: None
Programs Used: AutoCAD, Adobe Illustrator
The intent for the design project of the Detached Single Family Residential was to redevelop an existing infill parcel of land in downtown Toronto. The existing parcel of land had been previously occupied by an original 1920’s detached home that had since been demolished by the builder. The inspiration for the design was to create a bright and modern building that would take advantage of the lot’s western exposure. My goal was to design a functional floor plan that would comfortably accommodate a family of four and would adhere to all zoning bylaw requirements and OBC codes.
KITCHEN FAMILY ROOM
HALL EAT IN

Bubble Diagrams
DOUBLE PLATES
5 8 in. T & G PLYWOOD SHEATHING MOISTURE BARRIER
BATT INSULATION IN POLYETHYLENE PILLOW, FRICTION FIT IN PLACE WOOD SILL PLATE FASTENED TO FOUNDATION WALL W/1/2" DIAMETER ANCHOR BOLTS EMBEDDED 4" MIN. IN CONC. @ 7'-10" O/C
R19 BATT INSULATION CONTINUOUS 6 mil. POLY VB 1 2 in. GYPSUM BOARD

Vaughan, Ontario, Canada
Semester 4
Contributors: Eunji Noh
Programs Used: Revit, BIM 360, Adobe Illustrator
The intent for the Single Storey, Steel Frame Warehousing project was to design a steel frame warehouse to the client’s requirements. The client provided us with a parcel of property and we started the project with a Site Plan Feasibility Study to determine the maximum buildable area. We applied the City of Vaughan by-laws and the Ontario Building Code to design a building that would be suitable for the site and meet all the client’s requests.
As a team, Eunji Noh and I used BIM 360 to collaborate and develop our set of construction drawings.







North Elevation - Drawn by Eunji Noh
South Elevation - Drawn by Eunji Noh
Building Cross Section
25mm METAL PANEL
20mm AIR GAP
AIR BARRIER
15.9mm GYPSUM WALL BOARD
152mm METAL STUD / R20 RIGID INSUL.
VAPOUR BARRIER
15.9mm GYPSUM WALL BOARD
WIDE FLANGE I COLUMN
12.7mm ANGLED STEEL
STEEL CONNECTION ANCHOR
ANGLE WELDED TO EMBEDDED PLATE
SEALANT W/ BACKER ROD
SEALANT W/ BACKER ROD
CONNECTOR TO MANUFACTURERS SPECS.
105mm (4") R20 RIGID INSUL.
PRECAST CONCRETE
Plan Detail
SEALANT W/ BACKER ROD
SEALANT W/ BACKER ROD
3660mm X 4300mm X 40mm DRIVE IN DOOR
WRAP AROUND METAL DOOR FRAME
3660mm X 4300mm X 40mm DRIVE IN DOOR
25mm METAL PANEL
20mm AIR GAP
15.9mm GYPSUM WALL BOARD
152mm METAL STUD / R20 RIGID INSUL.
VAPOUR BARRIER
15.9mm GYPSUM WALL BOARD
STEEL CONNECTION ANCHOR
12.7mm ANGLED STEEL
WIDE FLANGE I COLUMN Plan Detail


THANK YOU