MICHAEL_ARCHITECTURE PORTFOLIO_2024

Page 1


PENGALAMAN KERJA

Pekerja Kontrak - Ruang Skala Atelier Universitas Multimedia Nusantara

Kuliah Praktek - Budi Pradono Architect

Freelance Translator - Kuaishou Technology

Freelance Actor/Talent - Kuaishou Technology

Santo Ignatius Singkawang

Ketua BPH Perkenalan Prodi Arsitektur 2022

Perkenalan Prodi Arsitektur 2021

Perlengkapan & Desain BUKBARS 2021

Pelatihan Revit Arsitektur dan Permodelan Bangunan sebagai BIM

Pelatihan Enscape Masterclass Beginne r -Arsisten Academy

Pelatihan Exterior Enscape Masterclass -Arsisten Academy

O N T E N T S O N T E N T S C

01 Green WELS Familia Shopping Centre

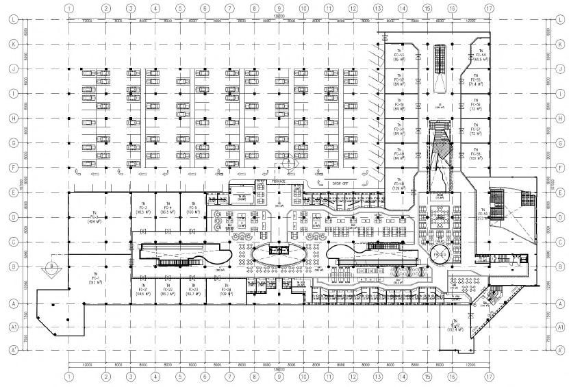
Pusat Perbelanjaan yang ramah keluarga. Bangunan yang dibangun berdasarkan standar bangunan hijau yang merespons ke Passive cooling design.

Rekonstruksi Supermal

KONSEP & ISU UTAMA

Isu utama lokasi (Eksisting : Supermal Karawaci Tangerang) adalah kurangnya wadah untuk mewadahi aktivitas komunitas, event dan semua golongan umur.

Konsep yang diambil adalah Green & Family Friendly yang dimana bangunan merespon ke bangunan hijau dan ramah terhadap semua golongan umur.

Konsep Akhir Bangunan

Konsep akhir bangunan yang dirancang adalah "Green & Family Friendly," yang didasarkan pada hasil studi mendalam, baik melalui studi preseden maupun analisis site. Konsep ini diperkuat dengan program ruang yang dirancang untuk mencerminkan kebutuhan dan karakteristik lingkungan. Studi preseden dilakukan dengan mengambil elemen-elemen unik dari bangunan referensi, kemudian dihubungkan dengan ide green building, khususnya pada desain pendinginan pasif (passive cooling design), yang terbagi ke dalam berbagai variabel. Setiap variabel ini diadaptasi untuk menciptakan lingkungan yang ramah lingkungan, efisien secara energi, dan nyaman untuk keluarga. Program ruang yang dikembangkan menunjukkan proses desain yang memunculkan konsep lokalitas, dengan mempertimbangkan konteks budaya dan geografis yang ada, sehingga tercipta sebuah bangunan yang tidak hanya ramah lingkungan tetapi juga sesuai dengan kebutuhan lokal dan keluarga.

02 Sustainable Linkage of

Revit

Albert Wijaya
Evlin Febrica Group Design
Jason Wang Michael

MASTERPLAN

&

BUILDING CONNECTION MASTERPLAN &

Lokasi terbagi menjadi 5 kategori fungsi, yaitu Landmark, Komersial, Residensial & Fasilitas sosial & RTH.

BUILDING CONNECTION

Dari kelima fungsi tersebut saling terhubung satu sama lain dengan pendukung utamanya adalah taman yang terdapat pada 3 titik utama.

VENDORS AREA & GREEN PARK VENDORS AREA & GREEN PARK

Area untuk pedagang kaki lima berada di taman yang telah ditentukan titiknya.

Berdasarkan analisis dan kesimpulan yang ada, lokasi taman tersebut mudah untuk ditempuh oleh pejalan kaki ke titik-titik pedagang kaki lima yang ada.

JATIMESTER HOTEL JATIMESTER HOTEL

Fungsi pertama adalah fungsi Hotel yang terletak di bagian dekat dengan stasiun Jatinegara, dengan ini pengunjung yang berasal dari luar tidak akan bingung untuk bermalam di mana.

Hotel ini memberikan tempat singgah dan istirahat sementara bagi pengunjung yang berasal dari tempat yang jauh.

JATIMESTER MARKET JATIMESTER MARKET

Pasar Jatimester yang berada di bagian tengah lokasi perancangan dapat menarik perhatian pengunjung karena bangunan ini merupakan pusat dari seluruh bagian perancangan.

Pasar ini menghubungkan seluruh pasar yang ada di kawasan karena sudah menjawab permasalahan akses, keterhubungan dan lainnya.

JATIMESTER

FOOD COURT & HOUSING JATIMESTER FOOD COURT & HOUSING

Food Court & Housing (RUKO) berada pada bagian seberang fungsi bangunan Hotel yang selain memberikan tempat tinggal bagi penduduk sekitar, dapat juga memberikan kesempatan bagi penduduk untuk melakukan jual beli barang-barang yang akan di jual.

JATIMESTER TRADITIONAL MARKET JATIMESTER

Pasar Loak berada pada seberang bangunan Pasar Jatimester, selain berfungsi sebagai tempat berjualan, dapat juga menjadi penghubung dari Pasar Jatimester ke taman-taman sekitar.

TRADITIONAL MARKET

Pasar Loak yang penjualnya dikhususkan untuk orang yang berjualan di atas kain / lesehan (Keunikannya)

03 Gang Senggol

Revo Mall Bekasi 1F

Used Software : Enscape Autocad

Sketchup

Shopping Mall

Lantai 1F yang terbakar direkonstruksi ulang, dengan konsep Gen Z dan Bekasi pride menghasilkan design akhir yang memberikan kesan fresh bagi pengunjung.

Pembangunan Mall Revo Bekasi 1F

Aji Rooseno Zakki Michael Architect Design

Lantai 1F Revo Mall Bekasi mengalami kebakaran beberapa waktu lalu, dan pemilik mall meminta Ruang Skala Atelier untuk merancang ulang area yang terdampak. Tugas ini melibatkan desain baru yang tidak hanya memperbaiki kerusakan fisik, tetapi juga meningkatkan tampilan dan fungsi ruang. Setelah analisis kondisi eksisting dan kebutuhan operasional, Ruang Skala Atelier mengusulkan solusi desain modern yang aman dan menarik bagi pengunjung, sekaligus memastikan area tersebut dapat kembali beroperasi dengan lebih baik serta memberikan pengalaman yang nyaman.

De’ Bloesem

Selther

Used Software : Enscape Photoshop

Revit

Portable Shelter

Tempat berlindung sementara dari korban-korban yang mengalami

banjir di area Jatinegara, mengikuti kebutuhan tiap anggota keluarga dan kebutuhan ruangnya.

Perencanaan pembuatan tempat berlindung sementara

Albertus Daniel
Dennisa Christania Michael Group Design

HISTORY & ISSUE -

FINAL PRODUCT HISTORY & ISSUE -

FINAL PRODUCT

Lokasi Jatinegara yang berpotensi banjir pada bulan februari dengan ketinggian air 31-70 cm, dengan kondisi ini sangat sering terjadi dari 5 tahun yang lalu.

Hasil akhir yang merespons ke bentuk seperti bunga yang mekar (Bloesem dalam bahasa Belanda) sehingga dapat dengan mudah di rakit dan di satukan kembali.

DESIGN TRANSFORM & ZONING DESIGN TRANSFORM & ZONING

Dengan bentuk seperti bunga yang mekar, dapat degan mudah untuk dirakit dan disatukan kembali, sehingga tidak perlu waktu lama akan dengan cepat bisa ditinggali.

Bagian-bagian yang ada sudah memiliki fungsi untuk pembagian kebutuhan 1 keluarga yang beranggotakan 4 orang.

INTERIOR VIBES &

INTERIOR VIBES &

Bagian dalam Shelter yang memberikan kenyamanan bagi pengguna, dengan bagian tengah sebagai tempat berkumpul untuk makan dan berbincang.

EXTERIOR

EXTERIOR

Bagian eksterior yang khususnya bagian atap memiliki solar panel yang menyediakan aliran listrik bagi kebutuhan di shelter tersebut.

05 MIVID Clothes Store Commercial

Toko baju yang dibuat berdasarkan kebutuhan dari pengguna dan Shopping / Store
Perencanaan pembangunan toko baju di PIK

ACTIVITY &

BUILDING SECTION ACTIVITY &

Aktivitas interior dan eksterior yang saling berhubungan satu sama lain memberikan kenyamanan bagi pengunjung maupun penjual, yang dimana

BUILDING SECTION

jika setelah membeli baju untuk anak, pengunjung dapat bersantai di bagian luar toko untuk membeli minum dan makan untuk menikmatinya di area tempat duduk.

INTERIOR VIBES &

INTERIOR VIBES &

Bagian interior terdapat ruangan untuk menata baju-baju jualan dan terdapat fitting room untuk melakukan testing baju.

EXTERIOR VIBES

EXTERIOR VIBES

Bagian eksterior terdapat area duduk untuk pengunjung bersantai, serta ada walking track yang merupakan jalan eksisting dari Batavia Cove.

Golden Vase Room Reconstruct

Revit

Perencanaan pembuatan ulang desain ruangan Ballroom dan

Restoran untuk keberlanjutan dari Oriental Mandarin Hotel, dengan

penambahan ruangan utama untuk keluarga VIP. Hotel

Rekonstruksi Oriental Mandarin Hotel

BALLROOM DESIGN BALLROOM DESIGN

Bagian Ballroom yang memiliki warna utama Gold yang memberikan kesan luxury dan luas untuk kebebasan bagi pengunjung untuk bersantai dan menikmati acara di tempat tersebut.

FAMILY ROOM &

RECEPTIONIST FAMILY ROOM &

RECEPTIONIST

Family room yang terbagi menjadi 5 ruangan khusus untuk tamu VIP, berada pada bagian tepi ruangan agar mendapat pencahayaan yang cukup.

Dengan warna utama merah, memberikan kesan cerah dan kebahagiaan bagi pengunjung yang berada pada ruangan tersebut.

RESTAURANT DESIGN RESTAURANT DESIGN

Restoran yang berada pada bagian tengah bangunan ini memiliki desain yang mengikuti konsep dari Ballroom yang luxury agar pengunjung merasa nyaman dan menikmati restoran ini.

Bagian resepsionis yang disertai waiting room yang diberi penghijauan agar pengunjung yang menunggu akan merasa nyaman.

Bedroom Design

5 x 8 m

Bedroom

ROOM DESIGN & ZONING

Ruangan dengan ukuran 8x5 meter memiliki pintu eksisting yang berada pada bagian kiri tepi ruangan, ditambah juga dengan kaca selebar 5 meter di bagian kiri ruangan.

dengan kondisi eksisting tersebut, saya membedakan level ruangan agar terlihat kesan pembagian tempat kerja dan tempat istirahat.

CEILING PLAN

Bagian plafon yang dilengkapi dengan motif oriental memberikan kesan nyaman bagi pengguna dan dengan lampu yang memiliki pencahayaan berwarna hangat (Warm).

RENDERING PROJECT

V Tower

GKA Church

Cisoka Bamboo

RENDERING

Michael Aldi Tama Agraprana Disya Arleni

Rendering

Mengerjakan beberapa rendering video final dengan team yang menghasilkan visualisasi yang akan ditujukan kepada khayalak publik.

RENDERING PROJECT

V Tower

Team & Architect’s Project

RENDERING PROJECT

GKA CHURCH

Team & Architect’s Project

RENDERING PROJECT

TAMAN BAMBU CISOKA

Team & Architect’s Project

08

Photography

Photography

Potret kamera dari Handphone dan Kamera yang menghasilkan cerita bagi penikmat foto dengan kategori bangunan interior serta eksterior. Shopping Centre

Photography Experience

Thank You Thank You

Turn static files into dynamic content formats.

Create a flipbook
Issuu converts static files into: digital portfolios, online yearbooks, online catalogs, digital photo albums and more. Sign up and create your flipbook.
MICHAEL_ARCHITECTURE PORTFOLIO_2024 by Michael Mike - Issuu