Portfolio - Micaela Echagüe

Page 1

PORTFOLIO

MICAELA ECHAGÜE

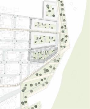
PROYECTO VIMS CONJUNTO DE VIVIENDAS

EL PROYECTO VIMS ES UNA CÉLULA DE UNA INTERVENCIÓN

URBANA QUE TIENE COMO OBJETIVO CONECTAR EL ALTO Y EL BAJO DE SAN ISIDRO GENERANDO UN ENCUENTRO MAS SIGNIFICATIVO ENTRE LA CIUDAD Y SU BORDE COSTERO.

EL PROYECTO PROPONE DOS EJES

PEATONALES JUNTO CON DOS

ALTERNATIVAS DE TRANSPORTE

PUBLICO MAS AMIGABLES CON EL AMBIENTE, ENTRE DICHAS

PEATONALES SE ENCUENTRA EL PROYECTO VIMS.

ESTE CONJUNTO BUSCA MEJORAR LA CONEXIÓN SOCIAL Y HUMANA

ENTRE VECINOS Y PARA CON EL MEDIOAMBIENTE.

VISTA NORTE

CORTE A-A

COMERCIAL COLECTIVO PRIVADO

VISTA ESTE

CORTE B-B

IDEA DE LLENOS-VACÍOS

LLENOS VACÍOS

PLANTA BAJA PRIMER PISO SEGUNDO PISO TERCER PISO CUARTO PISO
SUP. ABSORVENTE SUP. SECA ESPACIO COLECTIVO
ACCESO

FACULTAD DE ARQUITECTURA EN SAN ISIDRO

EL OBJETIVO DEL PROYECTO ES CREAR UN PASAJE CONECTOR ENTRE LA CIUDAD Y LA DÁRSENA, GENERANDO ESE RECORRIDO CON LA VOLUMETRÍA DEL EDIFICIO, DONDE EL VOLUMEN MAYOR CONTIENE EL PROGRAMA DE GRADO DE LA FACULTAD, Y EL

DETALLE FACHADA

PLANTA BAJA PRIMER PISO SEGUNDO PISO
+0 10 DETALLE CONSTRUCTIVO
VISTA NORTE VISTA ESTE CORTE A-A CORTE C-C

SE DETECTAN TRES PUNTOS INFLUYENTES EN EL SITIO: CIRCULACIONES, VISUALES Y LIMITES VERTICALES. TENIENDO EN CUENTA

ESTOS PUNTOS, LO QUE SE PLANTEA ES UN COMPLEJO DEPORTIVO QUE NOS PERMITA

GENERAR UNA CONEXIÓN ENTRE LOS DIFERENTES COMPLEJOS HABITACIONALES BRINDÁNDOLE AL USUARIO UN ESPACIO DE RECREACIÓN CON DIFERENTES ACTIVIDADES.

A SU VEZ, SE CONSIDERAN DOS PUNTOS

IMPORTANTES DE LLEGADA AL COMPLEJO, EL PRIMERO UNA ESTACIÓN DE TREN HACIA LA ORIENTACIÓN NOROESTE, Y PARADAS DE PREMETRO Y METROBUS HACIA LA ORIENTACIÓN NORESTE, ES POR ESTA RAZÓN QUE SE PANTEA UN RECORRIDO LINEAL QUE CONECTE

ESTOS DOS EXTREMOS

CORTE A-A

P ograma para el club P ograma para el estadio P ograma social Acceso Club Accesos Estadio
LUGANO VISTA SUR VISTA ESTE
MICROESTADIO EN
CORTE C-C
AV. ESCALADA AV. CRUZ
------
IMPLANTACIÓN
PLANTA BAJA PLANTA ALTA SUBSUELO STORYBOARD DETALLES ESTRUCTURALES

CENTRO DE INVESTIGACIÓN, DISEÑO Y DESARROLLO SUSTENTABLE

Como principal objetivo se busca espacios amplios y flexibles que conecten las diferentes ramas de diseño. Acercamos las visuales del diseño a las personas mediante formatos que incentiven la observación, la reflexión, el análisis crítico y el diálogo, al mismo tiempo que difundimos el trabajo de artistas, apoyándolos en el fomento de su trabajo.

Circulación en PB

Integración del espacio públicopuntos de interes

Apropiación de plantabaja generando un espacio público flexible en conexión con la peatonal existente, creando áreas de enceuntro accesibles para todos los usuarios.

VISTA NORTE VISTA ESTE
VIVIENDA VIVIENDA VIVIENDA VIVIENDA VIVIENDA ESPACIO COMÚN VIVIENDAS EMPRENDIMIENTO EMPRENDIMIENTO EMPRENDIMIENTO EMPRENDIMIENTO EMPRENDIMIENTO EMPRENDIMIENTO EMPRENDIMIENTO EMPRENDIMIENTO ADMINISTRACIÓN EXPO EXPO EXPO EXPO TALLERES TALLERES ESPACIO de REUNIÓN SALAS DE PRESENTACIÓN AUDITORIO AUDITORIO PLANTA BAJA COMERCIAL PLANTA BAJA ESTACIONAMIENTO ESTACIONAMIENTO CAFÉ ADMINISTRACIÓN TALLERES TALLERES TALLERES TALLERES TALLERES ESPACIO de REUNIÓN AUDITORIO TERRAZA TERRAZA TERRAZA CORTE A-A CORTE C-C
PLANTA 22 ±0.00 PLANTA BAJA A B C D B C D +13.20 PLANTA 4 +16.20 PLANTA 5 +19.20 PLANTA 6 +13.20 PLANTA 8 PLANTA 9-15 +49.30 PLANTA 16 PLANTA 17-18-20-21 PLANTA 19 LOSA 0.20M POSTIGÓN DE MADERA LOREM VIDRIO DVH CARPINTERIA DE ALUMINIO LOSAS SIN VIGA 0.20M COLUMNAS 0.75M SUBMURACIÓN 0.30M COLUMNAS 0.50M LOSAS SIN VIGA 0.30M (TERRAZA) MICROCEMENTO ALISADO CON PENDIENTE (1.5CM) CARPETA CEMENTICIA AISLACIÓN TÉRMICA (ISOCRET) CONTRAPISO DE CEMENTO DE CASCOTE AISLACIÓN HIDRÓFUGA MEMBRANA ASFÁLTICA 1 3 2 5 4 IMPEARMIBILIZACIÓN DE CUBIERTA +4.20 PLANTA 1 +7.20 PLANTA 2 +10.20 PLANTA 3 +22.30 PLANTA 7

Turn static files into dynamic content formats.

Create a flipbook
Issuu converts static files into: digital portfolios, online yearbooks, online catalogs, digital photo albums and more. Sign up and create your flipbook.