Cheng Yu Tung Building, Jesus College Oxford Brochure

Page 1

Cheng Yu Tung Building Jesus College Oxford

View of historic context from inside Cheng Yu Tung Building digital hub

Foreword

Oxford has an extraordinarily rich architectural heritage. The University and it’s colleges have always been determined to ensure that when they build, they build not just for the current generation, but for those to come.

This book describes the recent completion of MICA Architect’s Cheng Yu Tung project at Jesus College. The process of developing CYT been iterative and thorough with extensive conceptual, planning, archaeological & detailed design phases prior to a carefully considered construction stage.

Cheng Yu Tung opened in Autumn 2022 and it is now wonderful to see the building complete, open and busy. The new mix of spaces and uses has immediately realised the benefits of additional space for the College and has immediately enhanced living and learning facilities for Jesus, that the project promised

It has been a great privilege to work with Jesus College and its wonderful staff who take building projects (rightly) very seriously, respecting and understanding the process of building a good building.

MICA Architects 3

Heritage

Informed by

Sustainability

Retail and health

Ecological strategy

Public realm

Construction 42

Strategy

A responsible design

Cross Laminated Timber

Local Stone

Link between new and old

Completion 54

External form

Internal spaces

Details 80

Materiality

Interiors

Wayfinding & signage

Practice 88

Client testimonial

Social value

Project details & awards

Practice

MICA Architects 5 Opposite View of completed Cheng Yu Tung Building A mixed-use development with ground and first floor retail on the busy thoroughfare of Cornmarket Street Contents
Summary 7 Site Strategy 9 Setting Understanding the need College history Masterplan Design approach 18 Competition
Foreword Project
Collaboration Programme
assessments
context

Summary

The Cheng Yu Tung Building for Jesus College is a prominent and unique mixed-use building in central Oxford, which brings together teaching, retail, research, NHS healthcare and student living within a 21st century third quad for the Elizabethan college.

Turning a back, to a front

The scheme is a major addition and new active building in Oxford’s evolving city centre providing high quality new retail space, combined with new teaching and social facilities for the student community, turning a previous unsightly ‘back’, to a positive ‘front’. Retail is topped by student residential and communal college space consciously made visible from the public realm to reinforce the building and its diverse uses as an important part of the city. The building and its extensive new landscape significantly increases step-free access to the historic multi-level College and transforms the legibility and transparency, of a traditionally closed environment. At its centre a tiered forum provides a gathering space for the College as well as a new facility for interdisciplinary digital research and immersive display & visualisation. Above a new generous entrance, a gatehouse is topped by a new tower room gallery with striking views, at close quarters, across the Dreaming Spires of Oxford and a new landscaped Market Street, an important Oxford thoroughfare.

Design approach

The design of the building takes cues from the existing College architecture and context to provide a striking contemporary design in a sensitive urban context with a dynamic and responsive facade. Harnessing embodied carbon the scheme reuses an existing buildings concrete structure, with the majority of new structure being carbon-negative pre-fabricated cross laminated timber. The scheme is central Oxfords first new all electric building complemented by on site energy generation with a discrete Photovoltaic array and a Ground Source Heat Pump generating 40% of the building's needs, both successfully navigating Oxfords onerous skyline and archaeological rules.

Working hard

The £34m, 8090 sq/m scheme delivers a rich mix of teaching, dining, NHS healthcare, retail, socialising, faith spaces, cafe, exhibition, roof terraces, common rooms, wellbeing, study and residential, doubling the accommodation on the site and bringing together distinct functions in a complimentary way. The scheme was value engineered at contract stage to achieve the prescribed budget. The brief met and largely exceeded all brief requirements supporting the Colleges long term vision and has been a popular addition to the college, home for new students, additional study and social space and a home for vital Oxford NHS services.

MICA Architects 7
Opposite Page View of completed Cheng Yu Tung Cornmarket Street elevation. A dynamic and responsive façade using natural materials in a sustainable approach
Setting Understanding the need
history Masterplan
Site Strategy
College

Site strategy

Jesus College Oxford Setting

Jesus College is uniquely located in the heart of the Oxford city centre, between Turl Street, Ship Street, Cornmarket Street and Market Street.

From the outset, the aim was to design an environmentally sustainable building that would enhance the public realm in area of the city centre so rich in history but which had suffered a significant drop in footfall in recent years. The College also wanted to become more outward-facing; reducing the physical barriers between the local community (and visitors to Oxford), and people who live and work in its buildings; and providing a new venue for public

events, exhibitions, performances and conferences in the city.

Working in conjunction with the College’s Strategic Plan 2017 – 2021, MICA developed designs to meet the College’s ambitious targets for expanding and enhancing the core academic priorities and purpose of the College.

A strategic masterplan for the College was followed by concept work for key new developments, spaces and landscape designs.

10 Jesus College, Oxford
MICA Architects 11
Fellows’ Garden Fellows’ Library
Northgate House (Cheng Yu Tung Site)
Second Quad First Quad Covered Market Cornmarket
Street Market Street
Turl Street
Aerial view of Jesus College 2016 Plan diagram of Jesus College with Northgate site highlighted Historic buildings surround the College’s second quad

Site strategy

Understanding the need

Jesus College and MICA worked together throughout the process. At the beginning MICA undertook research and put together a document consolidating the history of the site, significance and potential links to the college.

The in depth research included various archives, museums and documentation of Oxford. It was complimented by in depth conversations with the college on how an

expansion to the west would enhance and enrich the existing college with all it has to offer.

This positioning of the design team and the relationship with Jesus College resulted in a scheme which from the beginning had to serve two users, the town with its shopfronts and activation and the gown embedding it into college life with teaching spaces and accommodation.

MICA Architects 13 Looking west along Market St 2016 Cornmarket Street 2016 Brief areas and indicative distribution across floor levels of Northgate House (competition scheme) G B 1 2 3 4 G B 1 2 3 4 G B 1 2 3 4 G B 1 2 3 4 G B 1 2 3 4 G B 1 2 3 4 G B 1 2 3 4 Developing an understanding of the need and preparation of the brief

First Quad - 1630s

Jesus College was founded in June 1571, the only Oxford College founded during the reign of Queen Elizabeth I. Principals of the 1600s attracted donations and their efforts resulted in the erection of the First Quad.

Second Quad - 1713

Construction of the Second Quad began in 1639 but was only completed 74 years later due to the effects of the English Civil War.

Third Quad - 1908

The Third Quad integrated a new science laboratory (now the Meyricke Library) and the Old Member’s Building was opened in 1971 by the then HRH The Prince of Wales.

The most important event in the later 20th century was the admission of women as students in 1974. Jesus College is one of the first five Colleges in Oxford to become co-ed.

14 Jesus College, Oxford
Jesus College Plan (City of Oxford, A Survey and Inventory by the Royal Commission on Historic Monuments, Pg 61, 1939) Jesus College historic Quad 1850 1675 pictorial map

Site strategy

Anchored in the history of the college

Jesus College was founded in 1571 under the reign of Queen Elizabeth I, making it the only Elizabethan College within the University of Oxford. The team reviewed the College setting and future-proofing with an aim to allow for another 400 years of adaptation and change.

Jesus College Campus and the adjoining streets form the historic core of the centre of Oxford, located within the medieval city walls and on the site of the Saxon town and over the historic street pattern. The site is archaeologically rich, in the

immediate context of 22 listed buildings, a scheduled monument, at the centre of the Conservation Area and within the protected view cones of the protected ‘dreaming spires’ skyline of Oxford.

The historic site has a large range of statutory and advisory bodies including OCC, OCS, OPT, Historic England, Victorian, Georgian and Twentieth Century Society and Oxfordshire County Council. MICA worked together with the college and stakeholders to ensure the new scheme enriches it’s environment.

MICA Architects 15
2017 Archive research at Jesus College Historic England Accommodation briefing with College
16 Jesus College, Oxford
Combined Ground Floor Plan showing connections
JCR Future Connection to Level 2 Future College Use Level 1 Meyricke Library Third Quad Second Quad Second Quad First Quad First Quad Chapel Teaching Hub Hub Cafe Fourth Quad Fourth Quad Event Space
Section through proposd development illustrating new link to existing college quads

Site strategy

Working in conjunction with the College’s Strategic Plan 2017 – 2021, MICA developed designs to meet the College’s ambitious targets for expanding and enhancing the core academic priorities and purpose of the College.

The masterplan process commenced by defining a brief, establishing a series of questions, College needs and priorities. Through extensive internal consultation the masterplan considered the following:

– The needs, configurations and impacts of a major new College building

– Future expansion and re-purposing opportunities

– Public realm and landscape changes

– Retail scenarios

– Step-free access routes

– New College bike stores, workshop and support facilities

– Detailed consideration for the existing Meyricke Library

– Study space across the College

– Re-purposing of a number of the medieval and 18th Century rooms and suites.

– Decarbonisation.

MICA developed a strategic masterplan followed by concept work for key new developments, spaces and landscape for

MICA Architects 17 Masterplan approach Fund raising model Reconfiguring the Fellows Garden to provide large he new space opens out onto Market Street at its south end and provides new vista to the existing library at the north. Large new south-facing landscape spaces are provided at first and second floor levels. The spaces are enclosed and sheltered and could be landscaped, planted the Jesus College city block. Our scheme provides connections the existing College as well as providing roofs and perimeter (space defining) buildings characterise Jesus and language that we have The NGH is prominent site presenting significant between college and city which appears from the brief to be desire the college. THE THEMES 01. A New Approach 02. A Fourth Quad 03. Wider Connections 04. Contextual Response 05. Opening Out + + + The following key moves have informed our design. Outputs from Jesus College Masterplan Strategic Plan

Design approach

Competition

Collaboration Programme

Heritage assessments

Informed by context

Sustainability

Retail & Health

Ecological strategy

Public Realm

Design Approach

Architectural Competition

The architectural competition was launched by the College, having identified a need for new accommodation. MICA won the competition to design a new mixed use student hub in 2017.

Our response incorporated a strategic analysis that aligned individual needs against the parameters of the site, revealing the potential of areas of the College that had not previously been considered for development. In particular, we identified opportunities to separate disparate functions to better suit college life.

On an urban scale, the new development creates a fourth quad, a new gatehouse and a modern dynamic façade treatment. Our design provides a cornerstone to Oxford’s continuous development of the central retail on Cornmarket, while simultaneously allowing for the College’s expansion. The development both encloses a new quiet quad and terraces enjoying spectacular views together with new outward looking spaces which will make the colleges current ‘back’ a positive ‘front’.

Defined Landscapes & Terraces

Positive Frontages

Innovative Spaces

New College ‘Approach’

20 Jesus College, Oxford
MARKET STREET CORNMARKET STREET
MICA Architects 21
Concept sketch of design Alignment of approach with college vision set out by Governing Body: the design creates an innovative central learning hub and external landscaped spaces arranged across multiple levels for learning, gathering and rest.

Architectural Competition

22 Jesus College, Oxford
retail frontage
Fourth Quad
Activated
A
Visualisations of proposed designs
MICA Architects 23
Linking town and gown Opening Out Digital Hub
24 Jesus College, Oxford Existing Provisions CLUSTER FORMATIONS Fellows Building Ship St Centre 3-5 Ship Street QUAD MULTI-FAITH TYPICAL EXISTING PROVISION UNDERGRADUATE ROOMS K K K K K L L Third Quad K K L Different typologies exist across College regarding accommodation, whether corridor-style, pointAbstract formation of proposed clusters (10 rooms to one shared kitchen) and shared living room lounge spaces. repeating of the larger formations around quad with ancillary gym, multi-faith and landscaped areas. CLUSTER FORMATIONS Fellows Building Ship St Centre 3-5 Ship Street QUAD MULTI-FAITH GYM TYPICAL EXISTING PROVISION UNDERGRADUATE ROOMS POSTGRADUATE ROOMS K K K K K K L L L Third Quad Different typologies exist across College regarding accommodation, whether corridor-style, pointaccess or mixed. Abstract formation of proposed clusters (10 rooms to one shared kitchen) and shared living room lounge spaces. repeating of the larger formations around quad with ancillary gym, multi-faith and landscaped areas. Room equiped with: En-suite WC/Shower / Bed Desk space Storage Comfy chair Multi faith room Studio (tbc) Abstract formation of proposed clusters (10 rooms to one shared kitchen) and shared living room lounge spaces. repeating of the larger formations around quad with ancillary studio, multi-faith and landscaped areas. Different typologies exist across College regarding accommodation, whether corridorstyle, point access or mixed. Cluster 1 kitchen lounge per 8-10 bedrooms (with potential to create some 5-6 bedroom clusters by splitting kitchen lounge) 2-3 clusters form a unit. Total of 70 postgraduate rooms. accessible rooms (1 in 20) unit shares circulation and living/lounge space. College shares quad, gym/studio and multi-faith space. Indicative location of accommodation and well-being spaces at upper floors of Northgate House (NGH) (from competition scheme). Fellows’ sets Arrangement Postgraduate Rooms K L L KEY Number of Fellow sets TBC (between 7-10) Fellows’ rooms to be clustered together and possibly have distinct circulation from that of postgraduate use. Preference to locate Fellows’ rooms at highest floor levels and preferably away from busier Cornmarket Street. Fellow’s rooms to be separate from postgraduate rooms Summary of core objectives for project brief. Accommodation 03 EVENTS 02 ACADEMIC 01 ACCOMMODATION 05 WIDER CONNECTIONS JESUS COLLEGE NORTHGATE HOUSE – GOVERNING BODY 10.07.17 04 DIGITAL HUB GB01

Design Approach

Collaboration

Early community engagement

Community engagement in the project was a priority. MICA established a consultation strategy which involved engagement of all college members, students, staff, fellows and alumni at all stages. Involving the steering group in reviewing their existing buildings and identifying elements that work and are desirable for the new scheme. Discussing with all college members what a new study space, a digital hub and communal living should look like. Simultaneous to the engagement with the college we engage with the community via public consultations, publications and workshops with key stakeholders.

Consultation consisted of:

– 80 consultation meetings (including visits of reference projects)

– Executed a number of surveys

– Website updates

– 7 Governing Bodies presentations

– Stakeholder meetings with local businesses,

– Oxford City Council,

– Conservation Groups,

– Alumni consultation and events.

Fellowship of 205

– Regular workshops with Design Working Group

During construction the College realised what a unique opportunity the building site hoardings provided to not only engage with the local community but also tell the story of Jesus College; its history, people, research and values of innovation, academic excellence and inclusivity. Sited predominantly on Cornmarket, the hoardings presented colourful and accessible information on the College, and the role the new building will have in shaping the future of life in the digital age.

MICA Architects 25
Opposite Pictures show : Presentations and exhibitions to stakeholders, client team and students, VR used to allow clients to experience new spaces, physical models used to communicate designs.
26 Jesus College, Oxford COMPETITION BRIEFING CONCEPT DESIGN DEVELOPED DESIGN TECHNICAL DESIGN 2016 2018 2019 2017
View over the College’s spires

Design Approach

Programme

MICA worked with Jesus College and as Design Lead we coordinated a large multidisciplinary team from inception to completion. The team included: structure, civils & drainage engineers, MEP and sustainability consultants, planning, rights of light, ecological, arboriculture, archaeological, transport, fire, acoustic and specialist catering.

MICA worked to steer the project through all permissions, the tender process and coordinating the team through the complex detailed stages of the project with the client recognising the ability and position at the centre of the process to effectively manage the teams efforts. By maintaining a close and collaborative relationship with the client and contractor teams, a mutual trust and understanding led to a transparent process which benefited the wider consultant team and project as a whole.

Delivering in time and to budget

Jesus College clearly set a vision and an initial brief and in the early stages a budget and programme were defined which included the implementation of a Design and Build contract and a phased handover. The budget was driven by donations and the College’s business case which had been developed with considerable input. Throughout the design and construction processes the college’s fundraising team worked to build on existing funding streams with assistance from the MICA team in the coordination of marketing images and documents.

Delivering the project was an holistic and fully collaborative team effort from start to finish.

MICA Architects 27 CONSTRUCTION 2020 2021 2022 IN USE

Above + opposite

Pages extracted from MICA’s heritage assessment which describe and illustrate areas of architectural significance

28 Jesus College, Oxford c1625 c1904 c1886 1639 1641 c1939 c1963 c1679 c1683 North Range of the Principal’s Lodging Ship Street South Side New building constructed for Marks and Spencer Ltd Northgate House The South part with Library finished 1679 The South end remodelled and refaced Contains early C18 panelling and late C17 staircase The Library has woodwork of 1626 and later Land appears to be acquired from Christ Church College circa 1683. Built circa 1625 by Sir Eubule Thelwall Gables replaced by embattled parapet 1733-41 Additions made in 1886 in Milton stone • The South front refaced in Clipsham stone in 1920 Contains early C17 panelling and fireplace Built during this timeframe with the aim to finish as second quadrangle Late C19, perhaps 1886 Much altered in 1968, ashlar, 3 storeys, and light mullioned windows with leaded lights Castellated parapet, hipped slate roof, alterations 1967 Late C19, perhaps 1886 • Much altered in 1968, ashlar, 3 storeys, 2 and light mullioned windows with leaded lights Castellated parapet, hipped slate roof, alterations 1967 Designed by Lewis Hickey Architects Portland Stone faced building Demolished 1959 to make way for expansion North Range Principals Lodgings Second Quadrangle north & South Range Second Quadrangle Fellows Library & partial South Range Fellows Garden Jesus College Oxford, Northgate House Heritage Assessment MICA Architects 17 NORTHGATE HOUSE JESUS COLLEGE, OXFORD HERITAGE ASSESSMENT 2018 643-71200 REV PL2 30 JAN 2018
Jesus College, Northgate House Heritage Report 2.6 HERITAGE ASSESSMENT Major George Allen Air Archive, AA1691 (Neg no. 0912x), Oxford, from South, 05/06/1933 Image © Ashmolean Museum, University of Oxford.
1675 Engraving by David Loggan. Jesus College, showing the Turl Street face of the college, with the chapel on the right adjoining the gardens of the Principal’s lodgings. c1907. Henry W. Taunt, Cornmarket Street, Oxford, Oxfordshire. The street viewed from the junction with Market Street.

Design Approach

Heritage Assessments

MICA developed how to merge the new building with the existing, via historic analysis of setting, sequencing of the building plot and materiality. MICA included plans identifying the development of college through the ages. Another tool used to inform the later design was to understand the façade during the ages and how Cornmarket and Market street have developed. This was embedded in the Heritage Statement and the final Design.

Via this analytical and sequential approach, we ensured that we understood the restoration of the listed elements and how to respond with the new design to the history and the story of place. The new build reacted to the historic buildings through architectural articulation, materiality, and a new adaptation of the historic language.. The areas where restoration was necessary it responded to significance, need, and restoration techniques discussed and agreed with the heritage bodies.

Immune from listing Northgate House Boundary (Cheng Yu Tung Site) Conservation area [all] 13-20 Cornmarket St & 11-19 Market St Second Quad First Quad Third Quad SHIP STREET MARKET STREET CORNMARKET STREET TURL STREET

StMary’sChurchChurchTomTowerChristCollegeMagdalenTowerRadcliffeCameraLincolnCollege Library AllSoulsCollege theStMichaelat NorthgateCarfaxTower

30 Jesus College, Oxford
2. St Peter’s Church (23.1 meters) 1. Bodlean Library (25 meters)
12m 10m 14m 16m 18m 20m 22m 24m 4. 5 6 7. 8 9. 2 3 1 N Hall building - Christ Church College Christ Church Cathedral Tom Tower St Aldate’s Church Merton College Chapel Carfax Tower Magdalen College Nuffield College Spire St Peters All Saints Church - Lincoln College Wesley Memorial Church University Church of St Mary the Virgin Radcliffe Camera All Souls College Exeter College Chapel Spire Sheldonian Theatre 1. 2. 3. 4. 5. 6. 7. 8. 9. 10. 11. 12. 13. 14. 15. 16. 1 2 3 4 5 8 10 7 11 9 14 6 Key diagram location tall elements 1 2 3 4 5 6 7 8 9 10 11 12 13 14 15 16 45.75m 44m 42m 40m 39m 22m
3. Carfax Tower (22 meters) 4. Northgate House (21.3 meters)
5. Jesus College Ship Street Tower
(20 meters)

Design Approach

Informed by context:

Tall elements and view cones

Oxford is famous for its skyline of ‘dreaming spires’. MICA reviewed some of the city’s key tall elements exploring their setting, height, detail and articulation, illustrated on this spread.

“And that sweet city with her dreaming spires, she needs not June for beauty’s heightening, Lovely all times she lies, lovely to-night!”

- ‘Thyrsis’ by Matthew Arnold, 1866

Spires and towers reach high above the low cityscape providing a strong silhouette along the rolling bucolic landscape in which Oxford sits. The Northgate House site nestles in between the spires of Lincoln College and the Wesley Memorial Church, centralised and sitting low with the hillside and trees of Raleigh Park behind.

The Cheng Yu Tung gatehouse is a continuation of the story of gatehouses, allowing an entrance into the college and providing a feature in the skyline.

MICA Architects 31
8. University College lodge (18 meters) 10. Oriel College lodge (14 meters) 9. Brasenose College lodge (19 meters) 7. Jesus College Turl St lodge (19 meters)
Ship 14m 12m 10m 16m 18m 20m
6. Balliol College lodge (19.5 meters)
32 Jesus College, Oxford Cornmarket Street current situation Cornmarket Street proposed 13 - 21 Cornmarket St 13 - 21 Cornmarket St 13 - 21 Cornmarket St Market St Market St Market St Ship St Ship St Ship St

Design Approach

Informed by context:

Streetscape Analysis

The design team analysed the surrounding existing buildings, the historic street patterns, heights, fenestrations and articulations. The new build provided a unique opportunity to rejuvenate a central building block. MICA took an approach of responsive articulation.

Cornmarket as retail street is defined by the requirements of retail but the design gives back clues of the historic building blocks and bookends.

Coursed Ashlar

(A stone façade of generally square or rectangular units having sawed or dressed beds).

Stone Window SurroundOgee Moulding

(Decorative stone deviating from a plane surface by projections, curved profiles, recesses or any combination thereof).

Transoms(The horizontal stone bars that separate window and/or glass).

String Course(A horizontal band of masonry, generally narrower that other courses, extending across the façade of a structure, usually moulded).

On Market street the language was driven by the opening up to the college and the introduction of a new Gatehouse.

Variation of height for the overall massing, visible roofscapes, dormers and fenestrations that take clues from the existing buildings are key to create an embedded articulation. Using all these elements the facade creates dynamic response that is anchored within the architectural history of Oxford.

MICA Architects 33
Head mould String course String course Window reveal Bronze window sleeve Sloped window cill

643 - Cheng Yu Tung Jesus College

Project

Sub-standard

Business as usual

2025 Targets

2030 Targets

643 - Cheng Yu Tung Jesus College

Project

DIagram illustrating key energy strategy proposals

MICA tracks the sustainability metrics for all our buildings to benchmark against RIBA 2030 and achieve optimum environmental standards

Sub-standard

Business as usual

2025 Targets

2030 Targets

34 Jesus College, Oxford
Carbon Operational Energy and CO2 (kWh/m2/year) 61.45kWh/m2/yr and 31.89 kgCO2/m2/yr - regulated Sustainable Connectivity (kgCO2e/km/person/year) Operational Energy 61.45kWh/m2/yr Passive design measures Communities and Social Value Good Health and Wellbeing Waste Embodied Energy 461kgCO2e/m2 includes sequestration Water Cycle 73.21 litres / person/ day Biodiversity (increase in species) Sustainable Life Cycle Value (£/ Carbon Ecology Wellbeing
Type Education Non Domestic Domestic / Non Domestic Certification Bespoke between Passivhaus / BREEAM / WELL
Project
RIBA Stage 7 Project Type Enter here
build GIA
New
Sustainable Connectivity (kgCO2e/km/person/year) Operational Energy 61.45kWh/m2/yr Embodied Energy 461kgCO2e/m2 includes sequestration Water Cycle 73.21 litres / person/ day Biodiversity (increase in species) Sustainable Life Cycle Value (£/ Carbon Ecology
Type Education
Domestic Domestic / Non Domestic Certification Bespoke between Passivhaus / BREEAM / WELL
Project
Non
Stage 7 Project Type Enter here
build GIA
RIBA
New

Design Approach

Sustainability Strategy

With longevity, sustainability and future climate in mind, as well as the College’s target to become net zero carbon by 2035, the development incorporates regenerative design principles by offering a highly efficient building which reduces energy and water usage, significantly lowering operational carbon. A bespoke system was put in place using the RIBA 2030 challenge and other components from Well, Leed, BREEAM and Oxford’s NRIA. All consultants and the client worked closely to establish and deliver these targets.

While the constraints of the central site limited orientational optimisation, the massing and detailing was carefully configured to harness solar gains, providing shading and maximising passive benefits. All public, social and teaching spaces are dual aspect, enabling natural cross ventilation. The integration of external spaces at each floor level gave the opportunity to significantly improve biodiversity. Local, nectar rich species

were planted, along with a wildflower green roof, to beneficially attract wildlife while improving wellbeing.

The building’s energy is generated through the integration of a GSHP. The system satisfies the heating and cooling for the teaching spaces as well as meeting the hot water load for the whole building. This is supplemented with 40m2 of PV panels.

The impact of future climate impacts was taken into consideration in the design stages with calculations for surface water drainage based on the potential of more regular extreme rainfall. Attenuation layers were incorporated into all external areas to deal with significant levels of rainwater and ensure no adverse impact on internal and surrounding areas. Overheating potential was calculated on a similar “worst-case” scenario basis and decisions on window specification, sizing, location and shading were made to meet these requirements.

MICA Architects 35

Design Approach

Retail and health services

This project provides over 3,000sqm of retail services. Early in the project it became clear that with its central location other services may benefit from new provisions and the accessible nature of the building.

Half of the provision is now let to the NHS over three floors with the majority in the basement. The remaining retail spaces are to be let to restaurants and shops. The College is taking a long term approach as tenant and is working closely with the tenants that the building can support all.

36 Jesus College, Oxford
Model of Cheng Yu Tung with retail spaces / uses highlighted
MICA Architects 37 Food and beverage Retail NHS community clinic
Basement Ground Floor First Floor

Design Approach

Ecological Strategy

In the early design stages, a Phase 1 ecology survey and a bat survey were undertaken to ascertain the existing conditions and highlight opportunities for the Cheng Yu Tung building to significantly enhance the biodiversity across the Jesus College campus. The previous building on site had only hard standing surfaces on roofs and no opportunities for planting and species.

The Space between the Cheng Yu Tung Building and the historic college site was previously known as the Fellows Garden and did provide some planting, trees and flowerbeds offering limited environments for birds and invertebrates. Following arboricultural advice, two Class C trees that were not in good condition were removed and one Class C tree and Acer were retained. The design for this area reinstated and improved the provision by widening it, adding additional planting opportunities through widened and new planters and introduced a new tree.

The new building includes a number of outside spaces within its design, responding to the diversity in height of neighbouring buildings, providing outside space for users and allowing for

an improved biodiversity offer. This is achieved with new planting opportunities on three levels allowing a total of 67sqm of planter and 52sqm of intensive green roof. A planting scheme was developed with Jeremy Rye, a landscape specialist, to ensure a holistic, diverse, nectar rich and resilient mix of planting was introduced. The planting design makes full use of the different climate conditions created from deep shade to full sun, to provide the full range of different biodiverse environments created through planting. The planting is native, natural and appeals not only to wildlife but is symbolic in terms of the herbalist properties and its historic references to plants valued by Welsh tradition; a fitting narrative for the Welsh College.

Additionally, to the planting the scheme integrates swift and bat boxes into the elevations in appropriate locations, ensuring suitable light and noise levels are offered to optimise their use. Overall, the project has allowed for a greater integration of local species and an improvement to the city centre with a range of planting through planters, climbers, trees and habitats for birds and bats.

38 Jesus College, Oxford

Bee keeper at Jesus College

Plan aerial highlighting areas and relationship to existing college quads

MICA Architects 39
Street
Street
Street
Quad
Quad Second Quad First Quad Principal’s Garden Suite B, Ideal House, Bedford Road, Petersfield, Hampshire, GU32 3QA Project: Drawing title: Drawing no: Date: Jesus College, Oxford 2210-TFC-00-00-0001 04.11.20 Planting palette Revision 02 Following discussion with Architects. Nepeta Six Hills Giant Colour: Grey/purple Height: 90cm Flowering period: June-Sept Medicinal uses: Fevers. Group C: The Fellows Garden Verbena officinalis Colour Purplepale-purple flowers. Height: 1m Flowering period June-Sept Medicinal uses: Eye problems, scorefula, wounds. Amagical herb to sweep away evil. Used to stanch Jesus’ wounds after his removal from the cross. Tanacetum parthenium Colour: White and yellow Height: 50cm Flowering period: June-Aug Medicinal uses: Bites, fetid breathe, skin eruptions, sore throat, wounds, eye problems, pneumonia Lavendula Colour: Grey foliage, Purple flowers Height: 60cm Flowering period: July-Sept Medicinal uses: Used for anxiety, stress, and insomnia. Foeniculum vulgare Colour yellow flowers, green/bronze foliage Height: Flowering period: July-October Medicinal uses: Bites, cough, erysipelases, eye problems, fevers, pneumonia, blindness. An attractive feathery plant with bright yellow flowers and an aniseed flavour and scent. Achilllea fillipendula ‘Coronation gold’ Colour: Yellow Height: 1m Flowering period: May-July Medicinal uses: Eye problems, fevers, scrofula, wounds. Alliums Colour: Reds and purples Height: 1m Flowering period: May-June Medicinal uses: Bites, cough, pneumonia, eye problems, skin eruptions, wounds Eryngiums Colour: Blue/grey Height: 40-90cm Flowering period: July-Sept Medicinal uses: Cough and painful urination. Rosemarinus officinalis prostratus Colour Purple Flowering period: March-May Height: 1m Medicinal uses Colds, fetid breath, fivers, mouth sores, sore throat. Canker of the mouth Salvia officianalis purp/tricolor Colour Silver/purple foliage. Blue flowerss Height: 40cm ht Flowering time: June/July Medicinal uses: Ague, bites, cough, fetid breathe, fevers, mouth sores, plague, sore throat, wounds The name ‘Salvia‘ derives from the old Latin Salveo, meaning ‘I heal’ or ‘I save’. Ruta graveolens Colour: Blue/grey foliage. Lime yellow flowers Height Flowering period: Summer Medicinal use: Abscess, bites, cough, fetid breath, fevers, mouth sores, plague, wounds Height 0.75m Ahardy evergreen shrub that has a unique aroma. The herb of grace. Echinacea purpurea Colour Purple Height: 1.5m Flowering period: June-Sept Medicinal uses: No direct links, but probably known to later the Physicians of Myddfai. Pulmonaria officinalis Colour Variegated/pink & blue Height: 0.1-0.5 Flowering period Late winter/early spring Medicinal uses: Conditions of the lungs. Hyssopus officinalis Colour: Royal blue Height: 75cm Flowering period: July – Nov Medicinal uses: Sore throat, wounds. Verbena bonariensis Colour Purple Flowering period: July-October Height: 1.5m Medicinal uses: Eye problems, scorefula, wounds. Planting specification
Ship
Market
Cornmarket
Fourth
Third

Design Approach

Public Realm: Market Street

Looking beyond the immediate College boundary, the masterplan has considered broader changes and far reaching improvements to the adjoining Market Street. The dramatic changes will benefit the public realm as a pedestrian thoroughfare, together with the approach and entrance to the College

It is proposed to extend the shared surface design of Cornmarket street into Market street.

Pavement and road will be on the same level, allowing large vehicles to circulate when shop delivery drop offs are allowed and pedestrians to move freely when vehicle related activities have been finished for the day. The extended paving will also provide cycle parking racks and blue badge parking spots, which will serve visitors to the Covered Market and the nearby Colleges. A choice of Yorkstone will complement the historic character of the street.

40 Jesus College, Oxford
MICA Architects 41 20 Jesus College Cheng Yu Tung Covered Market CORNMARKET STREET BRASENOSE LANE MARKET STREET Phasing Circulation and pedestrian flow A new square and public realm A natural vocal point Visual connections and a new openness to the Market A new Square A new Entrance New shop fronts New shopfronts Cornmarket Cornmarket Transition Transition Illustrative view of shared surface on Market Street Plan diagrams of new outdoor spaces, access and phasing of works

Construction

Construction Strategy

Responsible Design

Cross Laminated Timber

Link between new and old

Construction Strategy

Construction of the new building commenced in January 2019 and through four winters completing in Autumn 2022.

The building retained the existing .foundations, slab and basement walls but required dismantling of the existing structure on site before starting with the new building. The design team, with much careful design work and buildability studies ascertained the right mix of Cross Laminated Timber and concrete where required for loading.

The project had numerous challenges, numerous logistical challenges, from its City Centre location and vehicular access

restrictions which required careful delivery and site operations around key pedestrian routes along Cornmarket and Market Street. In addition to this, work on site began just before the start if the pandemic which slowed down progress and created new, unexperienced conditions of site working.

Careful sequencing was required to ensure smooth progression on site. 28 thermal piles were integrated into the existing foundations for the ground source heat pump system providing heating and cooling to the digital hub spaces. Materially, the project used 3689m3 concrete and 909m3 timber for the primary structure.

44 Jesus College, Oxford
AV set up complete Demolition Jan 2019 Feb Mar Apr May Jun Jul TERM TIMES DEMOLITION FACADE AND INTERNAL FRAME CONSTRUCTION FIT OUT ACCOMMODATION PHASE 1 FIT OUT ACCOMMODATION PHASE 2 FIT OUT STUDY SPACES Aug Sep Oct Nov Dec Vacant possession Construction main works 2020 2021 2022 Jan Jan Jan Feb Feb Feb Mar Mar Mar Apr Apr Apr May May May Jun Jun Jun Jul Jul Jul Aug Aug Aug Sep Sep Sep Oct Oct Oct Nov Nov Nov Nov Dec Dec Dec Dec Completion remaining Student accommodation East and South Range Completion remaining Student accommodation West and North Range
46
Jesus College, Oxford
GSHP Array 56m GSHP linked to plantroom in Digital Hub basement Section illustrating ground source heat pumps Construction commenced early 2019 drone shot of demolition within a constrained site

Construction

A responsible design

With a main contractor brought on board early, meaningful engagement was possible through the technical design stages. This was beneficial in that it allowed for details and specification to be developed collaboratively with information around supply chain issues largely mitigated. BIM360 was utilised to exchange information between MICA, the consultant team and contractors to ensure full coordination of each discipline and reducing on-site clashes to keep the project running smoothly.

The scheme is central Oxfords first new all electric building complemented by on

site energy generation with a (concealed) Photovoltaic array and a Ground Source Heat Pump (GSHP) generating 40% of the building’s needs, both successfully navigating Oxfords onerous skyline and archaeological rules. The GSHP system incorporates 28 thermal boreholes at a depth of 56m each in between the existing pile foundations. Significant analysis was carried out in collaboration with the structural engineers and specialists to determine the optimum setting out for the array and the geological constraints.

MICA Architects 47
and effective leadership, utilising Revit / BIM as a facilitator of collaborative working, maximising benefits to our clients.
Clear

Construction

Cross Laminated Timber

As well as working hard to reduce operational energy demands, it was also critical for the design of the building to also minimise embodied carbon. The existing 1960s building on the site was assessed for re-use and this allowed the foundations and basement structure to be retained, reducing the amount of material required. Structure up to the

second floor is primarily concrete with recycled aggregate, facilitating the long spans and flexible floorplans required for retail, and the structure above uses offsite prefabricated Cross Laminated Timber. This modern method of construction is a vital material for sequestering carbon, and offers benefits of quick, quiet construction, with coordination carried out in advance thereby minimising risks of on-site error.

48 Jesus College, Oxford
Photos of CLT construction

Zinc clad dormer windows to student bedrooms. Fixed glazing with openable window on cheek

Clipsham limestone facade with solid stone window surround details

Acoustic glazing to all student bedrooms facing Cornmarket Street

Oriel windows to retail spacescurtain wall system with anodic bronze PPC box surrounds Stone fins in front of retail space ventilation louvres

Retail glazed doors and curtain walling between tapered stone columns

Standing seam anthra-zinc roof

Insulation zone

CLT as primary structure of upper floors 30-160mm thickness

Fourth Quad blue roof with water attenuation

Concrete structure with recycled aggregatebasement to second floor

Retained basement walls, floor slab and foundations with new liner wall for thermal improvements

Architects 49

Construction

Local stone

The locally sourced natural Clipsham stone was specified as the cladding for the majority of the external facades, lowering embodied carbon by reducing the need for manufactured products.

Quarry visits and sample panels were carried out to guarantee high levels of

quality assurance allowing for stone selections and honing of detailing. This ensured that the delivered building met and exceeded the expectations for a building of this nature, expected to sit comfortably and assuredly next to the historic College buildings now and for generations to come.

50 Jesus College, Oxford
Photos of team visit to local clipsham quarry, and mock up facade panels
MICA Architects 51
Selection of contemporary completed stone details

Construction

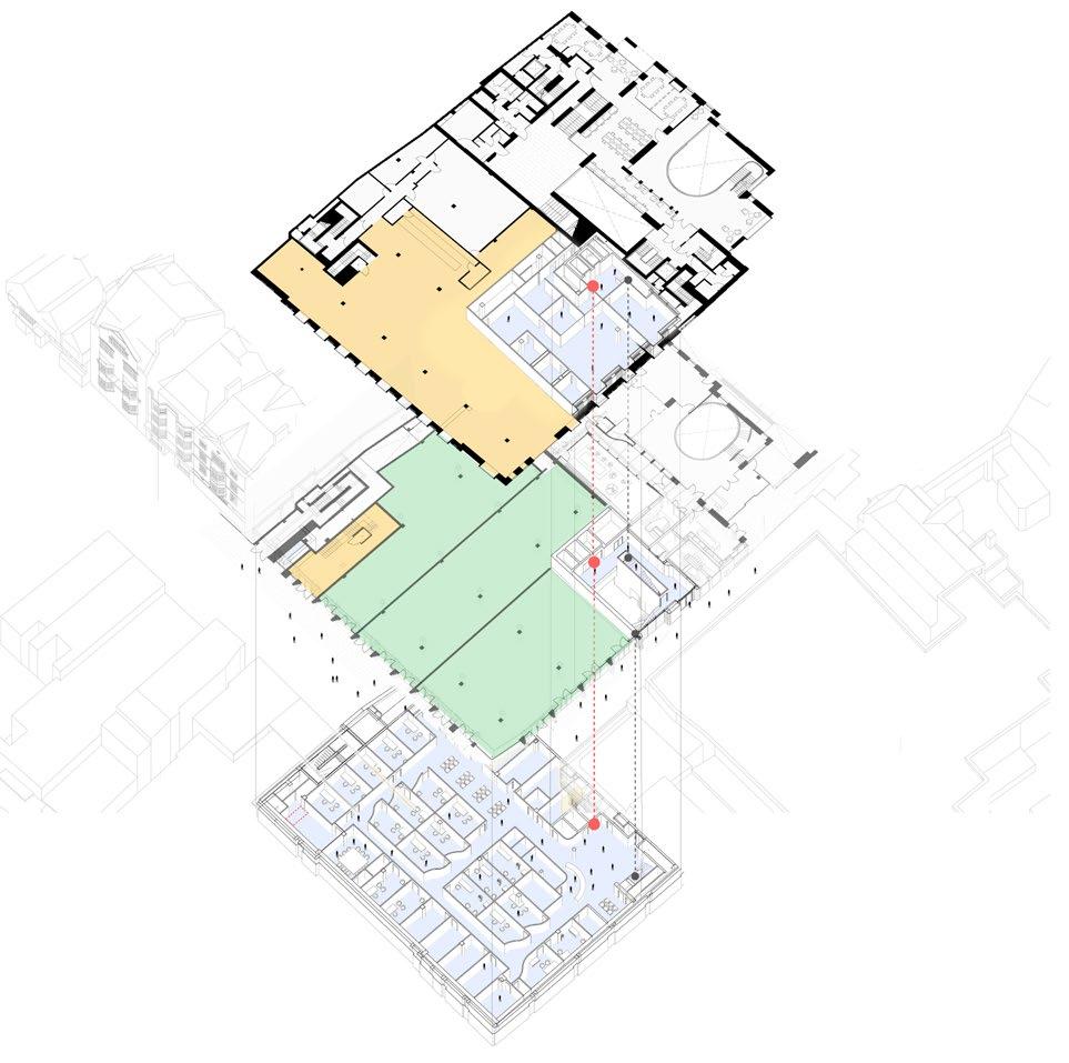
Creating the link between new and old

The Cheng Yu Tung Building is located to the South-West of the college block. To ensure its direct connection to other college spaces we reviewed various historic and potentially new connections. These connections are at Ground Floor level to link to the Second Quad and on First floor to link to the JCR additionally the direct response to the Fellows Garden.

The Link to the Second Quad involved opening up a historic route which was blocked up in the early 60’s with the opening up of fabric to the Westrange of the Second Quad and internal modifications. It now forms a natural route as College members transition between various spaces.

‘Before’ Prior to work Opposite ‘After’ link to new development better connecting social and educational facilities

Illustration

52 Jesus College, Oxford
MARKET STREET CORNMARKET STREET SHIP STREET TURL STREET SECOND QUAD FOURTH QUAD HALL CHAPEL JCR MCR HARPER ROOM LODGE SCR HABAKKUK ROOM 26-28 CORNMARKET ST ROOMS CAFÉ BAR EVENTS DIGITAL HUB TEACHING SPACES SHIP STREET CENTRE OLD MEMBERS’ BLDG MEYRICKE LIBRARY MEMORIAL ROOM NORTH ROOM MULTIFAITH HAROLD WILSON RM TO NORTHGATE HOUSE PRIMARY COLLEGE ENTRANCE SECONDARY SHIP STREET KITCHEN /LOUNGE STAIR XXIV STAIR XXV STAIR XXIII /LOUNGE /LOUNGE FIRST QUAD PRINCIPAL’S GARDEN THIRD QUAD Southeast axonometric section through Jesus College: - Ground level cut though First, Second, and Third Quads - First level cut through northwest site corner - Second level cut through proposed Northgate House College routes New college route from Market St entrance and Digital Hub bypass Existing and proposed principal points of access Proposed new connection between Second Quad and NGH Shorter route due to new connection Longer existing route no new connection College principal rooms New stair / accommodation points of access in NGH OVERALL PROPOSALS AND ROUTES
of new links across the college Analysis of existing college openings / quad links

Completion

External Form Internal Spaces

External form

Turning a back to a front

The scheme is a major addition to Oxford’s evolving streets and city centre providing high quality new retail space, combined with new teaching and social facilities for the student community, turning a previous unsightly back to a positive front. The building and its extensive new landscape significantly increases step-free access to the historic multi-level College and transforms the legibility and transparency, of a traditionally closed environment.

56 Jesus College, Oxford
‘Before’ site prior to work Aerial of completed activated frontage on high street Proposed massing and articulation within historic context

A new open and accessible frontage to position Jesus College as a leading institution for learning and research in Oxford

MICA Architects 57

External form

Responsive

The design of the building takes cues from the existing College architecture and context to provide a striking contemporary design in a sensitive urban context. The original College building material, Clipsham Stone, has been used, and carefully detailed to reference the existing College and provide varied facades responding to different environments. At its heart two unique communal spaces are designed to be seen from the street providing active frontage and a lantern to the space outside the building.

‘Before’ site prior to work

Opposite ‘After’ The new massing displays the retail provision on Ground and First Floor with residential accommodation above. The corner itself is marked with a larger window into the cafe / event space within the college.

58 Jesus College, Oxford
Cornmarket Street as built elevation
60
Jesus College, Oxford
Cornmarket Street as built elevation. Four levels of Ashlar cladding across the Cheng Yu Tung Building, including stone-clad columns and feature windows with detailed cills, complete this mixed-use development.
MICA Architects 61

Interior spaces

The multi-storey space is connected by a sweeping, generous stair which becomes a forum for up to 500 people to join large events, with integrated digital displays and connectivity for mass interactive events.

MICA Architects 63 Key 1. Digital Hub event space 2. Digital Hub breakout areas 3. Teaching / study space 4. Rest room 5. External route to Fourth Quad 6. Courtyard garden 7. New connection route to College 8. Retail 9. Entrance to NHS GP Surgery MARKET STREET COLEBURNE LANE CORNMARKET STREET 1 3 8 9 6 5 N 2 4 7 Ground Floor Plan
diverse
of uses
A
mix

Digital hub

A multi-level gathering space for knowledge exchange

The development provides much needed additional space and facilities within the College to meet requirements for teaching and research. The configuration of spaces and connectivity led to an improved network of spaces for the college and external spaces that contribute to the brief.

Digital Hub for modern pedagogy, a three-storey space with integrated

audio-visual technology is designed to promote interdisciplinary research and knowledge exchange.

It can accommodate up to 200 people over three floors and split into four separate meeting room areas for 50 people. The space has an additional front of house entrance off Market street to facilitate external meetings.

64 Jesus College, Oxford
“With this new development, we are not just embracing the future of learning: we’re shaping it.”
- Professor Sir Nigel Shadbolt, Jesus College Principal

Digital hub

66 Jesus College, Oxford
Sketches and models illustrate design development process of sculptural stair linking levels of the College The Cheng Kar Shun Digital Hub at its heart provides a fulcrum where the College communities converge

Study spaces

Delivering open and innovative education spaces - learning spaces range from lone study, to group work and teaching spaces and allow the students and researchers to engage across disciplines

68 Jesus College, Oxford
New links across the campus

Student living

Cheng Yu Tung building brings together residential study rooms, fellows flats, communal kitchens / living areas, new common rooms, a café, socialising spaces, faith spaces, exhibition, wellbeing areas, varying and flexible study and teaching areas, finishing kitchens and events spaces all focused around a unique new raised quad.

The four new graduate accommodation blocks, enjoy the most stunning views of the fourth quad and Oxford’s famous skyline

72 Jesus College, Oxford

“The Cheng Building has really enhanced how we live, learn and study in College. There are far more study spaces to choose from in addition to the College library, a brand new multi faith room, and the café, which is a great location to chat with friends or meet in study groups.”

MICA Architects 73
Key 1. Digital Hub meeting rooms 2. Cafe / study space
N Second Floor
1 2 3 4 4 4 5 5 5 5 5 6
3. Cafe kitchen / servery 4. Student bedrooms 5. Student kitchens 6. Fourth Quad
Plan
74 Jesus College, Oxford Note: To sheets. For key Drawings schcedules. Drawing primary drawing. Floor college. Kitchen High louvre TBC Ceiling Elementa fixture out. Tbc For NOTES DO CONTRACTOR ANY ARCHITECT COPYRIGHT Postgrad Room-2.24A-01 Postgrad Room-2.24A-02 02 Room signage / notice board set within timber door reveal Pin board Fitted head board Fitted timber shelving Built-in wardrobe - Including space for Mini fridge Ensuite shower room Built in storage & bench below window Double bed Desk
Student room arrangement with
ensuite
New en-suite study bedrooms, with fantastic views, received positive buzz from students

Student living

MICA Architects 75
Built in study space in student room
Social kitchens

The fourth quad

Integrating landscape

The College arrangement centres around a new quad which has been developed on the second floor and linked via steps to the Fellows Garden. We worked with landscape designers to define the planting design and deliver an outstanding, robust and changing landscape.

The introduction of external spaces, integrated into the design at each floor level, gave the opportunity to significantly improve biodiversity across the urban site. Local nectar rich species were planted along with a wildflower green roof, to beneficially attract insects and other wildlife.

New raised landscapes with biodiverse native planting

Tower gallery

Making the most of the skyline

A new gatehouse for Jesus College providing a gallery and events space with exceptional views over the dreaming spires of Oxford.

The building’s massing responds to the surrounding buildings and a new defined roofscape design creates key views both from within Oxford and from outside.

A multipurpose space which provides opportunities for meeting, seminar, dining and exhibition. The space is served by lift, stair and from a finishing kitchen below and through large picture windows enjoy breathtaking and unmatched views across Oxford.

78 Jesus College, Oxford
Completed space set up for various uses within the tower room eg. hosting dining events or arts functions A building full of light and warmth; a building that is inviting and welcoming to visitors and College members alike.

Details

Timber panelling and ceiling lattice adds an enormous amount of warmth, depth and drama to the spectacular tower room gallery which can also be used by the college for special events

Details

Materiality

Jesus College is rich in detail within its existing buildings, varying between the different ages of installation. The new building uses different pallets for materiality and detail depending on the location. The external is taking cues of the existing building with its Clipsham stone and moulding. Internally the Gate house with its elaborate timber panelling take cues from the hall. The digital hub being a new state of the art gathering space takes quality of materials from the existing whilst presenting a new form merging a white canvas for presentations and display whilst using a historic reinvented shape of a forum.

82 Jesus College, Oxford
Images on this spread illustrate how existing / heritage features and materials of College have influenced the palette for the new spaces and forms of the Cheng Yu Tung Building
MICA Architects 83

Details Interiors

The Cheng Yu Tung Building features a broad spectrum of spaces and uses that called for practical, high-quality interiors that would effortlessly form a backdrop to daily college life, whether that be teaching or living.

One of the foremost volumes is the Digital hub and teaching areas, these allow the students and researchers to engage across disciplines, to share their research and to explore the most pressing challenges of the 21st Century. While it is one large, connected space, our design also creates smaller nooks for intimate group socialising within the space and it can play host to a range of interactions simultaneously.

Moveable partitions allow spaces to adapt and change to the needs of its users while maintaining a consistent identity. Interiors have been holistically designed to create a common building language and character. Engineered oak flooring and wall panelling contrast to muted backdrops and glazing that affords views into spaces beyond and newly formed planted landscapes that become an extensions of interior rooms.

Material, colour, and texture is uniform and classic thought the whole, affording a certain timelessness that will serve Jesus College for generations.

Furniture choices complimented the wider building fabric - Working closely with client budgets and timescales MICA provided furniture layouts and options that worked with building interiors – pieces were chosen to ensure design quality, longevity, and sustainability.

The primary chair for the student and café spaces for example is the Rely, by Hee Welling for &tradition – a fully recycled EU Ecolabel certified product. In addition, design classics have been used throughout the dynamic Digital Hub and teaching spaces such as Ole Wanschers Colonial Chair for Carl Hansen.

84 Jesus College, Oxford
Opposite Interior details of spaces with warm finishes and contemporary yet robust furniture
MICA Architects 85

Wayfinding & Signage

MICA carefully developed the signage approach with the client team to establish a suitable set of design principles to be employed on all signage, from wayfinding and manifestations, to Donor recognition. The outcome of such a process ensured continuity and single language across the building that can be replicated in the future – protecting the buildings identity.

Working closely with the manufacturers has ensured that signage within the Cheng Yu Tung Building is uniform, clear, and also subtle so as not to visually distract from the wider spaces. A similar cohesive strategy for furniture selection, and interiors make the building accessible and enjoyable to visit.

86 Jesus College, Oxford
Dry Riser Inlet Dry Riser Inlet Water Top-up Inlet Dry Riser InletELEVATION Dry Riser Inlet Ground Level Stair XXVII - - - - -- - - - - -
Technical detail of signage design and position in context
In-situ donor signage in central digital hub
1:1 signage mock-ups / tests
MICA Architects 87

Practice

Client Testimonial Social value Project Details + Awards Practice

Practice

Client Testimonial

The Cheng Yu Tung Building is the culmination of an ambitious five-year project to create new spaces at Jesus College Oxford, and is the largest physical transformation of the College since the early 18th century.

From the project’s outset, MICA Architects provided a highly professional service and deep understanding of the College’s many requirements and expectations for the building – the creation of high quality and high-tech spaces for teaching, meetings, study and research, new accommodation and facilities for its postgraduate community, appealing commercial retail units, and a state-of-the-art Digital Hub that aimed to become a locus for collaborative academic endeavour across the University and globally. They also understood the complex nature of delivering a new building adjacent to the College’s Grade 1 Listed buildings on a small footprint in a mixed-use urban setting, and worked extremely collaboratively with the College’s project management group, the constructors, employer’s agent, the local planning department, and other related partners throughout the project. They were responsive to change requests, and offered pragmatic solutions when challenges arose.

“From their first presentation, through the various design and planning stages to the construction and completion of the development, MICA has shown an extremely high-level of professionalism. This project involved a large number of partners, meticulous planning and attention to detail, so collaboration and flexibility was key. The MICA team provided unwavering support and insight when challenges arose, and demonstrated their unique creativity and professional insight to find solutions. The new building is a testament to their commitment and understanding of the College’s vision.”

The development has been transformational for the College. Inspired by its vision to be more open and accessible, MICA have contrived an innovative building full of light and warmth; a building that is inviting and welcoming to visitors and College members alike. This extends to the lower ground floor, which is now home to an NHS primary healthcare centre servicing 20,000 local residents. The raised Fourth Quad has given the College additional and much-needed outdoor space in which tutorials are often conducted in the summer months, and where students can relax, enjoy a coffee from the new café, and study. It has also hosted a number of large College events and staff parties.

Jesus’ postgraduate students join the College from around the world, and their new facilities provide a real home-from-home, delivering comfortable spaces in which they can live, study and socialise. The Cheng Yu Tung Building has put Jesus College firmly on the map as a leading academic institution for learning and research at the University of Oxford, and has been welcomed by the Oxford community.

90 Jesus College, Oxford

Practice

Social Value

Promoting construction industry skills

MICA and the College also provided site tours for key stakeholders, members of the College community and select groups of alumni and friends. During 2021-22, MICA welcomed several groups of Architecture students from the University of Oxford and Oxford Brookes University, and students from local HE colleges, to site to learn more about the project, and promote the variety of jobs available within the construction industry.

92 Jesus College, Oxford
MICA Architects 93

Practice

Details

Client Name Jesus College

Address Turl St, Oxford OX1 3DW

Scope RIBA stages 0-7 Full design service from masterplan to completion, Principal Designer, POE (in progress)

Form of procurement 2-Stage Design and Build (MICA novated at Stage 5)

Coonstruction value £34m

Key dates

Appointment following design competition: March 2017

Part 1 – September 2020 (Link and bike shelter)

Part 2 – February 2022 (Accommodation)

Part 3 – May 2022 (Education Spaces and Landscape)

Occupation 26.09.2022

Gross internal area 8,090m2

Awards

Civic Trust Awards 2024 – Winner

RIBA Awards 2024 – South Shortlist

AJ Awards 2023 – Shortlisted

Oxford Preservation Trust Awards 2023 – Winner

OxPropFest Awards 2023 – Project of the Year

Thames Valley Property Awards 2023 – Commercial

Development of the Year – Winner

FX Awards 2023 – Winner (PublicSector)

Team

Main Contractor BAM Construction

Project Manager Bidwells

Planning Consultant Oxford City Council

Structural Engineer Smith and Wallwork

M & E Engineer Elementa

Env. Consultant Elementa

Building Control Oxford Building Control

Quantity Surveyor Gleeds

Fire Consultant Bureau Veritas

Acoustic Consultant Auricl

Principal Designer MICA Architects

Cost Management Gleeds

Landscape architect MICA + Jeremy rye

Major sub-contractors

KLH (Cross Laminated Timber)

Szerelmey (Stone work)

Alucraft (Glazing)

Sustainability / Energy

– Bespoke benchmarking system which took elements from BREEAM, WELL and LEED

– Meets RIBA 2030 targets

– Alongside this, the local Oxford Natural

– Resources Impact Assessment (NRIA) was used as a benchmarking system for planning

– The EPC rating as built is 13 (A rated)

Carbon Emissions (kg.CO2/m2/ year)

94 Jesus College, Oxford
Operational Energy (kWh/ m2/year) Regulated 61.45 31.89 Unregulated 36.88 19.14 Total 98.33 51.03

Practice

MICA is an international award winning practice based in London, Oxford and Edinburgh. The studio comprises architects, conservation architects, landscape and Passivhaus designers working across multiple sectors at a range of scales maintaining the same rigour and attention to detail throughout.

MICA has a wealth of experience of designing and delivering cultural, educational and arts venues across the UK, including Hay Castle, The Honourable Society of Lincoln’s Inn, Horniman Museum and Fairfield Halls. The practice is an industry leader in transformative retrofit designs and working in complex and historic sites, and was recently crowned UK Architect of the Year.

Building upon the reputation of design quality established by the partners over 20 years, MICA is a new practice with a rich heritage. An analytical approach is applied to all projects, from strategic masterplans and landscape planning to individual buildings, interiors and even furniture. Through creative problem solving, engaging with stakeholders and the local community, MICA is able to solve complex problems and present solutions that appear simple in their elegance.

We operate Quality Assurance, Environmental Management and Health and Safety policies in accordance with our ISO 9001:2015, ISO 14001:2015 and ISO 45001 accreditations.

All images and text are copyright. Copyright is vested in the following parties: MICA Architects, Jim Stephenson and Hufton + Crow.

96 Jesus College, Oxford
‘Before’ site prior to work
Brasenose Lane
MICA Architects 123 Camden High Street London NW1 7JR T: 02072841727 micaarchitects.com

Turn static files into dynamic content formats.

Create a flipbook
Issuu converts static files into: digital portfolios, online yearbooks, online catalogs, digital photo albums and more. Sign up and create your flipbook.