Portafolio Académico - Alexandra Espinoza - 2024.01

Page 1

alexandra míah espinoza gutierrez

portafolio

perfil

PERFIL

¡Hola! Soy alumna de la Universidad Peruana de Ciencias Aplicadas (UPC), cursando el séptimo ciclo de la carrera de Arquitectura. Resido en Lima, Perú, y entre mis intereses están el dibujo digital, el diseño gráfico y el arte. Busco ampliar mis conocimientos de manera exponencial, teniendo en cuenta mis aptitudes y mi formación académica. La buena arquitectura, para mí, es sinónimo de integración pertinente en el espacio que la recibe, además de ser funcional y cómoda para su usuario. Con esto, estoy convencida de que la arquitectura permite grandes cambios en la sociedad; y es esto en lo que deseo aportar.

Pascual Saco Oliveros

marzo 2009 - diciembre 2017

lima, perú

Universidad Peruana de Ciencias Aplicadas - UPC agosto 2019 - actualidad lima, perú

IDIOMAS

Español nativo

Inglés nativo

EDUCACIÓN SOFTWARE LOGROS ACADÉMICOS HABILIDADES

Décimo Superior Académico

2019.01 - 2021.01

perteneciente al Grupo de Excelencia Académica de la UPC

Quinto Superior Académico

2021.02 - actualidad

1° Puesto - Taller VII

2023.02

exposición de proyecto

AutoCAD

Revit

ArchiCAD

SketchUp

3DSmax

Microsoft Office

Enscape

Lumion

V.Ray

3DSmax

Adobe CC (Ps, Ai, Id)

Metódica

Responsable

Aprendizaje rápido

Manejo de múltiples programas de diseño

Representaciones en 2D Modelado BIM

Análisis de variables arquitectónicas

ALEXANDRA MÍAH ESPINOZA GUTIERREZ nombre completo celular correos electrónicos dirección código de estudiante fecha de nacimiento U201921941 10 - 08 - 2001 CONTACTO (+51) 992832702 u201921941@upc.edu.pe alexandrameg01@gmail.com calle El Marabú Mz. C Lt. 30

01 02 03 04

volúmenes, líneas y planos introducción al diseño arquitectónico

san josé y el muelle azul jesús maría, lima, perú arquitectura y entorno instituto culinario san isidro, lima, perú arquitectura y funcionalidad

05

ecolodge paracas, ica, perú arquitectura y medio ambiente el silencio contenido arquitectura y arte

índice

hatun tower

miraflores, lima, perú

arquitectura y construcción

línea de reciclaje

lindley

rímac, lima, perú taller de integración

arquitectura y ciudad

taller de ejercicio profesional

taller de tesis

07 08 09 10
06

01 volúmenes, planos y líneas

introducción al diseño arquitectónico

exploración inicial de las formas más basicas que componen un objeto arquitectónico; la línea, el plano y el volumen. complementado por un entendimiento de recorrido y la escala humana.

6
7

volúmenes de adición y sustracción volúmenes, planos y líneas

Inicialmente con la forma de un cubo, estos paralelepípedos de papel han sido destajados y separados hasta formar figuras complejas que presentan conceptos de adición y sustracción. Se añaden líneas y algunos planos para delimitar pequeños espacios. Un recorrido se puede observar.

Volumen complejo formado por paralelepípedos de papel . Los planos añadidos ayudan a formar diversos espacios estáticos, y al mismo tiempo presentan una composición entre ellos. Las líneas actúan como delimitación, soporte y permiten que los planos tengan mayor alcance.

8
01 01 02 02 03 03
vista general s/n vista general s/n

los espacios

vista aérea

s/n

Este proyecto es una amalgama de volúmenes, planos y líneas, los cuales forman espacios. Los 7 volúmenes que se observan comparten tanto propiedades aditivas como sustractivas.

Las líneas son utilizadas para completar destajos, delimitar espacios y estructura. Los espacios pueden ser de naturaleza dinámica y estática. El espacio público debajo presenta áreas verdes, anfiteatros y espejos de agua.

vista aérea

s/n

02 el silencio contenido

arquitectura y arte

la experimentación con los colores y formas de espacios fue el principal objetivo. la libertad de expresión permitió enriquecer el entendimiento arquitectónico, mientras que la aplicación de estrategias o elementos arquitectónicos, como el vacío o el recorrido, dejó en claro la versatilidad de la arquitectura.

10
11

la pieza

a partir de un collage basado en una pieza de arte (Sueño de Fuego de Venancio Shinki), se elabora la extrusión uniforme del collage. El diseño debe presentar balance y uniformidad. El producto final es una extrusión adecuada con buen manejo del vacío y contiene diseño geométrico proporcionado.

01 01 02 02 03 03 el refugio

a partir de un personaje (Kylo Ren de Star Wars), se elabora un guión apropiado según sus características y personalidad, y con ello se genera un único espacio. Representa un espacio relativamente amplio pero protegido. Los triángulos se aplican como un aspecto defensivo y desordenado del refugio.

12
vista general peatonal s/n vista general aérea s/n

el silencio contenido

se elabora una extrusión a partir de un collage que representa un valor (dualidad) . Se genera un vacío o silencio central y un recorrido preliminar entre los volúmenes. Se agrega terreno.

collage

13
vista general aérea s/n vista posterior s/n vista general aérea s/n

03 el muelle azul y mercado san josé

jesús maría, lima, perú arquitectura y entorno

al considerar el entorno como un elemento importante y según un estudio del sitio, se pueden crear focos importantes dentro de él. en este sector de jesús maría, abunda el comercio minorista y los restaurantes locales; por lo que la necesidad de un mercado zonal adecuadamente equipado es imperativo y la oportunidad para crear un restaurante popular es provechosa.

14
15

planta 1

1:100

planta 2

1:100

planta 3 1:100

corte transversal

1:100

restaurante muelle azul + oficinas

en este resultado, se implementaron celosías de madera en todo el alrededor de la fachada del restaurante, para así ofrecer un aspecto unificado y característico. para las oficinas, se aplicó un ritmo de ventanas con marcos negros , además de añadir celosía a la esquina para terminar de incorporar el volumen.

16
17

planta 1 1:100

planta 2 1:100

mercado san josé

se muestran los diversos elementos aplicados. la piel metálica laminada que cubre la fachada ofrece un diseño estilizado, además de permitir transparencias y vistas únicas hacia los alrededores.

el perímetro del segundo piso está cubierto en vidrio con marco negro , cuya aplicación resalta el concepto de transparencia que se ha aplicado.

la plaza que mira hacia la Av. Arnaldo Márquez presenta una rampa que posibilita el acceso al sótano. Además, presenta terrazas escalonadas para descansar y/o realizar actividades públicas.

18
19

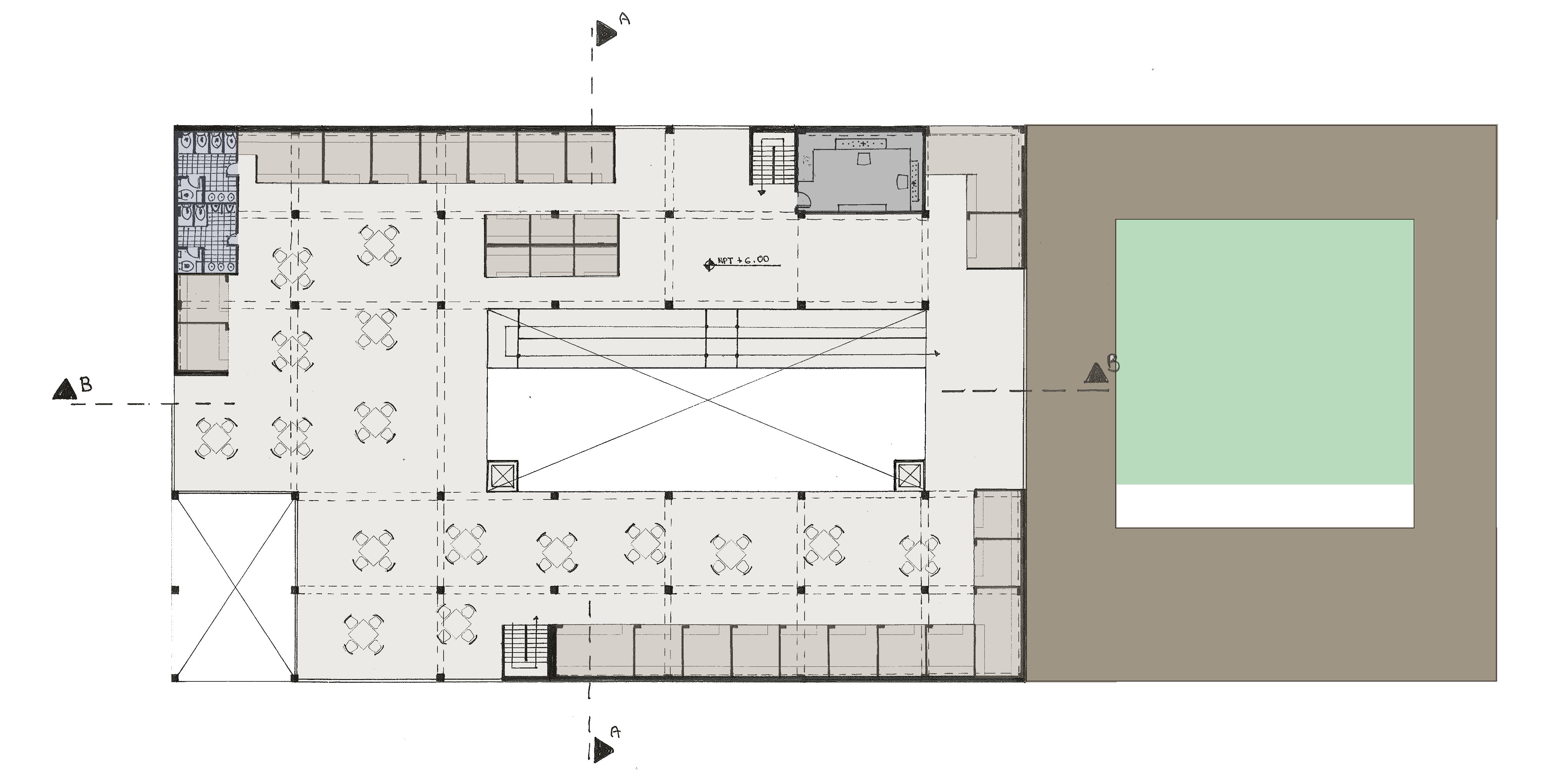
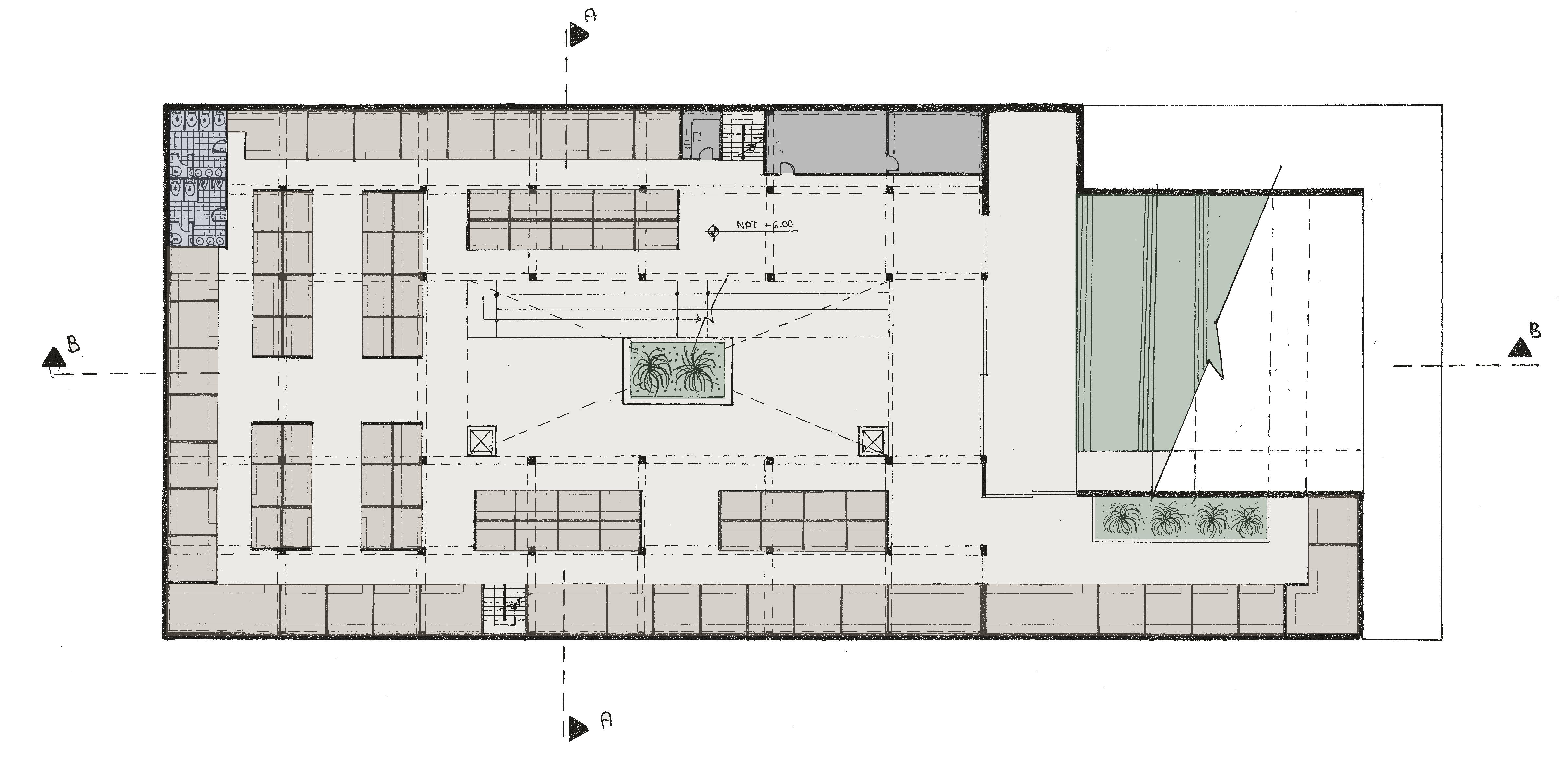
04 instituto culinario

san isidro, lima, perú arquitectura y funcionalidad

posicionado en el punto focal de un eje gastronómico de importancia dentro del distrito de San Isidro y colindando con Miraflores, este instituto ofrece una experiencia educativa de alta calidad para aquellos interesados en el lenguaje culinario. sus instalaciones son completas, con hasta 7 pisos de aulas, talleres, auditorios, salas de estudio, áreas de esparcimiento, entre otros equipamientos.

20
21
22
corte A-A 1:175
planta 1 1:125 planta 2 1:125

planta 3 1:125

detalle aula 1:25

detalle taller 1:25

planimetría

El acceso se ubica en la calle Paul Harris , una calle relativamente transitada. Para el proyecto se implementó un acceso de estacionamiento en el sótano, con un total de 79 estacionamientos habilitados para un aproximado de 1500 estudiantes al día.

Se identifican 7 zonas delimitadas incluyendo el estacionamiento; siendo una de estas las zonas de aularios y de talleres, una biblioteca, una zona de recepción, zona administrativa, zona social y zona de acceso. Los primeros pisos están dedicados a las principales zonas de acceso, administración, zonas de lectura, SUMs, y talleres. Subiendo se encuentran las aulas teóricas, cubículos de estudio y áreas sociales. En los últimos pisos se encuentran áreas de estudio colectivo, talleres y aulas.

23
corte B-B 1:175

05 eco - lodge

paracas, ica, perú arquitectura y medio ambiente

acoger al usuario es lo más importante. el eco - lodge contiene dentro de sus instalaciones áreas de servicio, de administración, de hospedaje y zonas de uso complementario.

estos espacios se distribuyen de manera ordenada y armoniosa en el entorno, logrando el objetivo de ubicarse respetuosamente sobre las arenas de Paracas.

24
25 plot plan 1:500
26
planta 1 1:250 planta 2 1:250

planimetría

el proyecto responde a las necesidades contextuales de la zona, como son ciertos parámetros urbanísticos y climáticos, así como la necesidad de un acceso directo a la carretera principal de El Chaco.

es a partir de estas necesidades funcionales que nace la unidad de espacio funcional, aquella que permitirá una adecuada aplicación de sistemas estructurales y estrategias que responderán directamente a las necesidades del usuario.

27
28
29

06

hatun tower: edificio multifamily miraflores, lima, perú arquitectura y construcción

el edificio Hatun es lo más cerca que se puede llegar a las estrellas tanto en Miraflores como en Barranco. Con 42 pisos, el edificio mezcla múltiples tipologías en su interior; una base formal dedicada a comercio, oficinas y zonas de co-working; un cuerpo constituído por más de 210 apartamentos; y un remate de terrazas reservables para los propietarios, así como un resto - bar para todo usuario.

30
plot plan 1:500 31
32
planta nivel 1 1:200 planta típica de departamentos 1:200 planta nivel 2 1:200

detalle constructivo de fachada residencial

1:25, celosía anclada en losa maciza

51.70 m2 - 1 dormitorio departamento X.04

detalle fachada de zócalo comercial

1:25, balcones en losa maciza y celosía

64.10 m2 - 2 dormitorios departamento X.01

78.10 m2 - 3 dormitorios departamento X.05

33
axo.corte lateral 1:250
34
35

07 línea de reciclaje lindley

rímac, lima, perú arquitectura e integración

una aproximación al depurado de conceptos relacionados a la historia del Rímac, así como el largo contexto detrás de la ocupación de las fábricas Backus y Lindley en la manzana. la línea de reciclaje de Lindley funciona como un acto de tres partes, el cual comienza a partir de la fachada frente al Paseo de las Aguas. Una vez se cruzaestalíneadecomerciobarrialyresidencia,se ingresaalazonaexpositivadelalíneadereciclaje. este espacio presenta un fuerte lenguaje industrial que culmina en la última franja; es decir, la propia línea de máquinas recicladoras PET.

36
37 planta nivel 1 1:100
planta 02 1:200 corte C.03 1:200

las plantas reflejan la intención de modularidad en el proyecto, con múltiples referencias a la regularidad que se encuentra en las luces de igual distancia; así como las múltiples posibilidades de diseño que permite esta estructura.

esta intención se comparte, además, en la propuesta de vivienda multifamily en lo que sería el edificio pre - existente Lindley. no solo ofrecería una posible vivienda para el trabajador, sino también una oferta de Air-BnB’s próximos a unas de las zonas más populares del Rímac; esto con el fin de fomentar el turismo y aportar a la comunidad.

planta 03 1:200

39
planimetría
elevación E.02 1:200
40
iso.explotada 1:200
iso.corte 02 1:200 iso.corte 01 1:200

pre.existencia estructural

Naves Industriales y Edificio Lindley

estructura aporticada de hormigón armado

Modulación 6 x 6

estructura entramada de acero

Modulación 3 x 3

estructura aporticada de hormigón armado Modulación 6 x 6

estructura extendida de hormigón armado Levantada a partir de la estructura de hormigón armado del edificio Lindley

columnas: 0.15 x 0.15 m

dimensiones:

columnas: 0.30 x 0.30 m

vigas: 0.45 x 0.25 m

luz: 6 m

dimensiones:

columnas: 0.40 x 0.30 m

vigas: 0.15 x 0.15 m

41
42
43

anexo habilidades y trabajos complementarios

A. techo de sol y sombra en skate park

huamanga, ayacucho, perú trabajo complementario

el desarrollo de esta asignación me permitió entender mejor el manejo, mejor uso, distintas aplicaciones y versatilidad de la madera.

46

isometría de detalle de anclaje

isometría explotada de cartela

1:10

isometría de detalle de encuentro de columna

isometría explotada y detalle de cartela

1:10

47
celular correos electrónicos dirección (+51) 992832702 u201921941@upc.edu.pe alexandrameg01@gmail.com calle El Marabú Mz. C Lt. 30

Turn static files into dynamic content formats.

Create a flipbook
Issuu converts static files into: digital portfolios, online yearbooks, online catalogs, digital photo albums and more. Sign up and create your flipbook.