INTERIOR DESIGN PORTFOLIO

Haynes


CONTACT
(573) 825-8030
Mizzmargo711@gmail.com
EDUCATION
Bachelor of Fine Arts, Interior
Design
Sustainability Minor
Iowa State University, Ames, IA
CIDA Accredited
May 2025 graduation
GPA: 3.65

LinkedIn Ames, Iowa
![]()

Haynes


CONTACT
(573) 825-8030
Mizzmargo711@gmail.com
Bachelor of Fine Arts, Interior
Design
Sustainability Minor
Iowa State University, Ames, IA
CIDA Accredited
May 2025 graduation
GPA: 3.65

LinkedIn Ames, Iowa
INTERIOR DESIGN STUDENT INTERIOR DESIGN STUDENT
WORK EXPERIENCE
InteriorDesignIntern
Summer2024
AdobeSuite
Sketchup
Handdrafting
Autocad
Revit
Enscape
Baking
Travelling
Hiking
Design
Software
SKILLS
Timemanagement
Communication
Problem-solving
Teamwork
OfficeofAdministrationInteriorDesign|JeffersonCity,MO
AssisttheInteriorDesignUnitwithprojecttasks.
Communicatewithmaterialsrepresentativestoordermaterialsandrequest quotes.
WorkwithotherinternsintheFacilitiesManagementDesign&Constructiondivision tocompletethedesign,budget,andscheduleofawarehouseremodelforastate agency’suse.
DigitallyscananddocumentstohelptheInteriorDesignUnitgopaperless.
Cafeemployee
2022-Present
ISUDining|Ames,IA
Servecustomersinadiningspacewithinaneducationalenvironment. Responsibilitiesincludeperformingdailyandweeklycleaningtasks,makingbeverages includingcoffeedrinks,smoothies,andteas,andassemblingsandwichesandtoasting bakerygoods.
RetailShiftLead
2020-2023
Plato’sCloset|Columbia,MO
Assistcustomersintheirshoppingandsellingexperiences.
Performopening,closing,anddailytasksthatkeepthestorerunningsmoothly. Responsibilitiesincludedcashiering,sortingthroughbuys,enteringinventoryinto computers,cashingoutbuys,taggingclothes,andopeningandclosingregistersforthe day.

Hello! I am Margaret Haynes, a senior studying interior design with a minor in sustainability at Iowa State University. My passion for design started when I was in grade school. My father was continuously working on renovations to our fixer-upper house when we moved to a new town. His determination to complete everything himself has always inspired me and as I developed an interest for design, my parents included me in a lot of the design choices for our house. I have grown up helping my dad with home renovation projects as well, which has given me an appreciation for how buildings work and a perspective on how poor design choices can cause problems for homeowners.
I am very passionate about interior design and using it to improve the lives of others. I have always been interested in how space works and can be transformed so drastically. As humans, we have access to so many resources, ideas, and materials. Collectively, we have the power to decide how to use these means. I am dedicated to using design to improve our world and I look forward to creating sustainable spaces that strengthen communities and create positive change. I think interior design has a huge impact on not just one’s life, but our world, and I am excited to continue my design education so that I can be involved in this impact.
Evergreen Library is a reimagined version of the public library in Ames, Iowa. Alongside my partner, Selma Begic, we created an imaginary design company that would be tasked with designing the library with the needs of the community in mind. We conducted extensive research, including a visit to the library and interviews with librarians and library users. Together, we formulated a concept for our library and worked together to create a new space that creatively addresses the needs of the users. I primarily designed the first floor while my partner designed the second floor.
Programs used:
Revit
Enscape Photoshop




This space intends to welcome all users into a safe environment that surpasses their needs and strengthens the community. Curvilinear and contrasting lines will encompass the space in the form of repetitive natural wood elements. The use of biophilic characteristics will be applied throughout the space using water features and floral details, giving the users a sense of serenity.
With our dedication to bringing communities together, we prioritize the integration of inclusive design principles, sustainable practices, and research-based approaches. we ensure that our creations are not only aesthetically pleasing but also considerate of diverse needs. This will be achieved by incorporating biophilic design principles and comfortable interiors that are adaptable to the specific needs of the users.
The theory of biophilia, in correlation with design, is the biological and genetic connection between humans and nature or other forms of life. The exposure of nature or natural environments can be beneficial in various ways. We incorporated this theory throughout our design through the use of a synthetic tree located in the center of the library. It is enclosed in a glass case and the tree extends to the second floor. This creates a focal point in our library and gives users a unique reading spot with lots of light provided by the skylight on the second floor and pendant lights surrounding the tree on the first floor.


























During my semester abroad in Rome, Italy, I worked on a project with a partner in which we were assigned a luxury fashion brand to design a shop-in-shop for. The brand we shose was Saint Laurent and we spent around two months completing this project. The location of our shop-in-shop was the luxury department store chain Rinascente. The Rinascente located on Via del Tritone in Rome was the location in which our store would be located. Throughout the project, we learned about retail design through thorough research on our brand, shop-in-shops, and luxury stores. We also visited several Saint Laurent and Rinascente stores throughout Italy as well as many other luxury department stores to further absorb the concept of retail design.
In this project, we were tasked with learning as much about the brand as possible, and put our own spin on where we felt the brand was heading in the future. Saint Laurent almost never changes the design of their stores. They all use contrasting black and white marble, and gold and chrome as their materials. We felt straying from this too much wouldn’t be authentic to the brand, but we wanted to lean into the futuristic and edgy image that Saint Laurent has always been known for. We used black and white concrete instead of marble in our store and incorporated glass bricks and chrome slats that provide a lot of reflection and interest in the space while still being loyal to the brand.
The intent of the design is to clearly communicate the essence of the brand to the customers while also providing a chic and futuristic atmosphere. The image as well as the future of the brand will be taken into account based on the brand history and current creative director. The use of geometric shapes and linear shelving will guide the user through the space. The space will compliment the products through the continued use of marble, glass, and concrete with polished finishes. Additionally, the use of repeating chrome slats will add variety and depth to the space and draw more visual interest.

MOOD BOARD STORE LOCATION








AXONOMETRIC VIEW FLOOR PLAN
*Created by Margaret Haynes and Victoria Holds



*Created by Margaret Haynes and Victoria Holds

Created by Margaret Haynes and Victoria Holds



Exploded Axonometric View
One aspect of designing this project was working on detail drawings. Each person detailed one display in their store and made a specifications book for it. The display I detailed was this threedimensional shoe display wall. Taking inspiration from the cube shapes and pure geometric forms in our mood board, I made shelves that illuminate the products and will interest customers with their unique yet sleek design.





In my Advanced Visualization class, I was tasked with designing a mini home utilizing the software knowledge I gained from the class. I was able to choose the location and concept behind the home, but was given space requirements and an imaginary client of a young professional couple looking to build a miniature home to live in that would fulfill their needs while maintaining a minimalistic design.
The Noord Haven mini home addresses the need for affordable and comfortable housing in the city of Amsterdam, Netherlands. Through the use of energyefficient building materials, Noord Haven provides a carbon-neutral yet economical housing opportunity for working class young people. The home uses traditional Dutch architectural styles with a modern twist to achieve a unique and classic structure.

I chose to locate my mini home in the city of Amsterdam because of their current housing crisis. I have always been interested in Dutch architecture and design as well, and I thought this was the perfect opportunity to dive deeper into this design style. The mini home will be located in the Amsterdam Noord neighborhood. Noord is an up and coming neighborhood with new developments being built regularly in the area. It is becoming increasingly popular among young people as well and is considered a “cool” area among tourists and locals alike.



First Floor Plan
Scale: NTS

Second Floor Plan
Scale: NTS







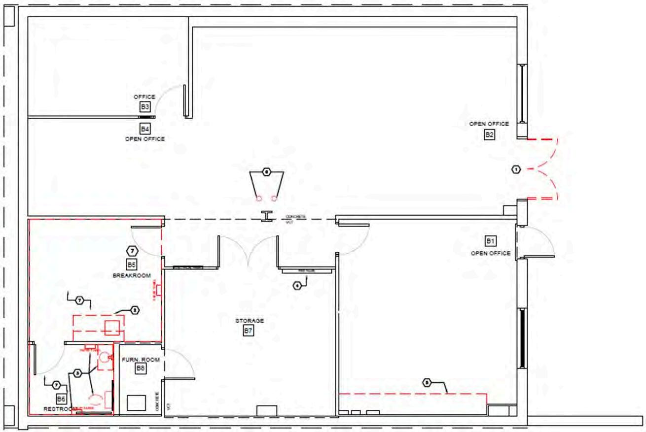
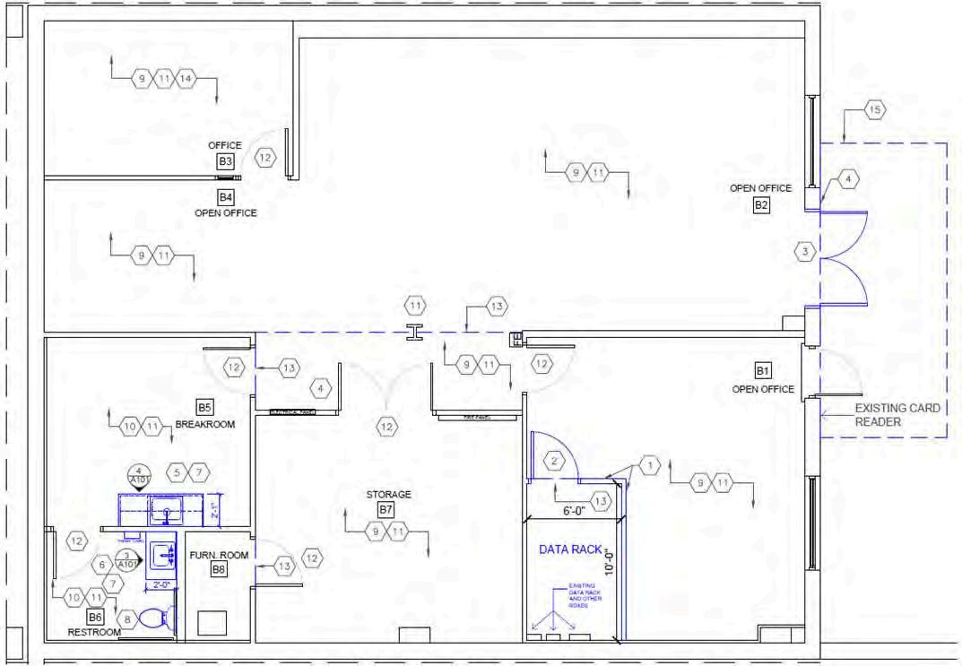
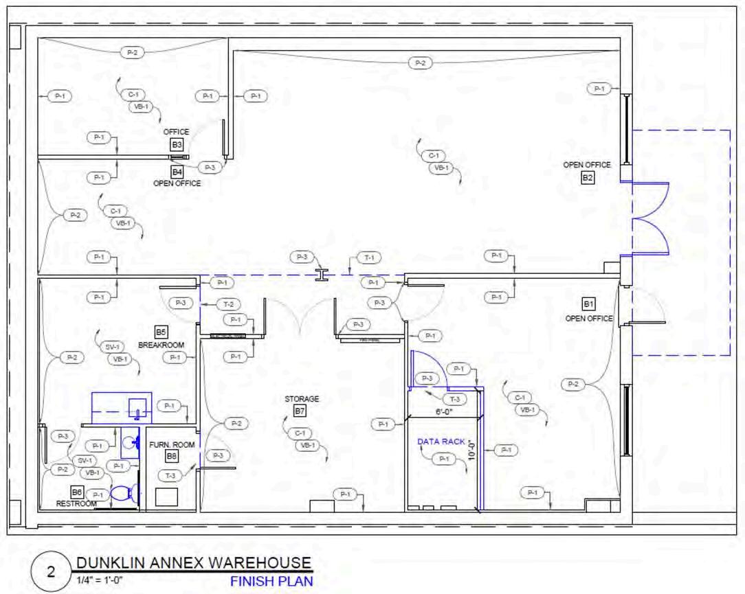
Last summer, I had the opportunity to complete an internship for the Office of Administration in the State of Missouri. I worked for the interior design unit under the FMDC (Facilities Management Design & Construction) division of the Office of Administration. During my internship, I worked on a warehouse renovation for the relocation of several state-funded offices. Working with two other interns, I helped redesign the space so that 12 workers could be relocated to the space as their new workplace. I created furniture layouts, demolition and revised plans, materials boards, and found new fixtures and equipment for the bathroom and kitchenette.
-Remodel the employment security warehouse annex into a usable space for future project teams
-Provide a temporary office and swing space as needed for OA departments.
-Create Demo and Revised Plans for the space.
-Make furniture layout options for the agencies to review.
-Pick new FFE for the space.






NOTES

REMOVE DOUBLE DOORS TO PREPARE FOR REPLACEMENT.

REMOVE BASE CABINET, UPPER CABINET, MIRROR, SINK & FIXTURES. EXISTING PLUMBING TO REMAIN.

REMOVE CABINETRY AROUND FIRE PANEL.

REMOVE WORKBENCH & PEGBOARD. EXISTING DATA & OTHER BOXES TO REMAIN.


2 1 3 4 5 6
REMOVE BOLLARDS.
REMOVE VCT FROM ROOMS B5 AND B6. VCT TO REMAIN EVERYWHERE ELSE.
GENERAL NOTES
1) CAREFULLY REMOVE RESTROOM MIRROR AND ACCESSORIES FOR PAINTING. SALVAGE FOR REINSTALLATION AFTER CONSTRUCTION.
Data closet
No conference area 2 cubicles in B1
B1: 2 cubicles and data closet
B2: 5 cubicles and printer
B3: 2 cubicles; broadcasting room
B4: 2 cubicles
B5: Breakroom
B6: Restroom
B7: Storage
B8: Furnace Room



•Added data closet, transition strips, new cabinetry and fixtures in the breakroom and bathroom.
•Card access added to exterior double door and storage room door.

B3 will be soundproofed as specified by agency.










DUNKLIN ANNEX WAREHOUSE

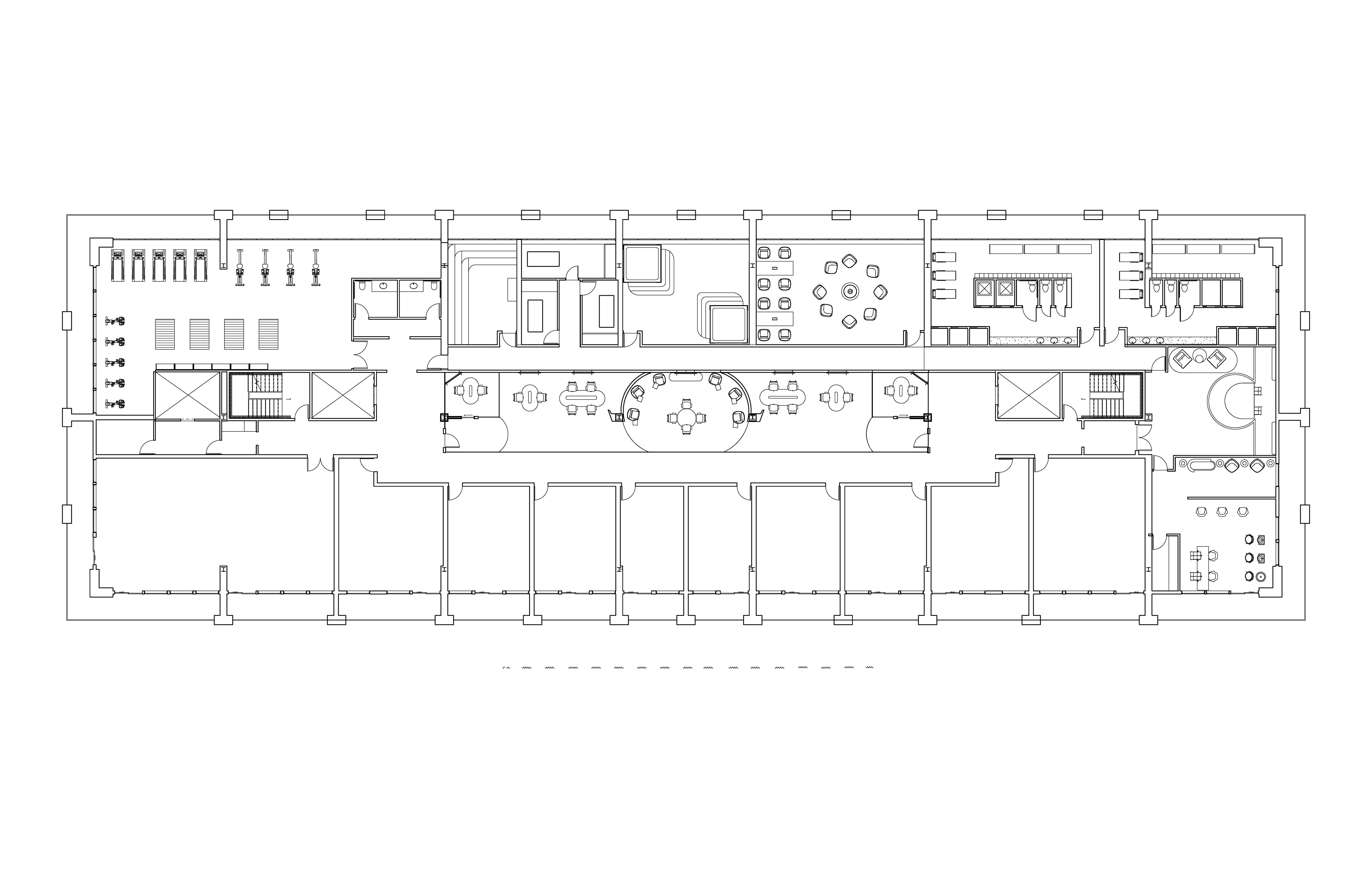
In my final Interior Design studio, my assignment for the semester was to design a workation hotel in Aspen, Colorado. I worked with three other group members to choose a brand to work with in collaboration for the hotel. We researched workation hotels, an increasingly popular type of hotel that caters to working professionals seeking a place to stay on vacation while also working from the hotel. We researched different case studies and potential brands and decided our hotel would be a collaboration between the luxury watch brand Omega, and an Austrian hotel called Comodo.
Each group member designed one type of hotel room and one feature space for the hotel. I designed the double queen room, including a balcony space, and the spa and gym within the hotel.




















Created by Victoria Holds, Lorelai O’Hara, Jessica Fredericks, and Margaret Haynes

