Mason Hardel's Portfolio

Page 1

ARCHITECTURE PORTFOLIO

MASON HARDEL

2 MASON HARDEL TABLE
CONTENTS .......... ................. .............
STAR DESTROYER
MODERN FIREHALL: APPLE VALLEY, MN STUNDENT HOUSING: DUNWOODY COLLEGE 4 8 12
OF
IMPERIAL-CLASS
II (STAR WARS™)
3

IMPERIAL-CLASS STAR DESTROYER II (STAR WARS™)

DESIGNED FROM 2021 TO 2023 AT DUNWOODY COLLEGE, WAS A FUN PROJECT I CONSTRUCTED.

I WANTED TO PUSH MY LIMITS ON WHAT I COULD CREATE IN SKETCHUP.

SO, I CREATED A SCALE MODEL OF MY FAVORITE STAR SHIP FROM ONE OF MY FAVORITE MOVIES.

TECHNICAL DRAWINGS

4 MASON HARDEL
5

IMPERIAL-CLASS STAR DESTROYER II (STAR WARS™) CONT.

SKETCHUP SHADING

6 MASON HARDEL
7

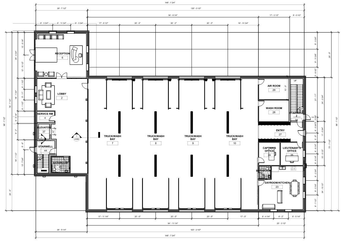
MODERN FIREHALL: APPLE VALLEY, MN

CONCEPT DRAWINGS

THIS FIREHALL PROJECT WAS COMPLETED IN 2023 AT DUNWOODY COLLEGE WITH MY PARTNER, PARKER KENNING, AND UNDER MY PROFESSOR, PAUL STROTHER.

WE WANTED TO CONSTRUCT A NEW AND EFFICIENT FIREHALL IN PLACE OF THE EXISTING ONE.

8 MASON HARDEL

CIRCULATION WAS A MAIN ISSUE THAT TERRORIZED THE “AS-BUILT,” WHICH IS WHAT WE CALLED THE EXISTING BUILDING.

WE WANTED TO MAKE SURE THAT EVERYONE FEELS WELCOME AND HAS ENOUGH SPACE TO OPERATE FREE OF OBSTRUCTIONS.

9

MODERN FIREHALL: APPLE VALLEY, MN CONT.

WE CREATED A CATWALK TO ALLOW THE PUBLIC TO SUBMERSE THEMSELVES INTO THE FIRE FIGHTER EXPERIENCE WITHOUT INTERFERING WITH THEIR OPERATIONS.

10 MASON HARDEL

FINISHED RENDERS

11

STUDENT HOUSING: DUNWOODY COLLEGE

THIS CONCEPT PROJECT IS CURRENTLY (2023) IN DEVELOPMENT AT DUNWOODY COLLEGE UNDER MY INTSTRUCTOR, AMY MELLER.

IT’S ALSO BEING WORKED ON WITH MY PARTNERS, PARKER KENNING AND JUDITH VILLALOBOS.

OUR GOAL IS TO REDESIGN THE DUNWOODY CAMPUS AND BRING IN FUNCTIONAL, AFFORDABLE, AND SUSTAINABLE STUDENT HOUSING.

CONCEPT WORK

SOUND BARRIER

12 MASON HARDEL
13

STUDENT HOUSING: DUNWOODY COLLEGE CONT.

HERE ARE SOME IN-PROGRESS EXAMPLES OF MY WORK AND WHAT OUR PROJECT IS TURNING OUT TO BE.

14 MASON HARDEL
15

Turn static files into dynamic content formats.

Create a flipbook
Issuu converts static files into: digital portfolios, online yearbooks, online catalogs, digital photo albums and more. Sign up and create your flipbook.