BIM Portfolio - Thilanka

Page 1

(Bsc.Eng) MEP Engineer/ BIM Specialist mgtnkumara@gmail.com linkedin.com/in/nuwan-kumara-00a742147/
2 01.
03.
BIM Modeling 02. BIM Coordination
Clash detection 04. PlantRoomBIMmodeling
Regalia by Deyaar
Dubai
Consultant: Stark Engineering Level 02 Combined MEP Services Role: BIM Coordinator/ BIM Modeler Responsibilities: * MEP services BIM modeling(LOD400) -Revit * Clash detection & Coordination * Coordinated Shop Drawings 3
Project:
Location:
BIM
Regalia by Deyaar
Dubai
Consultant: Stark Engineering Level 02 Combined MEP Services Role: BIM Coordinator/ BIM Modeler Responsibilities: * MEP services BIM modeling(LOD400) -Revit * Clash detection & Coordination * Coordinated Shop Drawings 4
Project:
Location:
BIM
Project: Regalia by Deyaar Location: Dubai BIM Consultant: Stark Engineering Tower 01(Level 01 to Level 23) Combined MEP Services Role: BIM Coordinator/ BIM Modeler Responsibilities: * MEP services BIM modeling(LOD400) –Revit * Clash detection & Coordination * Coordinated Shop Drawings 5
Project: Regalia by Deyaar Location: Dubai BIM Consultant: Stark Engineering Basement Level Combined MEP Services Role: BIM Coordinator/ BIM Modeler Responsibilities: * MEP services BIM modeling(LOD400) -Revit * Clash detection & Coordination * Coordinated Shop Drawings 6
Project: Regalia by Deyaar Location: Dubai BIM Consultant: Stark Engineering Basement Level Combined MEP Services Role: BIM Coordinator/ BIM Modeler Responsibilities: * MEP services BIM modeling(LOD400) -Revit * Clash detection & Coordination * Coordinated Shop Drawings 7
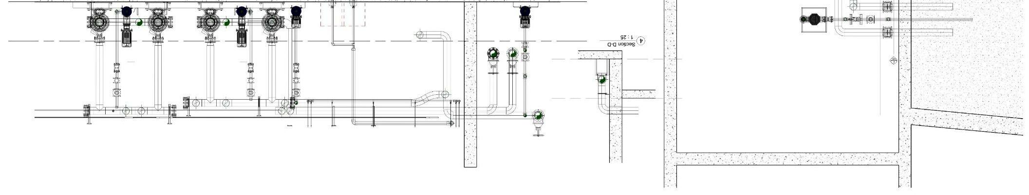
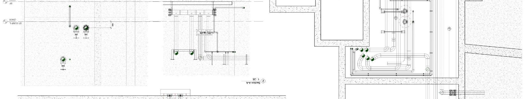
Project: Regalia by Deyaar Location: Dubai BIM Consultant: Stark Engineering Underground Level Plant Rooms Role: BIM Coordinator/ BIM Modeler Responsibilities: * MEP services BIM modeling(LOD400) -Revit * Clash detection & Coordination * Coordinated Shop Drawings 8

Project: Regalia by Deyaar

Location: Dubai

BIM Consultant: Stark Engineering

Coordinated Shop Drawing –Basement Level

Role: BIM Coordinator/ BIM Modeler Responsibilities:

* MEP services BIM modeling(LOD400) -Revit * Clash detection & Coordination * Coordinated Shop Drawings

9
Project: J7 Emporium Location: Islamabad -Pakistan MEP Consultant: Headrogen(Pvt) Ltd Ground Level Coordinated MEP Services Role: BIM Coordinator/ BIM Modeler Responsibilities: * MEP services BIM modeling (LOD400) -Revit * Clash detection & Coordination * Coordinated Shop Drawings 10
Project: J7 Emporium Location: Islamabad -Pakistan MEP Consultant: Headrogen(Pvt) Ltd Ground Level Coordinated MEP Services Role: BIM Coordinator/ BIM Modeler Responsibilities: * MEP all services BIM modeling (LOD400) -Revit * Clash detection & Coordination * Coordinated Shop Drawings 11
Project: J7 Emporium Location: Islamabad -Pakistan MEP Consultant: Headrogen(Pvt) Ltd Ground Level Coordinated MEP Services Role: BIM Coordinator/ BIM Modeler Responsibilities: * MEP all services BIM modeling (LOD400) * Clash detection & Coordination * Coordinated Shop Drawings 12
Project: J7 Emporium Location: Islamabad -Pakistan MEP Consultant: Headrogen(Pvt) Ltd Ground Level Coordinated MEP Services -Corridor Role: BIM Coordinator/ BIM Modeler Responsibilities: * MEP all services BIM modeling (LOD400) * Clash detection & Coordination * Coordinated Shop Drawings 13
BIM
BIM
Responsibilities:
* Clash
*
14
Project: J7 Emporium Location: Islamabad -Pakistan MEP Consultant: Headrogen(Pvt) Ltd Ground Level Coordinated Shop Drawing Role:
Coordinator/
Modeler
* MEP all services BIM modeling (LOD400)
detection & Coordination
Coordinated Shop Drawings
Project: J7 Emporium Location: Islamabad -Pakistan MEP Consultant: Headrogen(Pvt) Ltd Ground Level Coordinated MEP Services –Isometric Views Role: BIM Coordinator/ BIM Modeler Responsibilities: * MEP all services BIM modeling (LOD400) * Clash detection & Coordination * Coordinated Shop Drawings 15

Project: Maritime Facilitation Center

Location: Sri Lanka

BIM Consultant: The Design Group Five International (Pvt) Ltd

Combined MEP models Isometric view -Revit

Role: BIM Coordinator/ BIM Modeler

Responsibilities:

* MEP services BIM modeling (LOD400) -Revit * Clash detection & Coordination * Coordinated Shop Drawings

16
Project: Maritime Facilitation Center Location: Sri Lanka BIM Consultant: The Design Group Five International (Pvt) Ltd Navisworks Clash detection & Coordination Role: BIM Coordinator/ BIM Modeler Responsibilities: * MEP services BIM modeling (LOD400) -Revit * Clash detection & Coordination * Coordinated Shop Drawings 17

Project: Lansdowne Gardens Extension

Location: NSW, Australia

BIM Consultant: The Design Group Five International (Pvt) Ltd

Combined MEP models Isometric view -Revit

Role: BIM Coordinator/ BIM Modeler Responsibilities:

* MEP services BIM modeling (LOD400) -Revit * Clash detection & Coordination * Coordinated Shop Drawings

18
Extension
Consultant:
Design Group
Ltd
Combined MEP models for Clash Detection Role: BIM Coordinator/ BIM Modeler Responsibilities: * MEP services BIM modeling (LOD400) -Revit * Clash detection & Coordination * Coordinated Shop Drawings 19
Project: Lansdowne Gardens
Location: NSW, Australia BIM
The
Five International (Pvt)
Navisworks
Project: Lansdowne Gardens Extension Location: NSW, Australia BIM Consultant: The Design Group Five International (Pvt) Ltd Navisworks Clash detection & Coordination Role: BIM Coordinator/ BIM Modeler Responsibilities: * MEP services BIM modeling (LOD400) -Revit * Clash detection & Coordination * Coordinated Shop Drawings 20
Cooling Tower Plant as-built BIM model
Freelancing
View
BIM Coordinator/ BIM Modeler Responsibilities: * BIM modeling (LOD 500) * Clash detection & Coordination 21
Project:
Client:
Isometric
Role:
Project: Cooling Tower Plant as-built BIM model Client: Freelancing
& Isometric Views, EnscapeRendering Role: BIM Coordinator/ BIM Modeler Responsibilities: * BIM modeling (LOD 500) * Clash detection & Coordination 22
Elevations
Chiller Plant Room as-built BIM model
Freelancing
BIM Coordinator/ BIM Modeler Responsibilities: * BIM modeling (LOD 500) * Clash detection & Coordination 23
Project:
Client:
Isometric View -Revit Role:
Project: Chiller Plant Room as-built BIM model Client: Freelancing EnscapeRenderings Role: BIM Coordinator/ BIM Modeler Responsibilities: * BIM modeling (LOD 500) * Clash detection & Coordination 24
Project: Fire Pump Plant Room as-built BIM model Client: Freelancing Materials & EnscapeRendering Role: BIM Coordinator/ BIM Modeler Responsibilities: * BIM modeling (LOD 500) * Clash detection & Coordination 25
Project: Fire Pump Plant Room as-built BIM model Client: Freelancing
View Role: BIM Coordinator/ BIM Modeler Responsibilities: * BIM modeling (LOD500) * Clash detection & Coordination 26
Isometric

Project: Fire Pump Plant Room as-built BIM model

Client: Freelancing

Plans & Elevation views

Role: BIM Coordinator/ BIM Modeler Responsibilities:

* BIM modeling (LOD 500)

* Clash detection & Coordination

27
Fire Pump Plant Room as-built BIM model
Freelancing
& Elevation views
BIM Coordinator/ BIM Modeler Responsibilities: * BIM modeling (LOD 500) * Clash detection & Coordination 28
Project:
Client:
Plans
Role:
Fire Pump Plant Room as-built BIM model -02
Freelancing
View
BIM Coordinator/ BIM Modeler Responsibilities: * BIM modeling (LOD400) * Clash detection & Coordination 29
Project:
Client:
Isometric
Role:
Project: : Fire Pump Plant Room as-built BIM model -02 Client: Freelancing Materials & EnscapeRendering Role: BIM Coordinator/ BIM Modeler Responsibilities: * BIM modeling (LOD 500) * Clash detection & Coordination 30
Drainage & Water Supply system –bimmodel
Freelancing
& Isometric Views
BIM Coordinator/ BIM Modeler
* BIM
* Clash detection
Coordination * Shop Drawings 31
Project:
Client:
Plans
Role:
Responsibilities:
modeling (LOD400)
&

Turn static files into dynamic content formats.

Create a flipbook
Issuu converts static files into: digital portfolios, online yearbooks, online catalogs, digital photo albums and more. Sign up and create your flipbook.
BIM Portfolio - Thilanka by Thilanka Nuwan - Issuu