Trabajos académicos.
Sobremi.
FLORESRAMÓN, MIGUEL ANTHONY
Estudiante de arquitectura
Estudiante de 8vo ciclo de la Facultad de Arquitectura, Urbanismo y Artes de la Universidad Nacional de Ingeniería en proceso final de formaciónacadémicay profesional. Con un gran interés y capacidad de aprender y poner en práctica los conocimientos adquiridos en el ámbito profesional. En busca de una primera oportunidad laboral en la que pueda desarrollar mis habilidades y adquirir experiencia para un buendesarrollo.
Me considero una persona responsable,dedicada y con capacidad de trabajar en equipo, manteniendounabuenarelaciónanivelgrupal Adicionalmente soy miembro fundador de la agrupación HRTES en donde se busca promover la enseñanza del arte en la arquitectura, realizando actividadesdesde el 2019.
En 2021 con un grupo de compañeros de la facultad creamos V7 STUDIO, el cual ofrece servicios de modelados 3D, dibujos CAD, renderizados para apoyara estudiantesde arquitectura.
Estudios
EducaciónUniversitaria
2018 – Actualidad FAUA-UNI (8vociclo)
Habilidades
AutoCAD
SketchUp
Archicad
Revit
Lumion
Twinmotion
Rhinoceros
Microsoft
CURRICULUM VITAE

Datos Personales







30de enero 25años
Estudiantede 8vociclo de Arquitectura Asoc.DeViv.Miguel GrauLot.11, S.M.P.
Facultadde ArquitecturaUrbanismo y Artes -UNI
EspañolNativo InglesBásico FrancésIntermedio +51989442319 mafloresr@uni.pe mfloresramon@hotmail.com
Intereses
Construcción
Fotografía
Diseñode Interior
Gestiónde Obras

Circolo Sportivo Italiano

Callao Monumental

Parque Universitario

Parque Metropolitano del Callao

Circolo Sportivo Italiano

Callao Monumental

Parque Universitario

Parque Metropolitano del Callao
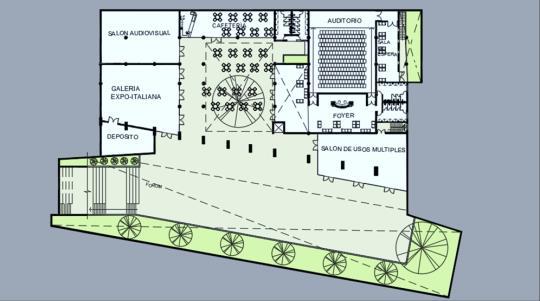
Descripción
La propuesta del taller es reemplazar un edificio existente de un piso, que representa la sede institucional del Club
Circolo Italiano, por un edificio de 3 a 4 pisos, que le dé la imagen institucional
El nuevo proyecto incorpora un programa cultural que le permita al club abrir sus puertas al público en general, eliminando el cerco existente. Las propuestas de los alumnos deben conseguir que, a través de la diferenciación de accesos, el público pueda acceder al programa cultural y el socio pueda seguir utilizando las instalacionesdel club.









El proyecto arquitectónico destaca por su destacado enfoque en lascelosíasde las fachadas, que desempeñan un papel fundamental al permitir la búsqueda de transparencia y una fluida conexión entre el interior y el exterior El diseño se compone de dos volúmenes que se encuentran interconectados por medio de dos puentes, resaltando la importancia del patio central como elemento centralde lapropuesta.



Circolo Sportivo Italiano

Callao Monumental

Parque Universitario

Parque Metropolitano del Callao
Descripción
La propuesta del taller es promover un edificio hibrido con actividades culturales y comerciales, adaptándose al entorno monumental del callao El nuevo proyecto incorpora un programa cultural, educativo y comercial que le permita el impulso del barrio más importante del callao. Las propuestasde los alumnos deben conseguir que, a través del edificio se pueda desarrollar el uso mixto del edificio, el público pueda acceder al programa cultural y comercial, y los alumnos al educativo dentrodel edificio.













Circolo Sportivo Italiano

Callao Monumental

Parque Universitario

Parque Metropolitano del Callao
Descripción
El proyectoconsiste en lacreación de un centro cultural ubicado en el emblemático Parque Universitario, en pleno corazón del Centro Histórico de Lima La propuesta se origina bajo el concepto de "distorsión", el cual se manifiesta principalmente en la fachada interior del edificio, creando una sensación de dinamismo y movimiento. Esta distorsión arquitectónica se aleja de las formas tradicionales del entorno histórico, otorgando al proyecto una identidad contemporánea y audaz, sin perder de vista su contexto urbano. El centro cultural no solo responde a la necesidad de los ciudadanos, sino que también contribuye a la revitalización de la zona histórica, al combinar un programa cultural y comercial que incentiva la interacción pública y promueve el uso activodel espacio












Circolo Sportivo Italiano

Callao Monumental

Parque Universitario

Parque Metropolitano del Callao
Descripción
El proyecto propone la creación de un Parque Metropolitano en el Callao, estratégicamente ubicado frente al mar. Este espacio público tiene como objetivo principal ofrecer un lugar de recreación y esparcimiento tanto para los habitantes locales como para los visitantes. El diseño del parque está orientado a maximizar las vistas panorámicas del océano, creando un entorno tranquilo y natural que contrasta con el bullicio urbano circundante. Este parque busca convertirse en un oasis de serenidad, donde las personas puedan disfrutar del paisaje costero y participar en actividades al aire libre, mejorando así lacalidadde vidadela comunidad











