Architecture Portfolio Metta Paramita

Page 1

M E T T A P A R A M I T A

E 2020/2022
P O R T F O L I O A R C H I T E C T U R
Hello! I'mMetta,anarchitecturestudentwithabig interest in the
and
I can adapt
and
to discover new
CentralJakarta,Indonesia bodhiparamita89@gmailcom (+62)82122522165 ArchitecturePortfolio
environment
space,
easily
excited
thingstobroadenmyknowledge

Education

DepartmentofArchitecture

CurrentGPA363/400

Karunia Senior High School

InchargeofticketingatTamanSampireun Explaining5backgroundofinstalledinstallation

The 2022 ASEAN English Olympic Liason Officer

Inchargeofstorytellingfieldcompetition

Briefingofjudgesandparticipantsregardingapplicableregulations

Mentor Scholarship 2022 - Even Semester

MentoringintheArchitectureDepartmentwith5mentees

Reviewthematerial

General Secretary of Waisak Puja 2566 B.E/2022 - HUT KMBD 33

Freshmen Partner

Coordinator of Public Relation Temu Keakraban Himpunan 2021

Coordinator of Design Bakti Himpunan 2021

Leadandworkinateamof5members

Ideationforpromotion'sdesignvisual(feeds,handbook,ppt,virtualcampaign)

Staff of Talkshow Division Architecture Grand Festival 2021

Responsiblefortheadministrativeaffairsofanevent MakeLetterofAgreementforjudges,sponsors,andmediapartners 2020-2022 1stPlace Participant Participant Participant

Leadandworkinateamof4members Reach96participantsofTKH Dealwiththeinternationalspeakers MakeLetterofAgreementforspeakers

Experience Competition
2020 - now 2022 2022 2021 2021 2017 - 2020 BINUS University
Bintaro Desain District 2022 Volunteer HIMTION Sketch Competition by HIMARS BINUS Sayembara Gaung Bandung by ITB Hydrophilic ACSENT 2021 by Udayana University Perumnas Idea Competition by Idea Perumnas
Leadership Adaptive Teamwork CriticalThinking Sketchup
PublicSpeaking
Archicad Rhinoceros Grasshopper Indonesian English
Beingafreshmen’smateduringtheirfirstyearoncampus Helpfreshmentoadapttocampuslifeespeciallyinarchitecturedepartment Skills Software Skills Language Soft Skills Twinmotion Enscape AdobePhotoshop
ArchitecturePortfolio
1 The Soul of Bandung FoodHub Residential Amphitheater Mo-Zen Archi
Contents
2 2020-2022
La Vie Hotel Residential Villa Kanki Kuma
ArchitecturePortfolio

The Soul of Bandung

Project Data 2021/GaungBandungCompetition FoodHub Bandung,WestJava,Indonesia 2442Sqm

Abstract

Food hubs are part of the agricultural value chain concept and frequently share principles such as conservation, sustainability, healthy food access, and support for local farmers Source identification, a food safety and marketing advantage that allows consumers to tracktheoriginofitemstheybuy,isadistinguishingfeatureoffoodhubs

The Soul is a culinary destination that may ignite the life of Bandung locals. Not just the cuisine, but also the traditional ambience, are expressed in the materials, decorations, and greenplacesthatreduceurbannoises

01
Exploringthegoldencage
6 2020-2022

Therefore, people start using a semi-outdoor idea to improve air circulation and minimize convection in buildings. Drive-through system also become a choice with limited space utilization. Offering pedestrian access, since more individualsarecomingtoappreciatethevalueofwalkingforhealth

To achieve a nice view, use the mass configuration of a cylindrical form

Creating a hole to make air circulated

Combiningbothmasses

Equipping buildings with elements andstalls

Traditional Aspects

ArchitecturePortfolio 7
Duetothepandemicenvironment,peoplewerehesitanttoventureoutdoors,resultinginalotofdecreasesinincome fromthetourismindustryandtradersinthesitearea
Kawung Batik is a batik motif that is neatly placed geometrically in the shape of a spherical similar to kawung fruit (a type of coconut or sometimes sometimesconsideredapalmorkolang-kaling). Bamboo is one of the typical materials that is often usedbythepeopleofWestJava.

Roof Roof Structure

Drive Thru Area
Area
1stFloorPlan 2ndFloorPlan 2020-2022 8
Roof Structure Sangkar Kawung Pavilliun Kiosk
Landscape
ClayRoofTiles Bamboo RoundConcreteColoumn Alumunium BambooStructure Concrete&Conwood
ArchitecturePortfolio 9
ArchitecturePortfolio 1

02 Mo-Zen

Adaptablehousing

Project Data 2021/PerumnasCompetition Cluster Indonesia 45Sqm,36Sqm

Abstract

In addition to food and shelter, every human being need a place to call home. In general, the home may be viewed as a location where the residents can seek refuge or shelter from allnaturalelementssuchasrain,scorchingsun,andsoon

Mo-Zen is a house that has a modern house concept with a touch of zen style that incorporates natural elements, calm colours with several characteristic such as white, black,andbrownbringoutwarmandcleanexpression

ArchitecturePortfolio
13

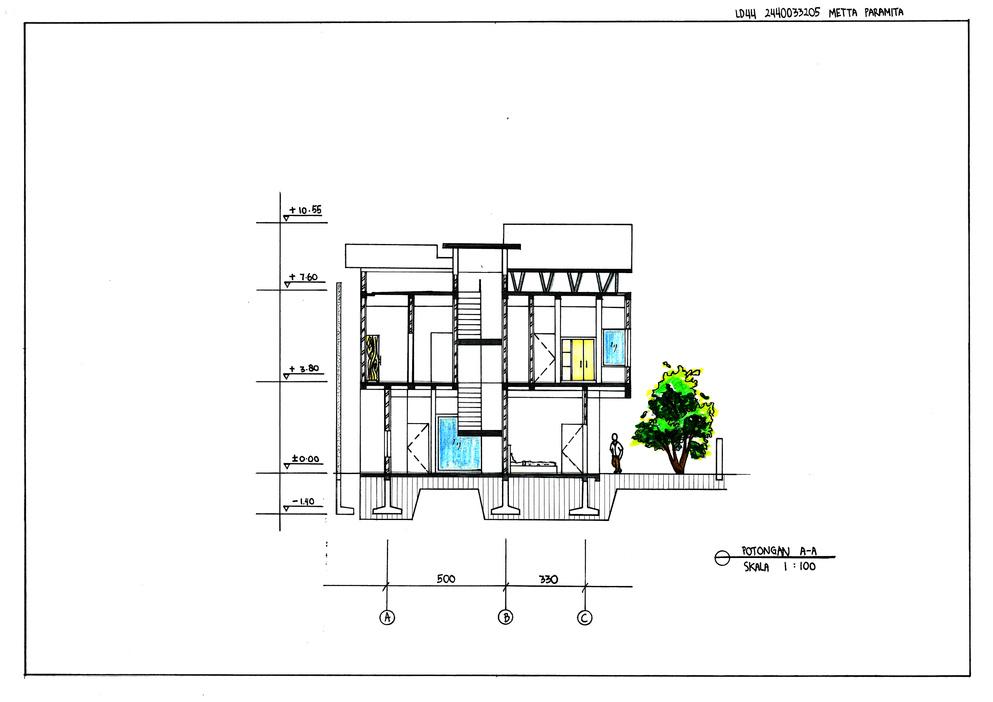
Type 45 is a one-story structure with a mezzanine and a side that may be utilized as extra space The front is adapted to the covid circumstance, allowing onlinemotorcycledrivertowaittherewhileminimizingphysicalcontact

14
ArchitecturePortfolio
15
ShelfClosed ShelfGoesInside
Type 45 Fodable Bed Flashing Plywood Underlayer Light Steel Rafters Water Tank Balcony Hollow Steel Solar Tuff Batten Light Structure Bitumen Roof Vynil Wood 1200x330mm 9mm 120x100cm,2mm 75x 35x075mm 48x30x045mm 16 2020-2022

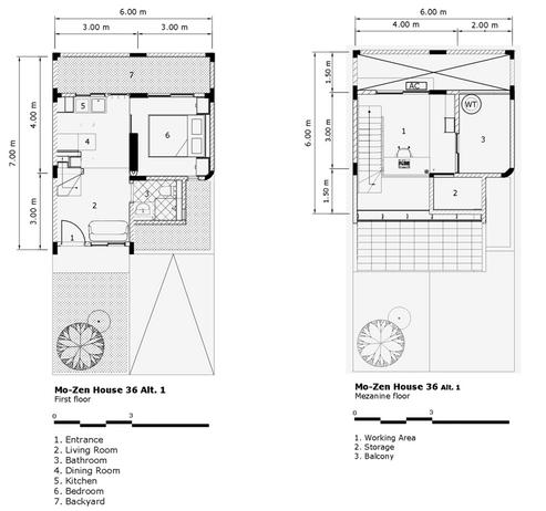
Using the concept of compact living in the home to maximize efficiencyinasmallspacebyleveling

Type 36 Alternative 1
17
ArchitecturePortfolio
18
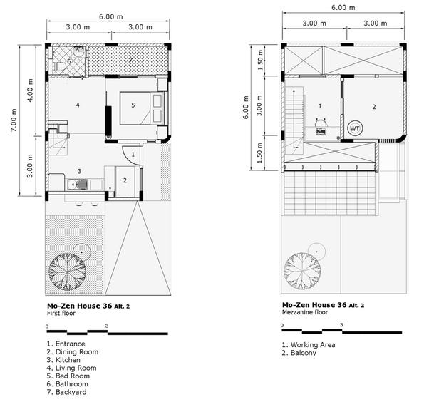
Type 36 Alternative 2 The main circulation of the home is provided through openings on thebackandsidesofthebuilding
03 KankiHouse Breathablehouse Project Data Abstract 2021/ArchitecturalDesignII Residential Indonesia
Jakarta,
has a very hot climate,
familywishtoliveinacoolandlovelyhouse.Asidefromthe
weather, the pandemic has
homeowners
Located in
which
making a
hot
made
recognizethenecessityofmaintainingahealthyhouse.

1st Floor Plan

1 1 2 3 4 5 6 7 8 9
and Daily Activities Foyer LivingRoom DiningRoom IndoorCourtyard Bathroom Kitchen GuestBedroom MasterBedroom WIC&MasterBathroom 5 2 6 3 7 4 8 9
Usser
There are numerous areas on the first level Due to the mother's advanced age, there is a request that the activities that are usually done by her can be done from the 1st floor There is also an inner courtyard in the center of the house to make sure that all spaces receiveproperlightandventilation
ArchitecturePortfolio 21
Chilling
Exercise Yoga Reading Cooking Studying Working Gardening Playing

2nd Floor Plan

10 10 14 14 11 11 15 15 12 12 16 17 17 16 13 13 GuestBedroom2 FamilyRoom MaidBedroom MaidBathroom Bathroom YogaRoom ChildBedroom Balcony
service
room
2020-2022 22
The second floor has
zoning and
spaces The top of the living room was purposefully left open in order for air to move naturally The balcony may be used to comfort guestsorfamiliesthatvisitthehouse
ArchitecturePortfolio 23
Thespacehasasimpleandcleandesignthatmakesitappropriateforworkingandstudying Whentheownerwantstosleep,lightingintheroomcanadjusttoawarmerandcozyambience 24 2020-2022
04 Archi Barrelstructureasarchitecturalexpression Project Data Abstract 2021/BuildingTechnologyIII Amphiteather Indonesia Amphitheatre as a gathering place to watch the show locatedinthemiddleofJakarta. Using the underground concept to minimize the noise from the road and provide a solemn ambient from the surroundingenvironment.

The direction of pressure moves through the fabric, passed to the discs and wires Then forwardedtofootplate

ArchitecturePortfolio
Stabilizer Curve Portal (90°) Load Analysis Vector Flow Arc Portal (80°) Clamp Plate Upper Structure Lower Structure Cakram Base Plate Pile Cap
The division of the load into two structural systems, such as the green arrow which represents the membrane structure and the red arrow which representstheportalsystem SlingCable Turnbuckles Portal ClampPlate Membrane Stiffener Mast Pile Cap Base Plate Pile Baut Portal Base Plate
27
2020-2022

05 La Vie

Fourstarhotel

Project Data 2022/ArchitecturalDesignIV Hotel MarinaRaya,SouthJakarta,Indonesia 32,470Sqm

Abstract

The capital city of Indonesia, Jakarta, remains one of the leading ports of entry to the country Jakarta and Bali International Airports account for 64% of the total arrivals in the country The demand for budget accommodation for short-stays or for transit-stay, has raisedmulti-fold

Therefore, the need of accommodations in Jakarta and surrounding areas would attract tourists and travelers One of the private sectors in Jakarta plan to boost its influence into the hotel services They want to provide a four-star hotel which aims to attract the leisure and business activities in a busy urban environment The hotel will integrate art, business, andsocialinteractioninasafeandsecureenvironment

ArchitecturePortfolio
31

The tourist industry in Indonesia has great potential The Taman Bermain Ancol is one of them This implies that the Site has a high potential for usage in the tourist industry However, due to its strategic position, there are convention needs nearby, such as JIE EXPO KEMAYORANthereforethereareneedsformeetingroomsandmedium-scaleconferenceinsidethehotel

Type of Visitor and Activities

Residential Administrative Facility BackOfHouse
Space Ratio
71% 18% 2% 10% 2020-2022 32
Recreation Convention
VehicletoBasement VehiclefromBasement ArchitecturePortfolio Circulation

RigidStructure

Wind Tunnel Effect

Column 100 CM Structural Beam 40/80 CM Secondary Column 50 CM Secondary Beam 20/40 CM
Section A-A Section B-B 2020-2022 34
Structural
The wind is permitted to circulate through the building visible on the greenery level, and the existenceofwindtunnelallowshotairtonaturally rise and be replenished with new cool air The refuge floor is also planted with diverse plants to serveasatemperaturestabilizerinthebuilding

Presidential Room - Aerial View

Area:112Sqm;18th-20thFloor

Provides a direct view of the city and large skyscrapers There is a living room, a dining room,andajacuzzi

Family Room (Connected) - Sea View

Area:80Sqm;4th-13thFloor

Offers direct view of the sea and two accessible balconies Consists of 1 king bed and2twinbedwithconnectingdoorinside

Suite Room - Aerial View

Area:100Sqm;14th-17thFloor

With both of view that potential in site, visitors can enjoy the luxury of the hotel peacefully

ArchitecturePortfolio
35
Gym Converence Hall Lounge Bar
2020-2022 36
Suite Room

06 Kuma

FamilyVilla

Project Data

2020 Villa Bogor,Indonesia

Abstract

Because of the high level of stress and high overtime works in Jakarta, a businessman wants to make a villa in an area not far from the city to rest and gather with family This villa isplannedtobeoccupiedforshortholidaysoronweekends

a Japanese-style home, the primary element to strive for in the midst of the city's rush and bustle This building, which is home to a family of four, has several features such as a home theater, gaming room, andBBQareaforfamiliestorelax

Because the front facing the road faces westward, there aren't many openings into the buildings The back of the site offers a wonderful view of the mountain and is utilized as a private spot to rest while enjoyingthesceneryandthemorninglight

1 1 LivingRoom HomeTheater DiningRoom Pantry GamingRoom ChildBedroom MasterBedroom BBQArea Pool 5 5 2 2 6 6 3 3 7 7 4 4 8 8 9 9
ArchitecturePortfolio
39

Using lanterns made of bamboo elements to createawarmimpressionintheroom

Dining rooms and living rooms that are deliberately not partitioned to display a spacious impression Traditional Japanese accentsarealsoincorporatedintowindowsills

A gaming area that offers games that can be played by more than one person at the same time Given access to the gazebo and swimming pool so they are able to interact directly

40 2020-2022

Each new situation requires a new architecture

-Jean Nouvel

T H A N K Y O U

Turn static files into dynamic content formats.

Create a flipbook
Issuu converts static files into: digital portfolios, online yearbooks, online catalogs, digital photo albums and more. Sign up and create your flipbook.