Portfolio | Metta Paramita

Page 1


Metta Paramita|BINUSUniversity|2020-2024

Hello! I'm Metta, fresh graduate majoring in architecture with a big interest in the space, environment and lighting design, I can adapt easily and excited to discovernewthingstobroadenmyknowledge

Education

-

-

2023 - 2024 2023

DepartmentofArchitecture

CurrentGPA376/400

Karunia Senior High School

PublicSpeaking

Leadership

Adaptive

Teamwork

CriticalThinking

Assistant Lighting Designer at LUME Lighting Design

Assistinginthedevelopmentofalternatelightingstrategies

Evaluatetherenderingimageaccordingtothelightspesifications

Preparepresentationresourcesinpostproductionsoftware

Architecture Intern at PT. Graha Multi Inovasi

Involvedinresidentialaswellascommercialwork

Designingspaceintheframeworkofarchitectureandinteriordesign Preparingworkingdrawings,making3dvisualizations,andsitevisits

Bintaro Desain District 2022 Volunteer

InchargeofticketingatTamanSampireun

Explaining5backgroundofinstalledinstallation

Mentor Scholarship 2022 - Even Semester

MentoringintheArchitectureDepartmentwith5mentees Reviewthematerial

Freshmen Partner

Beingafreshmen’smateduringtheirfirstyearoncampus

Helpfreshmentoadapttocampuslifeespeciallyinarchitecturedepartment

The 2022 ASEAN English Olympic Liason Officer

Inchargeofstorytellingfieldcompetition

Briefingofjudgesandparticipantsregardingapplicableregulations

Platinum Architectural Design Competition 2023

HIMTION Sketch Competition by HIMARS BINUS

Sayembara Gaung Bandung by ITB

Hydrophilic ACSENT 2021 by Udayana University

Perumnas Idea Competition by Idea Perumnas

Sketchup

Autocad

Archicad

Rhinoceros

Grasshopper

Indonesian English

TheSoulofBandung

The9OfficeBuilding Exploring thegoldencage Re-activationthroughlightingdesign Enlightinghappenshere

Mo-Zen

Microlivingspace

BintaroDesignDistrict2023|AtelierRirixLUME

The 9 Office Building

Data/Course

Typology

Stage

Scope

Location : : : : :

2024/FinalProject

MixedusedOffice-Retail Design

Exterior&Interior

JalanRE Martadinata,Indonesia

The Nine is an office building that implements visual comfort aspects at the design stage Located in Jakarta, which is also called a metropolitan city, office buildings are a place of activity for Jakarta residents who work in them However, a number of facts reported in the 2020 Health Journal reveal that there is a trend of decreasing eye function in office workers which stems from "Eye Fatigue Condition" which occurs because several offices in Jakarta have not yet achievedthelightingindexaccordingtoSNIstandards

Therefore, a design was initiated that prioritized the visual comfortaspectoftheofficebuildingtosolvethisproblem The definition of good lighting design is " a combination of natural lighting design and wise use of artificial lighting" - Manurung, 2017

Backgroundoftheselectedsiteandit’ssurroundingpotential

The chosen site is situated at the junction of Jalan RE Martadinata and Jalan Ancol Timur Both roads are heavily trafficked by private and public vehicles due to the area ' s commercial and tourism activities

The surroundings of the site are primarily trade and service zones (orange colour), owing to its strategic location near several depots in the Tanjung Priuk area and its proximity to residential neighborhoods (cream colour) This makes the site highly suitable for commercial development, supported by the extensive transportation infrastructurefrequentlyusedbythecommunity

Daylightpotentialanalysiscanbeusedtogainimportantinsightsintoabuilding'sdaylightperformance Thisdataservesasareferenceorroughguideforidentifying whichpartsofthebuildingneedadjustmentstopreventglare Thetimevariablesetinthissimulationrangesfrom08:00to18:00,aligningwiththemajorityofworking hoursinIndonesia Thisallowsobserverstoidentifytheareasthatreceivethemostsunlightthroughoutthedaywithinthesite'scontext

Based on the two key aspects considered in the simulation the duration of sunlight exposure and the building's design optimal results are observed in the fourth alternative In this scenario, the building mass is divided into two separate structures with increased height This configuration allows the elevated areas to receive sunlight for extended periods, thereby enhancing natural light penetration into the building Additionally, this design creates zones that are both shaded and illuminatedoptimally,balancingtheneedfornaturallightwiththenecessityofavoidingdirectglare

CONDITION1

Themassofthebulkybuldngisrectangular nshapewithgenerallightingtype using panellghttypestoprovideeven ight

CONDITION2

Themassofthebuildngiscurvedinwardssothat thasmoreareasforopenings Using zonedlightingandpanellightingprovidesgenerallight

RESULTS

Theroomisbrghtlylitthroughout Lighting evel300-350lux Requires210 ightponts

RESULTS

CONDITION3

Themassofthebuildingiscurvedinwardssothatithasmoreareasforopenings Using zoninglghtingtypes aswellasspotdownlighttypesprovidespecificlightaccordingtothe roomzoning

Thebrightestpontoftheroomis ntheworkspace Lightinglevelof300-350luxintheworkspacearea 250luxincirculationareasand400-500luxinareasnearopenngs Requires150 ightponts

RESULTS

Thebrightestpontoftheroomis ntheworkspace Lightinglevel180-200 uxintheworkspacearea 100 uxinthecirculationarea Uses150lightpoints Unevenlight

Thetwofloormassesofatypicalofficebuildingaresimulatedtoobtaintheappropriatelightingstandardindex AccordingtoSNI6197(2020)theaveragelightinglevel forofficebuildingworkspacesrangesbetween300-350lux

Ofthethreeexperimentsthathavebeencarriedout,themostoptimalcombinationofartificialandnaturallightingoccursinthesecondcondition,wherethereisagap inthebuildingmasswhichcausesareductioninthenumberoflightpointsduetothehelpofnaturallightfromoutside Thetypeoflightingusedisadiffusepanel lighttype(1500lm)withamoreevendistributionoflightintheroom

11StoreyConcreteSlab

SlidingDoorB-Building

StructureColoumn

60x60

NorthGateCanopy

WPCFinished

AluminumWindowGlazing

VehicleEntrance

ServiceEntrance

SouthGate-DropOffGlassCanopy

LowEGlass
LowEGlass

Bintaro Design District

Atelier Riri x LUME

Data/Course

Typology

Stage Scope

Location : : : : :

2023/InternshipProjectatLUME

Installation

Completed

Exterior&InteriorLightingDesign

Perkici,Indonesia

During my internship at LUME Lighting Design Studio, I was given the opportunity to handle a collaborative project with Atelier Riri at the 2023 Bintaro Design District (BDD) Event, themed "Re-Activation," with the guidance and support of mentors at the studio This event aimed to rejuvenate urban spaceswithinnovativeandsustainabledesignapproaches

The project involved installations at three locations, each focusing on structural systems that could be reused after dismantling,aligningwiththeevent'ssustainableethos

Two of these installations were situated in public spaces within the Perkici community, which remain actively used and enjoyed by residents My team and I were responsible for enhancingtheseinstallationsthroughstrategiclightingdesign, ensuring our work aligned with the architect's initial concept

The lighting design played a crucial role in highlighting the installations, enhancing their visual appeal, and ensuring they blended seamlessly with their surroundings while maintaining functionalityandsustainability

Studio Atelier Riri served as the main venue for the 2023 Bintaro Design DistrictEvent,hostingarangeofactivitiesincludingexhibitionsofbuiltworks, seminars, and private dinners The diverse nature of these events required versatilelightingdesigntocreatetheappropriatemoodforeachsetting

For the exhibition scene, we used mini downlights to provide a spot effect, effectively highlighting the models on display and drawing attention to the intricate details of each piece These focused lights ensured that the exhibits werethecenterofattention,enhancingthevisualexperienceforvisitors Duringpresentationsandseminars,thelightingwasadjustedtocreateabright ambiance This well-lit environment facilitated clear visibility for speakers and audience members, promoting engagement and interaction The bright, even lighting helped maintain focus and ensured that the details of the presentationswereeasilyseenbyallattendees

For private dinners, the lighting was designed to be dimmer, creating a more intimate and cozy atmosphere The softer lighting helped to set a relaxed mood, encouraging conversation and a sense of closeness among the guests This transition in lighting was crucial in transforming the space from a public exhibitionandseminarvenueintoaprivate,invitingdiningarea

The careful consideration of lighting variations at Studio Atelier Riri played a pivotal role in the overall success of the event By tailoring the lighting to suit different activities, we were able to enhance the atmosphere and ensure that each event had the desired impact This project not only highlighted the importance of adaptable lighting design in multi-functional spaces but also demonstrated our ability to create dynamic and engaging environments that meetdiverseneeds

BDD Venue Atelier Riri Open Studio

BDD Installation

More or Less

The "More or Less" installation at the 2023 Bintaro Design District Event served as both a coffee break area and an upper-level seating space For the diningarea,weinstalledcustomlampsundertheminidiningtablestocreatea warm, inviting atmosphere The front of the installation, featuring intricate laser-cut designs, was highlighted with outdoor strip lights to accentuate its artistic elements Surrounding vegetation was illuminated with spike lights, enhancing the natural beauty and creating a serene environment This thoughtfullightingdesigntransformedthespaceintoavisuallyappealingand functionalareaforeventattendees

Lighting Elements

BDD Installation

2.4 x 2.4 x 2.4

Located between the residents' basketball and badminton courts, this installationhasbecomeaplaygroundforlocalchildren Thelightingconceptis centeredaroundthreekeythemes:Playful,Structure,andVegetation

The use of lights highlights the mural, making it the standout element Linear lights create a levitating effect, giving the structure a "light" impression Additionally, ambient lighting enhances the area, casting intriguing shadows from the surrounding leaves and adding to the overall playful and dynamic atmosphere

Lighting Elements

Alllightsareturnedonforeverydayuseandcanalso serve as a setting for communal events that need brightlightingthroughout

In this scene, the ambient lights remain on to create thedesiredatmosphereforthemoviescene

Thenightscenehighlightsthelightsbeneaththeeye, aimingtobrightenthepathleadingtothelivingroom

DAILY - MOVIE - NIGHT
DAILY - MOVIE - NIGHT
DAILY - MOVIE - NIGHT

TheSoulisaculinarydestinationthatmayignitethelife of Bandung locals Not just the cuisine, but also the traditional ambience, are expressed in the materials, decorations,andgreenplacesthatreduceurbannoises

Due to the pandemic environment, people were hesitant to venture outdoors,resultinginalotofdecreases in income from the tourism industry and traders in the site area Therefore, people start using a semi-outdoor idea toimproveaircirculationandminimize convection in buildings Drive-through system also become a choice with limited space utilization Offering pedestrian access, since more individuals are coming to appreciate thevalueofwalkingforhealth

MassTransformation

To achieve a nice view, use the mass configurationofacylindricalform

Creatingaholetomakeaircirculated

Combiningbothmasses

Equippingbuildingswithelementsand stalls

TraditionalAspects

KawungBatikisabatikmotifthatisneatlyplacedgeometricallyin theshapeofasphericalsimilartokawungfruit(atypeofcoconut orsometimessometimesconsideredapalmorkolang-kaling)

Bambooisoneofthetypicalmaterialsthatisoftenusedbythe peopleofWestJava

Roof

ClayRoofTiles

RoofStructure

Bamboo

RoofStructure

RoundConcreteColoumn

SangkarKawung

Alumunium

DriveThruArea

Pavilliun

BambooStructure

Kiosk

Concrete&Conwood

LandscapeArea

1stFloorPlan

2ndFloorPlan

Thechosenlandisdesignedto cater to the drive-thru trend that gained popularity during the pandemic It includes garden and dining areas for useoncethepandemicends

Day-NightPrespective

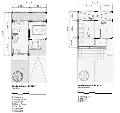
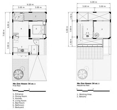
Mo-Zen

Data/Course

Typology

Stage Area : : : :

2021/PerumnasCompetition

Cluster DesignProposal 45Sqm,36Sqm

In addition to food and shelter, every human being need a place to call home In general, the home may be viewed as a location where the residents can seek refuge or shelter from allnaturalelementssuchasrain,scorchingsun,andsoon

Mo-Zen is a house that has a modern house concept with a touch of zen style that incorporates natural elements, calm colours with several characteristic such as white, black, and brownbringoutwarmandcleanexpression

In essence, the Mo-Zen house is more than just a home it is a sanctuary that provides refuge from the physical and mental demands of daily life Its modern, Zen-inspired design creates a perfect balance of style and tranquility, making it an ideal place to call home The combination of natural materials, calm colors, and thoughtful design elements ensures that Mo-Zen houses offer a warm, clean, and serene living environment thatnurturesthemind,body,andsoul

Flashing

1200x330mm

9mm

BattenLightStructure

48x30x045mm

Underlayer

120x100cm,2mm

LightSteelRafters

75x 35x075mm

Type 45
FodableBed
Plywood
WaterTank
Balcony
HollowSteel
SolarTuff
BitumenRoof
VynilWood

Type45isaone-storystructurewithamezzanineand asidethatmaybeutilizedasextraspace Thefrontis adapted to the covid circumstance, allowing online motorcycle driver to wait there while minimizing physicalcontact

Type 45

Microlivingspaceshaveemergedasapopular and practical solution to the challenges of urban living, where space is often at a premium These compact dwellings are designed to maximize functionality and efficiency, making the most of every square foot

Despite their small size, micro living spaces canofferahighqualityoflifebyincorporating smart design elements and multifunctional furniturethatservemultiplepurposes

The main circulation of the home is provided through openingsonthebackandsidesofthebuilding

bodhiparamita89@gmailcom (+62)82122522165 https://wwwlinkedincom/in/metta-paramita-47748521b/

Turn static files into dynamic content formats.

Create a flipbook
Issuu converts static files into: digital portfolios, online yearbooks, online catalogs, digital photo albums and more. Sign up and create your flipbook.