
PORTFOLIO
Technische Universität Wien

PORTFOLIO MERT GENC
![]()

PORTFOLIO
Technische Universität Wien

PORTFOLIO MERT GENC
01
Studio Gebäudelehre
02
Studio Wohnbau
03
CAMPUS SPACE+ MM
Studio Hochbau
04
MUFA
Bachelor’s Entwerfen
MM
Studio Gebäudelehre
Sommersemester 2020
Betreuer: Thomas AMANN
Team: Mert GENC, Gözde Arslancan, Halil Akkurt
Studio GBL SS20 Preisträger
Entwickelt aus Motiven von Josef Hoffmanns „Österreich Pavillon“, steht „MM“ für eine unterirdische Sequenz von sechs Ausstellungsräumen, die auf subtile Art Bezug auf räumliche Themen der sechs ProtagonistInnen der Wiener Modernen nehmen.
Die Aufgabe des Studios war der Entwurf eines Museums, das sich explizit den WegbereiterInnen der Wiener Moderne widmet. Ausgangspunkt war die Annahme, dass das Archivmaterial wichtiger Positionen dieser Generation in einer Sammlung zusammengefasst und zugänglich gemacht wird. Das neue Haus sollte dabei Möglichkeiten für die wissenschaftliche Auseinandersetzung und Vermittlung bieten. Aufgrund der räumlichen Nähe zur Werkbundsiedlung Wien und diversen anderen Bauten dieser Zeit wurden zwei mögliche Standorte in Hietzing vorgeschlagen.
Spezieller Fokus der Auseinandersetzung waren sechs wichtige Protagonisten der Wiener Moderne, nämlich Josef Frank, Josef Hoffmann, Adolf Loos, Richard Neutra, Rudolph Schindler und Margarete Schütte-Lihotzky. Deren Entwürfe, Texte und gebaute Projekte sollten die Grundlage einer räumlichen Annäherung sein.
Fürs Konzept wurde das Motto „one house for six architects“ mit dem Wahrnehmungsgedanke kombiniert, wo 6 Räume für 6 Architekten in einer Serie zugeschaltet sind. An jedem Raum wurden subtile Merkmale von den 6 Protagonisten angewandt. Bei Schindler rahmenartigen Elemente, Neutra den Kernprinzip, Loos Ebenenunterschied, Hoffmann Bogentüren, Schütte-Lihotzky offene und kompakte Grundriss und bei Frank vertikale Extrusion.













Durchgang





Studio Wohnbau
Sommersemester 2020
Betreuer: Adrian JUDT
Ein dynamisches Viertel mit einer Überlagerung von Wohnen, Arbeiten, Freizeit, Kultur und Bildung wird auf einer 2km langen linearen Strip entlang der Hauptverkehrsachse parallel zur Küste hinein in die Innenstadt Barcelonas erschaffen.
Dabei wurde für Studio Wohnbau eine ergänzende linearen Siedlungsstruktur entworfen. In diesem spezifischen Teilbereich der Stadt wurde die sequenzielle lineare Struktur zum Ausgangspunkt des Agierens. Eine Neudefinition von leistbarem Wohnen und neues Arbeiten in der Stadt, Co-Living und Co-Working, Lehr- und Lernräumen, neue Freizeitaktivitäten und Mobilitätslösungen waren die Kernthemen beim Entwerfen.
Auf einen individuellen Baubereich sollte entworfen werden und einzelne Wohnbauten sollten im Austausch mit ihren jeweiligen NachbarInnen zur kleinsten kommunizierenden Einheit einer großen zusammenhängen Stadtstruktur werden.
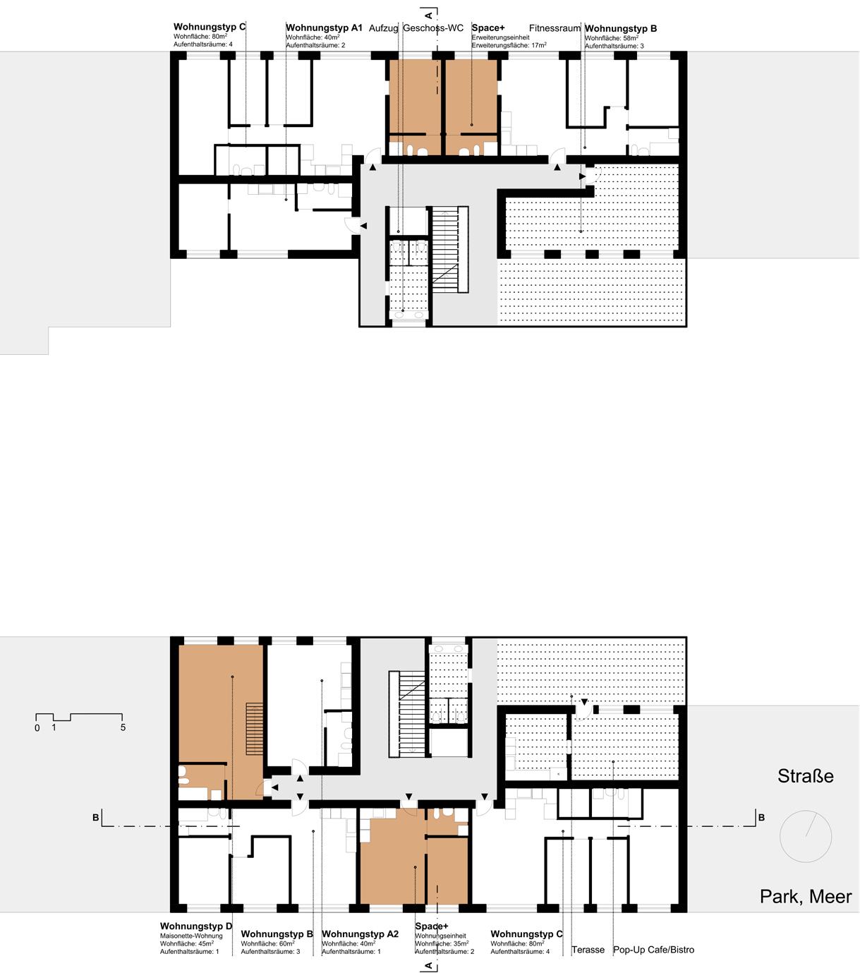
Das Space+ sollte als Funtkionsangeboten in dem Gebäude betrachtet werden. Neben einer Vielfalt von gemeinschaftlichen Flächen können die Space+ Einheiten zu den Nachbarwohnungen zugeschaltet, allein als Wohnfläche verwendet, oder in Abstimmung von BewohnerInnen definiert werden. Damit wird die Interaktion zwischen den BewohnerInnen erhöht und eine soziale und kommunikative Wohngemeinschaft und Nachbarschaft gefördert. Das Space+ kommt zwischen den gewöhnlichen gemeinschaftlichen Funktionen und den Wohneinheiten und dient nicht nur als noch eine gemeinschaftliche Fläche, sondern auch als eigenständige Einheit.



konzept diagramm


axonometrıe

lageplan schematısch





szenarıo Blick von der Bücherlounge auf die d achterrasse

grundrıss eg

ansıcht längs

ansıcht quer


grundrıss 2.OG

schnıtt län G s
Studio Hochbau
Wintersemester 2020
Betreuer: Michael SEIDEL
Team: Mert GENC, Cagla Öykü Arda
Die Covid-Gesundheitskrise zeigte unter anderem die räumlichen Defizite zahlreicher bestehender (Bildungs-)bauten auf. Ausgangspunkt für ein radikal neues bauliches Konzept ist daher der Gedanke eines offenen und vernetzten, inhärent flexiblen und funktionsübergreifenden Raumgerüst.
Dafür wurde für Studio Hochbau „educational refuge“ ein bewegungsanregender, lern- und arbeitsfreundlicher räumlicher Organismus ausgesucht. Ein Entwurf, dass selbstverwaltet und kollektiv genutzt wird, der den Bildungsraum im Sinne von Platons Akademie vor allem als Lebensraum versteht und die Verflechtung von Gesellschaft und Bildungseinrichtung begünstigt. Einerseits offen genug, um Veränderungen zuzulassen und auf die sich schnell ändernden Bedürfnisse unserer Gesellschaft reagierend, gleichzeitig aber auch ausreichend determiniert, um eine optimale Nutzung zuzulassen.
Mit dem Projekt Campus St. Marx wurde eine Antwort auf die Frage gesucht, wie die Hierarchie des traditionellen Campusgebäudes gebrochen werden kann, sodass ein demokratischer, kommunikativer und offener Raum entsteht. Drei Hauptfunktionen einer Ausbildungsfläche, nämlich Lehre, Lernen und Sozialfunktionen, sollten möglichst offen, kommunikativ und flexibel gestaltet werden. Die zahlreichen und verschiedenen Geschossterrassen dienen nicht nur als Außenräume, sondern tragen auch dazu bei, dass das Campusgebäude leichter und offener wirkt.



konzept funktıonsschnıtt

konzept formfındung







schnıtt längs











































konzept volumen tragwerk axonometrıe






























































































































































































































Bachelor’s Entwerfen
Sommersemester 2021
Betreuer: Wolfgang KÖLBL
Team: Mert GENC, Halil Akkurt
MUFA ist ein Multifunktionsgebäude in Favoriten.
Neben Bahnhofcity und in einem besiedelten Gebiet Wiens bietet MUFA den Besuchern/-innen ein Kulturzentrum mit Handel-, Gastronomie-, Büro- und Erholungsflächen.
Es übernimmt seine Basisform aus der Baufläche, und schafft durch eine Brücke eine direkte Verbindung zur Bahnhofcity mittels ein geschlossenes Erschließungselement.
Mit Extrusionen, Intrusionen und einer Stahl-Glas-Fassade entsteht Bewegung an der Oberfläche, die die Schwere des Volumens bricht und Geschossterrassen schafft, welche zu den vorhandenen Dachterrassen addieren.


konzept diagramm




perspektıve BLICK AUS SONNWENDGASSE