PORTFOLIO: Interior Architecture.

Page 1

Space &Furniture Gaci meriem

Introduction to my work,,,,,,,, p1 Upgraded furniture,,,,,,,,, p7 8 Specific design contexts : space & furniture ,,,,,,,,, p9 15 Drawing abilities,,,,,,,,, p20 Interior Furniture design,,,,,,,,,,p2 5 Design thinking & Design concepts : visual and material representations,,,,,,,,, p16 19 Urban Furniture design ,,,,,,,,,,p6 Hello, I am Meriem Gaci, an Architect designer and in this porfolio

Cognition and concepts.

interior

Each human is a complex organism guided by a set of cognitive features such as: problemattention,memory,emotions,andsolving abilities. To identify his needs in a space, the human uses hisculture.needs,experience,andThis described relationship is known as the spatial cognition A promotional post for my instagram account showing a costumized piece of furniture. design concepts explained researchmastersMeriemGaci::patrimoineduprotectionladansspatialecognitionladeL’insertionabordsdesadéquateplusgestionuneetdélimitationunevers

1

3 interior

Date: 20.09.2020. I have spent five (5) years in the student dormitory, in an eight (8) m² room with a normal-sized bed taking half of its space, and I had issues focusing on my different tasks from studying to sleeping to all in between, resulting in physical and emotional struggle. In response to this problem, I developed a practical bed design with four uses: an integrated desk, a tray, a nightstand, and a sofa to optimize students' activity and outcomes in the dorm.

2

1. A workspace with a floating desk and a floating chair 2. mini sofa. 3. sofa 2. Rotatable and adjustable desk partition and chair base. 3. The floating desk may serve as a bed tray. The chair base may serve as a nightstand. 4. A fully fonctioning bed with a retractable mattress. -Sketching process45 Start with an enclosed workspace Think of an evolutive one piece bed gabarit Combine the two previous units Test interfuntionalusage 3 21 Develop a multifunctioning system

Date: 17.01.2020. 4 .

We worked on display furniture design to improve the pharmacy’s efficiency and space usage, entirely relying on the consumer pathway. The placement centrality and the front office proximity were key elements to create a visible piece of furniture that presented low priced and attractive products. The column was considered as a conceptual element that guides the client to the rest of the spots in the pharmacy. This customized gondola design has proven its functionality, attractiveness, and aestheticism, attracting more attention and profit, and opening perspectives for more innovative pharmacies furniture.

Improving Pharmacy Efficiency & Customer Experiences

Beautystand

This upgraded pharmacies gondola was designed to promote about to expire medication and dermo cosmetology for a pharmacy in Constantine. Although this last was spacious, the central space had an imposing structural column that blocked the perspective towards the front office, the most important spot for payments and inquiries.

Interrupted perspective towards the front office Improving clients’ experience and the creation of different stops The Gandola position comparing to the pharmacy’s functional enteties 5 Top view design details The pharmacy’s layout + furniture details

Date: 17.12.2019. more space

5-tillA 5-tillA

6

Made out of the up cycled cork from a nearby garden, recycled concrete from the architecture school, led light, and vegetation. This urban furniture was designed to rationalize the usage of an abandoned modern art museum plot that has an unexploited view of the Mediterranean Sea.

M First model Concept Second model

Date: 14.07.2020. Date: 28.07.2020. the space under the stairs

Bathroom

Staires and entery

The Front Porch: The client assumed that this (6) m² space would only serve as a shoe organizer, but we saw more potential and proposed a customized Front porch sitting

The client wanted to upgrade her bathroom and asked to keep the same cabinet and marble tub. To upgrade the space, we suggested upcycling the cabinet with a pop-art touch and warmer tones to get along with her marble.

Living room: We eventually proposed to use the space under the stairs by adding decoration and storage.

7The understaires space The front porche The process BeforeAfter

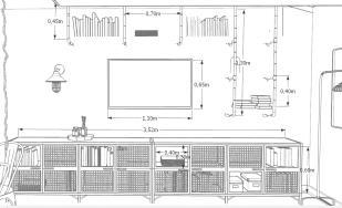
The client is attached to this old TV stand, she requested to upgrade this furniture piece, to a desk. Since the item's measurements weren't suitable for desks, we proposed a coffee station that conveniently fulfilled her other goals related to routine and lifestyle. Date: 02.01.2021. 8 Before After

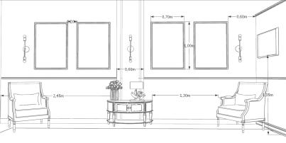
We have suggested a simple yet ingenious solution to restructure the hall. It resumes by adding a BA13 wall to reorient the flow from the main door to the stairs; this solution will also generate a transitional space that is obstructed from visitors.

9Before Conceptual design

As part of deeming the « narrow effect,» we suggested animating the large white glossy walls with moldings, double mirrors, and an entry table, creating three stations to dispatch the activities. For occasional and frequent use, two armchairs were integrated, and two drop stools were seamlessly tucked under the entry table, making a total of 4 sittings.

Entry hallEntry hall

Date: 02.01.2021. The residents of this recently finished house ( a family of 04) have already started to experience discomforts due to many visible and non-visible malfunctions. The entry hall is disproportioned 7 m * 2,25m presenting a variety of mixed patterns on the floor and ceiling with different types of paint, texture, and lighting. In addition to the overloaded visual aspect, the space is multifunctional, both the garage and the sauna doors are opposite to the entry door, making such private pieces frequently exposed and visible to anyone.

The separating wall will contribute to both functional and formal enhancement of the hall.

Formally, the wall will bring more visual comfort to the hall ( 5*2,25) and will act as a support for decoration and sittings.

Functionally, it will assure hierarchy from the public to private spaces ( from the front door to the sauna and the garage) and will block the ventilation to the sauna preventing shocking temperature change. Furthermore, it will host a seamless shoe case and towel hanger for garage and sauna users.

The Guest Room is the first in a series of three spaces to design.

Guest Room

Date: 15.08.2021

10

Guest Room

The client requested a redesign of his house 2nd floor to receive his parents for their first vacation in town. two conditions were imposed by the client: an ethnic style inspired by the Arabic summer palace; and a reversible design operation since the parents' vacation is temporary. The two major composing areas are the bed and the Arabic Majlis.

11

Since mingling in Arabic culture is restricted, This piece was designed to host the opposite sex during family gatherings.

This piece constitutes the main sitting (Majlis), a traditional Arabic gathering space that in this case articulates between the guest room and the terrace. The deeper than wide piece is marked by a poly lobed arch in its longitudinal axis.

Date: 30.07.2021.

Date: 10.08.2021. before before

12Layout development Technical details

Further

This 21m² Trapezoidal space is owned by a pilot who has spent most of his time with shiny, brushed off modern furniture, for his guest room, he asked for an industrial style to add up a bit of "roughness" to his routine.

The client requested a bricks wall, a round table for four (04) people, a library, and a Click Clack Sofa Bed. I suggested having four auto functional yet connected spaces: lecture, dressing, night, and leisure. furniture details are worked-on according to the client's needs and requests. Date: 10.03.2021.

Basement kitchen. 13Technical details Before After

This kitchen is atypical as it is an integral part of a private sweet situated in the basement. This open space is occasionally used for family gatherings. The creation of a central island was mandatory to define the space and assure a physical delimitation and visual continuity for the kitchen worktop. Although its presence, the kitchen's work triangle was respected supported by the m 60*60 cm windows, the aeration was one of the main challenges we faced in designing such space. The kitchen was designed in an L shape with an upper cabinet, modern features and facilities requested by the client. Situated in a 50m² enclosed space with only two that fades into lighter shelving to flatter the presence of the window. In addition to that, an extractor hood was added for air evacuation. 10.03.2021.

Date:

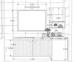
The nine (9) m² space destined to be a kitchen presents good lighting and ventilation with three openings. The client had a preference for modern white, and we suggested seamless cabinets with a push to open system.

14

kitchen.

One of the three openings is a window that separates the kitchen from the living room. In an attempt to bring warmth to the modern space, we’ve played with compositions of colors and textures of different items: Book holder, floral arrangement (white tulips), hangers, cutlery, etc. The bar.

Nail salon. A well known influencer in Algeria reached out to us for a professional interior design coaching for her nail salon. As the space and furniture designs were already discussed, our mission focused on creating a harmonious interior by choosing materials (textiles, paint, etc.) and presenting them to the client as a rendered 3D model.

Bonus social media-related work: I created this visual chart for a culinary art/cooking content Instagram account.

15

The Antidote Telling a concept : End of studies project 16 My supervisors:

For our end of studies projects, our tutor chose socially and geographically challenging sites with rooted social dilemmas, mine was characterized by a 10 meters platform and an active nightlife. Due to the propagation of social and material deficiencies, I designed a professional insertion center, developed formally and functionally from the concept of the antidote, to find a cure for this infested environment and incite youth to find effective solutions for situation.their Mrs. Boussoualim & Mr. Souami

My classemates 17

18 Presentations of the project developement

In 2016, I made this 1/50 living room model to experiment with details of design, materials, and lighting as part of a Simulation for residents.future

Prototypes and 3D models : The steps above show the evolution of the project ( 3 months timeline), with resumed justifications regarding the feasibility/ function and the environment.

19

Art work from my personal instagram account. 20 Interior sketches

Turn static files into dynamic content formats.

Create a flipbook
Issuu converts static files into: digital portfolios, online yearbooks, online catalogs, digital photo albums and more. Sign up and create your flipbook.