

INTERIORS portfolio

Los Angeles, CA
Melissa A. Gamez
Interior Designer
BALDRIDGE RESIDENCE
LOS ANGELES, CA
KDG was brought in to re model this historic spanish condo in Hancock Park. Originally built in 1929, our clients goal was to update their home but continue the tradition of maintaining its character and charm by doing minimal work, We introduced french inspired hardware, lots of tile work and moulding to keep a “period” look, but introduced new custom cabinetry and demoed the kitchen so that the client can create a space that aligns with their lifestyle.


CONSTRUCTION & DEMOLITION PLAN

MECHANICAL PLAN

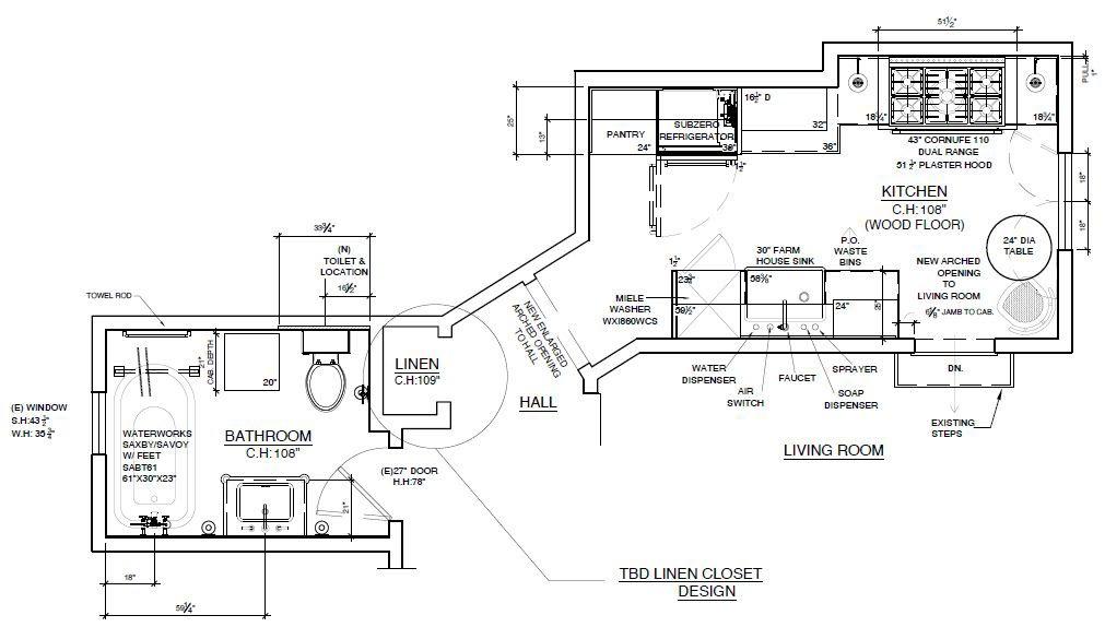
PROPOSED FLOOR PLAN

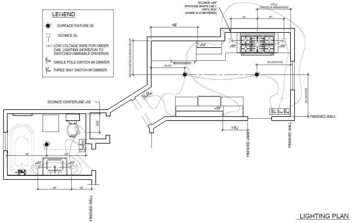
LIGHTING PLAN

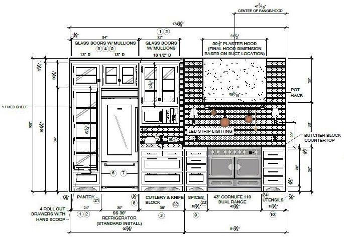
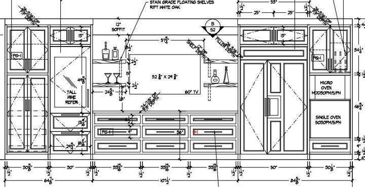
KITCHEN RANGE WALL ELEVATION

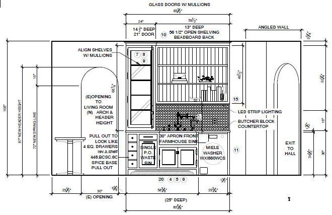
KITCHEN SINK WALL ELEVATION
KITCHEN & BATH SCHEDULES
Plumbing Schedule


















Faucet Waterstone 8010-120UPB




Dispenser Waterstone 4055-UPB Unlacquered Polished Brass 1 Garbarge Disposal Waterstone 4010-UPB Unlacquered Polished Brass 1 Strainer, Flange Mountain Plumbing CMT202/PVD Unlacquered Polished Brass 1





TILE


KITCHEN APPLIANCES




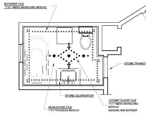
BATHROOM TILE & STONE LAYOUT


BATHROOM FLOOR PLAN

BATHROOM FLOOR TILE LAYOUT INSPIRATION

MAIN FLOOR TILE: 1/2” WHITE THASSOS MOSAIC

ACCENT FLOOR TILE: 1/2” BLACK NERO MOSAIC

YORN RESIDENCE
PACIFIC PALISADES, CA
Building this clients forever home proved to be a unique experience. Some projects go as plan and others are so personal to the client, that the process begins to slow down. During the design phase, the contractor and designer found themselves needing to pivot. That was when The Kitchen Design Group was brought in to complete millwork designs and drawings. By the time we were brought onto the team, the project was on year four and we need to quickly collaborated with the designer to complete millwork drawings; but also keeping their design in mind. The detailed drawings proved to the client that the design concept could be translated into something as simple as door styles and millwork finishes. The 2D drawings were also very important to connect the client to the stone and lighting selections as well as to help her visually understand how she would function in each space.
Exterior Elevation produced by Tim Marshall Construction
SECOND FLOOR PLAN
KITCHEN REFLECTED CEILING PLAN
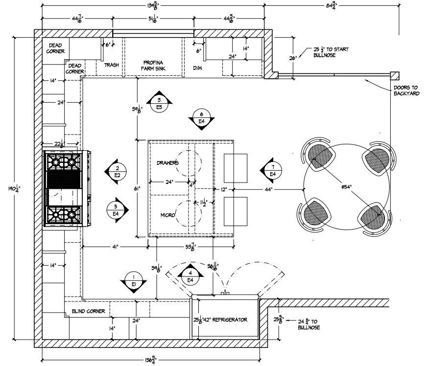
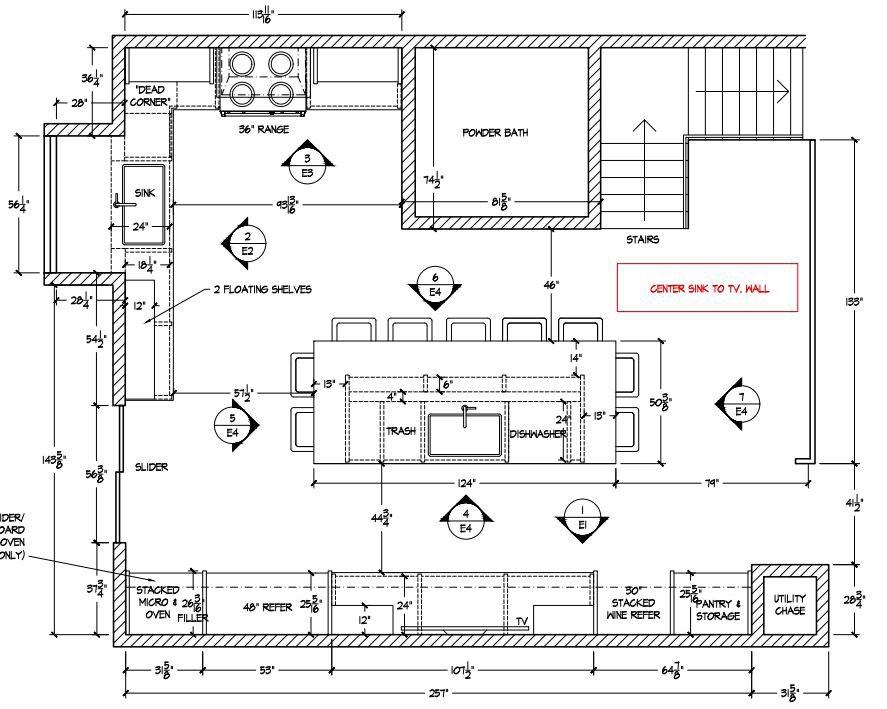
KITCHEN FLOOR PLAN

CHEVRON SHIP LAP DESIGN ON CEILING

REEDED STONE DETAIL ON ISLAND ENDS

INSPIRATION IMAGERY
DESIGNER: MARY McDONALD
PRIMARY BATH FLOOR PLAN


SLIM REEDED DRAWER AND DOOR FRONTS
SECOND FLOOR - PRIMARY BATH ELEVATIONS

MIX OF MIRROR &


DOOR STYLE

MASTER BEDROOM
PRIMARY CLOSET FLOOR PLAN
SECOND FLOOR - PRIMARY CLOSET ELEVATIONS
2ND FLOOR - MASTER CLOSET ELEVATIONS
2ND FLOOR - MASTER CLOSET ELEVATIONS
TAM RESIDENCE
IRVINE, CA
QFW was hired for a kitchen and pantry re model to compliment the parisian design throughout their home. Our goal was to blend the re model with the rest of the home and not make it stand apart. We landed on blending rich brass tones that were existing in the living room as well as a creamy white kitchen cabinetry to tone down the contrast from the existing flooring. We went with crown and hardware that had ornate details as well as a handmade look tile for an antique look. Along with the kitchen, we decided the pantry was in for a much needed update. We worked through ideas to make it more functional due to the pantry being a walkthrough space and with that we decided to incoorporate a bar with a brass gallery rail for bottle display



KITCHEN FLOOR PLAN



CABINETRY FINISH: BENJAMIN MOORE SWISS COFFEE
CROWN DETAIL

DOOR STYLE: SHAKER WITH 3/8” BEVEL DETAIL

PANTRY/BAR FLOOR PLAN

APRON FRONT SINK FRANKE, 36” SINK


SCHEDULES
KITCHEN LIGHTING



PANTRY SEMIFLUSHMOUNT


BRASS GALLERY RAIL AT PANTRY

KNOBS ISLAND PENDANTS

ARIZONA TILE
FLASH, WHITE
5”x5” SQUARE

TILE & STONE

HARDWARE
ARIZONA TILE
QUARTZ SLAB
MAXIM, POLISHED

EXISTING FLOORING

HICKEY RESIDENCE
LONG BEACH, CA
This Long Beach condo is nestled in a gated community with sights of the bay facing a row of docked boats. Keeping this view in mind, the task was to incorporate the blue and natural tones into the kitchen and living space. We tore down the existing kitchen walls and bled the kitchen into the dining room to open up the entire floor to the living room. By doing so, we made it possible to for the clients to have views of the bay from the kitchen island. The final re model showcases how the space works with their everyday life but also freshening up the space to fit a waterside home asthetic. The contemporary design style confirms that these changes will hold up with the the ever changing design trends.



EXISTING FLOOR PLAN


PROPOSED FLOOR PLAN
T.V WALL ELEVATION SINK WALL ELEVATION


ISLAND & FLOATING SHELVES: RIFT SAWN WHITE OAK CLEAR MATTE COAT

PAINT FINISH: DUNN EDWARDS CHARCOAL

SINK & RANGE WALL CABINETRY FINISH: BENJAMIN MOORE DECORATORS WHITE

Door Style: Cal Door
#MP-216
T.V WALL CABINETRY
SMUDGE


ISLAND PENDANTS WALL SCONCE ABOVE FLOATING SHELVES

BACKSPLASH AT BAR & WINDOW WALL:
ARIZONA TILE, FLASH IVROY, 2”X8”

COUNTERTOP & BACKSPLASH SLAB:
ARIZONA TILE QUARTZ BERTOLI, POLISHED
SCHEDULES

ISLAND COUNTER HEIGHT STOOLS TAPESTRY WOVEN COUNTERTOP STOOLS
PLUMBING FINISH: BRILLIANCE STAINLESS STEEL


CABINETRY HARDWARE AT PERIMETER HONEY BRONZE FINISH

CABINETRY HARDWARE AT ISLAND MATTE BLACK FINISH
KITCHEN LIGHTING

KITCHEN PLUMBING


