Commercial Innovation

Page 1

MELISSA YUAN

COMMERCIAL INNOVATION

BEIHUOSHAN HOTEL

BEIHUOSHAN HOTEL is a renovation project based in one of the most historic districts near Tiananmen in Beijing, China. The commission aims to recollect the reminiscence of lifestyle in the local Hutongs, which are narrow alleys formed by lines of traditional courtyard residences passed down from thousands of years ago. They symbolize a typical neighborhood community and traditional street culture in the northern Chinese regions that cannot be simply replicated.

The design approaches include extending the greeneries, rearranging the courtyard aspects, innovating the alley's visiting pathways, and reconnecting the private and shared spaces. Guests should feel free to glean a sense of the precious Chinese history and carry on with the newfound memories towards the future. There is a return of reused materials, such as the traditional Chinese black bricks, as well as some newly programmed spaces as a creative integration into the traditional lifestyle in courtyards.

The hotel provides numerous models of single, double, and deluxe suites to the incoming guests. The view from every room is different towards the capital’s cityscape with traditional Chinese roofs.

The guest room models include special features, such as attics and twin beds. Even indoor, the hotel aims to bring people together by recreating an intimate communal atmosphere.

The exterior spaces, including patio, courtyard, and rooftop, are mainly tailored towards providing an inner peace for the guests. Through organic materials such as wood, stones, as well as the use of large spaces, these outdoor areas serve an opportunity for self-reflection and quality relaxation.

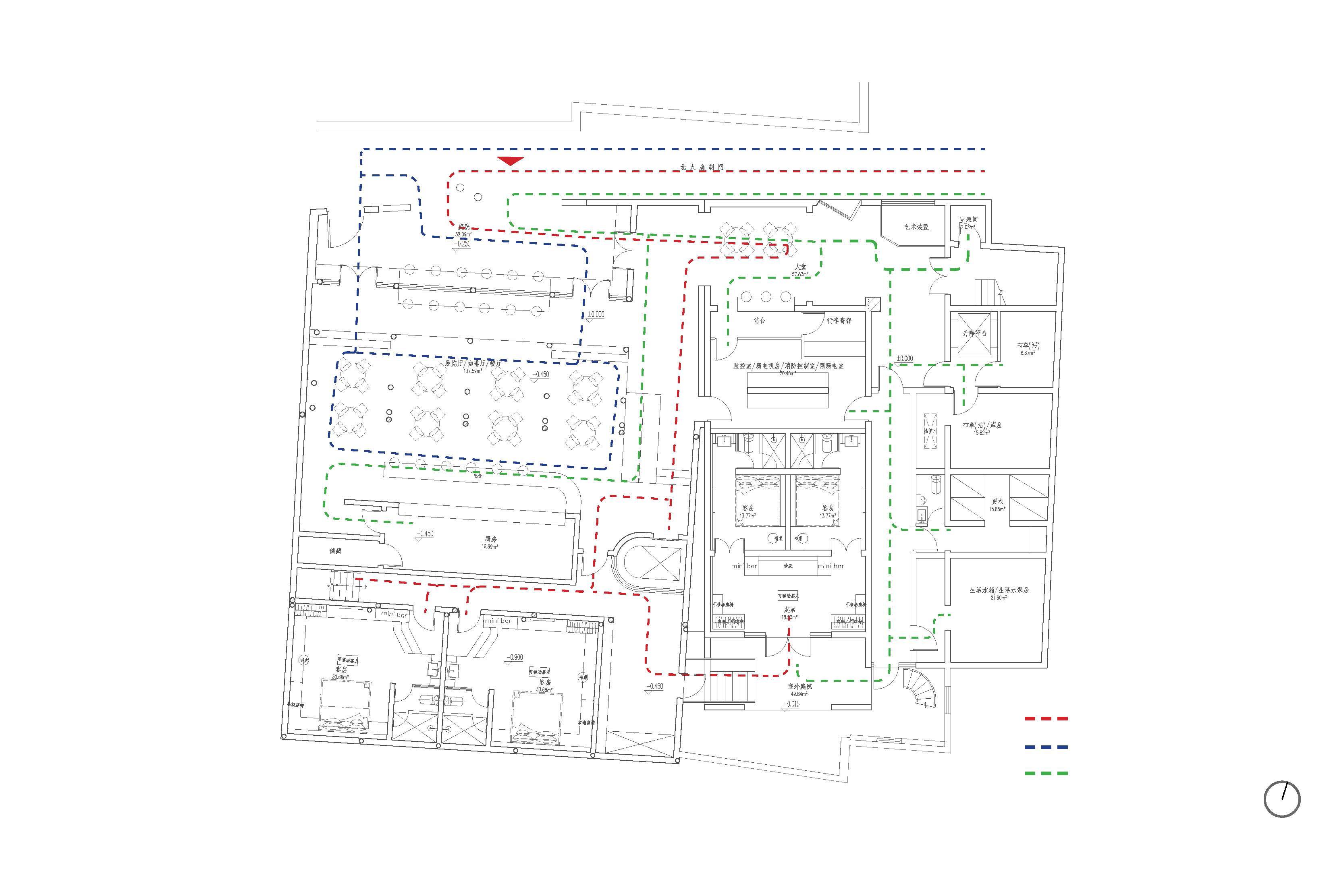
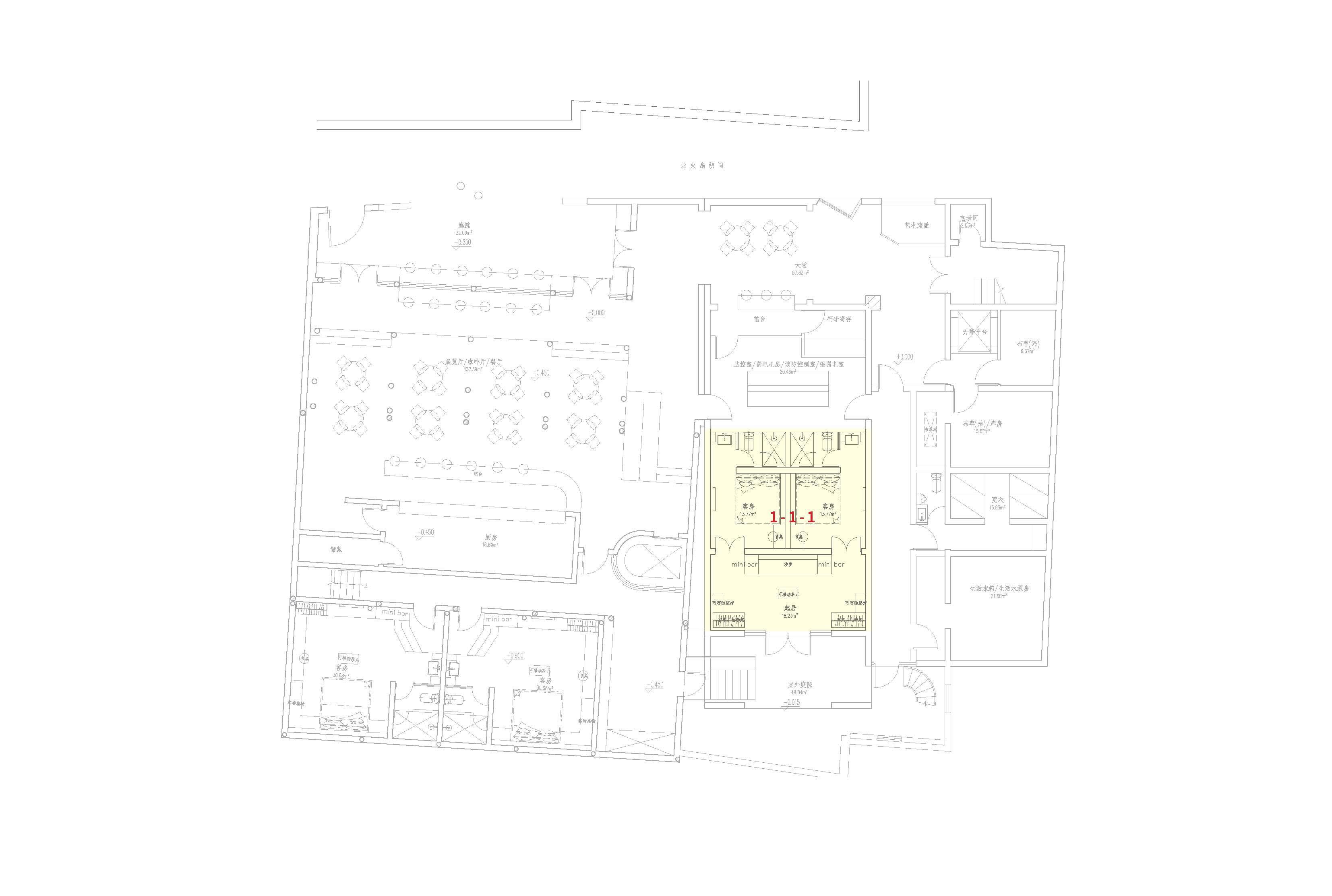
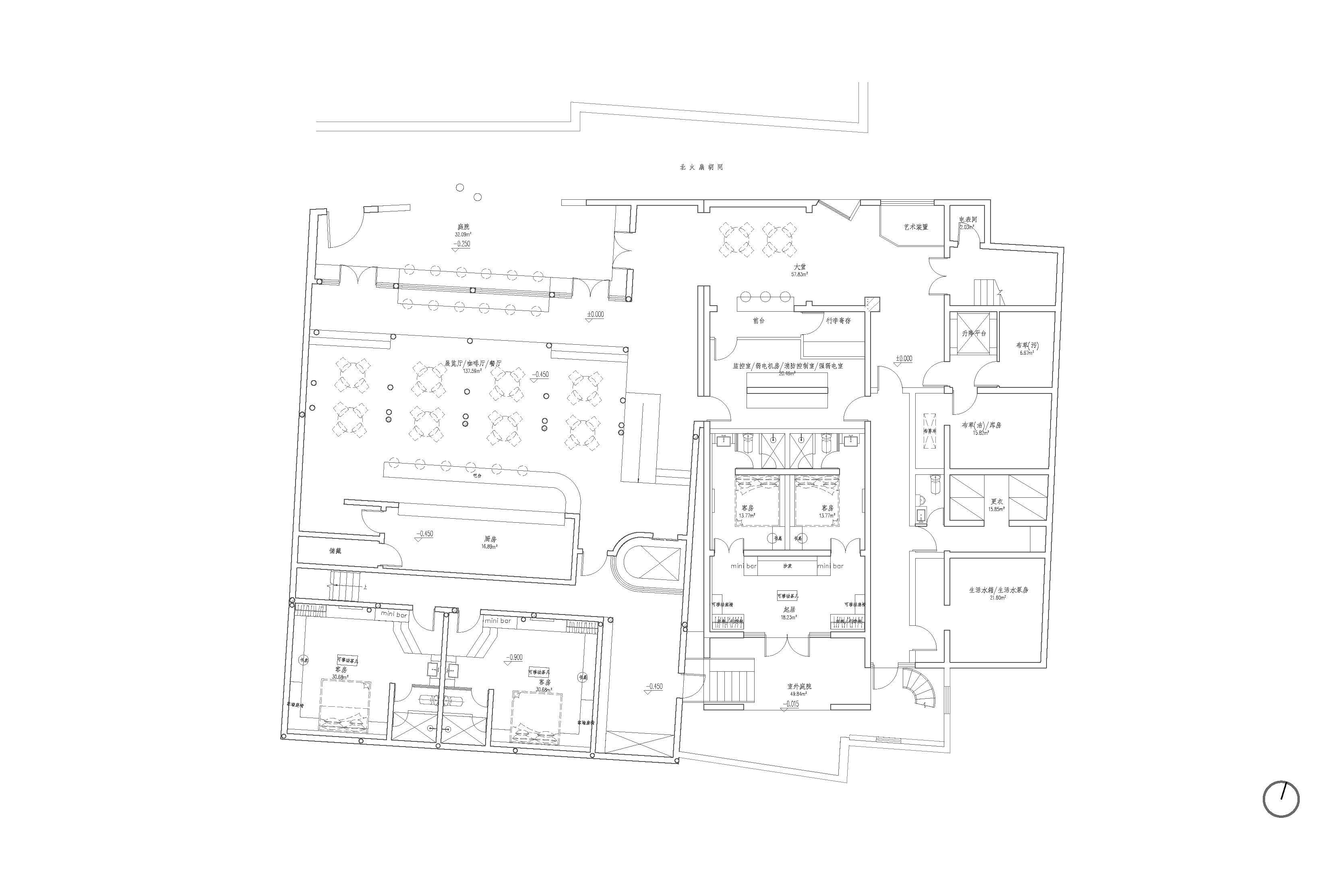
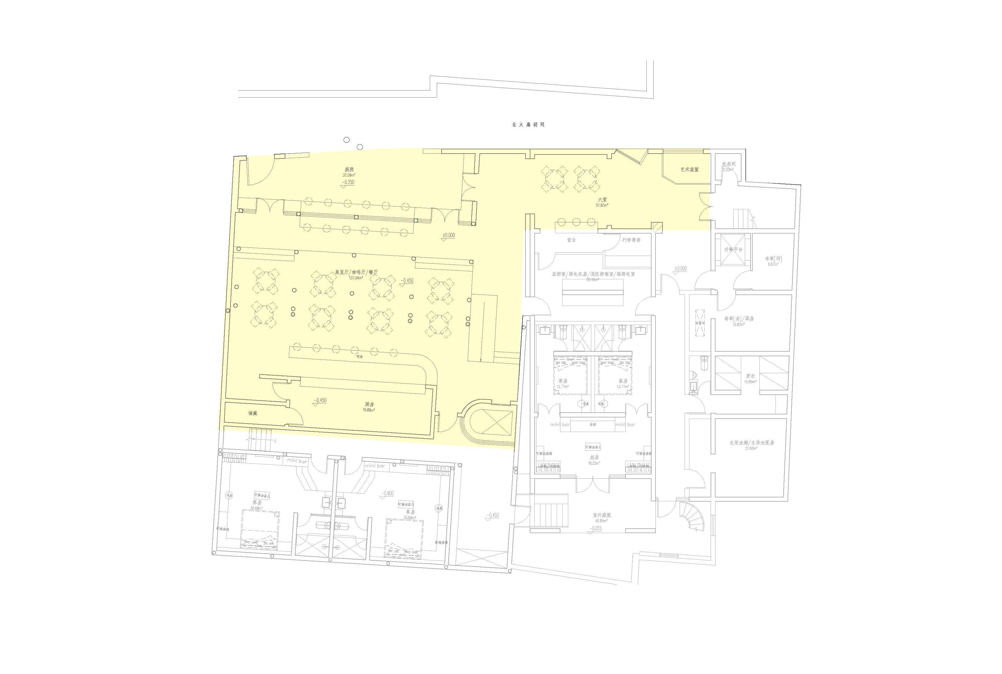
FLOOR PLAN - LEVEL 1

Hotel guests access

Coffee bar guests access

Staff access

PATHWAY - LEVEL 1
FLOOR PLAN - LEVEL 2

Hotel guests access

Staff access

PATHWAY - LEVEL 2
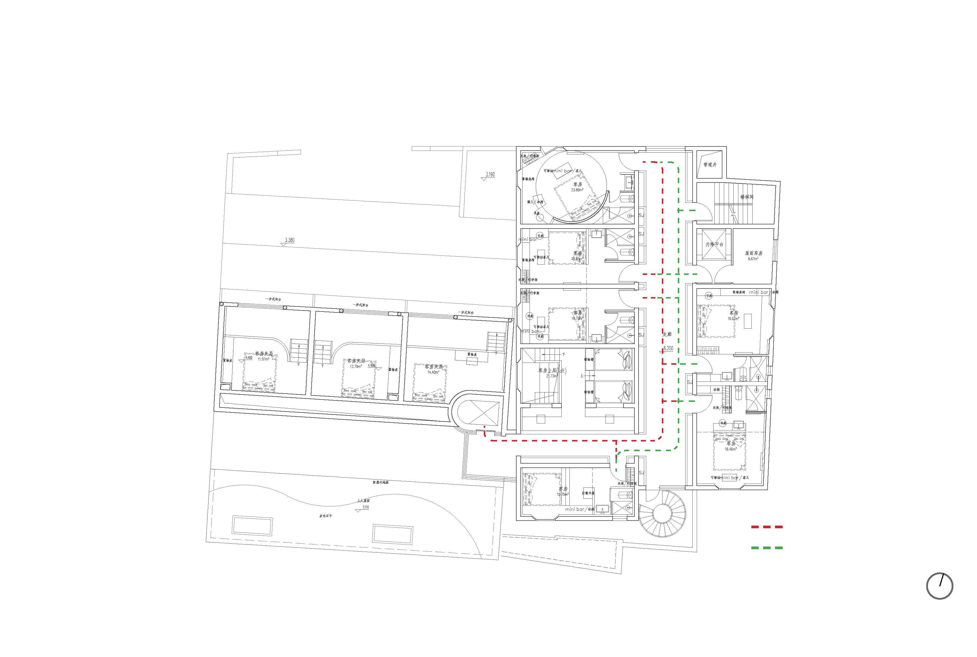
FLOOR PLAN - LEVEL 3

Hotel guests access

Staff access

PATHWAY - LEVEL 3
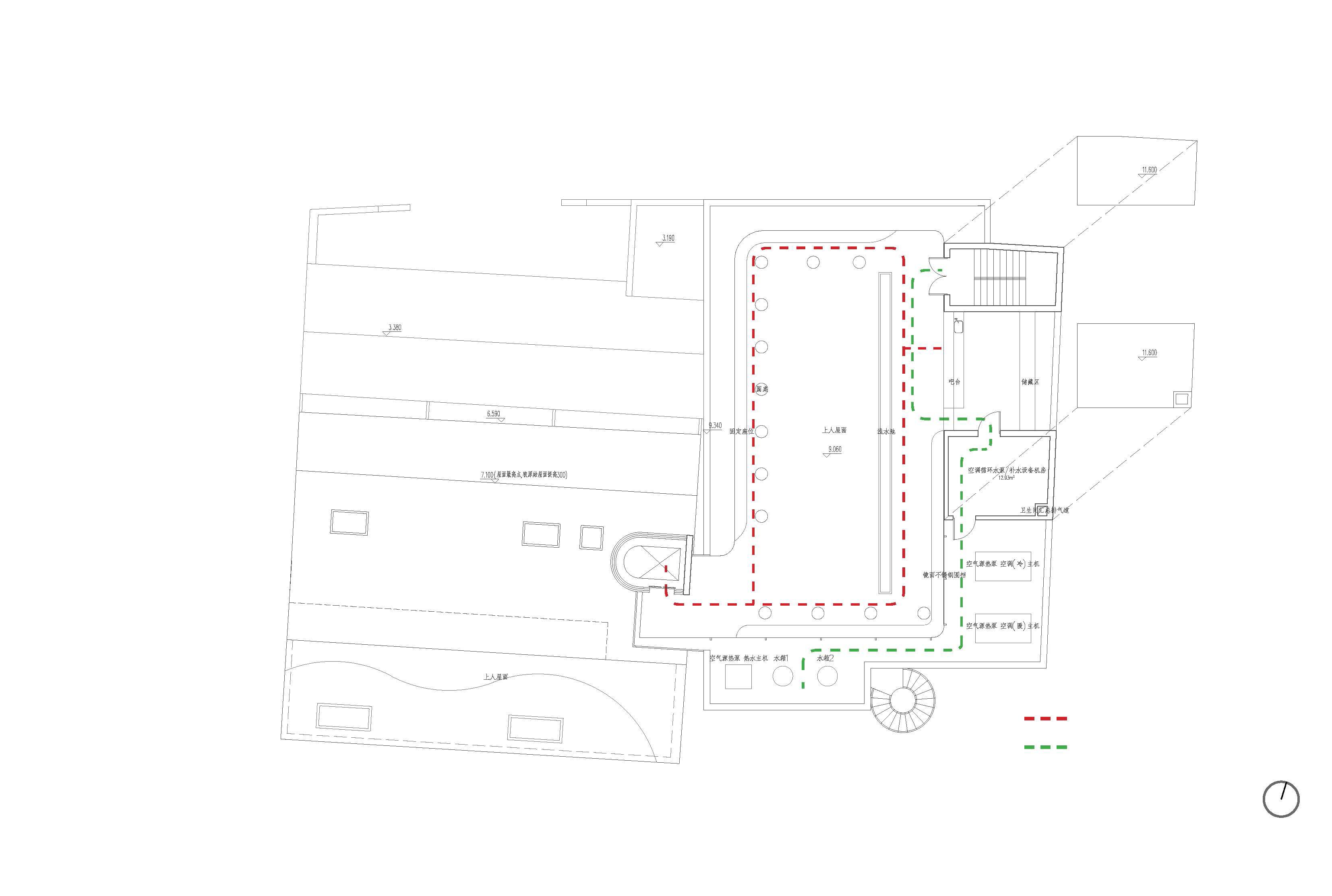
FLOOR PLAN - ROOFTOP

Hotel guests access

Staff access

PATHWAY - ROOFTOP
AERIAL VIEW
NORTH ELEVATION
ENTRY FAÇADE
GUEST SUITE FAÇADE
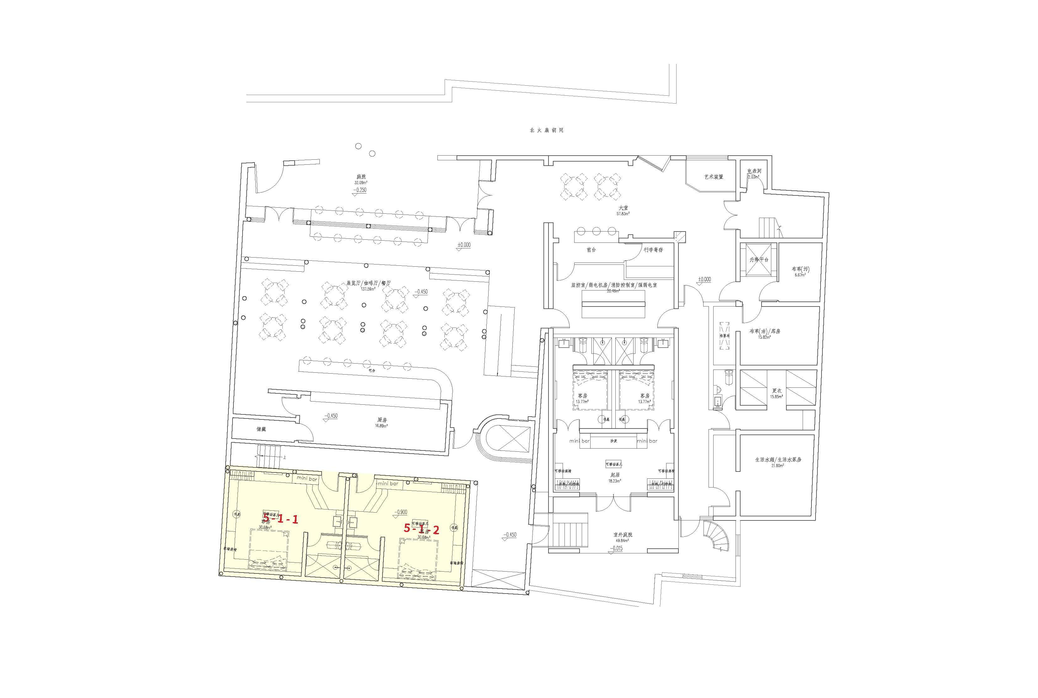
PUBLIC AREA - LEVEL 1
PUBLIC AREA - LEVEL 1
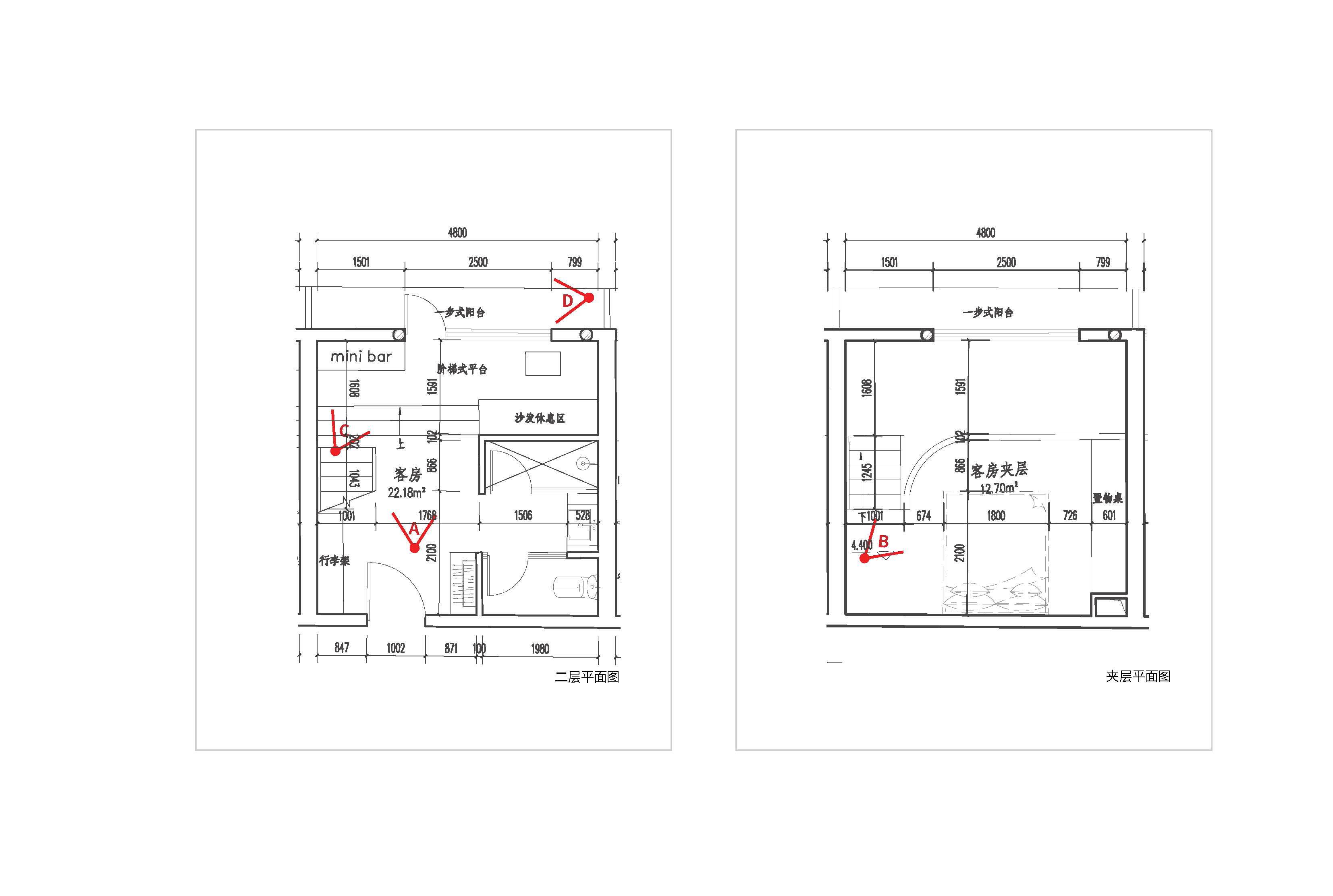
GUEST SUITE - LEVEL 1
GUEST SUITE - LEVEL 1
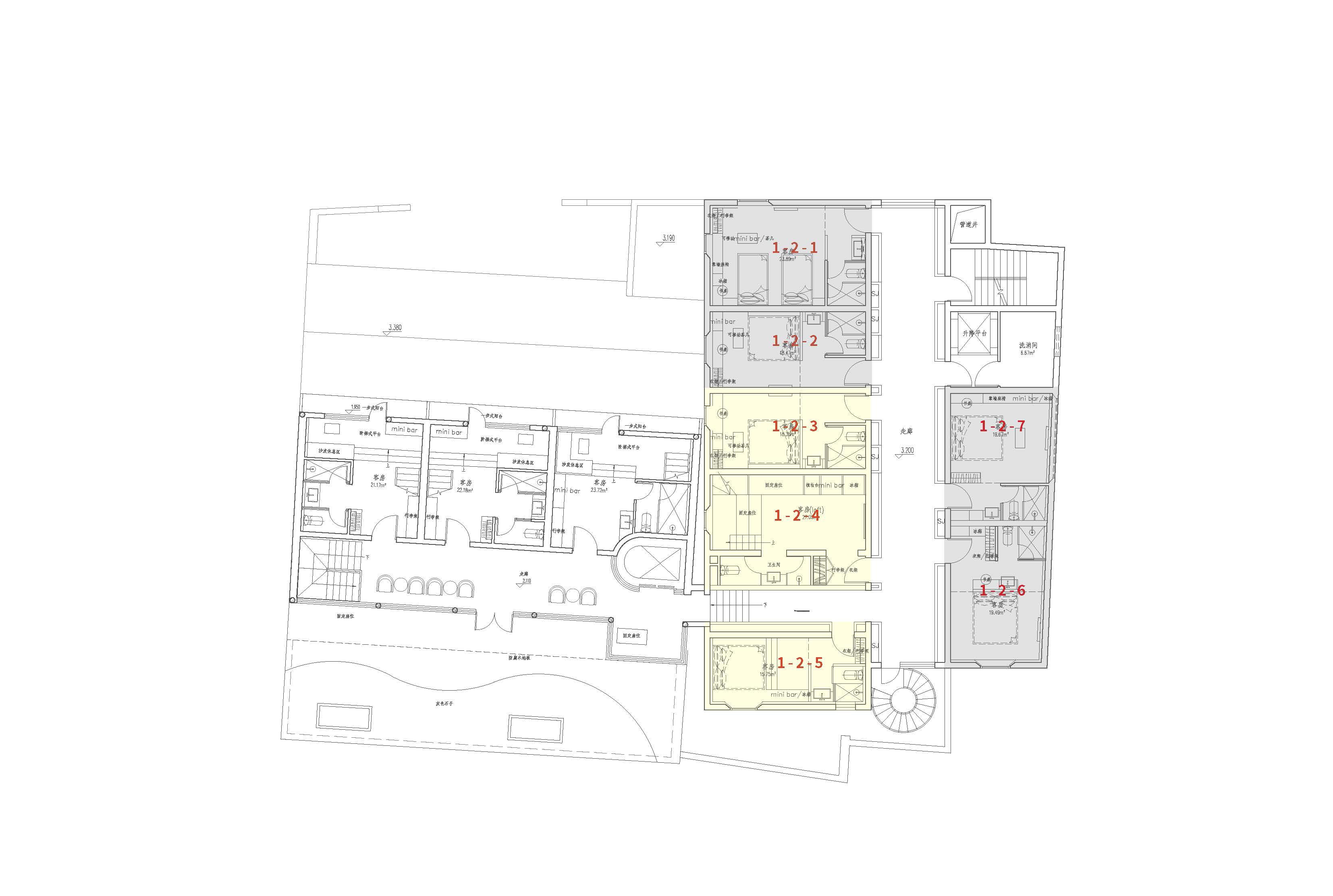
GUEST SUITES - LEVEL 2
GUEST SUITES - LEVEL 2
GUEST SUITES - LEVEL 2
GUEST SUITES - LEVEL 2
GUEST SUITES - LEVEL 3
GUEST SUITES - LEVEL 3
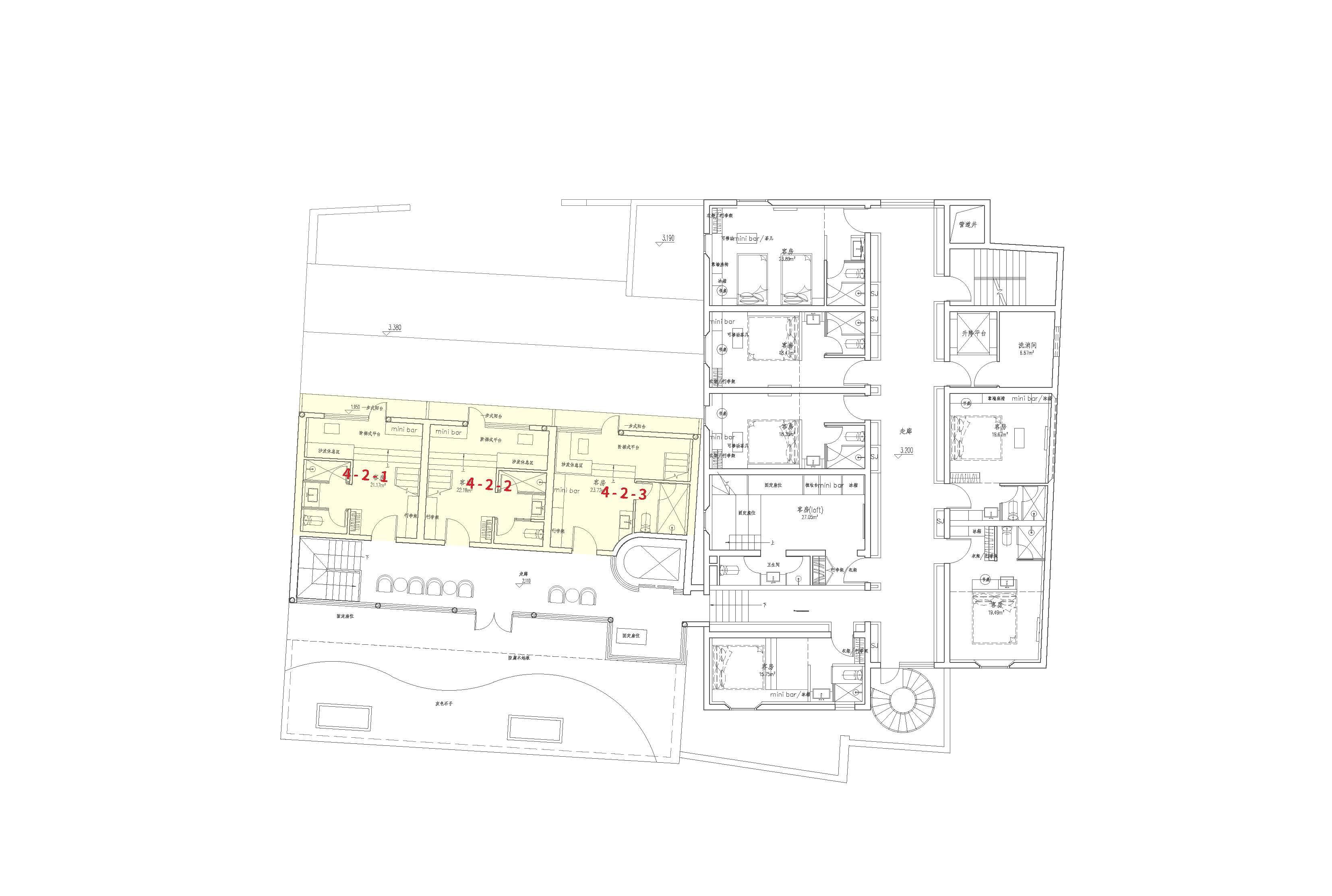
GUEST SUITES - LEVEL 4 LOFT
GUEST SUITES - LEVEL 4 LOFT
GUEST SUITES - LEVEL 4 LOFT
GUEST SUITES - LEVEL 4 LOFT
GUEST SUITES - LEVEL 4 LOFT
GUEST SUITES - LEVEL 4 LOFT
GUEST SUITES - LEVEL 4 LOFT
GUEST SUITES - LEVEL 5
GUEST SUITES - LEVEL 5
CORRIDOR - LEVEL 2
CORRIDOR - LEVEL 3
+ Aranya Flagship Store
Dongliang

The arrangement of shortlegged shear indoor walls represents a flexible and relatively dense formation.

Seeking out a new way that avoids traditional arrangements, such as wall line-ups, column hideouts, and separate crops display.

Qinhuangdao, Hebei, China

Circulation Path

ARANYA Flagship Store Cave by Dongliang UCCA Shaqiu Art Museum How can the European-Minialist style break through the traditional idea of retail store in Aranya, a magical, romantic culture? ?
SITE ANALYSIS

CONCEPT

Aranya

Location: the Golden Coast of Beidaihe

Natural scenery + humanistic atmosphere

+ art and architecture + A pioneering community for the future

Dongliang

Designer brand collection store

Style: fusion = classic + pioneer + aesthetics

Space Age

In 1969, Neil Armstrong landed on the moon for the first time, marking the beginning of an innovative, optimistic, and golden decade.

This avant-garde sci-fi spirit is strong and fluid; it can be obtained without relying on any nostalgia or exotic elements. It has become a classic and a direction we explore in. It breaks through the traditional style, boldly experiments with structures and new materials (polypropylene and plastic).

DESIGN INTENT

Dongliang + Aranya Flagship Store

A single form that supports the building

A commercial space that overflows the boundary

The volume interwoven with the shear walls

MONOMER

A round and bulky unit

WEDGE

The crystal clear foam

OVERFLOWING BUBBLES

MONOMER - FAÇADE
- FLOORPLAN
MONOMER
Uma Wang Changeroom Changeroom Changeroom Collection Exhibit Main Entry Home Furniture
+ Decor Exhibit Changeroom Storage + Surveillance Back Entry Restroom

Changeroom Changeroom

Changeroom

Restroom

Collection Exhibit

Main Entry Home Furniture + Decor Exhibit

Storage + Surveillance

Changeroom

Back Entry

Customer Pathway

Staff Pathway

CIRCULATION
MONOMER -
Uma Wang
WEDGE - FAÇADE

WEDGE

- FLOORPLAN
Uma Wang Changeroom Changeroom Changeroom Restroom Collection Exhibit Storage + Surveillance Back Entry Home Furniture + Decor Exhibit Main Entry
CIRCULATION
Changeroom
Changeroom Changeroom
Restroom Main Entry Storage + Surveillance Back Entry Home Furniture + Decor Exhibit WEDGE -
Uma
Wang Collection Exhibit Customer Pathway Staff Pathway
- FAÇADE
OVERFLOWING BUBBLES

Collection Exhibit

Changeroom

Changeroom

Changeroom

OVERFLOWING BUBBLES - FLOORPLAN

Storage + Surveillance

Back Entry

Changeroom

Janitor

Restroom Home Furniture + Decor Exhibit

Main Entry

Uma Wang

OVERFLOWING BUBBLES - CIRCULATION

Changeroom Changeroom

Changeroom

Janitor

Restroom

Back Entry Collection Exhibit Storage + Surveillance

Main Entry Home Furniture + Decor Exhibit

Changeroom

Uma Wang

Customer Pathway Staff Pathway

A C A C B
B
OVERFLOWING BUBBBES - INTERIOR PERSPECTIVES
Wall materials: metal + concrete Floor material: self-leveling concrete

MONOMER

Aerodynamic flagship store concept

SECTIONAL CONSTRUCTION METHODS - FAÇADES

WEDGE

Humby and solidly holding up the residential building above

OVERFLOWING BUBBLES

Spontaneously blending into the surrounding

Residential building

Structure: steel frame + prefabricated alloy metal surface + single curved glass

Surface treatment: Method 1 (construction practice) - galvanized steel sheet with insulation layer, fastening system fastener

Method 2 (outdoor sculpture) - overall spraying of convoluted fiberglass

Steel structure base + hyperboloid glass

Principle of base support:

Double laminated glass

100 thick steel keel support

Glass modular opening:

Residential building Residential building

COLUMN CONSTRUCTION METHODS - INTERIORS

MONOMER + WEDGE:

When the surface is solid enough to wrap the shear wall and exhibits are embedded, it is humble and powerful.

OVERFLOWING BUBBLES:

When the surface is less solid, the booth and the shear wall are superimposed; neat and streamlined.

Process method: factory prefabricated wood board - bend - paint - split cabinet/table/frame transported to site for assembly.

Shear wall, arrangement display, and material references

EXHIBITION FURNITURE REFERENCES

Polypropylene plastic + fabric references

Changeroom style references

Light source style references

OFFICE GALLERY DONGLIANG FITTING ROOM WASHROOM 1 2 3 4
REFERENCE
VISUAL SIGNAGE

SUPPORTING DONGLIANG TO REVEAL CHINA'S DOMESTIC FASHION CULTURE TO THE REST OF THE WORLD.

Science and Technology Museum

Exhibition Design

Collaboration with House Fiction

"TECH DOWN-TO-EARTH"
If heterogeneous symbiosis does not only exist in our imagination, then the rapid science and technology development would be patently reflected in the down-to-earth daily life in urban villages.
Kinetic Forest at The Venice Art Biennale, 2015 Wassily Kandinsky's abstract expressionism

As technology rapidly grows, the impact of TECH DOWN-TO-EARTH will eventually be more influential.

One-Hour Living Circle

The Greater Bay Area

Shenzhen Tech-coverage of The Greater Bay Area Tech-coverage of the nearby cities and countries

Hong Kong Guangzhou Macau TECH DOWN-TO-EARTH

"Can we integrate science and technology into today's urban villages?"

Shenzhen Science and Technology Museum (New)

Shenzhen's urban villages

Hypothesis

"These buildings are too close to each other!"

"What a fast development in the surrounding area!"

"Our room is dark, suffocating,and humid!"

"Is our village even growing?"

"How come this alley is so dark?"

Existing Urban Villages of Shenzhen

Major

Respond Reveal Transform

"Village" vs. "city"

Comparing to other regions' development, urban villages fall behind. However, their unique features are worth knowing about. In replacement of full demolishment or reconstruction, the technological integration is enormously potential.

Tech façade

Urban villages' housings are dense in units, achieving closely built residences such as the "handshake" and "kissing" buildings. Applying high-tech materials on the façade redesign will allow citizens seek a new type of energy in their narrow valleys, enhancing communication and interaction.

Water mist screen

Urban villages are known for their poor air ventilation and limited natural light access. Especially in Shenzhen's humid climate, the interiors accumulate abundant water vapor in the air. Wisely turning the vapor into convenience for the residents would greatly benefit their quality of life.

Regular

VR/AR experience

Exhibition guests can experience the transition between the past, today, and future's urban villages. 5G communication technology leads the residents on trend and on track.

Serve Overlook Grow

AI robot

In an era heavily influenced by the global pandemic, public service robots can deliver, monitor germ spread, and execute reminders for garbage and more. Their portability will also allow them to become "little village warrior" patrols.

Urban village hologram

The technologically oriented urban villages in Shenzhen could become "mother village" across the GuangdongHong Kong-Macau Greater Bay Area, even more so beyond the regional limit to inspire bigger thinking.

Exhibition Items

Major Item - Reveal

Urban village regions and their surrouding developed regions form a human-scale urban modelportraying an impactful contrast between two regions from their vertical difference

"The tall regions stretch up and down, too."

Self-guided lifting system

"These short regions must be the urban village."

"I can literally get into this exhibition? Cool!"

Spinning Automated Guided Vehicle (AGV) stage

Major Item - Respond

Multi-faceted, intervening walls monitor the human body sensor through sounds to achieve lighting effects, customer service, and other interesting functions

"I'm
"Our alley is no longer dark with these intelligent

"The

Intelligent touch screen

Infrared human body sensor inductive lights

Interactive sensory façade materials

floor displays a digital sky!" an AI robot, glad to be your service." Intelligent lighting wall AI screen display Intelligent floor display lighting walls!"

Major Item - Transform

Negativitiy channels through the views and becomes cozy urban life

"Oh yes, our room finally feels dry for the first time after all the water vapor is gone! We can also look out to the water mist exhibition at the windows!"

"Hey, how does it feel to have a fancy water mist screen that drew out all the humidity inside?!"

Ultra-thin soft screen

Indoor cycling experience

Water mist screen exchange experience

Overlook - urban village virtual living experience

Augmented reality calculates real-time images and is enhanced by computer-generated visuals. Virtual reality is a simulated experience technology that creates an immersive digital environment.

Serve - automatic surveillance and cleanse

The intelligent technology of autonomous inspection equipment can assist with surveillance in high-risk locations and perform big data analysis

Grow - impact on The Greater Bay Area

Holographic projection is a physical recording of an interference pattern that uses diffraction to create a three-dimensional light field.

Items
Regular

Exhibition Strategies

"How does the best exhibition arrangement that benefits the second floor activities look like?"

"I can check out how these holographic projective globes move all the way from up there!"

Space outline Travel paths
Midair holography Exhibitions

A : The "city" and "village" development comparison

B+C : Tech-optimized urban village residences

D : Urban village series (mid-air holographic projection showcase)

E : Revolutionary changes and living experience exhibition (VR/AR) in urban villages

F : Service area (portable AI assistant)

深圳科技馆 6942 7469 8198 10000 8000 7291 上 下 上 下 上 下 上 下 上 下 上 下 上 下 上 下 上 下 上 下 上 下 上 下 上 下 上 下 公园 入口 公共空间 衣帽间 票务 临时展览 BOOKSTORE 车库电梯 货物电梯 书店 门厅 门厅 ������� ���� CLOAKROOM PUBLIC AREA ���� �������� 准备厨房 ���� ������� 咖啡厅、快餐 科学商店 临时展览 SCIENCE SHOP ����������������� ������� ����������������� ������� ������� ���� ����� ���� ����� ������ TICKET 车库电梯 7.5 CAFE / FAST FOOD 卫生间
卫生间 ������ 空调机房
水房
水房
空调机房 �� 12.3 7.5
����
安装位置和主要尺寸 │ Exhibition content D D D E E E F
������ 货物电梯 ����� ����
�� 空调机房 ��
水房
水房
�����
����� ���� FCL 5700mm
A B C
Suggested travel path Exhibition Layout

“I can still see the second floor exhibition while standing up here!!“

“These holographic globes move towards us when we are all the way up here!“

“Woah... this is the urban villages' timeline of changes from void to existance, and to the future!“

“I didn't know there are so many urban villages in Shenzhen's Greater Bay Area!“

Exhibition Perspectives

“Sick!

"These

“LOOK, MOM! The water vapor all ran into the tunnel over there!“ This is an interactive water mist air screen!“ walls are moving!“
Exhibition Perspectives

“The urban village actually looks kind of cute in comparison to the skyscrapers over there!“

Perspectives
Exhibition
“Hey there!“

“Let's go check out what is going on over there by the wall once we get back down.“

“Mommy look! The wall is moving!“

Exhibition Perspectives

Grow - Shenzhen's urban villages after tech-integration

Grow - the Greater Bay urban and global influences

Transform - tech-optimized urban village living exhibition

Grow - Shenzhen's urban villages before tech-integration

Overlook - urban village living experience exhibition

Respond - "Handshake" building tech-façade exhibition

Reveal - city and village contrast exhibition

Sectional View
YUAN More issuu.com/melissayuan Contact melissayuan1999@gmail.com LinkedIn linkedin.com/in/melissayuan
MELISSA

Turn static files into dynamic content formats.

Create a flipbook
Issuu converts static files into: digital portfolios, online yearbooks, online catalogs, digital photo albums and more. Sign up and create your flipbook.