Melissa Swoboda Architecture Portfolio 2023

Page 1

MELISSA SWOBODA

ARCHITECTURE PORFOLIO

SELECTED WORKS 2022-2023

ARCHITECTURE

2

TABLE OF CONTENTS (MOST RECENT WORK)

DER WALD ACADEMIC SPRING 2022

PG 4

MARITUS ACADEMIC SPRING 2023

PG 12

SEHEN ACADEMIC FALL 2022

PG 20

MONTAGNA ACADEMIC SPRING 2022

PG 28

DER WALD

DER WALD IS A PROJECT PROPOSAL TO RENOVATE AND REACTIVATE DAFFIN PARK IN THE BEAUTIFUL CITY OF SAVANNAH, GERGIA, USA. THROUGH THE CREATION OF A GREAT PAVILION/STADIUM AND PATHS THAT FLOW THROUGH THE PARK CONNECTING DIFFERENT ACTIVITIES, THE PROJECT AIMS TO ELIMINATE THE PROBLEMS OF THE ORIGINAL DESIGN. INSPIRED BY THE SHAPES AND PATTERNS OF NATURE THE PARK LAYOUT ALLOWS FOR ALL AREAS TO BE ACTIVATED, LEAVING NO DEAD ZONES AND MAKING THE PARK A SAFE BEAUTIFUL PLACE TO SPEND TIME IN.

THE DESIGN CELEBRATES THE ALREADY BEAUTIFUL ENVIRONMENT OF THE PARK AND ADDS TO IT WITHOUT BEING INVASIVE, SCENERY IS EMBRACED. THE ACTIVITIES OF THE ORIGINAL PARK HAVE BEEN REORGANIZED AND IMPROVED AND OTHERS HAVE BEEN ADDED TO FURTHER VARY THE AVAILABLE POINTS OF INTEREST. NATURAL RESOURCES ARE ALSO CELEBRATED AND EMBRACED BY INCORPORATING SYSTEMS OF PHOTOVAOLTAIC PANELING FOR ENERGY SOURCING AND WATER COLLECTION FOR IRRIGATION. IN THE SAME WAY, WIND PATTERNS AND SUN ORIENTATION HAVE BEEN THOUGHT OF TO UTILIZE NAUTRALLY FOR VENTILATION AND SHADE.

DER WALD AIMS TO BE A VESSEL FOR POSITIVE INTERACTIONS WITHIN THE COMMUNITY, MOTIVATING PEOPLE TO EXERCISE, SPEND TIME OUTDOORS, WORK TOGETHER AND MEET NEW PEOPLE. COMMUNITY GARDENS, A STAGE FOR EVENTS, AND A FOOD COURT TO EMBRACE LOCAL CUISINE AND BUSINESSES PROVIDE NEW OPPORTUNITIES FOR THE COMMUNITY.

4
ACADEMIC 2022

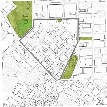
DAFFIN PARK RELATIONSHIP TO DOWNTOWN AREA AND WALKABLE DISTANCES

SITE ANALYSIS

CURRRENT PLACEMENT OF ACTIVITIES AND USE OF SPACES AROUND DAFFIN PARK

CURRENT VISUAL ALONG DIFFERENT LOCATIONS IN DAFFIN PARK

BUILT ENVIRONMENT IN AND AROUND DAFFIN PARK BOUNDS

DAFFIN PARK VEGETATION, BEAUTIFUL OLD TREES TO BE RESPECTED AND EMBRACED AS A DESIGN ELEMENT

SCHEMATICS

7

OLYMPIC POOL

PARKING

PROGRAM LAYOUT THAT IS SEAMLESSLY CONNECTED, ALMOST LIKE A PATHWAY THAT MOVES VISITORS THROUGH THE PARK.

COMMUNITY GARDENS

STAGE AND PICNIC AREA

BASKETBALL COURTS

AA SOCCER FIELD
COURTS
TENNIS
SECTION AA 9
10
STEEL PIPE STRUCTURE FOR ALUMINUM PANELING STEEL BOX BEAM AND WELDED CONNECTIONS SPACE FRAME CONNECTION
11
STEEL BOX BEAM BETWEEN STEEL PLATE COLUMNS

MARITUS

ACADEMIC

MARITUS IS A PROPOSED COMMUNITY CENTER PROJECT IN KAPA’A, KAUAI ISLAND, HAWAII. IT EMBODIES A VISION OF A VIBRANT AND INCLUSIVE SPACE THAT FOSTERS COMFORT, COMMUNITY, AND MEMORABLE EXPERIENCES. AT THE CORE OF THIS DESIGN IS THE INNOVATIVE USE OF CMU (CONCRETE MASONRY UNITS), WHICH OFFERS A UNIQUE BLEND OF SUSTAINABILITY, DURABILITY, AND THERMAL PERFORMANCE. THE COMMUNITY CENTER BOASTS MULTIPLE ROOMS THAT CAN BE UTILIZED BY THE COMMUNITY, INCLUDING VERSATILE CLASSROOMS, SPACIOUS MEETING ROOMS, AND INVITING LOUNGES. THESE VERSATILE SPACES PROVIDE A VARIETY OF SETTINGS FOR LEARNING, COLLABORATION, AND SOCIAL INTERACTION.

MORE THAN JUST A COMMUNITY HUB, THE COMMUNITY CENTER ALSO SERVES AS A SAFE HAVEN IN CASE OF NATURAL DISASTERS. DESIGNED WITH RESILIENCE IN MIND, THE STRUCTURE INCORPORATES STRATEGIC REINFORCEMENT AND RESISTANT MATERIALS TO ENSURE THE SAFETY OF ITS OCCUPANTS DURING UNFORESEEN EVENTS, INCLUDING EARTHQUAKES AND TSUNAMIS. IT IS A PLACE WHERE COMMUNITY MEMBERS CAN SEEK REFUGE, FIND STRENGTH, AND RECEIVE SUPPORT DURING CHALLENGING TIMES.

WITH A STRONG FOCUS ON CREATING AN ENVIRONMENT OF WARMTH AND BELONGING, THE COMMUNITY CENTER PROJECT STRIVES TO OFFER A SPACE THAT NURTURES MEANINGFUL CONNECTIONS, CULTIVATES LEARNING OPPORTUNITIES, AND ENCOURAGES COMMUNITY ENGAGEMENT. IT IS A PLACE WHERE RESIDENTS OF KAPA’A CAN GATHER, SHARE KNOWLEDGE, PARTICIPATE IN EVENTS, AND BUILD LASTING RELATIONSHIPS. A SPACE THAT EMBODIES THE SPIRIT OF KAPA’A AND ENHANCES THE QUALITY OF LIFE FOR ITS RESIDENTS.

12
2022
14
FLOOD ZONES BUILDINGS VEGETATION SUN, WIND, SOUND MAP COMBINED
19

SEHEN

ACADEMIC 2022

THE SPECTORIUM

SEHEN IS A MID-RISE HOTEL IN DOWNTOWN ATLANTA. A UNIQUE HOTEL EXPERIENCE THAT EXPLORES THE CONCEPT OF GAZING AND GLANCING, OBSERVING AND BEING OBSERVED BY OTHERS. WITH THE USE OF FLOOR TO CEILING WINDOWS , GLASS BRIDGES, ROOMS THAT FACE EACH OTHER AND ANGLE VIEWS THAT ALLOW TO OBSERVE THE HOTEL ACTIVITIES, GUESTS ARE INMERSED IN AN OPEN HONEST EXPERIENCE OF HUMAN BAHAVIOR AND INTERACTION. SHALL THEY CHOOSE TO DO SO. IT ALSO EXPLORES HOW LIGHT CAN CHANGE THE EXPERIENCE USERS GET FROM A PARTICULAR SPACE. HOW FACADE DESIGN CAN CREATE INTERIOR LIGHTNING THAT IS INTERESTING AND ENHANCES PROGRAMATIC EXPERIENCE. AND ACTS AS A MUSEUM BY HOSTING LOCAL ART AND EXHIBITIONS.

20

SITE ANALYSIS

BASED ON THE DEFINITION FOR SPECTATOR, SPECTATRUM, SPECTORIUM, THE PROJECT WHOUSL BE AN EXPLORATION OF GAZING AND GLANCING. A PLACE THAT WILL ATTRACT THE CURIOUS PEOPLE, THE ONES LOOKING TO BE ENTERTAINED, TO PEOPLE WATCH TO EXPLORE HUMAN BEHAVIOR.

THE CITY OF ATLANTA IS HOME TO MANY TOURSITIC ATTRACTIONS WHICH ARE NEARBY, MAKING THE SITE A GOOD PLACE FOR A PROJECT SUCH AS THIS.

WALKABLE DISTANCES

WIND PATH BUILT ENVIRONMENT AORUND SITE

NOTABLE LOCATIONS AROUND SITE

MAJOR ROADS CLOSE TO SITE GREEN AREAS NEAR SITE

SCHEMATICS

GLASS BRIDGES EXPOSE GUESTS TO BE SEEN BY THE OTHER BUILDGINS AT NIGHT. THROUGH THE BRIDGES THEY CAN ALSO SEE UP AND DOWN ONTO OTHER FLOORS, OBSERVING THE MOVEMENTS OF OTHER PEOPLE.

INTERIOR ROOMS HAVE WINDOWS TO THE INSIDE OF THE BUILDING, MAKING VISITORS ABLE TO OBSERVE THE LOBBY DOWN BELOW AS WELL AS INTO THE OTHER ROOMS ACROSS.

ROOMS THAT FACE THE OUTSIDE OF THE BUILDING FEEL EXPOSED TO THE REST OF THE CITY, PLAYFUL FACADE WILL ALLOW VISION ONLY TO CERTAIN PARTS OF THE ROOMS AND WILL CREATE A GAME OS SHADOWS. DURING THE DAY THESE ROOMS WILL BE ABLE TO LOOK OUT INTO THE ACTIVITIES OF THE CITY.

SUITES

1. TOUGHENED SAFETY LAMINATED

2. ANCHOR INSERT BOLTED ANGLE

3. WIDE FLANGE STEEL BEAMS

4. METAL FLOOR DECK

5. POURED IN CONCRETE

6. WOOD FINISH FLOOR

8. SOUND ABSORBING BARRIER

10.WOOD LOUVER SYSTEM

25
GROUND FLOOR/ LOBBY 2ND FLOOR/ MEZANINE 15TH FLOOR/ ROOFTOP FLOOR LAYOUT 1 (FLOORS 3-12) FLOOR LAYOUT 2 (FLOOR 13) FLOOR LAYOUT 3 (FLOOR 14) DOUBLE OCCUPANCY ROOMS SINGLE OCCUPANCY ROOMS
26

MONTAGNA

ACADEMIC 2022

THE MONTAGNA TRANSIT STATION IN SINAIA, ROMANIA IS INTENDED TO PROVIDE A SOLUTION TO THE DISCONNECTION BETWEEN THE STATION AND THE CITY WHILE CREATING A BEAUTIFUL ARCHITECTURAL EXPERIENCE.

WITH A DESIGN INSPIRED ON THE UNIQUE ROMANIAN LANDSCAPE, ITS CLIMATE AND ITS TOURISTIC ATTRACTIONS IT INTENDS TO BE A PLACE THAT ENHANCES THE VISIT OF THE PEOPLE THAT WISH TO GO TO SINAIA. FROM THE MOMENT OF ARRIVAL VISITORS ARE INMERSED IN THIS BUILDING WHICH IS NOT ONLY A NICE WELCOME INTO THE CITY BUT IS ALSO HOME TO VARIOUS POINTS OF INTEREST SUCH AS A RETAIL PLACE, A CAFETERIA, A WAITING LOUNGE AND SIMPLY A SPACE IN WHICH PEOPLE FROM THE SINAIA COMMUNITY CAN ENJOY A GOOD TIME.

28

CIRCULATION

WALKABLE

BUILT

THE MOUNTAIN VILLAGE OF SINAIA PRESENTS WONDERFUL VIEWS FORM THE MOMENT OF ARRIVAL. HAVING LOTS OF VEGETATION AND REMARKABLE HISTORIC ARCHITECTURE SINAIA IS A SIGHT TO BE HAD. BOTH LOCALS AND TOURISTS CAN EASILY MOVE THROUGHOUT THE PLACE WITH VARIOUS TRANSPORTATION OPTIONS, BOTH FROM AND WITHIN SINAIA.

THE DESIGN SHOULD TAKE INTO CONSIDERATION DIFFERENT YEARLY WEATHER CONDITIONS, REINFORCED, SLANTED ROOFS WILL ALLOW CONTROL OF HEAVY SNOW LOADS IN THE WINTER. THE BUILDING SHOULD ALSO BE DESIGNED TO BE A NICE PLACE TO BE ON THE MORE COMFORTABLE WEATHER DAYS, IT SHOULD PROVIDE PLACES TO SPEND TIME AS PASSENGERS WAIT FOR THE TRAIN.

THE CHOSEN SITE HAS AN OPTIMUM LOCATION FOR THE DEVELOPMENT OF THE TRANSIT STATIION. BEING CLOSE TO BOTH PRIMARY AND SECONDARY ROADS AS WELL AS VARIOUS POINTS OF PUBLIC TRANSPORTATION THE SITE IS PERFECT FOR THIS DEVELOPMENT WHICH SHOULD BE SEAMLESS CONNECTION FROM STATION TO TOWN.

SITE ANALYSIS
PATHS AROUND SITE DISTANCES PUBLIC TRANSPORTATION STOPS NEAR SITE ENVIRONMENT AROUND SITE WIND AND SUN PATHS AND THEIR EFFECT ON VEGETATION AROUND SITE

SCHEMATICS

31
AA
SECTION
SECTION BB

ELEVATIONS

35

Turn static files into dynamic content formats.

Create a flipbook
Issuu converts static files into: digital portfolios, online yearbooks, online catalogs, digital photo albums and more. Sign up and create your flipbook.
Melissa Swoboda Architecture Portfolio 2023 by Melissa Swoboda - Issuu