Portfólio RG II

Page 1

REPRESENTAÇÃO GRÁFICA II

MELISSA BRUTSCHIN GIORDANI | TURMA E | PROFESSORA: LEIA BRUSCATO | SEMESTRE 2023/1

Universidade Federal do Rio Grande do Sul

Faculdade de Arquitetura e Urbanismo

Representação Gráfica II - ARQ01076

P O R T F Ó L I O

ÍNDICE

RESTAURANTE SAL DE JADE

Etapa 01: Pesquisa

Etapa 02: Modelagem

Etapa 03: Documentação

Etapa 04: Detalhamento

CENTRO COMUNITÁRIO VILA IPIRANGA

Etapa 05: Apresentação

6 3 4 7 11 12 13

R E S T A U R A N T E S A L D E J A D E

Etapa 01: Pesquisa

Etapa 02: Modelagem

Etapa 03: Documentação

Etapa 04: Detalhamento

3
Foto: Cesar Béjar /Archdaily

RESTAURANTE SAL DE JADE

Informações Técnicas

Escritório: 0studio Arquitectura

Arquitetos responsáveis: Juan Antonio Corcuera e Miguel Ángel Delgado

Equipe de projeto: Josselyn Ibarra, Ramón Padilla, Rosman Ocampo e Paulina Salinas

Fotografias: César Béjar

Área: 510m²

Ano: 2021

Cidade: Hermosillo

País: México

Sobre os arquitetos

Juan Antonio Corcuera e Miguel Ángel Delgado são os arquitetos por trás do 0studio Arquitectura, um escritório multidisciplinar localizado em Guadalajara, México. Foi fundado em 2011 e atua em diversos estados do país. Ambos arquitetos se formaram no Instituto Tecnológico de Estudos Superiores de Monterrey.

A busca por soluções e propostas para os clientes levaram aos arquitetos a experimentar materiais e texturas naturais com o mínimo de tratamento possível para gerar espaços de convivência que amadurecem e se adaptam ao contexto a curto, médio e longo prazo.

Segundo o relato dos arquitetos em seu site, eles afirmam que possuem experiência para resolver espaços de acordo com a realidade e a economia do cliente. Por isso, os projetos são executados com consciência e eficiência para diminuir os custos de construção e o cliente tem melhor qualidade de vida com o orçamento acordado.

Seus projetos sempre buscam a organicidade e a junção do interno e externo sem perder a privacidade. Os arquitetos procuram usar cores claras e básicas, e sempre incorporam algum natural, como pedras ou madeiras.

Referências

A forma do projeto surgiu do princípio de se criar um restaurante em um volume simples com um traçado ortogonal. Devido a materialidade escolhida pelos arquitetos, a textura e a paisagem podem representar parte do ambiente único que se encontra, remetendo a forma de um monólito - pedra de grandes proporções. A cidade onde se encontra o projeto possui duas estações bem definidas, ambas com tempo seco por se localizar perto de desertos e o projeto se incorpora no ambiente.

O objetivo de simplicidade do lado externo não se aplica ao interno do projeto. As atmosferas alcançadas pelos materiais inseridos procuram proporcionar uma experiência única a cada cliente que entra. O projeto apresenta uma transição de escalas por apresentar o pé-direito triplo, que além de criar uma grande sensação de amplitude espacial a quem está dentro, chama ainda mais atenção ao protagonismo da forma do monólito proposto e assim o transforma como um volume atrativo para a cidade.

Para criar um ambiente externo de refeições, foi proposto o uso de uma estrutura metálica com aberturas para a rua, no México denominado de “celosía”. Pode-se traduzir como estruturas parecidas com cobogós no Brasil, porém, com o material de metal e não de tijolos, que desempenha proporcionar ao cliente um espaço permeável com o ambiente exterior em que as edificações colaboram para o tecido urbano, sem perder a privacidade proporcionada pelo volume principal.

ArchDaily Brasil. Acessado em 22 Mai 2023. https:// www.archdaily.com.br/br/966607/restaurante-sal-de-jade-0studioarquitectura/ Site 0studio Arquitectura Acessado em 22 Mai 2023. https://0studio.net/ Instagram 0studio Arquitectura. Acessado em 22 Mai 2023. https:// www.instagram.com/0studio/

Etapa 1: Pesquisa

ARQ01076 - Representação Gráfica II

GSEducationalVersion N° Revisão Descrição Modificado por Data Professores Carlos Bressa Luciana Colombo
Bruscato Exercício Aluno Turma Data 21/08/2023 Escala Gráfica
Léia
Arquivo RG2.pln Dados do Projeto Nome: Restaurante sal de Jade Autor: 0studio Arquitectura Localização: Hermosillo, México Ano: 2021 Monitor Bianca Piccoli 1/2 Folha A1 Conteúdo Pesquisa e Documentação
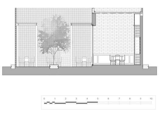
Universidade Federal do Rio Grande do Sul Faculdade de Arquitetura Departamento de Arquitetura Mariana Dreyer e Melissa Giordani E Destaque do título 01 2 Afastamento das imagens das margens Identificação das fotos 3 Mariana Melissa Mariana Melissa Mariana Melissa 21/08/23 21/08/23 21/08/23
Sobre o projeto Fachada Principal Fachada Principal Fotorrealista Interior Interior Entrada Principal Fachada Posterior

Elevação Frontal

Planta Baixa Pavimento Térreo

Elevação Posterior

Detalhe da 'celosía' na parte exterior. Estrutura metálica de suporte.

- Representação Gráfica

Detalhe do bloco estrutural cerâmico (tijolo) em vista na parte exterior.

GSEducationalVersion N° Revisão Descrição Modificado por Data
Bressa
Colombo
Bruscato
Aluno Turma Data 21/08/2023 Escala Gráfica
Professores Carlos
Luciana
Léia
Exercício
Arquivo RG2.pln
do Projeto Nome: Restaurante sal de Jade Autor: 0studio Arquitectura Localização: Hermosillo, México Ano: 2021 Monitor Bianca Piccoli 2/2 Folha A1 Conteúdo Pesquisa e Documentação
II Universidade Federal do Rio Grande do Sul Faculdade de Arquitetura Departamento de Arquitetura Mariana Dreyer e Melissa Giordani E Destaque do título 01 2 Afastamento das imagens das margens Identificação das fotos 3 Mariana Melissa Mariana Melissa Mariana Melissa 21/08/23 21/08/23 21/08/23
Etapa 1: Pesquisa
Dados
ARQ01076
Corte A Corte B Corte C Corte D

Modelagem

Nesta etapa foi realizada a modelagem do projeto. Analisamos as fotografias e plantas, cortes e elevações para o desenvolvimento. Esta etapa trouxe alguns desafios devido às paredes inclinadas e o uso da operação de elementos sólidos.

Em relação à divisão do trabalho, todos os processos foram feitos em conjunto, principalmente no período de aula, com o objetivo de tirar dúvidas e resolver os problemas juntas, com o auxílio das professoras e da monitora.

Detalhes

A estrutura do edifício é pré-fabricada e todo o seu volume exterior foi feito de tijolos e cobogós, já na parte interior, as áreas de serviço como cozinha, depósito e sanitários foi revestida com madeira. A única janela externa possui forma de círculo, ao contrário das internas que são portas-janelas de vidro com detalhes em metal na cor preta.

Já a circulação principal se faz livre no salão, com uma planta livre que permite o arranjo de diversas composições de mobiliário. A circulação na área de serviços é limitada e conduzida pelos seus inúmeros corredores.

GSEducationalVersion N° Revisão Descrição Modificado por Data Professores Carlos Bressa Luciana Colombo Léia Bruscato Exercício Aluno Turma E Data 23/08/2023 Escala Sem Escala Etapa 2: Modelagem Arquivo RG 2.pln Dados do Projeto Nome: Restaurante sal de Jade Autor: 0studio Arquitectura Localização: Hermosillo, México Ano: 2021 Monitor Bianca Picolli 1/1 Folha A1 Conteúdo Fotografias e Modelagem ARQ01076 - Representação Gráfica II Universidade Federal do Rio Grande do Sul Faculdade de Arquitetura Departamento de Arquitetura Mariana Dreyer e Melissa Giordani 01 2 3 Mariana e Melissa Alterações nos renders Descrição do trabalho em conjunto Detalhes da estrutura, esquadrias circulações Mariana e Melissa Mariana e Melissa 23/08/23 23/08/23 23/08/23 SAL DEJADE CAFE BISTRO
1. Fotografia Fachada Frontal
3
1. Modelagem Fachada Frontal
2
Fotografia Fachada Posterior 2 Modelagem Fachada Posterior Fotografia Interior
Fonte: ArchDaily Brasil. Fotografias por César Béjar. Acessado em 07 Jun 2023. https://www.archdaily.com.br/br/966607/restaurante-sal-de-jade-0studio-arquitectura/ SAL DEJADE
3. Modelagem Interior
GSEducationalVersion N° Revisão Descrição Modificado por Data Professores Carlos Bressa Luciana Colombo Léia Bruscato Exercício Aluno Mariana Dreyer e Melissa Giordani Turma Data 02/09/2023 Escala 1 200 Etapa 3: Documentação Arquivo RG 2.pln Dados do Projeto Nome: Restaurante sal de Jade Autor: 0studio Arquitectura Localização: Hermosillo, México Ano: 2021 1/4 Folha A1 Conteúdo Planta de Cobertura ARQ01076 - Representação Gráfica II Universidade Federal do Rio Grande do Sul Faculdade de Arquitetura Departamento de Arquitetura Monitor Bianca Piccoli E 01 2 3 Ajuste das cotas Mariana e Melissa 24/08/23 Hierarquia de linhas Inclinação na cobertura Mariana e Melissa 24/08/23 Mariana e Melissa 24/08/23 11,00 10,20 6,00 7,32 34,52 9,70 8,50 18,20 1,42 22,95 10,15 4,75 7,25 6,00 18,00 ±0,00±0,00
Calle
Ignácio
N 5,40 Planta de Cobertura Escala
20%
AV.Luís Donaldo Colosio Mureta
Sahuaripa AV.Dr
Pereira
1:200

Planta Baixa

Escala 1:75

GSEducationalVersion N° Revisão Descrição Modificado por Data Professores Carlos Bressa Luciana Colombo Léia Bruscato Exercício Aluno Mariana Dreyer e Melissa Giordani Turma Data 02/09/2023 Escala 1 200
3: Documentação Arquivo RG 2.pln Dados do Projeto Nome: Restaurante sal de Jade Autor: 0studio Arquitectura Localização: Hermosillo, México Ano: 2021 2/4 Folha A1 Conteúdo Planta Baixa ARQ01076 - Representação Gráfica II Universidade Federal do Rio Grande do Sul Faculdade de Arquitetura Departamento de Arquitetura Monitor Bianca Piccoli E 01 2 3 Ajuste das cotas Mariana e Melissa 24/08/23 Hierarquia de linhas Inclinação na cobertura Mariana e Melissa 24/08/23 Mariana e Melissa 24/08/23
Etapa
Referência Planta Baixa

Etapa

GSEducationalVersion N° Revisão Descrição Modificado por Data Professores Carlos Bressa Luciana Colombo Léia Bruscato Exercício Aluno Turma Data 02/09/2023 Escala 1:75
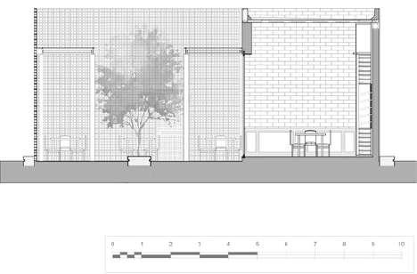
3: Documentação Arquivo RG 2.pln Dados do Projeto Nome: Restaurante sal de Jade Autor: 0studio Arquitectura Localização: Hermosillo, México Ano: 2021 3/4 Folha A1 Conteúdo Cortes ARQ01076 - Representação Gráfica II Universidade Federal do Rio Grande do Sul Faculdade de Arquitetura Departamento de Arquitetura Monitor Bianca Piccoli E Mariana Dreyer e Melissa Giordani 01 2 3 Ajuste das cotas Mariana e Melissa 24/08/23 Hierarquia de linhas Inclinação na cobertura Mariana e Melissa 24/08/23 Mariana e Melissa 24/08/23 Referência Corte A Referência Corte B
A Escala 1:75 Corte B Escala 1:75
Corte
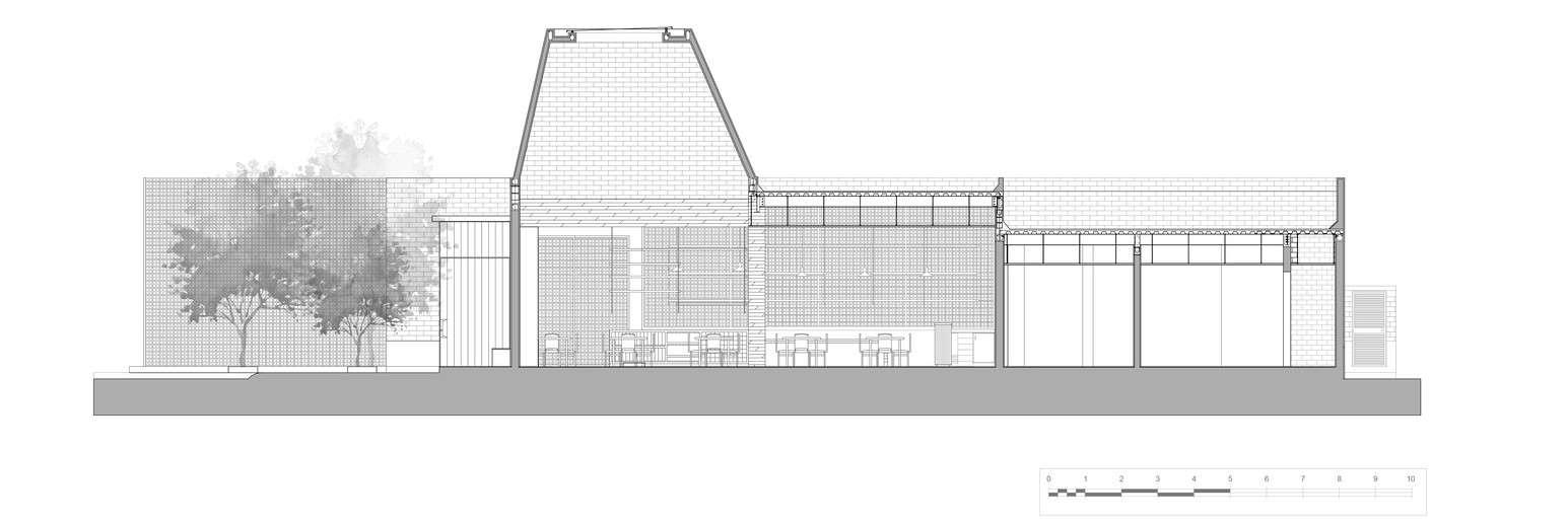
GSEducationalVersion N° Revisão Descrição Modificado por Data Professores Carlos Bressa Luciana Colombo Léia Bruscato Exercício Aluno Turma Data 02/09/2023 Escala 1:75
3: Documentação Arquivo RG 2.pln Dados do Projeto Nome: Restaurante sal de Jade Autor: 0studio Arquitectura Localização: Hermosillo, México Ano: 2021 4/4 Folha A1 Conteúdo Elevações ARQ01076 - Representação Gráfica II Universidade Federal do Rio Grande do Sul Faculdade de Arquitetura Departamento de Arquitetura Monitor Bianca Picolli E Mariana Dreyer e Melissa Giordani 01 2 3 Ajuste das cotas Mariana e Melissa 24/08/23 Hierarquia de linhas Inclinação na cobertura Mariana e Melissa 24/08/23 Mariana e Melissa 24/08/23 Referência Elevação Norte Referência Elevação Sul
Sul Escala 1:75 Fachada Norte Escala 1:75
Etapa
Fachada

C E N T R O C O M U N I T Á R I O

12
Etapa 05: Apresentação

SOBRE O PROJETO

O projeto escolhido para a última etapa foi o edifício do Centro Comunitário desenvolvido para a cadeira de Projeto Arquitetônico I, ainda em andamento no momento da realização dessa etapa.

A proposta do programa é um Centro Comunitário que abrigue uma biblioteca, um café e um Salão de Uso Múltiplo, juntamente com o projeto de uma praça que conta com uma quadra poliesportiva, um cachorródromo, área de práticas de ginásticas e zonas verdes para lazer.

MOODBOARD

A materialidade do projeto foi pensada toda em questão ao concreto aparente que as vigas ofereciam. Tons de azul foram escolhidos como a paleta mestre para fazer contraste com os verdes trazidos pela vegetação natural exterior e interior.

O elemento de proteção solar escolhido foi o brise colmeia, que pode ser utilizado para as quatro posições solares. Ele foi posicionado no projeto por meio das vigas frontais, que avançam 30cm para a frente da viga. Móveis de assinatura, como a Poltrona Lina, foram escolhidos para compor a área interna.

RENDERS

Como software para a produção das imagens fotorrealistas (fachada do edifício e biblioteca), foi utlizado o V-Ray, software de renderização que utiliza técnicas avançadas para o desenvolvimento de 3D. O V-Ray é desenvolvido pela Chaos Group.

GSPublisherVersion 223.87.87.100 GSEducationalVersion N° Revisão Descrição Modificado por Data Exercício Melissa Giordani Turma E Data 21/08/2023 Escala 1:200 Etapa 5: Apresentação Arquivo RG - Estrutura Dados do Projeto Nome: Centro Comunitário Autor: Melissa Giordani Localização: Av Benno Mentz, 1560 Ano: 2023 Conteúdo Axonométrica explodida, moodboard e perspectivas externa e interna fotorrealistas. ARQ01076 - Representação Gráfica II Universidade Federal do Rio Grande do Sul Faculdade de Arquitetura Departamento de Arquitetura Professores Carlos Bressa Luciana Colombo Léia Bruscato Folha A1 Monitor Bianca Piccoli
Imagem 01: Vista exterior.
PERSPECTICA EXPLODIDA ESTRUTURAL 1/200 01 Inserir linhas de chamada no diagrama Melissa 01/09 02 Destacar menos o chão nos renders (Interno e Externo) Melissa 01/09 03 Arrumar os espaçamentos e alinhamentos na prancha Melissa 01/09 Platibanda Viga Pilar Shed
do Elevador Escada Laje de Fundação
Caixa
Imagem 02 Vista interior.
14

Turn static files into dynamic content formats.

Create a flipbook
Issuu converts static files into: digital portfolios, online yearbooks, online catalogs, digital photo albums and more. Sign up and create your flipbook.