Melika Mehdizadeh - Portfolio - 2025-03-19

Page 1


Qualifications:InternArchitectwithover5yearsof experienceataprofessionalarchitecturalfirm.Demonstrated expertiseinarchitecturaldesign,BIMmodeling,andproject management.Experiencedinadiverserangeofprojects includingresidential,assembly,industrial,educational, conservation,andnewdevelopments

Student Residence Innisfil,Ontario

Student Residence Innisfil,Ontario

Schematic Design:

▪ Three-story,building (codepart-9) student residence project willprovide accommodationfor124students,

▪ Buildingwillincludeessential amenities andcafeteria.

▪ TheStudent residenceispartofthecampusmaterplanwill complement otherfacilities,suchasClassroombuilding,gym,and futurestaffresidences.

▪ Meetwithclienttodefinethestudent’sneedandresolve programing issueswithinthescopeofwork.

▪ MeetingswithCityplanningcommitteetopresentproject informationandscope.

Student Residence Innisfil, Ontario

Design Development:

▪ CheckingtheaccuracyandcompatibilityofdesignelementswiththeBuildingCode

▪ Developeddesignoptionsalongwithrenderings

▪ Arrangebi-weeklycoordinationmeetingswithclientandconsultants

▪ DocumentdesignandtechnicaldocumentapprovalmeetingswithCityrepresentatives andclientbeforeofficialSubmissiontotheCity

▪ CoordinationofdrawingswithconsultantsforCityPermitSubmission.

▪ Preparedpreliminarydrawingsandplanninganalysis

▪ Teamcoordination

Student Residence Innisfil, Ontario

Documentation and use of latest technology:

• CreatingandeditingprojectdocumentsefficientlybyusingBIM

• Makeuseoflatesttechnologiesanddesigntoolsthatmatcheswithbestpracticesandindustry standards(BIM)

• UseofBIMcanminimizeproductiontimefordesignoptionsandhelptoproducemore accuratedrawings

Project Assessment:

▪ Reviewprojectgoalsandobjectives.

▪ Reviewprojectschedulesandworkplans.

▪ Reviewexistingdrawings/documentation.

▪ Projectkickoffmeetingwithclientandconsultants.

▪ Systematicdocumentationtoreflectsitecondition

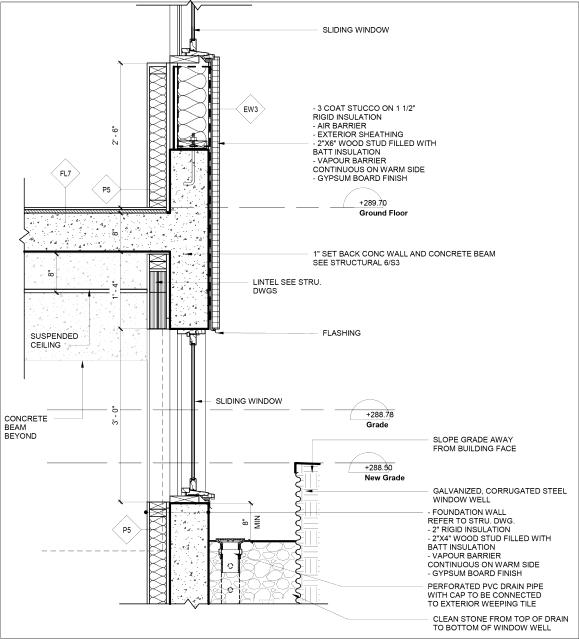
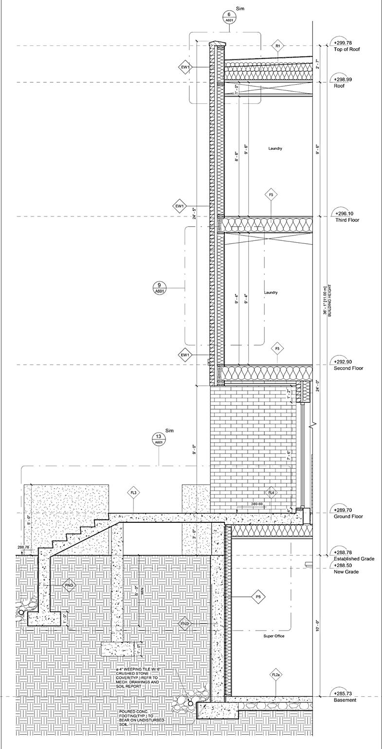
Report and documentation:

▪ Reviewconsultant’sconservationreport.

▪ Sitevisitandsurveyofexistingcondition.

▪ Avisualsurvey determined that Secondlevelbalconyand thebasementrequiredurgentattention.

Leadership skills

Continuousneglectofroofinghasledtoconsiderablewaterdamage.

Documentation process

▪ Detailedinvestigationwasconducted

▪ Aftersurveyofthedamagedareas,itwasdetermined touseactualphotosaspartofdocumentation.

▪ Produceddrawingsdocumentation.

▪ Workedwithstructuralengineertoevaluateextentof structuraldamages.

▪ Collectedonsitemeasurements.

SOUTHPORTICOPLAN

Law Society of Ontario, Toronto, Canada

Documentation process

▪ Gatheredandscannedexistingolddrawings

▪ Creatednewautocaddrawings

▪ Fieldverificationofthenewdrawings

▪ finalizeddrawingsdocumentation.

Office Renovation/ Historic conservation

▪ Drawingannotationhelpedtocommunicatedetailsandextentofdamagefor consultants.

▪ Extensivebuildingdamagessharedwithclientandwasdecidedtophasetheproject withphasedschedule.

Law Society of Ontario, Toronto, Canada

Construction documentation :

▪ Continuetogatherinformationfromthebuildingsurveyandexistingdrawingsfor inclusiononCADdrawings.

▪ Reviewingtechnicaldesigndocumentsandcoordinatewithconsultants

▪ DevelopedtechnicaldocumentationandCADdrawingsforapproval.

▪ Compilateddesigndrawingsandspecificationsforprojecttender.

Construction Administration :

▪ Weeklysitevisitsandparticipateinobservationofworkinprogress.

▪ Preparefieldreport,attendsubstantialcompletionreviewandverificationof deficiencylist

▪ Reviewanychangesonshopdrawings,samples

▪ Recordallthecommunicationbetweentheteam

Expedited Phase I:

Duringthefirstphase,projectteamreplacedalltheflashing andregradedtheroofarea.

Legislative Assembly of Ontario Toronto,Ontario

Interior Renovation and Accessibility Upgrades

Legislative Assembly of Ontario, Toronto, Ontario

Stakeholder Management

Legislative Assembly of Ontario Renovation/Historicconservation

EXISTINGSECONDFLOORPLAN

Documentation process

▪ Sitemeetingswithclientandin-housecontactorshelped

▪ Forcollectingaccuratedata

▪ Engageproactivelywithaccessibilityconsultantsduringsite meetingstoensurecomprehensiveunderstandingand integrationofaccessibilitystandards.

▪ Draftanddistributeclear,informativememostotheteam, fosteringeffectivecommunicationandcollaboration.

▪ Seamlesslyintegratealltechnicaldrawingswithshop drawingsandrelatedspecificationstoacceleratethe tenderingprocessandenhanceprojectefficiency.

Legislative Assembly of Ontario Renovation/Historicconservation

Documentation process

• Allmajoraccesspointanalysesanddesignsare meticulouslycraftedtocomplywithAODA requirements.

• Ourdesignoptionsarestrategicallydeveloped tonotonlymeetaccessibilitystandardsbut alsotoenhancethecharacterofthebuilding whileminimizinganyimpact.

Legislative Assembly of Ontario Renovation/Historicconservation

Documentation Process:

▪ Evaluation of the existing conditions and categorization of major areas requiringupgradestocomplywithAODAnewstandards.

▪ Conducted a thorough review of the furniture inventory and played a key role in selecting exemplary pieces that honor and maintain the building's richheritagevalue.

▪ DevelopedacomprehensiveFurniturePlanaccompaniedbystrikingphoto documentation that highlights both style and heritage, providing the InteriorDesignerwithavisuallycompellingnarrative

TDSB- York Memorial Collegiate Institute RehabilitationSchoolReconstruction

This project involves the rehabilitation and reconstruction of a building that was affectedbyafirein2019,whichcauseddamagetotheoriginal1929structureand its additions. Over the past few years, various techniques have been employed for remediation, façade stabilization, and partial rehabilitation of the building by TaylorHazelArchitectandRJCEngineering,inaccordancewithTDSBguidelines,to restoreitasafunctionalschool.

Existing post fire - South Elevation

Proposed - South Elevation

Academic Classroom – Option 1

Academic Classroom – Option 2

Description:

Typicalacademicclassroom.

NumberofOccupants:

24basedondesign.Assumes23studentsand1teacher.

Area(m²):

TargetAreais72m2ActualAreavariesfrom66.83m2to105.15m2

AsaninternarchitectatTHA,Iworkedunderthesupervisionofasenior projectmanagerandarchitecttostudyTDSBguidelinesanddesignspaces inaccordancewiththosestandardsandtheOntarioBuildingCode(OBC). DuringmytwoyearsatTHA,Iwasinvolvedinthedesigndevelopmentof interiorlayouts.

Academic Classroom – Interior Elevation
Third Floor Plan

Floor Plan TDSB- York Memorial Collegiate Institute Rehabilitation School Reconstruction

Third
West Interior Elevation

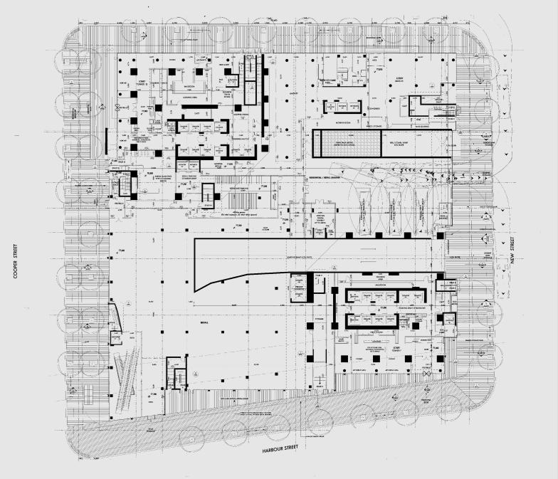
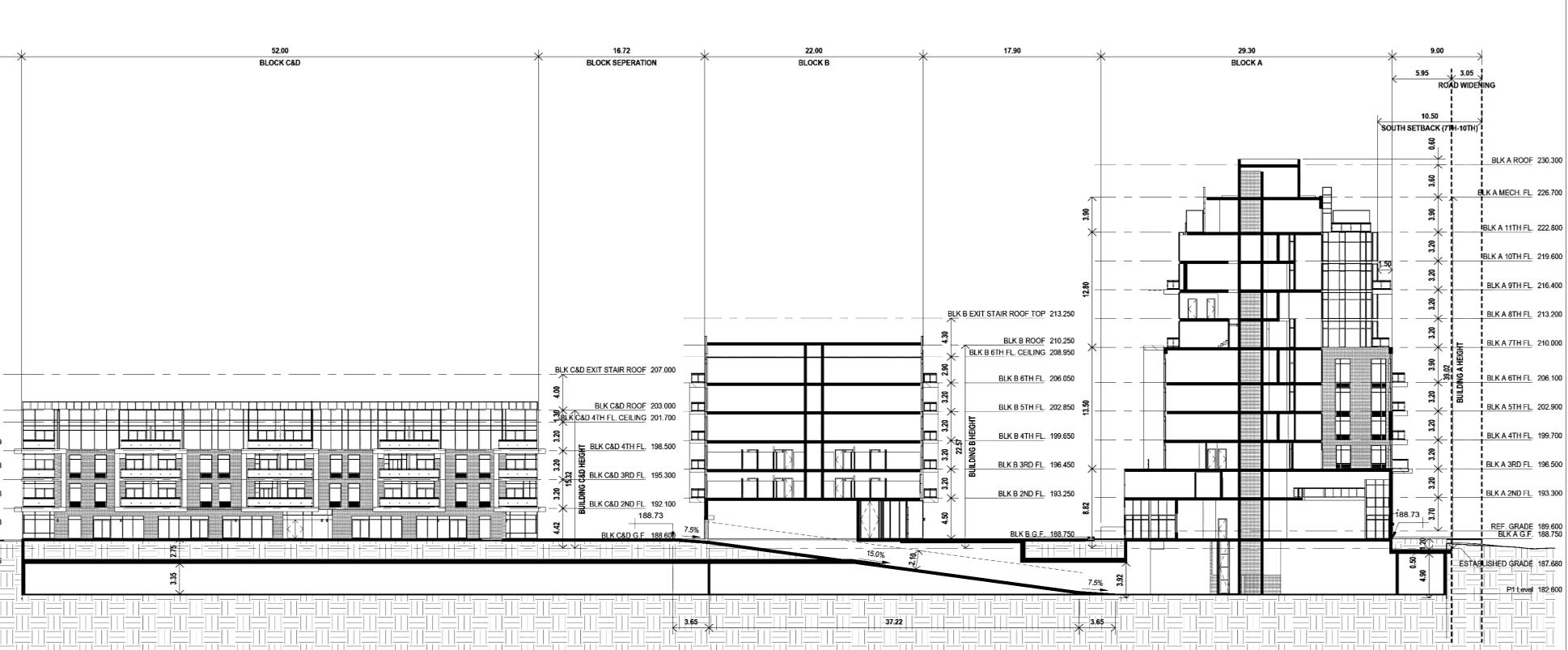
New Development, Toronto, Canada

Project Planning :

This Development include one 11 story, Retail and Apartment buildings ( Block A) fronting onto Finch Ave. and 6 Story Apartment ( Block B) served by a private internalroadwayprovidingaccess tobothFinchandGrant brook Street. Plus, two moreidentical 4storyBlock(C,D)includeApartments andone 3storytownhouse Block€frontingontoHendonAvenue.ProposalwillalsomaintainexistingHeritage Building.

▪ BepartoftheteamtoprepareSitePlanApprovalPackage

▪ NewMixedUsedDevelopmentprovidesconnectiontoadjacentneighbourhoodand dividethesiteintosmallerdevelopmentblock

▪ Providemoregreenspaceforpedestrians,bicyclesandlandscapingaswellasspace transit,vehicles,utilitiesandutilitymaintenance.

New Development, Toronto, Canada

Site Location and Stats

Lotarea:21,060.64SM

GFA:45,150SM

BLOCKA:22,020SM

BLOCKB:11,870SM

IndoorAmenityArea:856SM

OutdoorAmenityArea:856SM

Schematic Design

• Involvedintheplanningimpactsofitsfunctionsonthelocal infrastructure

• AttendCityReviewMeetingsandcontributetotheteamfor planadjustments

• Prepareddrawingforexistinghousetoberelocated

• Workedundersupervisiontodomasterplanningandanalyze long-termdevelopmentstrategiesforthisspecificsite.

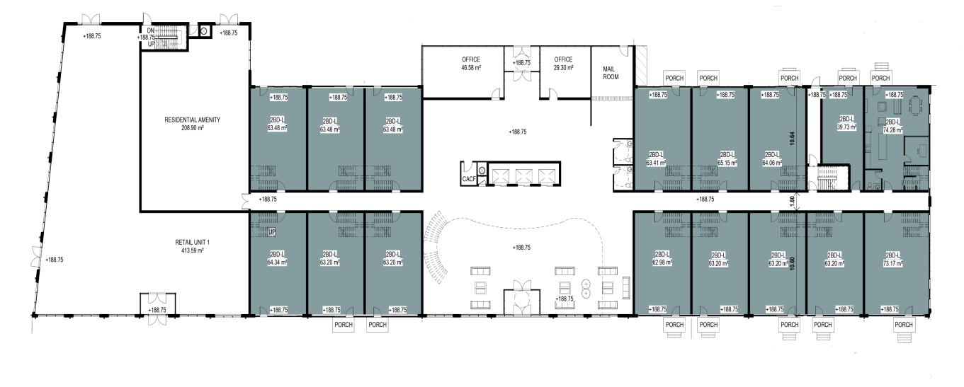
New Development, Toronto, Canada

BLOCK A

TOTAL1BD=16

TOTAL1BD+DEN=76

TOTAL2BD=64

TOTAL3BD=16

TOTAL3BD+DEN=2

TOTAL RESIDENTIAL UNITS = 174 UNITS.

BlockA–13-storeymixeduseapartmentbuilding frontingontoFinchAvenueWest,with319 residentialunits,6retailunits,andamaximum heightof46m

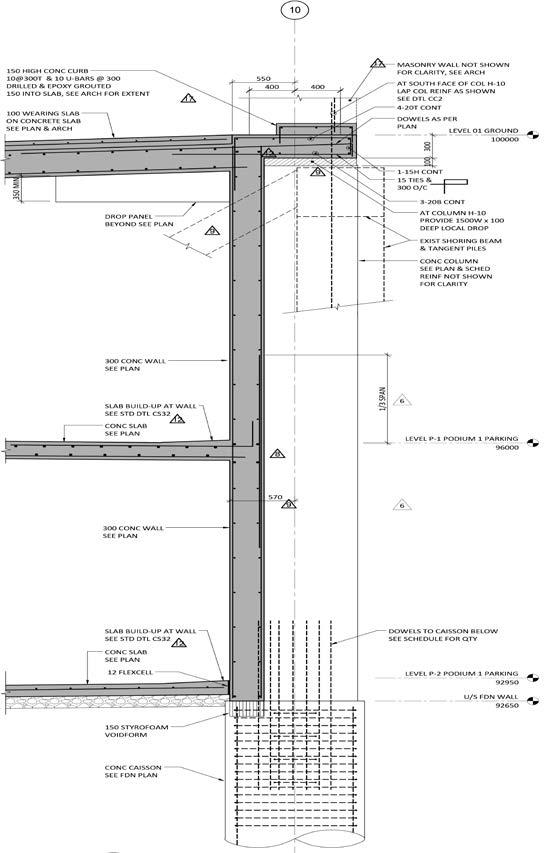
LCBO Lands , Toronto, Canada

Site Location and Stats

• 25-storey,763,000squarefootoffice tower,

• Proposedtorise385.4feet/117.45 meters

Design Development and Permit Drawing Preparation

• InvolvedinBIMModelingof LCBO Towers

• AssistBIMmanagerinpreparing detailsandtemplates

• Workedundersupervisiontodo coordinationofStructuraldrawings withArchitectural

• Assistinpreparationofconstruction documentanddetails

• Thedetailsfocusesonexteriorcladdingand windowsystem.Slabedgesofamenityspace

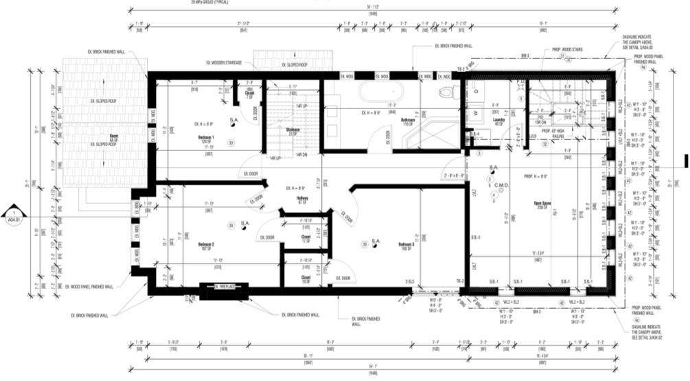
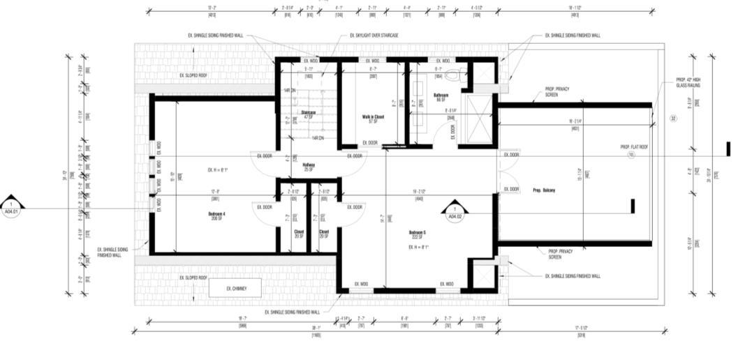
Single Family House, Toronto, Canada

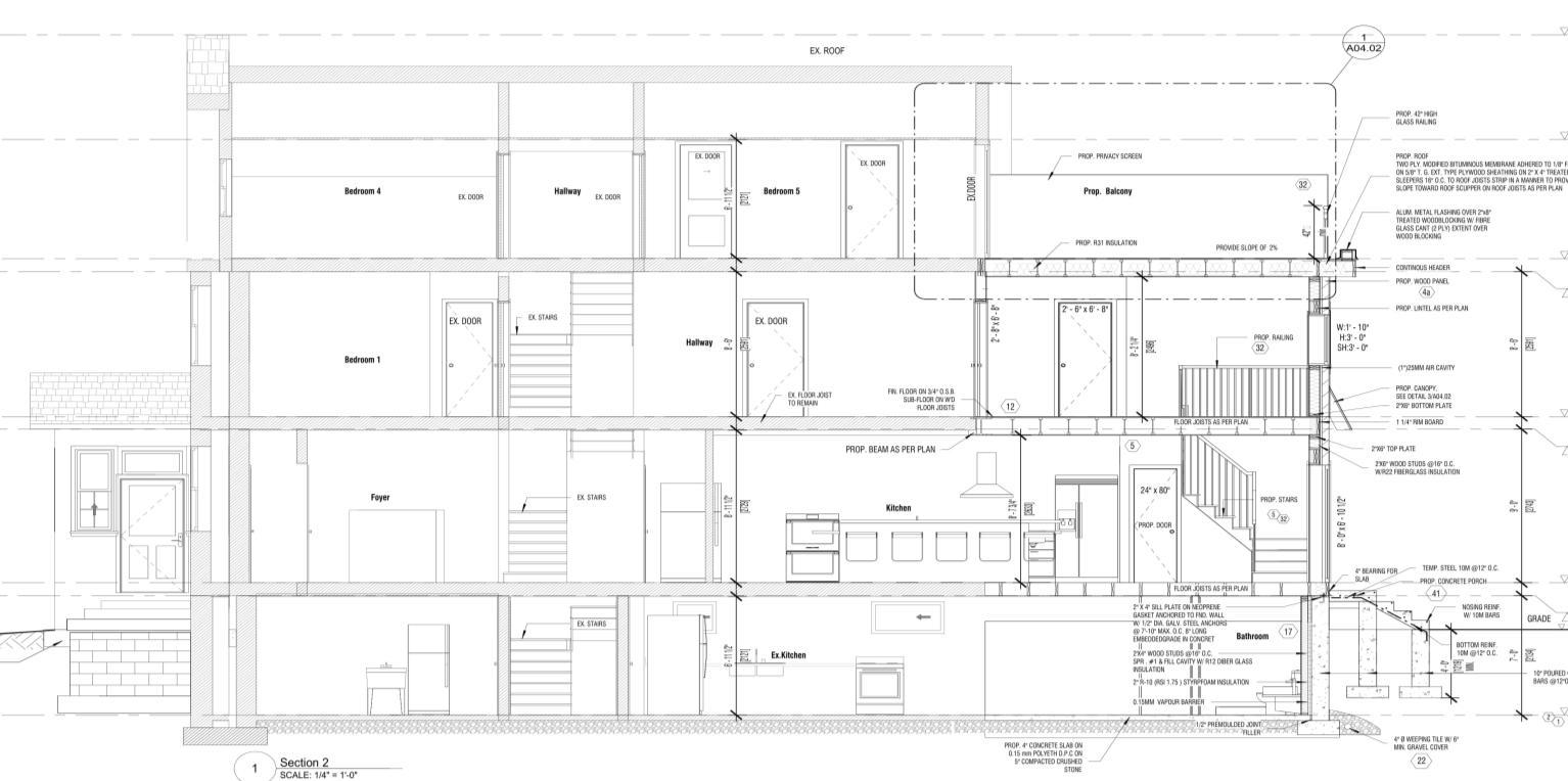
The project consists of interior modifications and a new addition to an existing duplex single-family dwelling.

PROPOSED FIRST FLOOR PLAN

PROPOSED SECOND FLOOR PLAN PROPOSEDTHIRD SECTION

PROPOSED THIRD FLOOR PLAN

The three story7000SqM building isdesignedfor theSyrian refugees escaping civil war inSyria into Canada. The experience and transition tonew life in Canada isdifferent for every newcomer, asthey adjust totheir newhome. The overall outcomes ofSyrian refugees’resettlement and integration experiences are positive,showing encouraging trends interms oftheir adjustment tolife inCanada and participation insociety.

Grand Street
Blair Road
Project locatedat the intersectionof Grand Street and BlaireThe main entrance is from Grand Street and the secondaryaccessfrom Baire street toprovideaccess for vehicles andpedestrian.

The design concept istocreate a welcoming environment that isreflective ofthe refugee’s culture. The planning concept andprograming istoadhere tothe building’s users and provide differentarea for theadults and children. Building envelope concept istocreatea dynamic balance between window fenestration and solid. Buildingmaterial and texture isbreakdown theoverall building massing.

The building program isstacked from public to semiprivate and private functions asfollows;

▪ Ground level: lobby function, building core, childcare and children playroom.

▪ First level: isforparentsandincludescommunityroom, kitchen, library and conference room.

▪ Second level: meditation room, consultation and language classroom.

The design intent istocreate anintuitivedesign and articulate each level withdesign elements that arereflective ofitspopulation and itsuse.

The “perfect wall”.A perfect wall is to minimize energywaste and is designed for the Ontario climate.

The wall system is layered and includesthermal controllayer, air and vaporbarriers and islocatedon the exteriorside ofthe structure.

The wall concept is based on an open-air principle withability to equalize air pressures and allow ventilationinside of wall cavity.

Group -1 high density residential units

Group -2

InterlaceUrbanPromenade

Group -3

The junior design studio was divided into three groupsfor this site-specific urban re-development project. Eachgroup had to follow the established project guidelineincluding land use, zoning and program requirement.

The proposed site location (Finch and Weston) isdesirable for urban re-development and benefits fromthe new light Rail Train (LRT) construction. In addition,therealstatestudyshowsthat areaissuitableinvestment for high density residential units.

Mater Planobjectiveis tocreate mixed-usedevelopmentwith higher density residential, office and commercial retail projects.

Proposed Site Location

InterlaceUrbanPromenade

Buildings are oriented on the South West axis to maximize solarexposure for the residence and the public plaza.

Delivering shared value requires community engagement. The buildings site planning recognizes the need for large publicplaza that creates an opportunity for community to interact and socialize. The public space is a critical elements in urban renewalprojects and offers an identity and landmark for much needed socialinteraction. The plaza also creates a contextual elements andbringsback the temporary shelter for the neighborhood shoppingexperience. Given the winter cold climate in the Toronto area, an enclosed public area has been added for community use includingart exhibitions, art and grafts, community meeting and educationclasses.

Community public area includesspacefor art exhibitions, art and grafts andcommunity use.

In addition to the solar angle, greenhouse element and orientation, thebuilding massing conceptis to create an identifiable architecture and alandmark to enhance community sense of orientation and belonging.

Interlace UrbanPromenade

NATURAL VENTILATION

Cross-flow and passive stack ventilation is the mosteffective passive natural ventilation. The strategy is to use acombination of cross ventilation, buoyancy (warm air rising) and the venturi (wind passingover theterminals causing suction) effect

SOLAR ORIENTATION

SUN ANGLE

The building massing is formed bythe sun angle in themonth of Jun and creates a directional axis tothe buildingentrance from the plaza. The deign strategy is to reduce sunexposure in summer and maximize solar gain in the winter.

WIND

InterlaceUrbanPromenade

InterlaceUrbanPromenade

The impact of LRT on housing prices

According to the market impact study, the LRT walkable access to transit on this site, will increase the demand for housing and increase in propertyvalue.

The LRT will have the positive impact for residential land values asthe transit service will provideeasier movement along corridor.

SEVENTH FLOOR PLAN

SECOND FLOOR PLAN

InterlaceUrbanPromenade

All bedrooms are planned with high exposure to sunlight during the cold season in Canada. Each unit has its own greenhouse space and accesstofreshair.

Sunlight exposure at southwest elevation is control with vertical Fin tominimize solar gain in the summer

Interlace Urban Promenade

Typical 2-Bedroom
Typical 1-Bedroom A
Typical 1-Bedroom B
Typical 2-Bedroom C

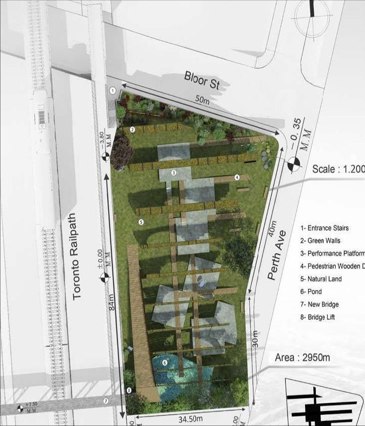
visual axis (Spine) connecting Bloor streettothe MOCA

MOCA Gateway Garden

Site Context:the siteis used tobe occupiedbythe Toronto Museum of contemporary Art (MOCA) and currently is used as small park attraction a lot of artists from the surrounding community.

Site organization: The planning concept is to create a symbolic visual axis (Spine) to connect the Bloor street from north to the MOCA’s new location in the south.

M. O C A G atewayG arden

The design concept has two components:

1. Create a sequence of green biodiversity walls along the visual spine providing opportunities for functional intimate spaces.

2. The open spaces between the green walls is intended for community social interaction, cultural and artistic events.

M. O C A G

atewayG arden

The “ Garden” spatial organization incorporates design elements that creates strong sense of a place, where people come together and where connected spaces create an experience. The idea is to establish a balance based on scale/proportion, sequence and unity.

The MOCA garden explores the boundary and threshold between landscape and architecture with spatial definition and relationship that creates intentional outdoor rooms.

MOCA Gateway Garden

Thegreenbiodiversitywalls:Theexperimentofbringing wildlifetothegardenis toaddanotherlevelofinteraction between nature, people and architecture. The biodiversity wall planting concept is tobring back birds, butterflies, beneficial insectsand other wildlife to the area.

Theideaofbringingwildlifetothegardenisalsoto enhancetheSENSEofPLACEandreinforcerelationship andmeaningsinlandscapearchitectureasthehanging gardentransformedthroughseasonalchange.

Butterflies Flowering crabapple

Bush

Attracts

Tangerine Monrovia

Attracts Birds

Helianthus

Attracts Bees attract Butterflies

Hummingbirds

jasminoides Magnolia Wisteria sinensis Honeysuckle Lonicera

MOCA GatewayGarden.

Aroma: In Torontoarea many different plantspeciesthrive.To evoke sense of smell, the chosen plantpalettesare toproduce aroma that defines the character of a space.

Sound:. The train movement along the site act asnarrator and is a reminder of the local communityhistory. The green walls layering is to reflect a dynamicmovement through the main spine with a notion oftraveling sound.

The new pedestrian bridge connects the bicycle path and communitiesto the future development at the west side of train track. The neighborhoodsin this area attracts a large artistic populationthat aids revitalization and urban re-development.

True North Square -Winnipeg

I started at Entuitive in 2016 as a BIM Technogist and researcher. I was respon-The project consists of interior modifications and a new addition to an existing duplex single-family dwelling.

Responsible for creation of Life Cycle Assessment of Construction Material and work with the model to produce data such as material take off and schedule. The second part of my responsibility as a BIM Technolost was assiting in drafing and detailing of the Revit Models. Throughout my 8 month of work, I had to co- ordinate with the team using BIM 36. True North Project is a mixed used proj- ect located at Carlton, Ottawa. I was part of the schedmatic design stage of the building and helped in developement of the structural design detailing such as reinforcing of slabs.

UNIVERSITY OF TORONTO, MISSISSAGUA

I started my work at Stephenson Enginnering in 2018 as a BIM MOdeler.I have been involved in severla projects in different phases. Briefly my responsibilities include developement of constrcution detail directory, assistingin applying BIM standards in to the drawings, coordinating the struction drawing with updated architectural drawing, drafting and assembling building science details based on the client needs and assisting in modeling of structural details. The recent project for University of Toronto, had a unique method of construction. the project size and scale: 812 m2 | 8,740 ft2, which was completed in 2019. I was involved in the developement and drafting of base plate details.To make sure the drawing are currectilt drafted, we had several coordination meetings. It was a modular office building with pre-fabricated assemblage techniques that completed in short amout of time. In addition to all responsibilities, based on the project need, I had to modofy and develop Revit Families. Working in bigger scale projects such as stadium gave me the ability to work with the team and following established standards and procedure under supervision of the BIM manager.

SECOND SOFFITARGUING PLAN

Turn static files into dynamic content formats.

Create a flipbook
Issuu converts static files into: digital portfolios, online yearbooks, online catalogs, digital photo albums and more. Sign up and create your flipbook.