Melika Mehdizadeh - Arch. Portfolio - 2025-03-03

Page 1


Selected Project Portfolio Melika Mehdizadeh

Qualifications: Project Coordinator and Designer with more than 5 years work experience with professional architectural firm. Proven knowledge of Architecture Design, BIM Modeling and Management.

Project Assessment:

▪ Review project goals and objectives.

▪ Review project schedules and work plans.

▪ Review existing drawings / documentation.

▪ Project kick off meeting with client and consultants.

Report and documentation:

▪ Review consultant’s conservation report.

▪ Site visit and survey of existing condition.

▪ A visual survey determined that Second level balcony and the basement required urgent attention.

Continuous neglect of roofing has led to considerable water damage.

Documentation process

▪ Detailed investigation was conducted

▪ After survey of the damaged areas, it was determined to use actual photos as part of documentation.

▪ Produced drawings documentation.

▪ Worked with structural engineer to evaluate extent of structural damages.

▪ Collected on site measurements.

SOUTH PORTICO PLAN

Law Society of Ontario, Toronto, Canada

Documentation process

▪ Gathered and scanned existing old drawings

▪ Created new auto cad drawings

▪ Field verification of the new drawings

▪ finalized drawings documentation.

Office Renovation/ Historic conservation

▪ Drawing annotation helped to communicate details and extent of damage for consultants.

▪ Extensive building damages shared with client and was decided to phase the project with phased schedule .

Law Society of Ontario, Toronto, Canada

Construction documentation :

▪ Continue to gather information from the building survey and existing drawings for inclusion on CAD drawings.

▪ Reviewing technical design documents and coordinate with consultants

▪ Developed technical documentation and CAD drawings for approval.

▪ Compilated design drawings and specifications for project tender.

Construction Administration :

▪ Weekly site visits and participate in observation of work in progress.

▪ Prepare field report, attend substantial completion review and verification of deficiency list

▪ Review any changes on shop drawings, samples

▪ Record all the communication between the team

Expedited Phase I:

During the first phase, project team replaced all the flashing and regraded the roof area.

Student Residence Innisfil, Ontario

Schematic Design:

▪ Three-story, building (code part-9) student residence project will provide accommodation for 124 students,

▪ Building will include essential amenities and cafeteria.

▪ The Student residence is part of the campus mater plan will complement other facilities, such as Classroom building, gym, and future staff residences.

▪ Meet with client to define the student’s need and resolve programing issues within the scope of work .

▪ Meetings with City planning committee to present project information and scope.

Student Residence Innisfil, Ontario

Design Development:

▪ Checking the accuracy and compatibility of design elements with the Building Code

▪ Developed design options along with renderings

▪ Arrange bi-weekly coordination meetings with client and consultants

▪ Document design and technical document approval meetings with City representatives and client before official Submission to the City

▪ Coordination of drawings with consultants for City Permit Submission.

▪ Prepared preliminary drawings and planning analysis

Student Residence Innisfil, Ontario

Documentation and use of latest technology:

• Creating and editing project documents efficiently by using BIM

• Make use of latest technologies and design tools that matches with best practices and industry standards (BIM)

• Use of BIM can minimize production time for design options and help to produce more accurate drawings

Legislative Assembly of Ontario Toronto, Ontario

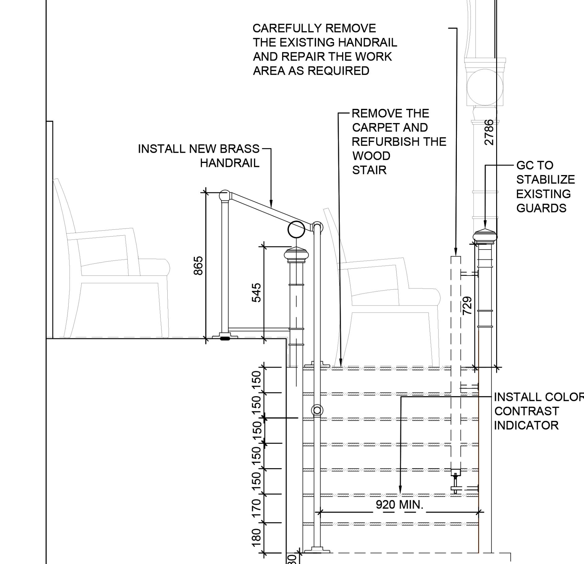
Interior Renovation and Accessibility Upgrades

Legislative Assembly of Ontario, Toronto, Ontario

Legislative Assembly of Ontario Renovation/ Historic conservation

EXISTING SECOND FLOOR PLAN

Documentation process

 Site meetings with client and in-house contactors helped

 For collecting accurate data

 Engage proactively with accessibility consultants during site meetings to ensure comprehensive understanding and integration of accessibility standards.

 Draft and distribute clear, informative memos to the team, fostering effective communication and collaboration.

 Seamlessly integrate all technical drawings with shop drawings and related specifications to accelerate the tendering process and enhance project efficiency.

Legislative Assembly of Ontario Renovation/ Historic conservation

Documentation process

• All major access point analyses and designs are meticulously crafted to comply with AODA requirements.

• Our design options are strategically developed to not only meet accessibility standards but also to enhance the character of the building while minimizing any impact.

Legislative Assembly of Ontario Renovation/ Historic conservation

Documentation Process:

 Evaluation of the existing conditions and categorization of major areas requiring upgrades to comply with AODA new standards.

 Conducted a thorough review of the furniture inventory and played a key role in selecting exemplary pieces that honor and maintain the building's rich heritage value.

 Developed a comprehensive Furniture Plan accompanied by striking photo documentation that highlights both style and heritage, providing the Interior Designer with a visually compelling narrative

TDSB- York Memorial Collegiate Institute Rehabilitation School Reconstruction

This project involves the rehabilitation and reconstruction of a building that was affected by a fire in 2019, which caused damage to the original 1929 structure and its additions. Over the past few years, various techniques have been employed for remediation, façade stabilization, and partial rehabilitation of the building by Taylor Hazel Architect and RJC Engineering, in accordance with TDSB guidelines, to restore it as a functional school.

Existing post fire - South Elevation

Proposed - South Elevation

Academic Classroom – Option 1

Academic Classroom – Option 2

Description :

Typical academic classroom.

Number of Occupants :

24 based on design. Assumes 23 students and 1 teacher.

Area (m²) :

Target Area is 72m2 Actual Area varies from 66.83 m2 to 105.15 m2

As an intern architect at THA, I worked under the supervision of a senior project manager and architect to study TDSB guidelines and design spaces in accordance with those standards and the Ontario Building Code (OBC). During my two years at THA, I was involved in the design development of interior layouts.

Academic Classroom – Interior Elevation
Third Floor Plan
Auditorium –Third Floor Plan
Auditorium – Second Floor Plan

Floor Plan TDSB- York Memorial Collegiate Institute Rehabilitation School Reconstruction

Third
West Interior Elevation

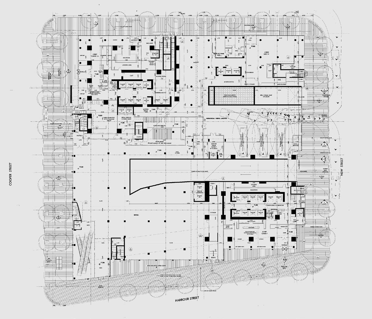
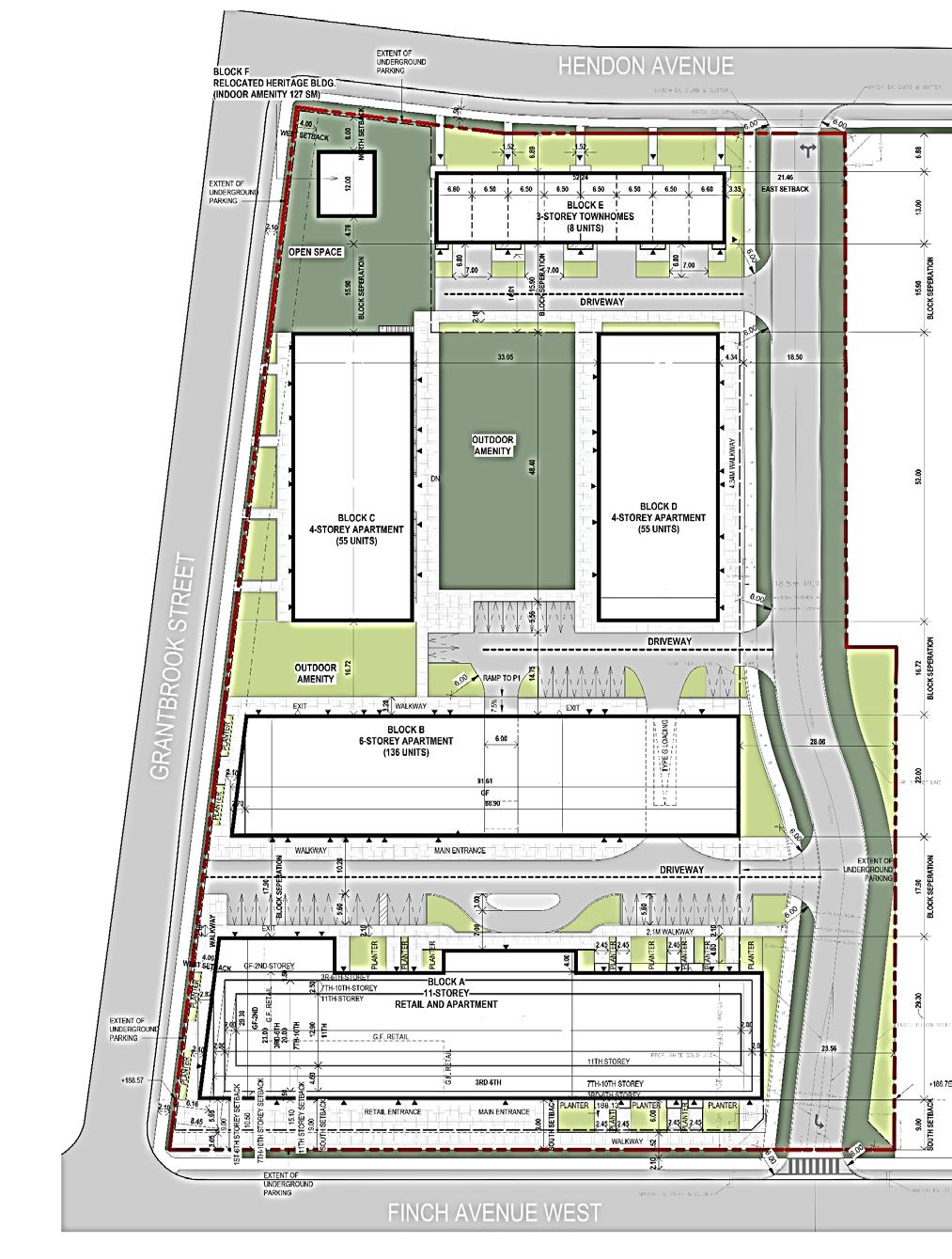
New Development, Toronto, Canada

Project Planning :

This Development include one 11 story, Retail and Apartment buildings ( Block A) fronting onto Finch Ave. and 6 Story Apartment ( Block B) served by a private internal roadway providing access to both Finch and Grant brook Street. Plus, two more identical 4 story Block (C,D) include Apartments and one 3 story townhouse Block € fronting onto Hendon Avenue. Proposal will also maintain existing Heritage Building.

 Be part of the team to prepare Site Plan Approval Package

 New Mixed Used Development provides connection to adjacent neighbourhood and divide the site into smaller development block

 Provide more green space for pedestrians, bicycles and landscaping as well as space transit, vehicles, utilities and utility maintenance.

New Development, Toronto, Canada

Site Location and Stats

Lot area : 21,060.64 SM

GFA : 45,150 SM

BLOCK A: 22,020SM

BLOCK B: 11,870SM

Indoor Amenity Area : 856SM

Outdoor Amenity Area : 856SM

Schematic Design

• Involved in the planning impacts of its functions on the local infrastructure

• Attend City Review Meetings and contribute to the team for plan adjustments

• Prepared drawing for existing house to be relocated

• Worked under supervision to do master planning and analyze long-term development strategies for this specific site.

New Development, Toronto, Canada

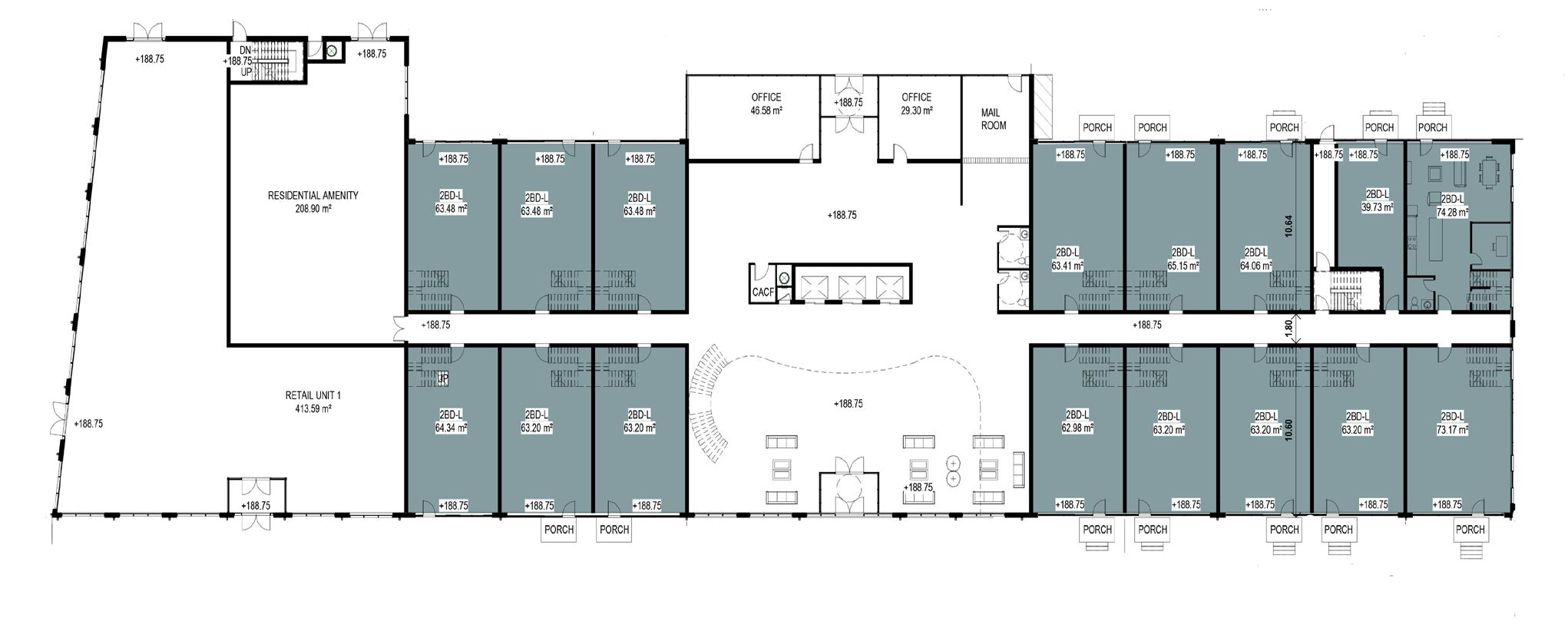
BLOCK A

TOTAL 1 BD = 16

TOTAL 1 BD + DEN = 76

TOTAL 2 BD = 64

TOTAL 3 BD = 16

TOTAL 3 BD + DEN = 2

TOTAL RESIDENTIAL UNITS = 174 UNITS.

Block A – 13-storey mixed use apartment building fronting onto Finch Avenue West, with 319 residential units, 6 retail units, and a maximum height of 46 m

LCBO Lands , Toronto, Canada

Site Location and Stats

• 25-storey, 763,000 square foot office tower,

• Proposed to rise 385.4 feet/117.45 meters

Design Development and Permit Drawing Preparation

• Involved in BIM Modeling of LCBO Towers

• Assist BIM manager in preparing details and templates

• Worked under supervision to do coordination od Structural drawings with Architectural

• Assist in preparation of construction document and details

The three story 7000 Sq M building is designed for the Syrian refugees escaping civil war in Syria into Canada. The experience and transition to new life in Canada is different for every newcomer, as they adjust to their new home. The overall outcomes of Syrian refugees’ resettlement and integration experiences are positive, showing encouraging trends in terms of their adjustment to life in Canada and participation in society.

Grand Street
Blair Road
Project located at the intersection of Grand Street and Blaire The main entrance is from Grand Street and the secondary access from Baire street to provideaccess for vehicles and pedestrian.

The design concept is to create a welcoming environment that is reflective of the refugee’s culture. The planning concept and programing is to adhere to the building’s users and provide different area for the adults and children. Building envelope concept is to create a dynamic balance between window fenestration and solid. Building material and texture is breakdown the overall building massing.

The building program is stacked from public to semiprivate and private functions as follows;

▪ Ground level: lobby function, building core, childcare and children playroom.

▪ First level: is for parents and includes community room, kitchen, library and conference room.

▪ Second level: meditation room, consultation and language classroom.

The design intent is to create an intuitive design and articulate each level with design elements that are reflective of its population and its use.

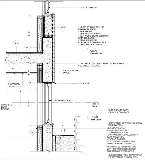
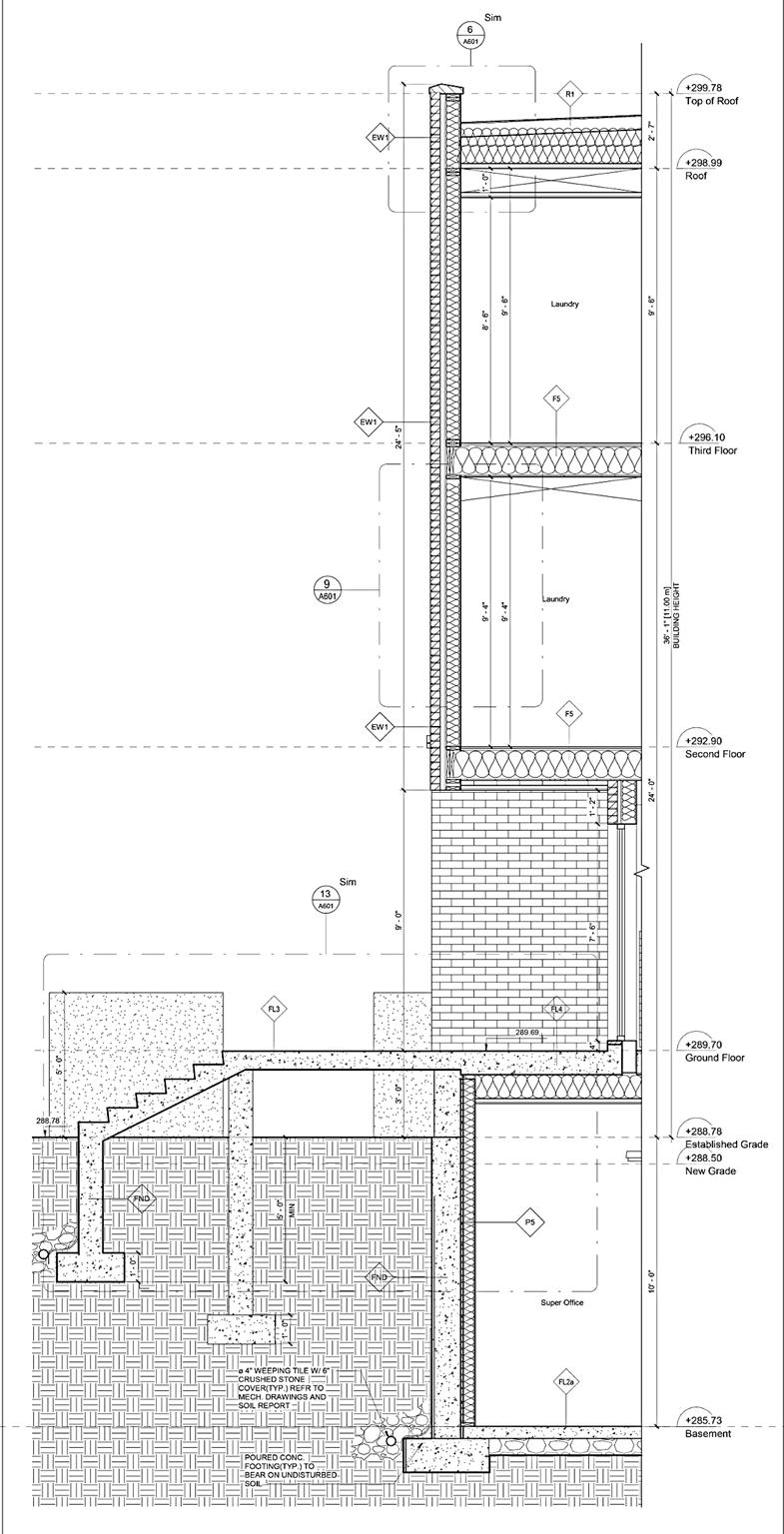
The “perfect wall”.A perfect wall is to minimize energy waste and is designed for the Ontario climate.

The wall system is layered and includes thermal control layer, air and vapor barriers and is located on the exterior side of the structure.

The wall concept is based on an open-air principle with ability to equalize air pressures and allow ventilation inside of wall cavity.

Group -1 high density residential units

Group -2

Interlace Urban Promenade

Group -3

The junior design studio was divided into three groups for this site-specific urban re-development project. Each group had to follow the established project guideline including land use, zoning and program requirement.

The proposed site location (Finch and Weston) is desirable for urban re-development and benefits from the new light Rail Train (LRT) construction. In addition, the real state study shows that area is suitable investment for high density residential units.

Mater Plan objective is to create mixed-use development with higher density residential, office and commercial retail projects.

Proposed Site Location

Interlace Urban Promenade

Buildings are oriented on the South West axis to maximize solar exposure for the residence and the public plaza.

Delivering shared value requires community engagement. The buildings site planning recognizes the need for large public plaza that creates an opportunity for community to interact and socialize. The public space is a critical elements in urban renewal projects and offers an identity and landmark for much needed social interaction. The plaza also creates a contextual elements and brings back the temporary shelter for the neighborhood shopping experience. Given the winter cold climate in the Toronto area, an enclosed public area has been added for community use including art exhibitions, art and grafts, community meeting and education classes.

Community public area includes space for art exhibitions, art and grafts and community use. In addition to the solar angle, greenhouse element and orientation, the building massing concept is to create an identifiable architecture and a landmark to enhance community sense of orientation and belonging.

Interlace Urban Promenade

NATURAL VENTILATION

Cross-flow and passive stack ventilation is the most effective passive natural ventilation. The strategy is to use a combination of cross ventilation, buoyancy (warm air rising) and the venturi (wind passing over the terminals causing suction) effect

SOLAR ORIENTATION

SUN ANGLE

The building massing is formed by the sun angle in the month of Jun and creates a directional axis to the building entrance from the plaza. The deign strategy is to reduce sun exposure in summer and maximize solar gain in the winter.

WIND

Interlace Urban Promenade

Interlace Urban Promenade

The impact of LRT on housing prices

According to the market impact study, the LRT walkable access to transit on this site, will increase the demand for housing and increase in property value.

The LRT will have the positive impact for residential land values as the transit service will provide easier movement along corridor.

SEVENTH FLOOR PLAN

SECOND FLOOR PLAN

Interlace Urban Promenade

All bedrooms are planned with high exposure to sunlight during the cold season in Canada. Each unit has its own greenhouse space and access to fresh air.

Sunlight exposure at southwest elevation is control with vertical Fin to minimize solar gain in the summer

Interlace Urban Promenade

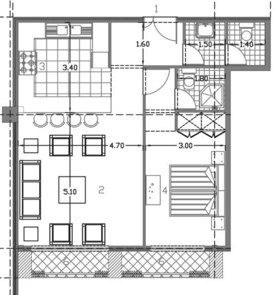
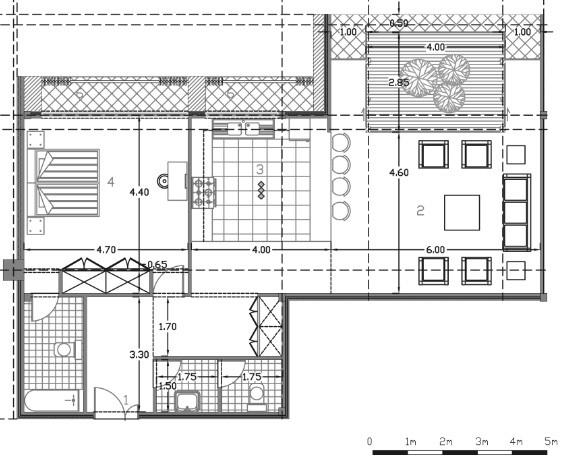
Typical 2-Bedroom
Typical 1-Bedroom A
Typical 1-Bedroom B
Typical 2-Bedroom C

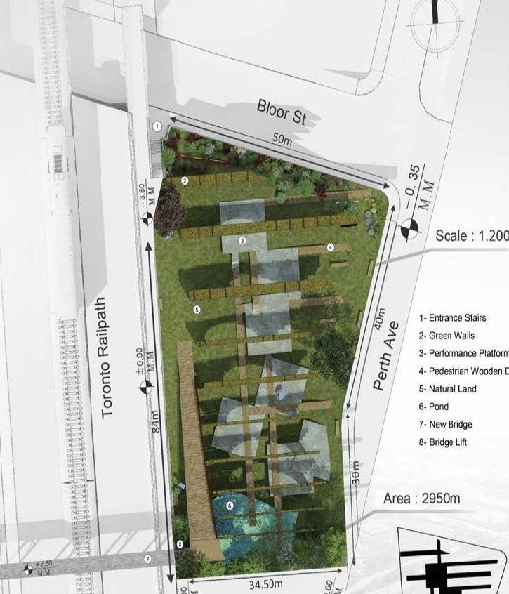
visual axis (Spine) connecting Bloor street to the MOCA

MOCA Gateway Garden

Site Context : the site is used to be occupied by the Toronto Museum of contemporary Art (MOCA) and currently is used as small park attraction a lot of artists from the surrounding community.

Site organization: The planning concept is to create a symbolic visual axis (Spine) to connect the Bloor street from north to the MOCA’s new location in the south.

The design concept has two components:

1. Create a sequence of green biodiversity walls along the visual spine providing opportunities for functional intimate spaces.

2. The open spaces between the green walls is intended for community social interaction, cultural and artistic events.

The “ Garden” spatial organization incorporates design elements that creates strong sense of a place, where people come together and where connected spaces create an experience. The idea is to establish a balance based on scale/proportion, sequence and unity.

The MOCA garden explores the boundary and threshold between landscape and architecture with spatial definition and relationship that creates intentional outdoor rooms.

MOCA Gateway Garden

The green biodiversity walls: The experiment of bringing wildlife to the garden is to add another level of interaction between nature, people and architecture. The biodiversity wall planting concept is to bring back birds, butterflies, beneficial insects and other wildlife to the area.

The idea of bringing wildlife to the garden is also to enhance the SENSE of PLACE and reinforce relationship and meanings in landscape architecture as the hanging garden transformed through seasonal change.

Butterflies Flowering crabapple

Bush

Attracts

Tangerine Monrovia

Attracts Birds

Helianthus

Attracts Bees attract Butterflies

Hummingbirds

jasminoides Magnolia Wisteria sinensis Honeysuckle Lonicera

MOCA Gateway Garden .

Aroma: In Toronto area many different plant species thrive. To evoke sense of smell, the chosen plant palettes are to produce aroma that defines the character of a space.

Sound:. The train movement along the site act as narrator and is a reminder of the local community history. The green walls layering is to reflect a dynamic movement through the main spine with a notion of traveling sound.

The new pedestrian bridge connects the bicycle path and communities to the future development at the west side of train track. The neighborhoods in this area attracts a large artistic population that aids revitalization and urban re-development.

Turn static files into dynamic content formats.

Create a flipbook
Issuu converts static files into: digital portfolios, online yearbooks, online catalogs, digital photo albums and more. Sign up and create your flipbook.
Melika Mehdizadeh - Arch. Portfolio - 2025-03-03 by Melika Mehdizadeh - Issuu